1615 Orleans#
Last updated: 2024-06-25 · ID: D07-12-23-0026
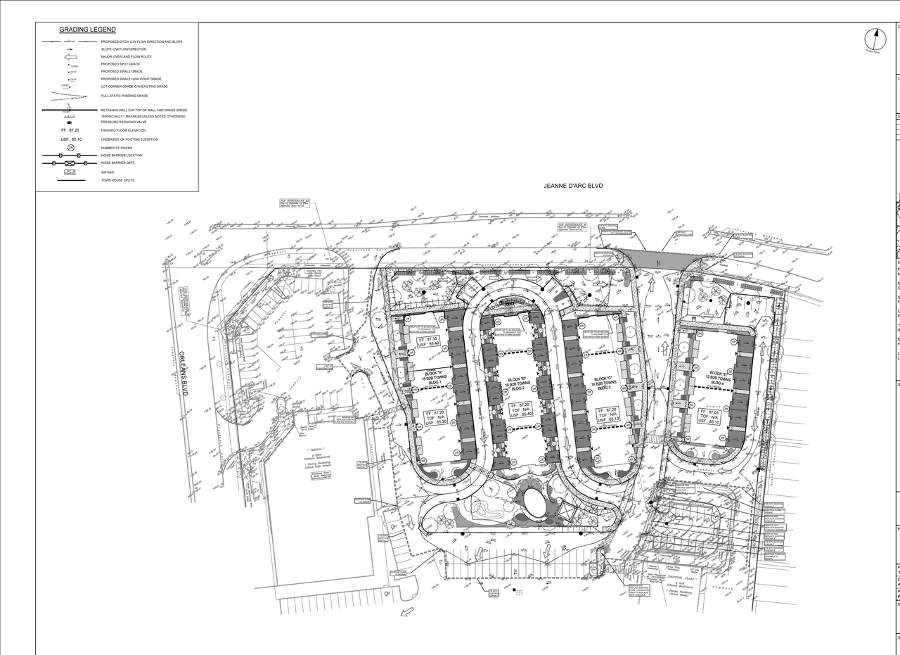
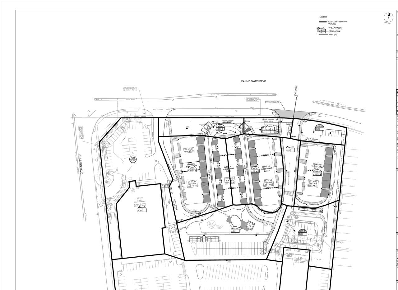
Summary#
A Site Plan Control application is proposed to construct four townhouse blocks, with a total of 60 dwelling units over about 9764 square metres of gross floor area. 25 visitor parking spaces and about 1,700 square metres of landscaped outdoor amenity area are also proposed.
Status
File Pending (Application File Pending)
Building Scale (Max.)
Based on elevation drawings. Values may be approximate. See sources for exact figures.
Low-rise · 3 storeys
· 12.19 m
Renders#
Location#
Select a marker to view the address.
Site Plans, Elevations and Floor Plans#
Additional Information#
| Date Initiated | 2023-03-03 |
| Ward | Ward 2 - Laura Dudas |


















