1050 Tawadina Rd.#
Summary#
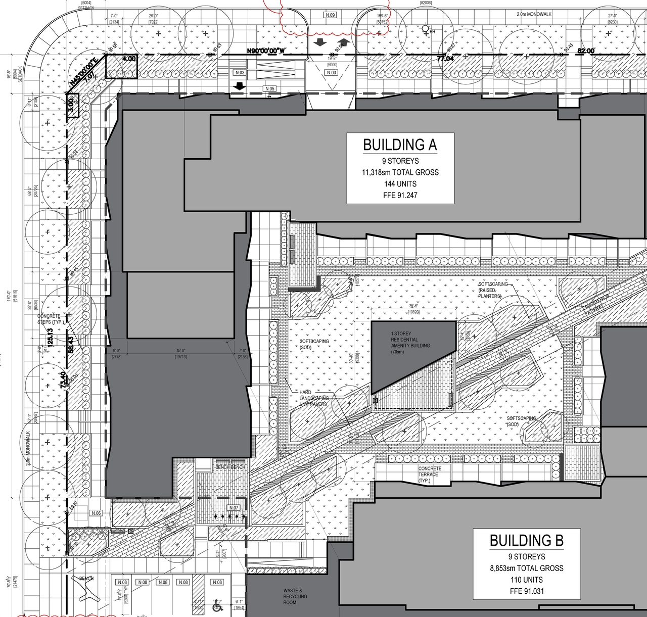
The proposed development consists of two 9-storey mid-rise apartment buildings containing underground and surface parking. The building on the northwestern side of the site (Building A) will be nine storeys with 144 units, while the building on the south eastern portion of the property (Building B) will be nine storeys with 110 units for a total unit count of 254 units. The buildings will be oriented to frame a central courtyard containing greenspace, a gym, and a gravel dog run area. A walkway is also proposed that will blsect the site along a right-of-way providing convenient pedestrian circulation through the site.
Status
File Pending (Application File Pending)
Building Scale (Max.)
Based on elevation drawings. Values may be approximate. See sources for exact figures.
Mid-rise · 9 storeys
· 29.34 m
Renders#
Location#
Site Plans, Elevations and Floor Plans#
Additional Information#
| Date Initiated | 2023-03-01 |
| Ward | Ward 13 - Rawlson King |


















