2006-2026 Scott St./314-318 Athlone Ave.#
Last updated: 2026-03-13 · ID: D07-12-23-0019
Summary#
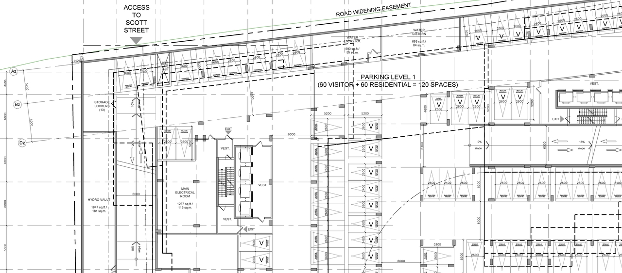
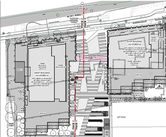
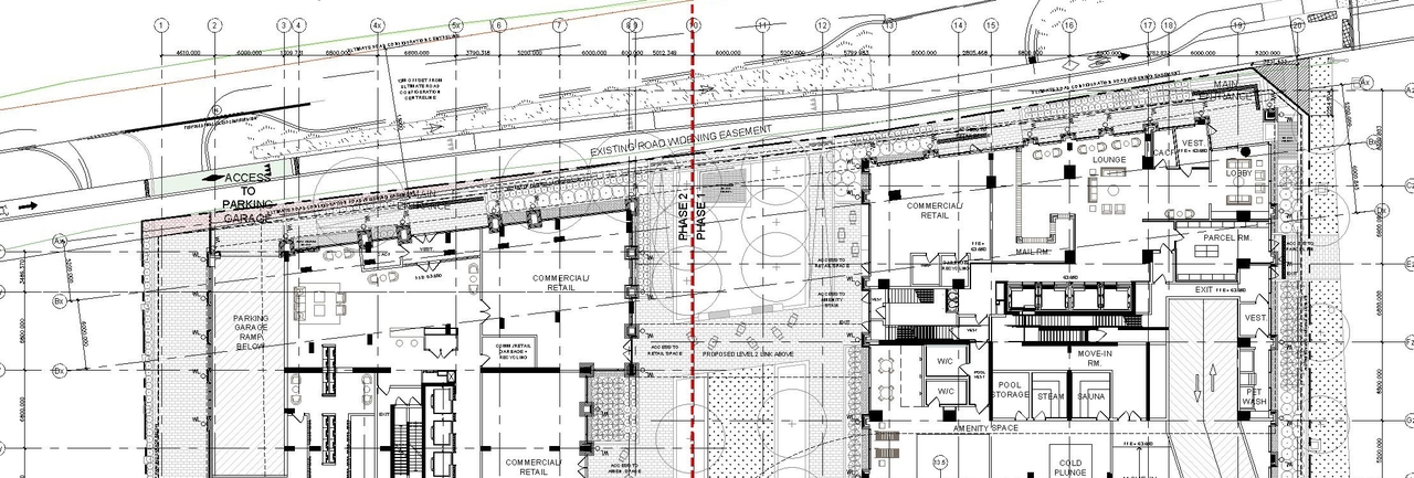
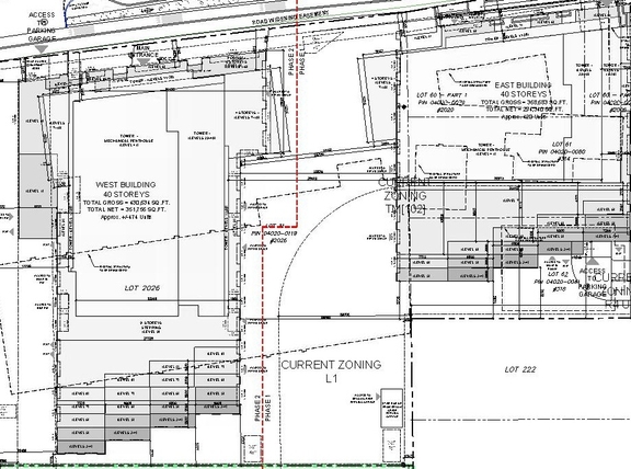
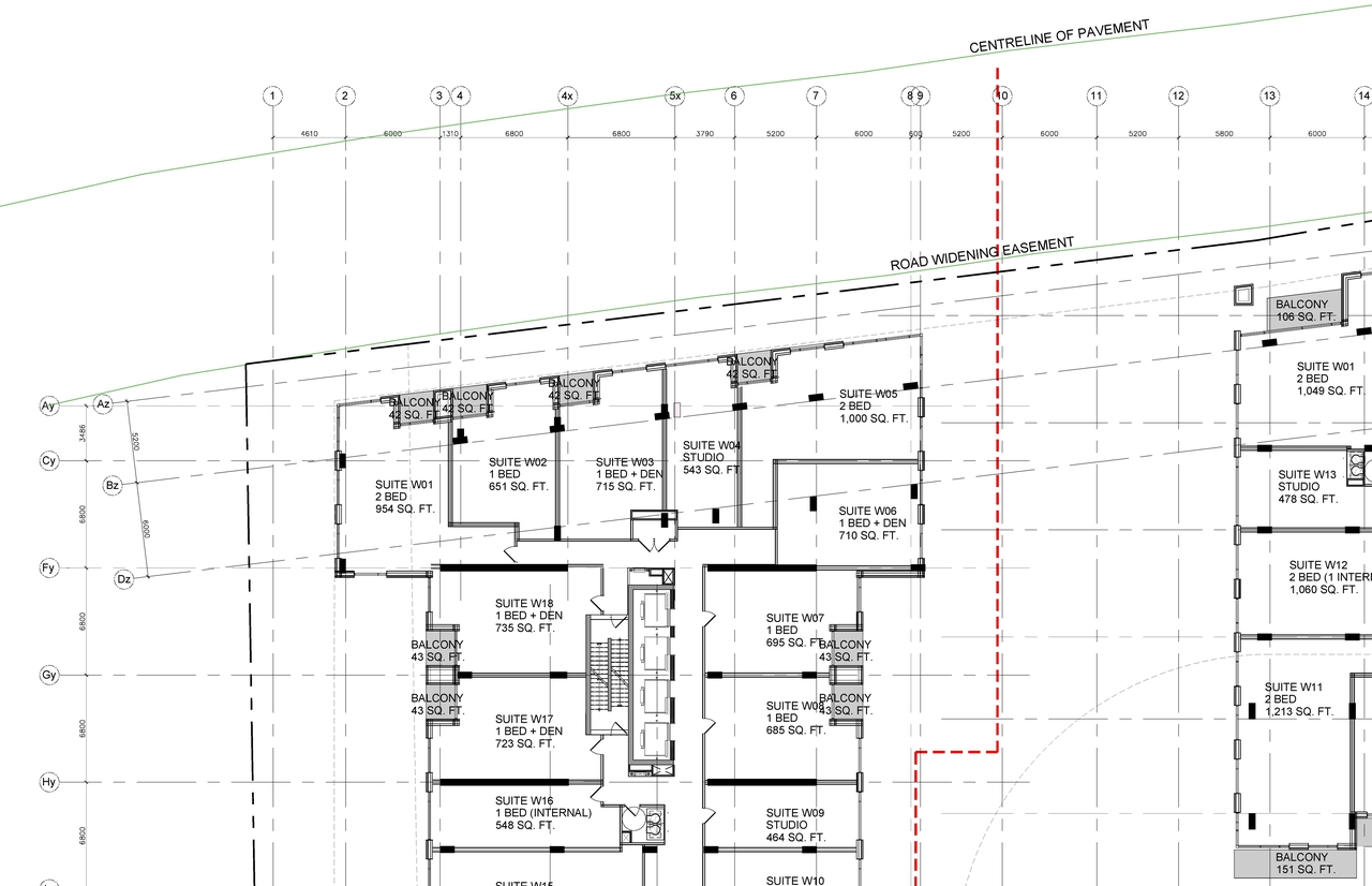
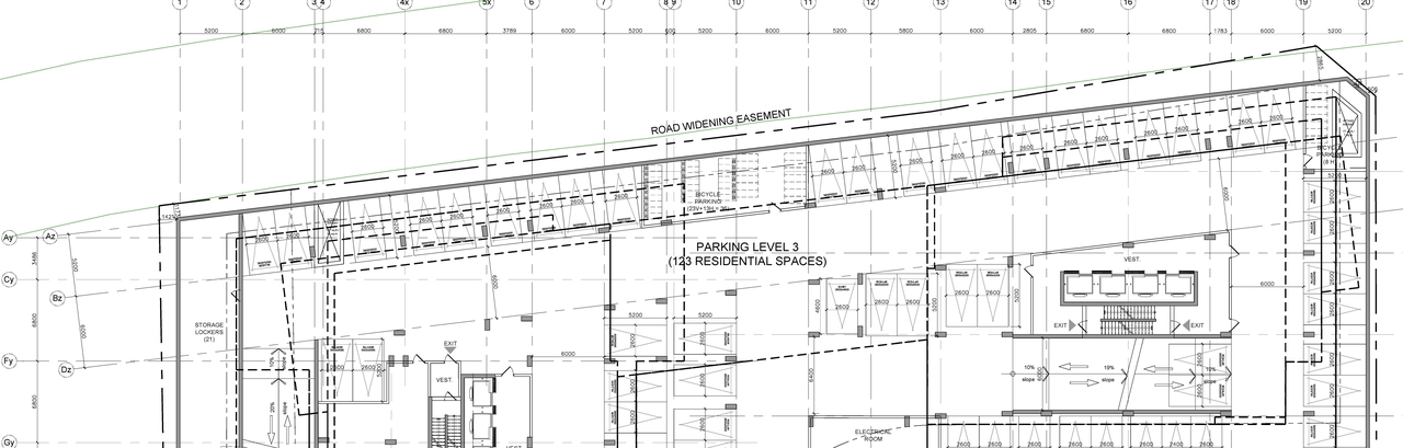
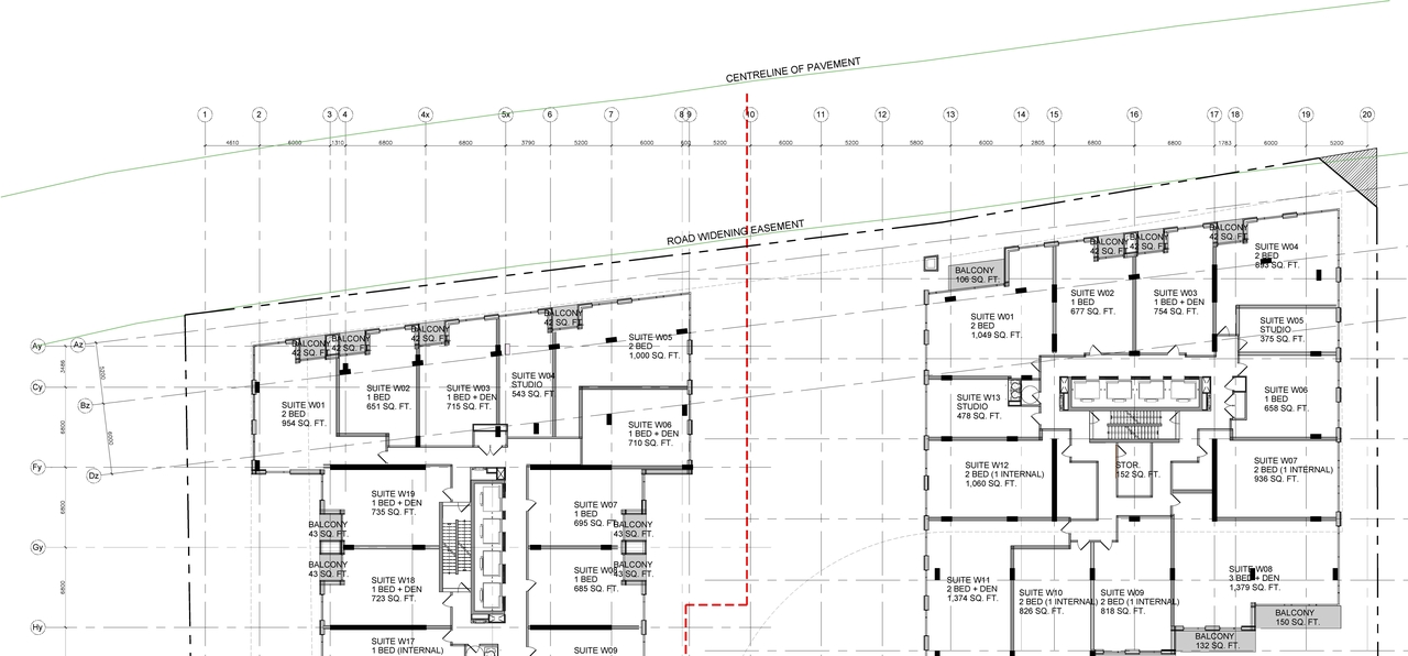
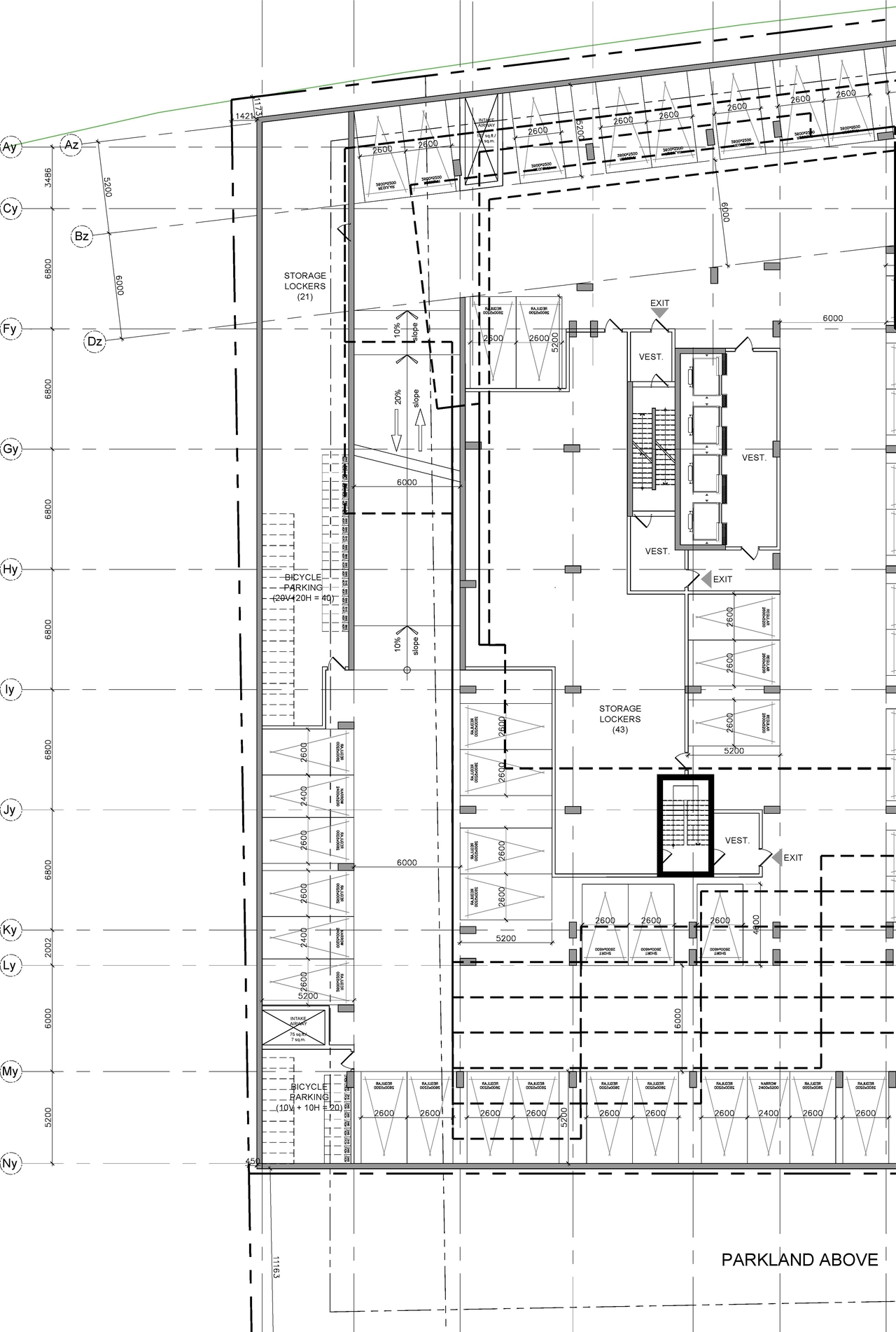
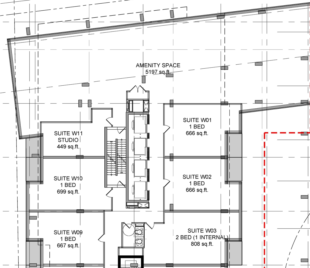
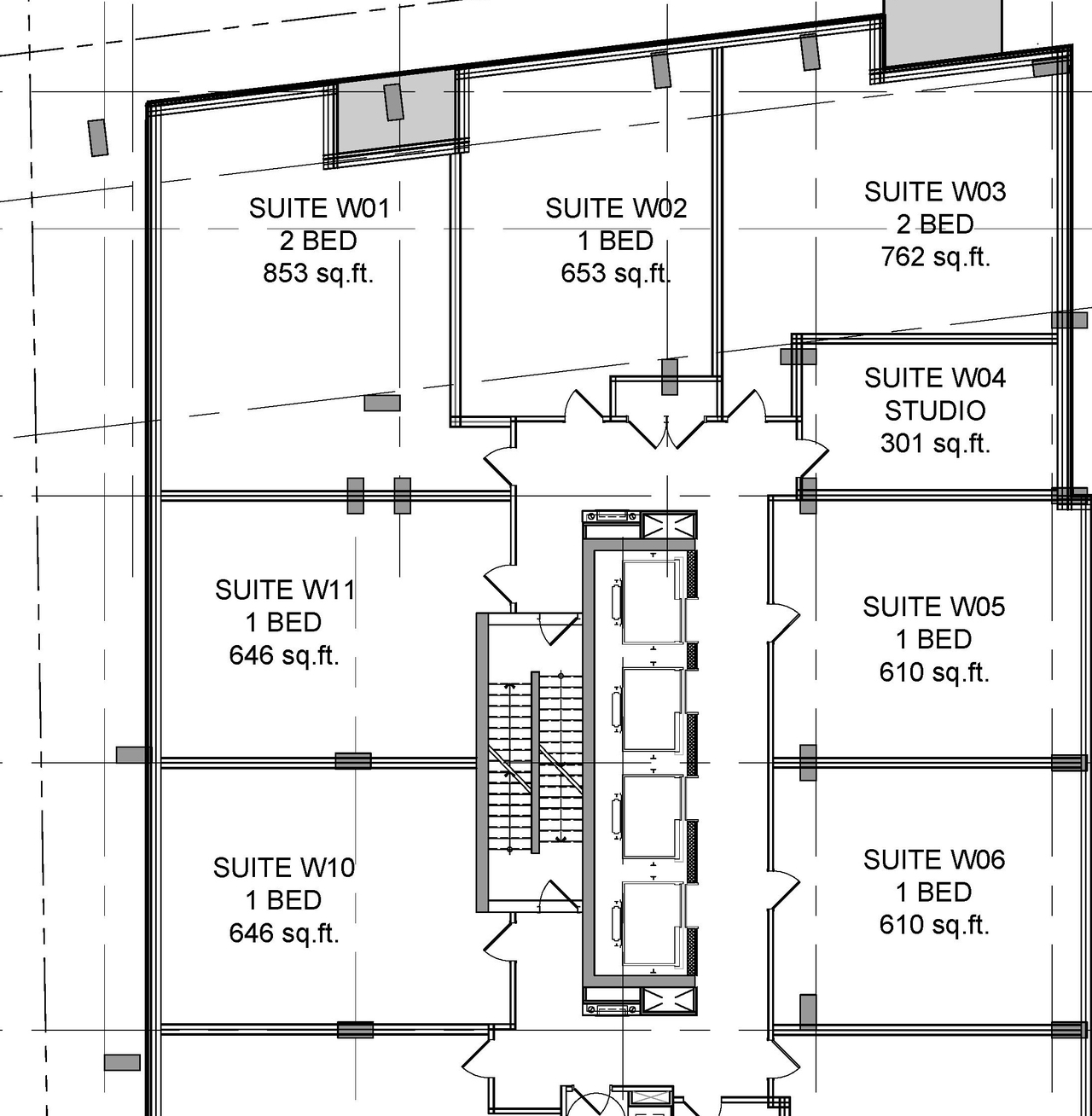
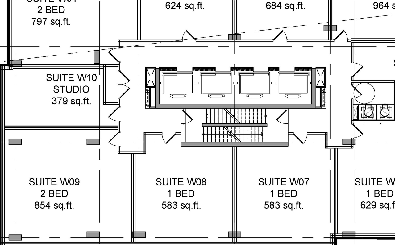
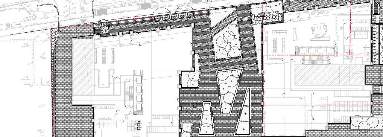
The City of Ottawa has received a Site Plan Control application to construct two, fortystorey high-rise residential apartment buildings, with a total of 856 units. The development will include a total of 418 parking spaces, and 630 bicycle parking spaces.
Status
Active (Additional Submission Review Required)
Building Scale (Max.)
Based on elevation drawings. Values may be approximate. See sources for exact figures.
High-rise · 40 storeys
· 128.7 m
Renders#
Location#
Select a marker to view the address.
Site Plans, Elevations and Floor Plans#
Additional Information#
| Date Initiated | 2023-02-23 |
| Ward | Ward 15 - Jeff Leiper |
| All Addresses | 2006 Scott St. 2020 Scott St. 2026 Scott St. 314 Athlone Ave. 318 Athlone Ave. |
















































































































