30 Auriga Dr.#
Last updated: 2023-10-04 · ID: D07-12-23-0016
Summary#
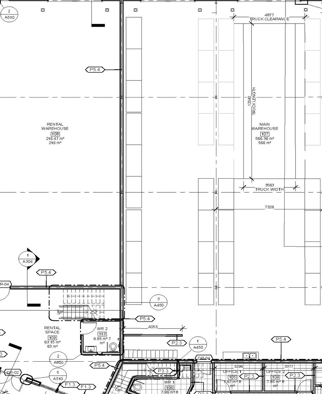
A Site Plan Control application to construct a 1-storey, 792 square metre warehouse building and a 2-storey, 250 square metre accessory office and showroom. A surface parking lot with 20 parking spaces (including one barrier-free space) and two bicycle parking spaces is proposed in the front yard. Four truck bays are proposed in the rear.
Status
File Pending (Application File Pending)
Building Scale (Max.)
Based on elevation drawings. Values may be approximate. See sources for exact figures.
Low-rise · 2 storeys
· 8.75 m
Renders#
Location#
Select a marker to view the address.
Site Plans, Elevations and Floor Plans#
Additional Information#
| Date Initiated | 2023-02-16 |
| Ward | Ward 9 - Sean Devine |


















