Ottawa Development Projects

20 Cedarow Ct.#

Last updated: 2024-11-23 · ID: D07-12-23-0004

Summary#

A Site Plan Revision application to increase the total number of units from 284 to 344 units, relocate the outdoor sports court, add a surface parking lot to the rear, and modify the parking configuration.

Status
Post Approval (Receipt of Agreement from Owner Pending)

Building Scale (Max.) Based on elevation drawings. Values may be approximate. See sources for exact figures.
Mid-rise · 6 storeys · 25.5 m

Renders#

Location#

Select a marker to view the address.

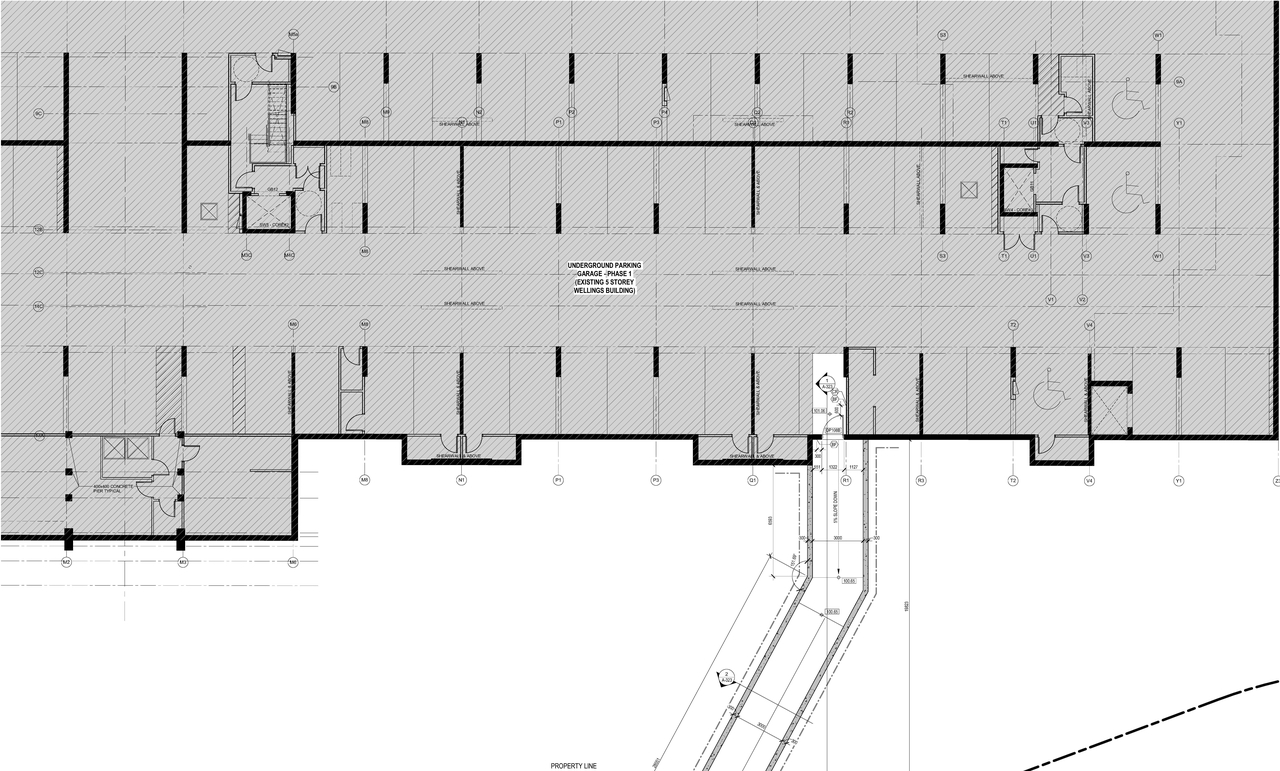
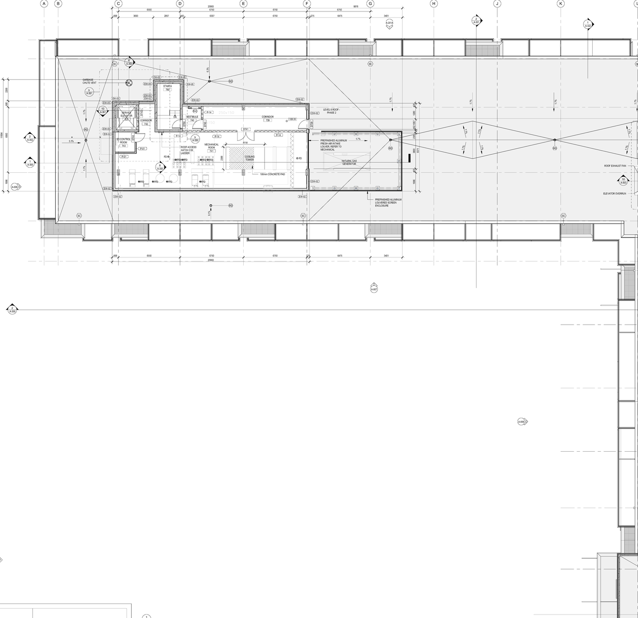
Site Plans, Elevations and Floor Plans#

Additional Information#

Date Initiated2023-01-20
WardWard 6 - Glen Gower

Documents#

TypeDocument
Application Summary2023-03-14 - Application Summary - D07-12-23-0004
Architectural Plans2023-09-29 - Site Plan - D07-12-23-0004
Architectural Plans2023-09-29 - Sanitary Drainage Plan - D07-12-23-0004
Architectural Plans2023-09-29 - Elevations with Bird Safe Glass Overlay - D07-12-23-0004
Architectural Plans2023-09-29 - Elevations - D07-12-23-0004
Architectural Plans2023-06-30 - Site Plan- D07-12-23-0004
Architectural Plans2023-06-30 - Sanitary Drainage Plan - D07-12-23-0004
Architectural Plans2023-06-30 - ESC Plan- D07-12-23-0004
Architectural Plans2023-06-30 - Elevations - D07-12-23-0004
Architectural Plans2023-02-02 - Summary of Proposed Site Plan Revisions - D07-12-23-0004
Architectural Plans2023-02-02 - Proposed Site Plan Revisions Summary - D07-12-23-0004
Architectural Plans2023-01-20 - Site Plan - Electrical Details - D07-12-23-0004
Architectural Plans2023-01-20 - Site Plan - Electrical - D07-12-23-0004
Architectural Plans2023-01-20 - Site Plan - D07-12-23-0004
Architectural Plans2023-01-20 - Sanitary Drainage Plan - D07-12-23-0004
Architectural Plans2023-01-20 - Notes and Legend Plan - D07-12-23-0004
Architectural Plans2023-01-20 - Key Building Elevations - D07-12-23-0004
Architectural Plans2024-10-02 - APPROVED Site Plan - D07-12-23-0004
Architectural Plans2024-10-02 - APPROVED Sanitary Drainage Plan - D07-12-23-0004
Architectural Plans2024-10-02 - APPROVED Restoration Planting Plan - D07-12-23-0004
Architectural Plans2024-10-02 - APPROVED Notes and Legend Plan - D07-12-23-0004
Architectural Plans2024-10-02 - APPROVED Elevations - D07-12-23-0004
Civil Engineering Report2023-09-29 - Civil Notes & Legend - D07-12-23-0004
Civil Engineering Report2023-06-30 - Civil Notes and Legend - D07-12-23-0004
Environmental2023-09-29 - Environmental Impact Study - D07-12-23-0004
Environmental2023-03-08 - Updated Environmental Impact Study - D07-12-23-0004
Environmental2023-01-20 - Environmental Site Assessment - D07-12-23-0004
Environmental2023-01-20 - Environmental Impact Study - D07-12-23-0004
Erosion And Sediment Control Plan2023-09-29 - Erosion & Sediment Control Plan - D07-12-23-0004
Erosion And Sediment Control Plan2023-01-20 - Erosion Control Plan and Detail Sheet - D07-12-23-0004
Erosion And Sediment Control Plan2024-10-02 - APPROVED Erosion and Sediment Control Plan - D07-12-23-0004
Existing Conditions2023-09-29 - Existing Site Services - D07-12-23-0004
Existing Conditions2023-06-30 - Existing Site Services - D07-12-23-0004
Floor Plan2023-03-03 - Floor Plans - D07-12-23-0004
Geotechnical Report2023-09-29 - Grading Plan - D07-12-23-0004
Geotechnical Report2023-06-30 - Revised Geotechnical Report - D07-12-23-0004
Geotechnical Report2023-06-30 - Grading Plan- D07-12-23-0004
Geotechnical Report2023-01-20 - Grading Plan - D07-12-23-0004
Geotechnical Report2023-01-20 - Geotechnical Investigation - D07-12-23-0004
Geotechnical Report2024-10-02 - APPROVED Grading Plan - D07-12-23-0004
Landscape Plan2023-09-29 - Landscape Plan Details & Restoration Plantings Plan - D07-12-23-0004
Landscape Plan2023-06-30 - Landscape Drawings - D07-12-23-0004
Landscape Plan2023-01-20 - Landscape Plan and Details - D07-12-23-0004
Landscape Plan2024-10-02 - APPROVED Landscape Plan - D07-12-23-0004
Landscape Plan2024-10-02 - APPROVED Landscape Details - D07-12-23-0004
Noise Study2023-01-20 - Noise Impact Study - D07-12-23-0004
Notification2024-05-10 - Commence Work Notification - D07-12-23-0004
Planning2023-09-29 - Planning Justification Report - D07-12-23-0004
Planning2023-06-30 - Zoning Information & Legend - D07-12-23-0004
Planning2023-06-30 - Updated Planning Justification Report - D07-12-23-0004
Planning2023-01-20 - Zoning Information, Legends, City GFA & Amenity Areas, Unit Types - D07-12-23-0004
Planning2023-01-20 - Planning Justification Report - D07-12-23-0004
Rendering2023-06-30 - Renderings- D07-12-23-0004
Site Servicing2023-09-29 - Site Servicing Plan - D07-12-23-0004
Site Servicing2023-09-29 - Servicing & Stormwater Managment Brief - D07-12-23-0004
Site Servicing2023-06-30 - Updated Servicing and SWM Brief- D07-12-23-0004
Site Servicing2023-01-20 - Site Servicing Plan SSP-1 - D07-12-23-0004
Site Servicing2023-01-20 - Site Servicing Plan - D07-12-23-0004
Site Servicing2023-01-20 - Servicing & Stormwater Management Brief - D07-12-23-0004
Site Servicing2024-10-02 - APPROVED Site Servicing Plan - D07-12-23-0004
Stormwater Management2023-06-30 - Storm Drainage Plan - D07-12-23-0004
Stormwater Management2023-01-20 - Storm Drainage Plan - D07-12-23-0004
Stormwater Management2024-10-02 - APPROVED Storm Drainage Plan - D07-12-23-0004
Surveying2023-02-21 - Plan of Survey for Existing Phase 1 Site - D07-12-23-0004
Surveying2023-01-20 - Togographical Plan of Survey - D07-12-23-0004
Transportation Analysis2023-01-20 - Transportation Impact Assessment - D07-12-23-0004
Tree Information and Conservation2023-03-03 - Tree Conservation Report Addendum - D07-12-23-0004
Tree Information and Conservation2023-01-20 - Tree Conservation Report - D07-12-23-0004
2023-06-30 - Updated EIS - D07-12-23-0004
2023-06-30 - Proposed Site Services - D07-12-23-0004
2023-06-30 - Excess Parking Memo - D07-12-23-0004
2023-06-30 - Copy of Committee of Adjustment 2021 Decision- D07-12-23-0004
2023-02-17 - Updated Phase I Environmental Impact Assessment - D07-12-23-0004
2023-01-20 - Retaining Wall Design - D07-12-23-0004
2023-01-20 - Butternut Services - D07-12-23-0004
2024-10-03 - APPROVED Delegated Authority Report - D07-12-23-0004
2024-10-02 - APPROVED Retaining Wall Design - D07-12-23-0004