1545 Merivale Rd.#
Last updated: 2025-06-07 · ID: D07-12-22-0190
Summary#
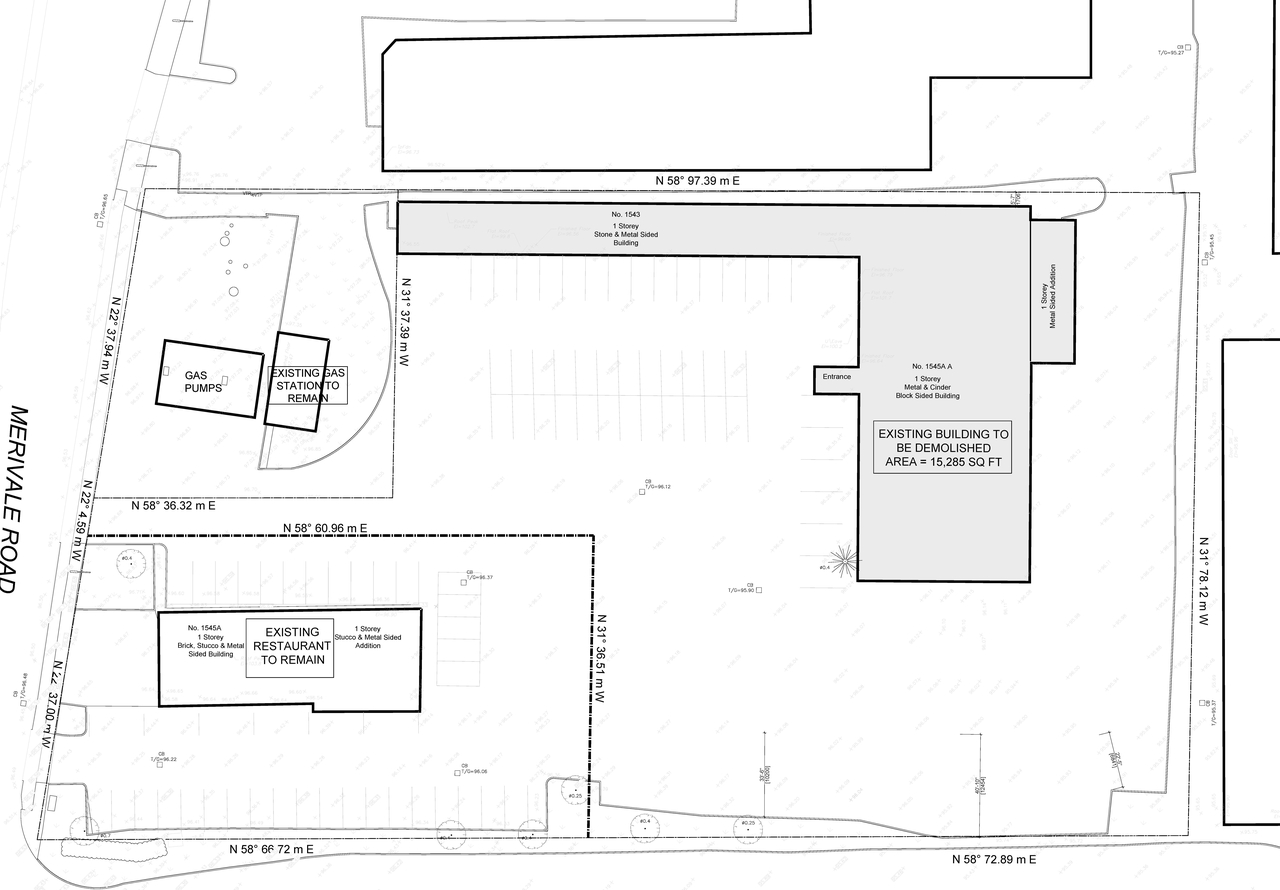
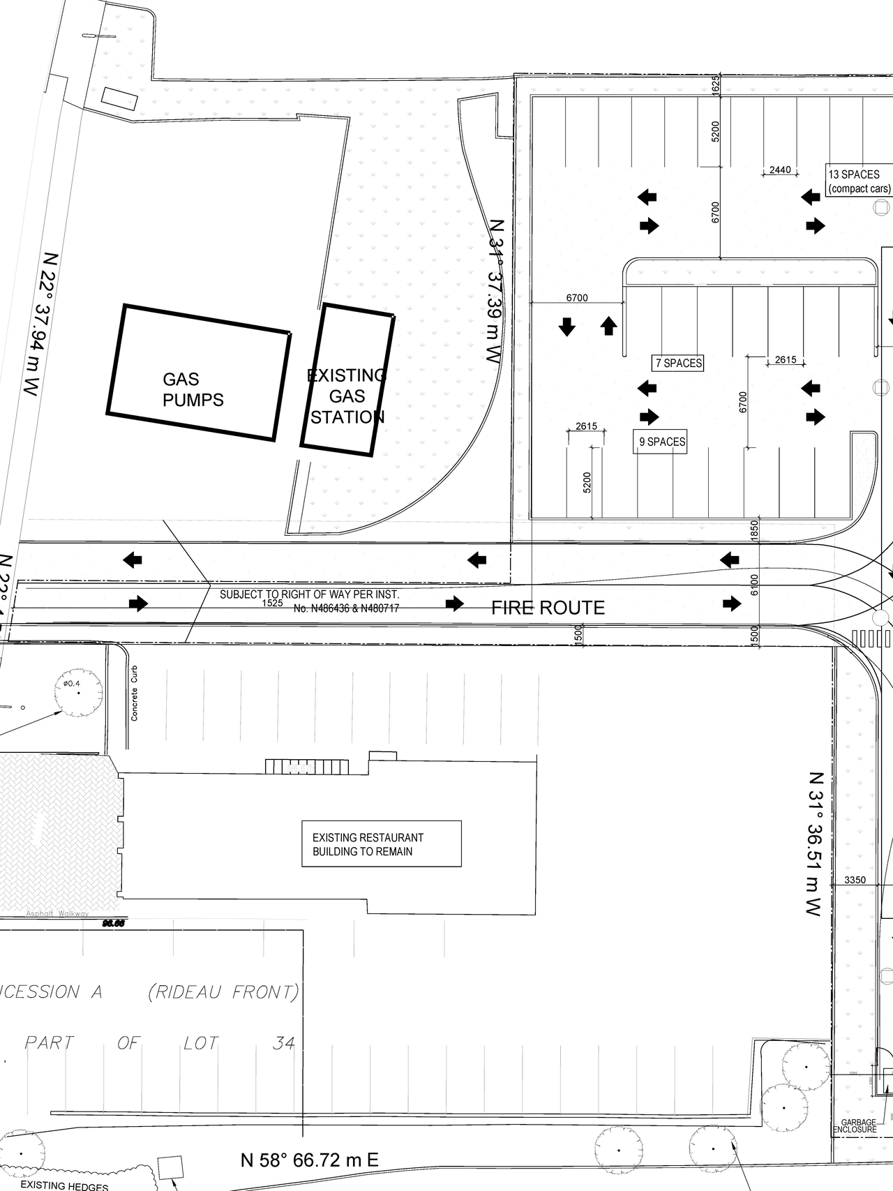
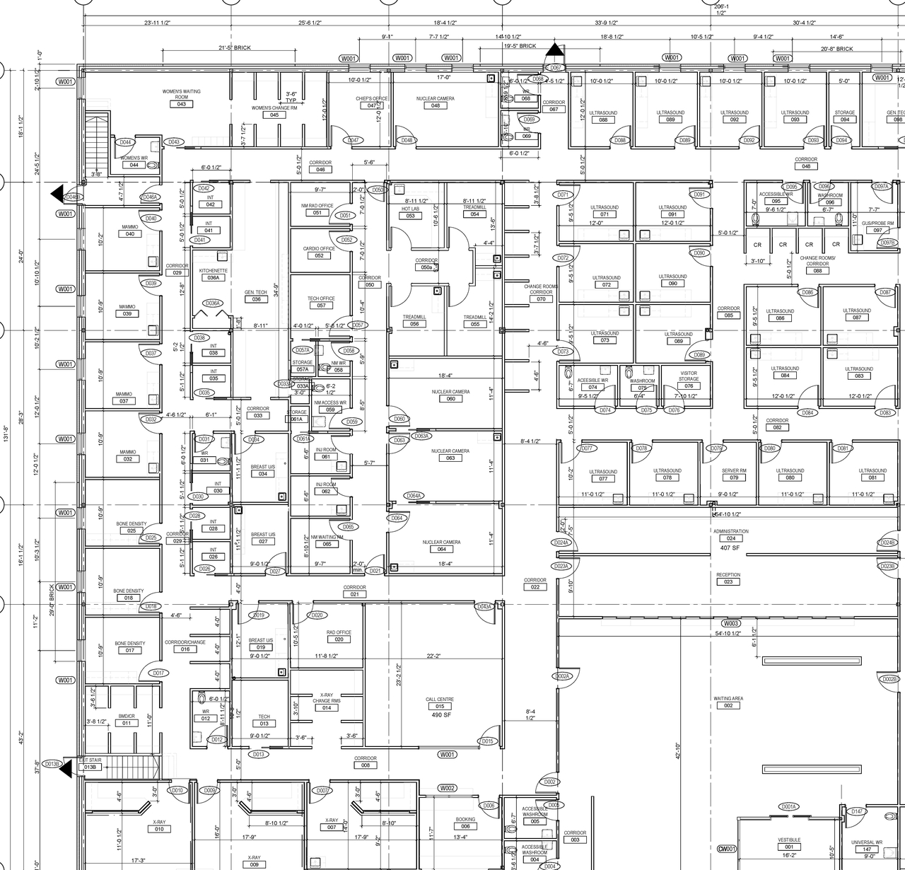
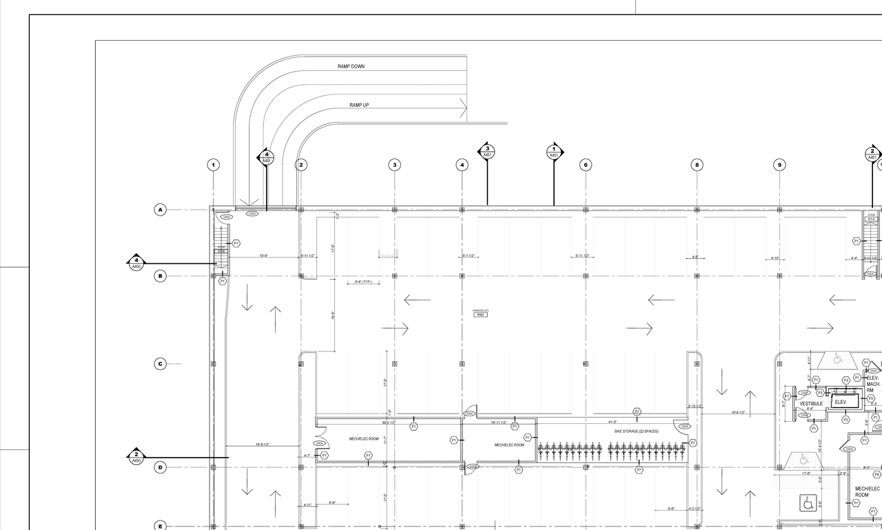
A Site Plan Control application to construct a 1-storey, 2,481 sqm medical imaging building with 129 parking spaces provided in a surface parking lot and an underground parking lot.
Status
Post Approval (Agreement Signed)
Building Scale (Max.)
Based on elevation drawings. Values may be approximate. See sources for exact figures.
Low-rise · 1 storey
· 12.6 m
Data Quality Note
Height was partially estimated using visual scale. This may be approximate.
Location#
Select a marker to view the address.
Site Plans, Elevations and Floor Plans#
Additional Information#
| Date Initiated | 2022-12-30 |
| Ward | Ward 9 - Sean Devine |





