Ottawa Development Projects

2663 Innes Rd.#

Last updated: 2023-11-10 · ID: D07-12-22-0182

Summary#

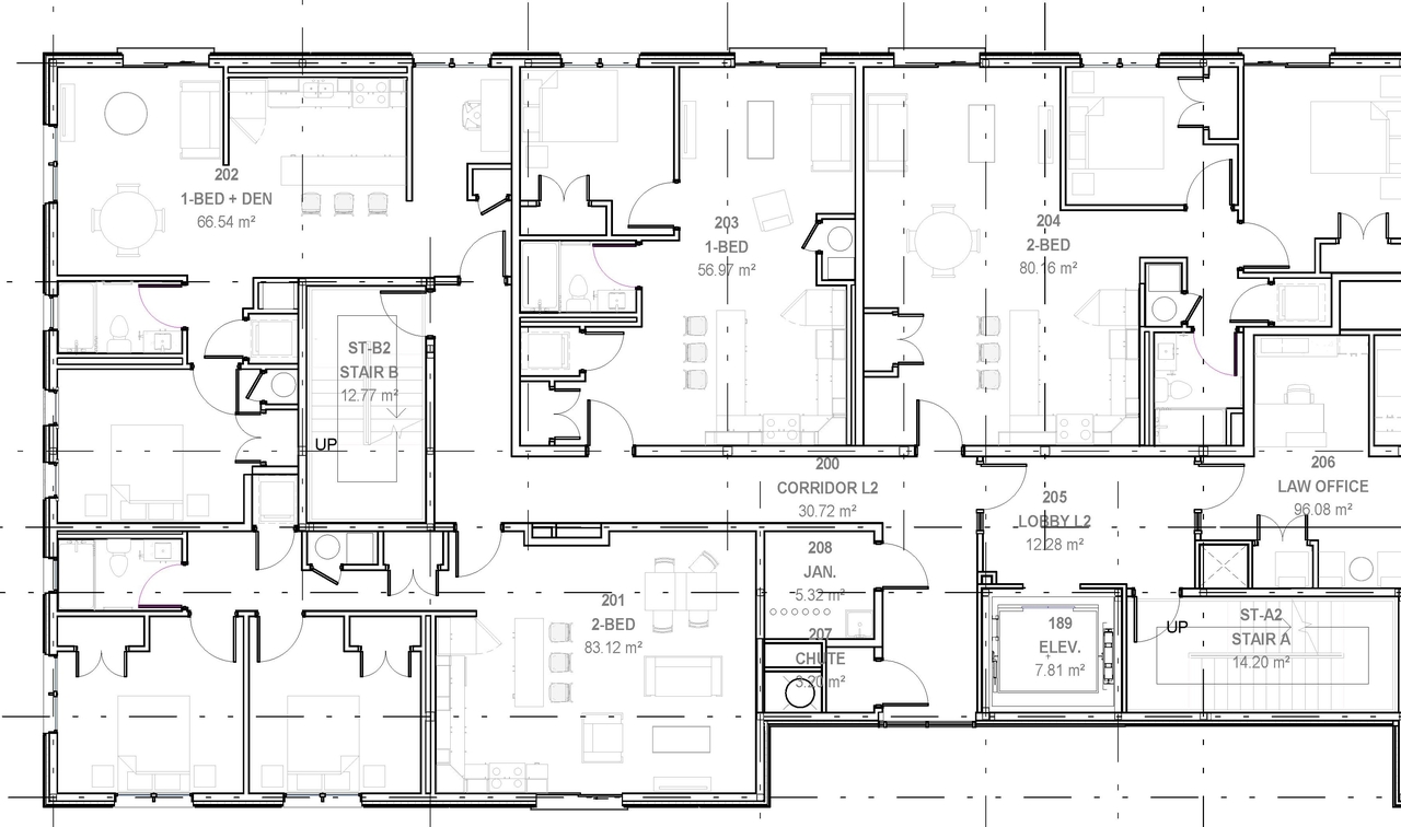
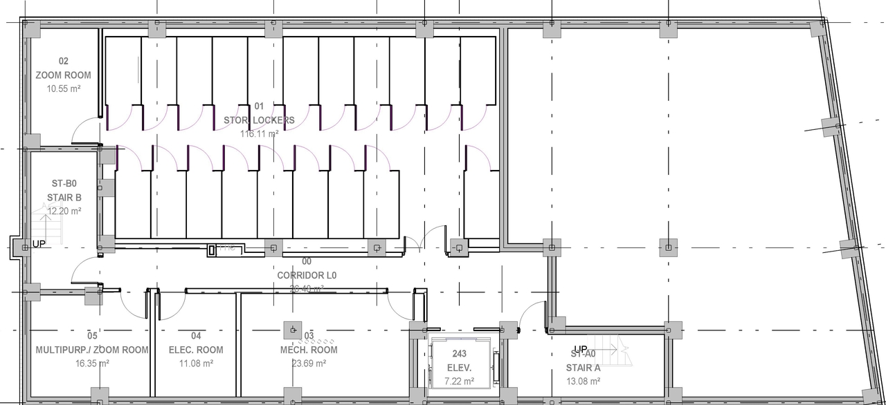
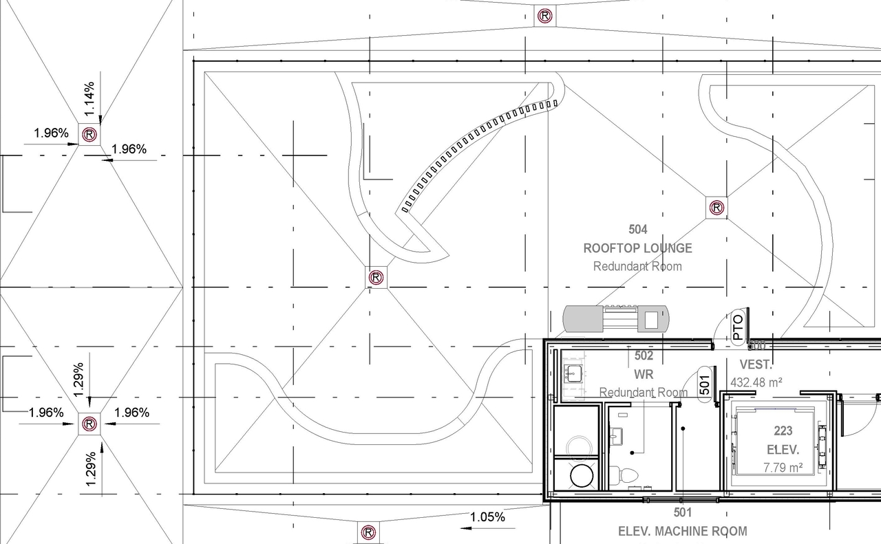
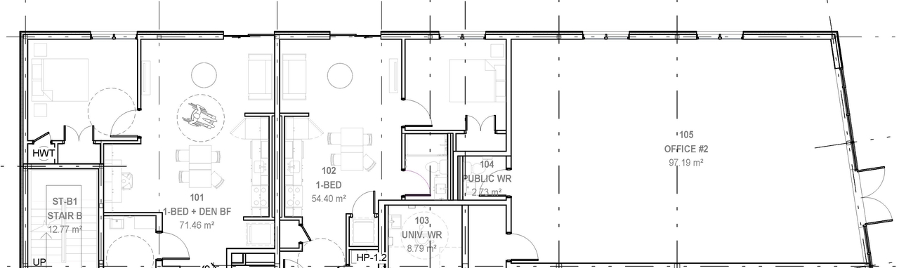
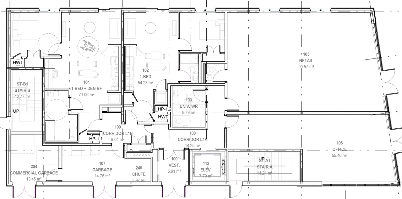
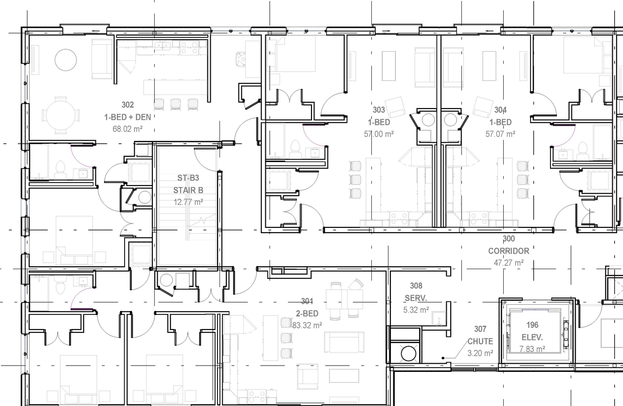
A Site Plan Control application to construct a four-storey mixed-use building with 18 residential units, three office spaces, and 2,121 square metres of gross floor area (GFA) with 28 vehicle parking spaces and 10 bicycle parking spaces.

Status
Inactive (Notice of Decision Sent)

Building Scale (Max.) Based on elevation drawings. Values may be approximate. See sources for exact figures.
Mid-rise · 5 storeys · 19.9 m

Location#

Select a marker to view the address.

Site Plans, Elevations and Floor Plans#

Additional Information#

Date Initiated2022-12-22
WardWard 2 - Laura Dudas

Documents#

TypeDocument
Application Summary2023-03-24 - Application Summary - D07-12-22-0182
Architectural Plans2023-11-09 - Approved Site Plan - D07-12-22-0182
Architectural Plans2023-11-09 - Approved Removals, Erosion and Sediment Control Plan - D07-12-22-0182
Architectural Plans2023-11-09 - Approved Exterior Elevations - D07-12-22-0182
Architectural Plans2023-10-05- SITE SERVICING PLAN - D07-12-22-0182
Architectural Plans2023-10-05- Site Plan - D07-12-22-0182
Architectural Plans2023-09-05 - REMOVALS, EROSION & SEDIMENT CONTROL PLAN - D07-12-22-0182
Architectural Plans2023-09-05 - L-01 LANDSCAPE & PLANTING PLAN - D07-12-22-0182
Architectural Plans2023-08-05 - SITE PLAN - D07-12-22-0182
Architectural Plans2023-07-19 - Site Plan - D07-12-22-0182
Architectural Plans2023-07-13 - SITE PLAN - D07-12-22-0182
Architectural Plans2023-07-13 - REMOVALS, EROSION & SEDIMENT CONTROL PLAN - D07-12-22-0182
Architectural Plans2023-07-13 - LOT GRADING & DRAINAGE PLAN - D07-12-22-0182
Architectural Plans2023-07-13 - BUILDING ELEVATIONS - D07-12-22-0182
Architectural Plans2023-02-06 - SITE PLAN - D07-12-22-0182
Architectural Plans2022-12-22 - Site Plan - D07-12-22-0182
Architectural Plans2022-12-22 - Removals, Grading, Drainage, Erosion & Sediment Control Plan - D07-12-22-0182
Architectural Plans2022-12-22 - Exterior Elevations - D07-12-22-0182
Electrical Plan2022-12-22 - Site Lighting Plans - D07-12-22-0182
Environmental2023-03-20 - Phase Two Environmental Site Assessment - D07-12-22-0182
Environmental2023-03-20 - Phase One Environmental Site Assessment - D07-12-22-0182
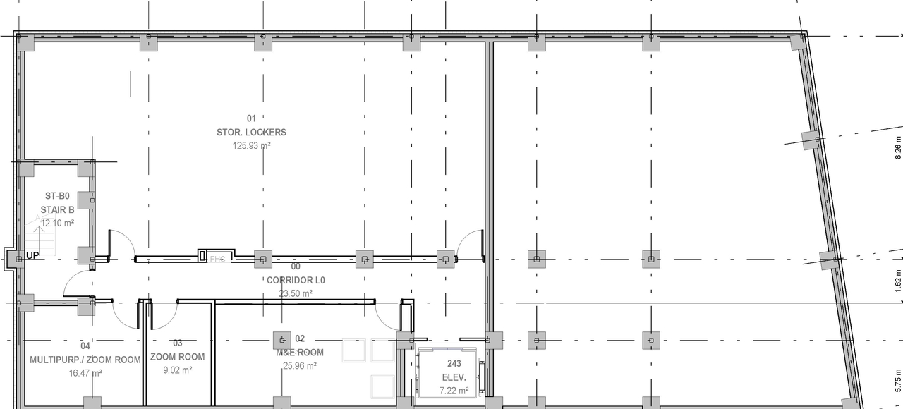
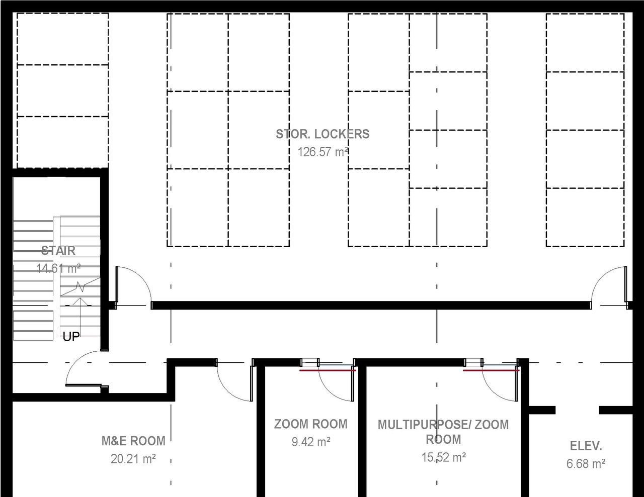
Floor Plan2023-07-19 - Floor Plans - D07-12-22-0182
Floor Plan2023-07-13 - Floor Plans - D07-12-22-0182
Floor Plan2022-12-22 - Floor Plan Levels 4 & Roof - D07-12-22-0182
Floor Plan2022-12-22 - Floor Plan Levels 2 & 3 - D07-12-22-0182
Floor Plan2022-12-22 - Floor Plan Basement and level 1 - D07-12-22-0182
Geotechnical Report2023-11-09 - Approved Roof Lounge Plan & Soil Volumes and Canopy Coverage - D07-12-22-0182
Geotechnical Report2023-11-09 - Approved Grading and Drainage Plan - D07-12-22-0182
Geotechnical Report2023-09-05 - L-02 ROOF LOUNGE PLAN, SOIL VOLUMES & CANOPY COVERAGE - D07-12-22-0182
Geotechnical Report2023-09-05 - GRADING & DRAINAGE PLAN - D07-12-22-0182
Geotechnical Report2023-07-13 - ROOF LOUNGE PLAN, SOIL VOLUMES & CANOPY COVERAGE - D07-12-22-0182
Geotechnical Report2022-12-22 - Geotechnical Investigation - D07-12-22-0182
Landscape Plan2023-11-09 - Approved Landscape & Planting Plan - D07-12-22-0182
Landscape Plan2023-10-05 - LANDSCAPE & PLANTING PLAN - D07-12-22-0182
Landscape Plan2023-07-13 - Landscape Plan Details - D07-12-22-0182
Landscape Plan2023-07-13 - LANDSCAPE & PLANTING PLAN - D07-12-22-0182
Landscape Plan2022-12-22 - Landscape Plans - D07-12-22-0182
Noise Study2023-07-13 - NOISE STUDY - D07-12-22-0182
Noise Study2022-12-22 - Noise Impact Study - D07-12-22-0182
Planning2023-09-05 - PLANNING RATIONALE & DESIGN BRIEF - D07-12-22-0182
Planning2023-07-19 - Planning Rationale and Design Brief - D07-12-22-0182
Planning2023-07-13 - PLANNING RATIONALE & DESIGN BRIEF - D07-12-22-0182
Planning2022-12-22 - Planning Rationale and Design Brief - D07-12-22-0182
Site Servicing2023-11-09 - Approved Site Servicing Plan - D07-12-22-0182
Site Servicing2023-09-05 - SITE SERVICING STUDY - D07-12-22-0182
Site Servicing2023-09-05 - SITE SERVICING PLAN - D07-12-22-0182
Site Servicing2023-07-13 - SITE SERVICING STUDY - D07-12-22-0182
Site Servicing2023-07-13 - SITE SERVICING PLAN - D07-12-22-0182
Site Servicing2023-02-21 - Servicing and Stormwater Management Report - D07-12-22-0182
Site Servicing2023-02-06 - SITE SERVICING PLAN - D07-12-22-0182
Site Servicing2022-12-22 - Site Servicing Plan - D07-12-22-0182
Surveying2023-07-13 - SURVEYORS NOTE - D07-12-22-0182
Surveying2022-12-22 - Topographical Survey - D07-12-22-0182
Transportation Analysis2022-12-22 - Transportation Impact Assessment Scoping Report - D07-12-22-0182
Tree Information and Conservation2022-12-22 - Tree Conservation Report - D07-12-22-0182
2023-11-09 - Signed Delegated Authority Report - D07-12-22-0182
2023-11-09 - Approved Details - D07-12-22-0182
2023-09-05 - L-03 DETAILS - D07-12-22-0182
2023-09-05 - BASEMENT & LEVEL 01 - D07-12-22-0182
2023-07-13 - PROPOSED DEVELOPMENT AND CONSERVED VEGETATION - D07-12-22-0182
2023-02-06 - REMOVALS GRADING DRAINAGE EROSION AND SEDIMENT CONTROL - D07-12-22-0182
2022-12-22 - Phase 1 Enviromental Site Assessment - D07-12-22-0182