2700 Swansea Cres.#
Last updated: 2025-09-11 · ID: D07-12-22-0179
Summary#
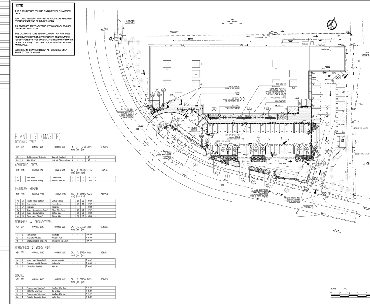
Proposal to construct addition to the existing 2-storey medium manufacturing facility at 2700 Swansea Crescent, approximately 1,540SM large and will be constructed above the parking lot as on addition to the south side of the second story of the existing facility. The purpose of this addition is to provide more research and office space and to expand current operations. No change to the existing site access is proposed, and the parking ls not significantly altered.
Status
Post Approval (Request for Agreement Received)
Building Scale (Max.)
Based on elevation drawings. Values may be approximate. See sources for exact figures.
Low-rise · 2 storeys
· 7.55 m
Location#
Select a marker to view the address.
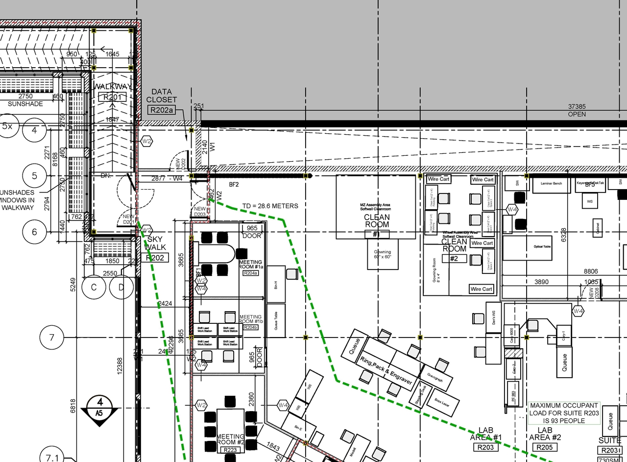
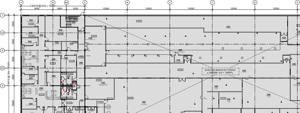
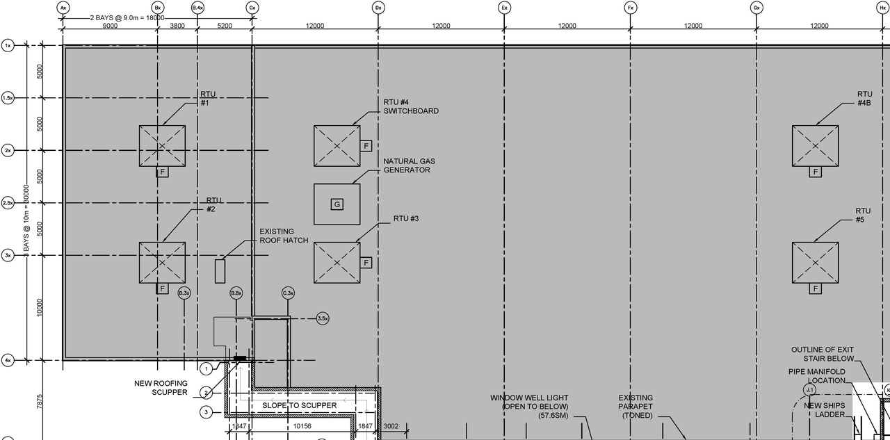
Site Plans, Elevations and Floor Plans#
Additional Information#
| Date Initiated | 2022-12-21 |
| Ward | Ward 10 - Jessica Bradley |






