3430 Carling Ave.#
Last updated: 2025-02-11 · ID: D07-12-22-0177
Summary#
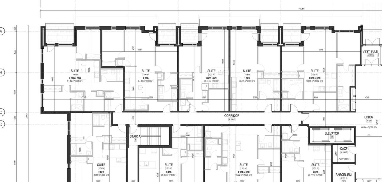
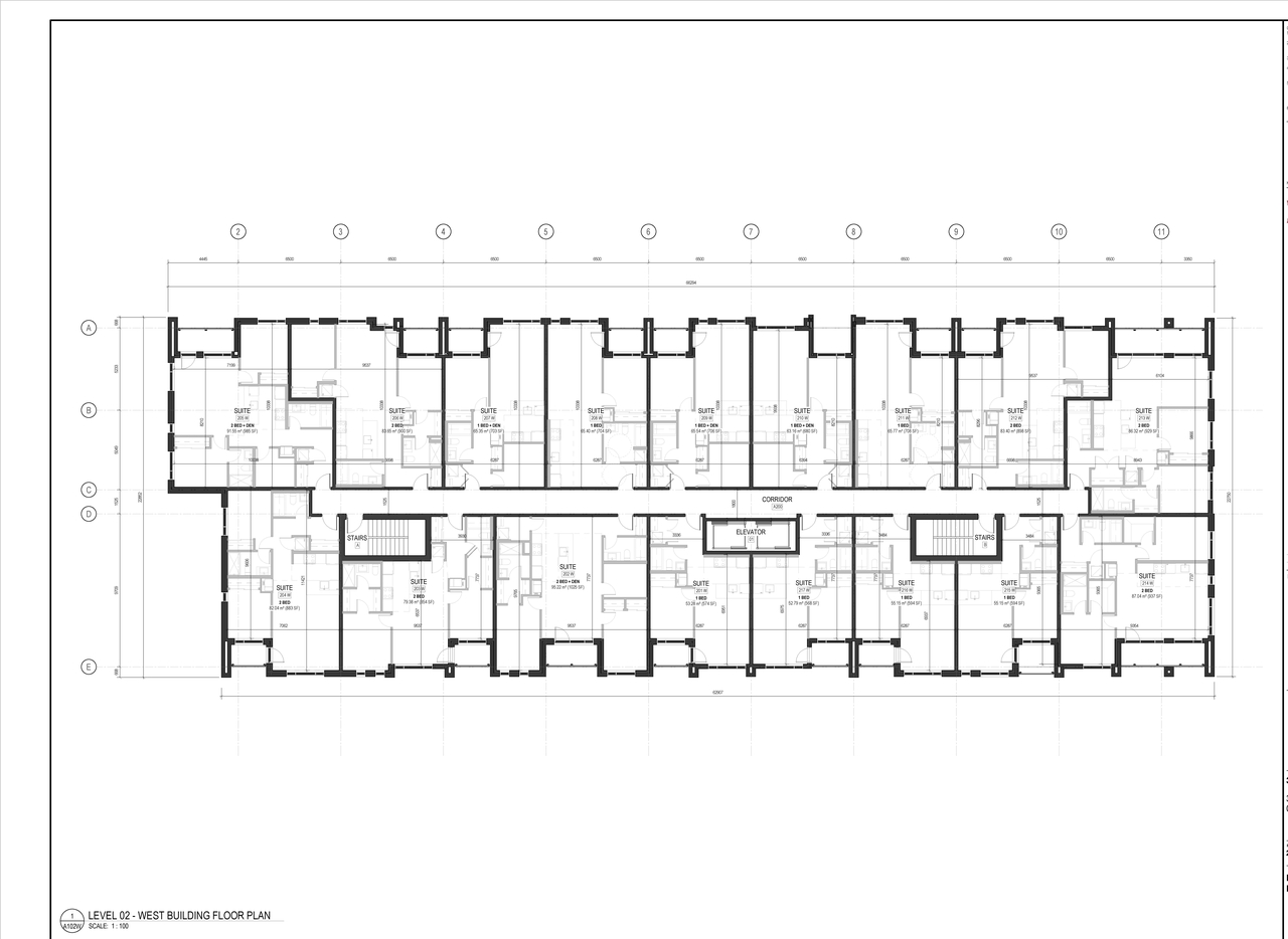
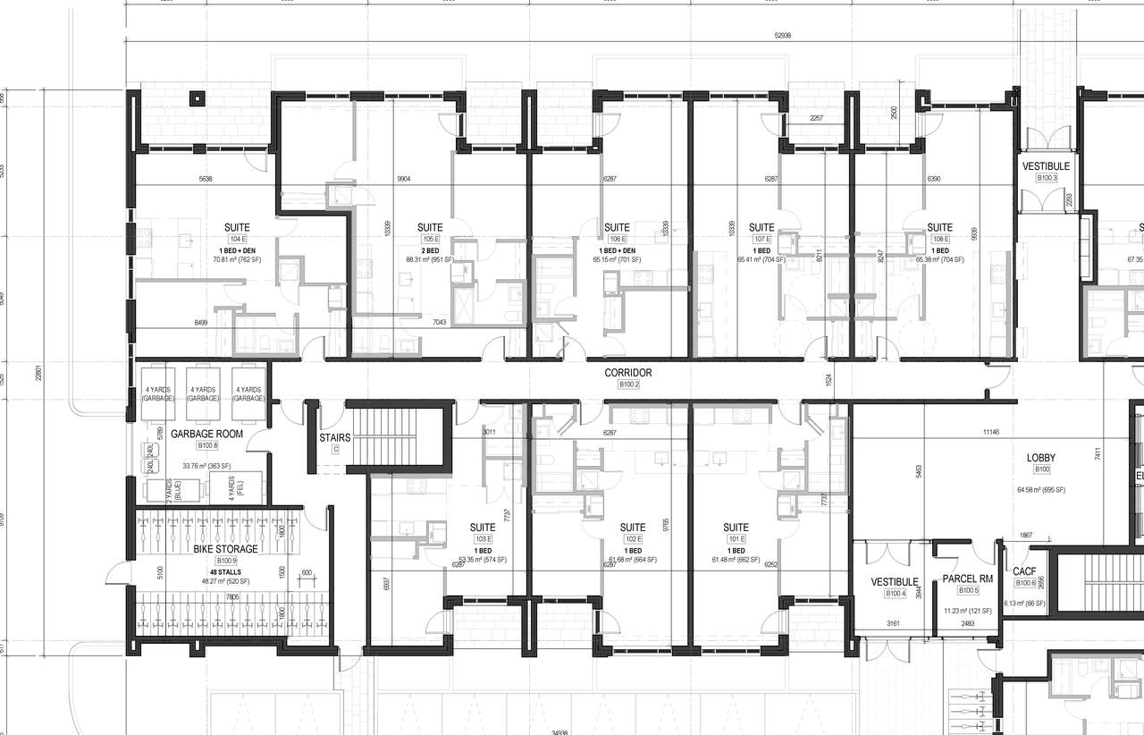
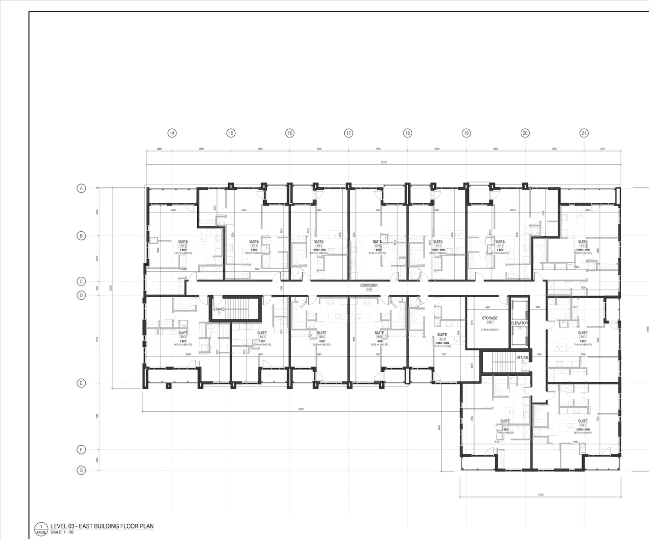
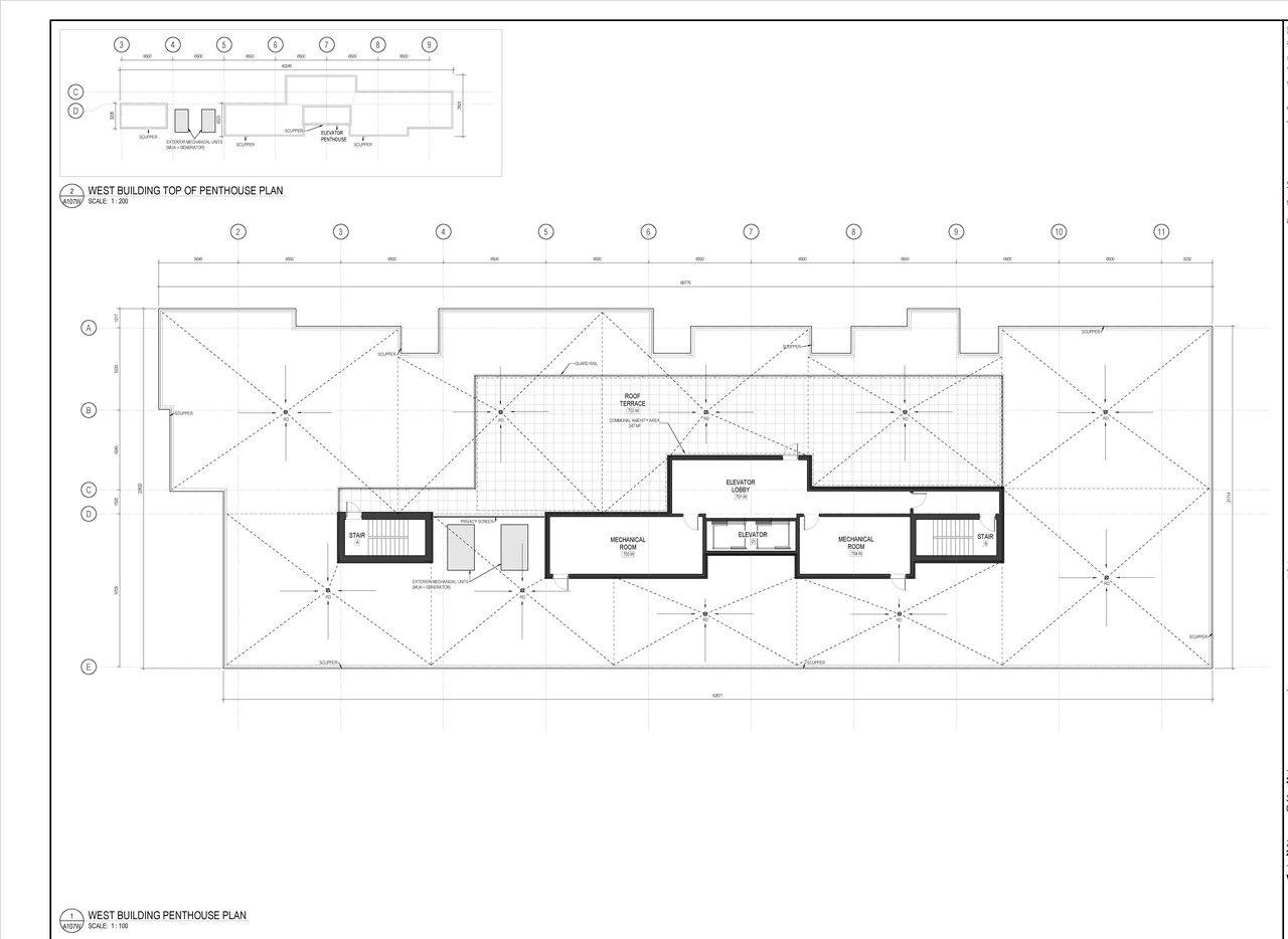
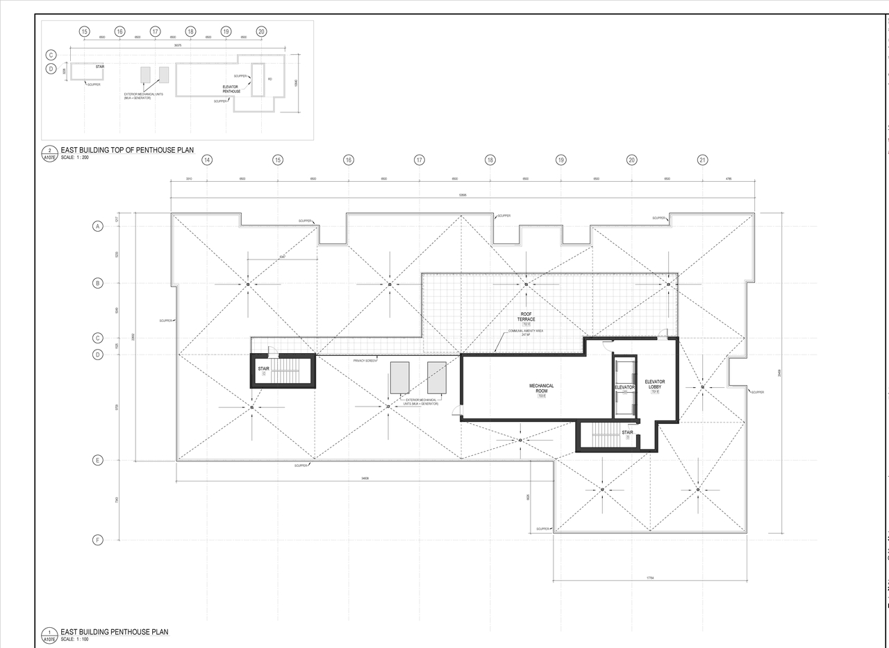
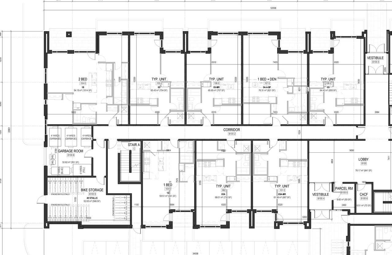
Seeks to construct two (2) storey mid rise , residential apartment buildings,containing a total 186 dwelling units, The proposal development will incorporate a mix of underground parking, and limited surface located at the rear of the building
Status
Post Approval (Receipt of Agreement from Owner Pending)
Building Scale (Max.)
Based on elevation drawings. Values may be approximate. See sources for exact figures.
Mid-rise · 6 storeys
· 24.47 m
Renders#
Location#
Select a marker to view the address.
Site Plans, Elevations and Floor Plans#
Additional Information#
| Date Initiated | 2022-12-20 |
| Ward | Ward 7 - Theresa Kavanagh |














