Ottawa Development Projects

75 Michael Cowpland Dr.#

Last updated: 2025-01-29 · ID: D07-12-22-0174

Summary#

A Site Plan Control application to construct six low-rise self-storage/warehouse buildings with a gross floor area of 8,577 m². One building will contain two-storeys with an office and self-storage, and five buildings will be one storey with only self-storage units. Two vehicular accesses and 54 parking spaces are proposed.

Status
Inactive (Agreement Registered - Final Legal Clearance Given)

Building Scale (Max.) Based on elevation drawings. Values may be approximate. See sources for exact figures.
Low-rise · 2 storeys · 4.41 m

Renders#

Location#

Select a marker to view the address.

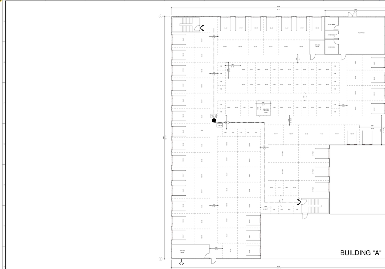
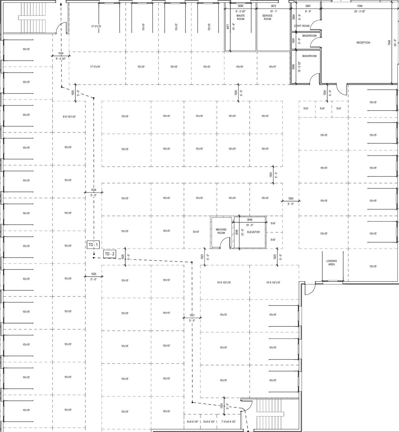
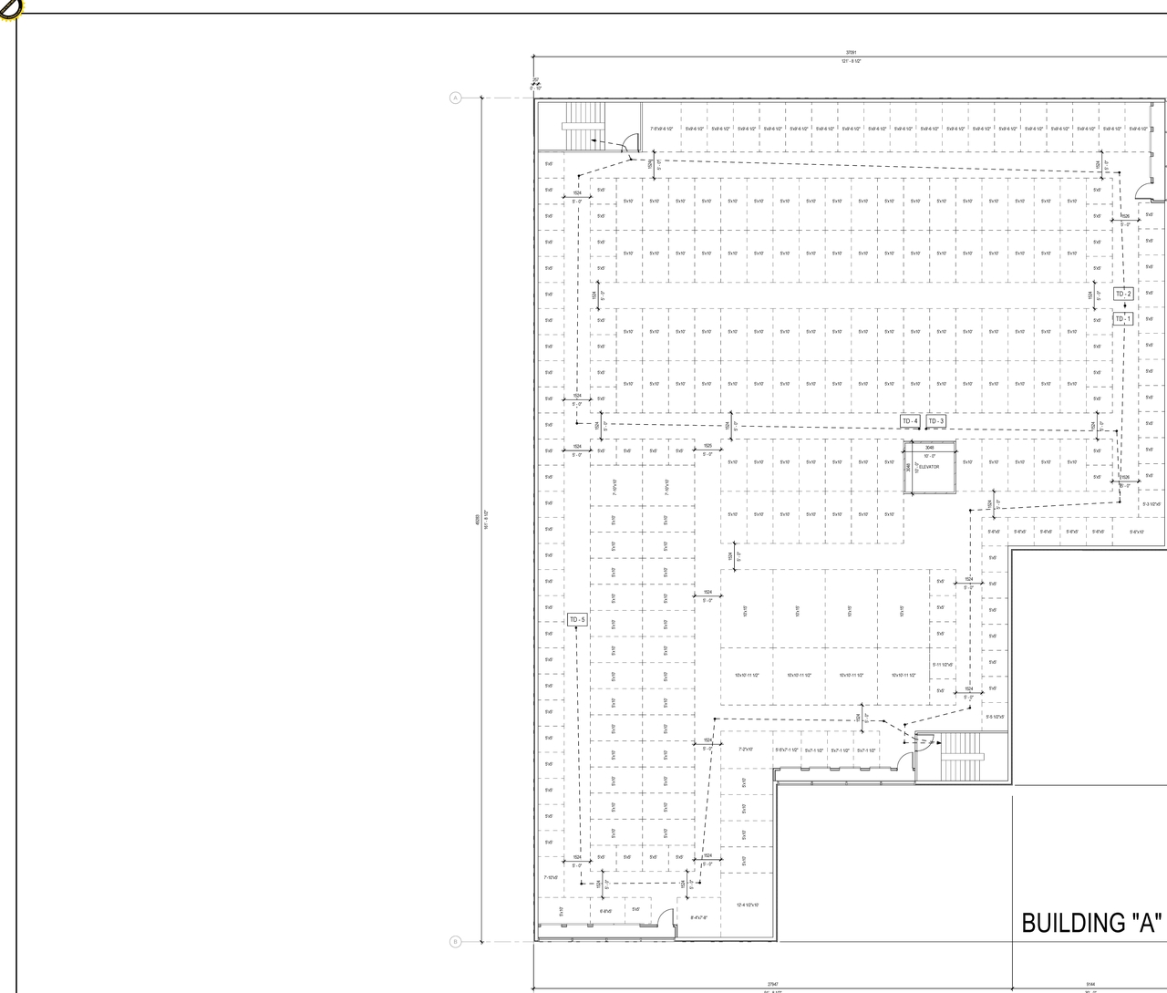
Site Plans, Elevations and Floor Plans#

Additional Information#

Date Initiated2022-12-15
WardWard 23 - Allan Hubley

Documents#

TypeDocument
Application Summary2023-01-03 - Application Summary - D07-12-22-0174
Architectural Plans2024-07-08 - APPROVED Site Plan - General - D07-12-22-0174
Architectural Plans2024-07-08 - APPROVED Site Plan - Details - D07-12-22-0174
Architectural Plans2024-07-08 - APPROVED Sediment - Erosion Plan - D07-12-22-0174
Architectural Plans2024-07-08 - APPROVED Ponding Plan - D07-12-22-0174
Architectural Plans2024-07-08 - APPROVED General Plan of Services - D07-12-22-0174
Architectural Plans2024-07-08 - APPROVED Exterior Elevations - Buildings B to F - D07-12-22-0174
Architectural Plans2024-07-08 - APPROVED Exterior Elevations - Building A - D07-12-22-0174
Architectural Plans2023-12-23 - Site Plan Details - D07-12-22-0174
Architectural Plans2023-12-23 - Site Plan - D07-12-22-0174
Architectural Plans2023-11-29 - General Site Plan and Details - D07-12-22-0174
Architectural Plans2023-09-28 - Site Plan and Site Plan Details - D07-12-22-0174
Architectural Plans2023-09-28 - Memo - Site Servicing Plan Review - D07-12-22-0174
Architectural Plans2023-07-21 - General Site Plan & Details - D07-12-22-0174
Architectural Plans2023-03-17 - Architectural Drawing Set - D07-12-22-0174
Architectural Plans2022-12-19 - General Site Plan - D07-12-22-0174
Civil Engineering Report2023-12-23 - Civil Plans - D07-12-22-0174
Civil Engineering Report2023-11-29 - Civil Engineering Drawings - D07-12-22-0174
Civil Engineering Report2023-09-28 - Civil Drawings - D07-12-22-0174
Civil Engineering Report2023-07-21 - Civil Drawings - D07-12-22-0174
Civil Engineering Report2023-03-17 - Civil Plans - D07-12-22-0174
Electrical Plan2022-12-19 - Site Lighting Plan -D07-12-22-0174
Electrical Plan2022-12-19 - Site Lighting Certification Letter - D07-12-22-0174
Environmental2022-12-19 - Phase 1 Environmental Site Assessment - D07-12-22-0174
Floor Plan2023-12-23 - Building A Floor Plans and Elevations - D07-12-22-0174
Floor Plan2023-07-21 - Elevations and Floor Plans - D07-12-22-0174
Floor Plan2022-12-19 - Exterior Elevations and Floor Plans - D07-12-22-0174
Geotechnical Report2024-07-08 - APPROVED Grading Plan - D07-12-22-0174
Geotechnical Report2023-12-23 - Grading and Site Servicing Plan Review - D07-12-22-0174
Geotechnical Report2022-12-19 - Geotechnical Investigation - D07-12-22-0174
Landscape Plan2023-07-21 - Landscape Plan - D07-12-22-0174
Noise Study2023-07-21 - Stationary Noise Assessment - D07-12-22-0174
Noise Study2022-12-19 - Stationary Noise Assessment - D07-12-22-0174
Planning2022-12-19 - Planning Rationale and Design Brief - D07-12-22-0174
Shadow Study2023-09-28 - Letter to Fire Services - D07-12-22-0174
Site Servicing2023-12-23 - Site Servicing Brief - D07-12-22-0174
Site Servicing2023-11-29 - Site Servicing Plan Review - D07-12-22-0174
Site Servicing2023-11-29 - Site Servicing Brief - D07-12-22-0174
Site Servicing2023-09-28 - Site Servicing Brief - D07-12-22-0174
Site Servicing2023-07-21 - Site Servicing Brief - D07-12-22-0174
Site Servicing2023-03-17 - Site Servicing Brief - D07-12-22-0174
Site Servicing2022-12-19 - Site Servicing Brief - D07-12-22-0174
Site Servicing2022-12-19 - Servicing Cross Sections Storm Drainage Area Ponding Sediment Erosion Plans - D07-12
Stormwater Management2024-07-08 - APPROVED Storm Drainage Area Plan - D07-12-22-0174
Surveying2022-12-19 - Topographical Plan of Survey - D07-12-22-0174
Tree Information and Conservation2024-07-08 - APPROVED Tree Conservation Report and Landscape Plan - D07-12-22-0174
Tree Information and Conservation2023-03-17 - Landscape Plan and Tree Conservation Report - D07-12-22-0174
Tree Information and Conservation2022-12-19 - Landscape Plan and Tree Conservation Report - D07-12-22-0174
2024-07-09 - SIGNED Delegated Authority Report - D07-12-22-0174
2024-07-08 - APPROVED Grande Retaining Wall Design - D07-12-22-0174
2024-07-08 - APPROVED Details and Notes - D07-12-22-0174
2024-07-08 - APPROVED Cross Sections - D07-12-22-0174
2023-11-29 - Memo - Geotechnical Response to City Comments - D07-12-22-0174
2023-11-29 - Grande Retaining Wall Design - D07-12-22-0174
2023-09-28 - Grande Retaining Wall Design -D07-12-22-0174
2023-07-21 - Grande Retaining Wall Design - D07-12-22-0174
2023-03-17 - Grande Retaining Wall Design - D07-12-22-0174