401 Smyth Rd.#
Last updated: 2024-07-25 · ID: D07-12-22-0170
Summary#
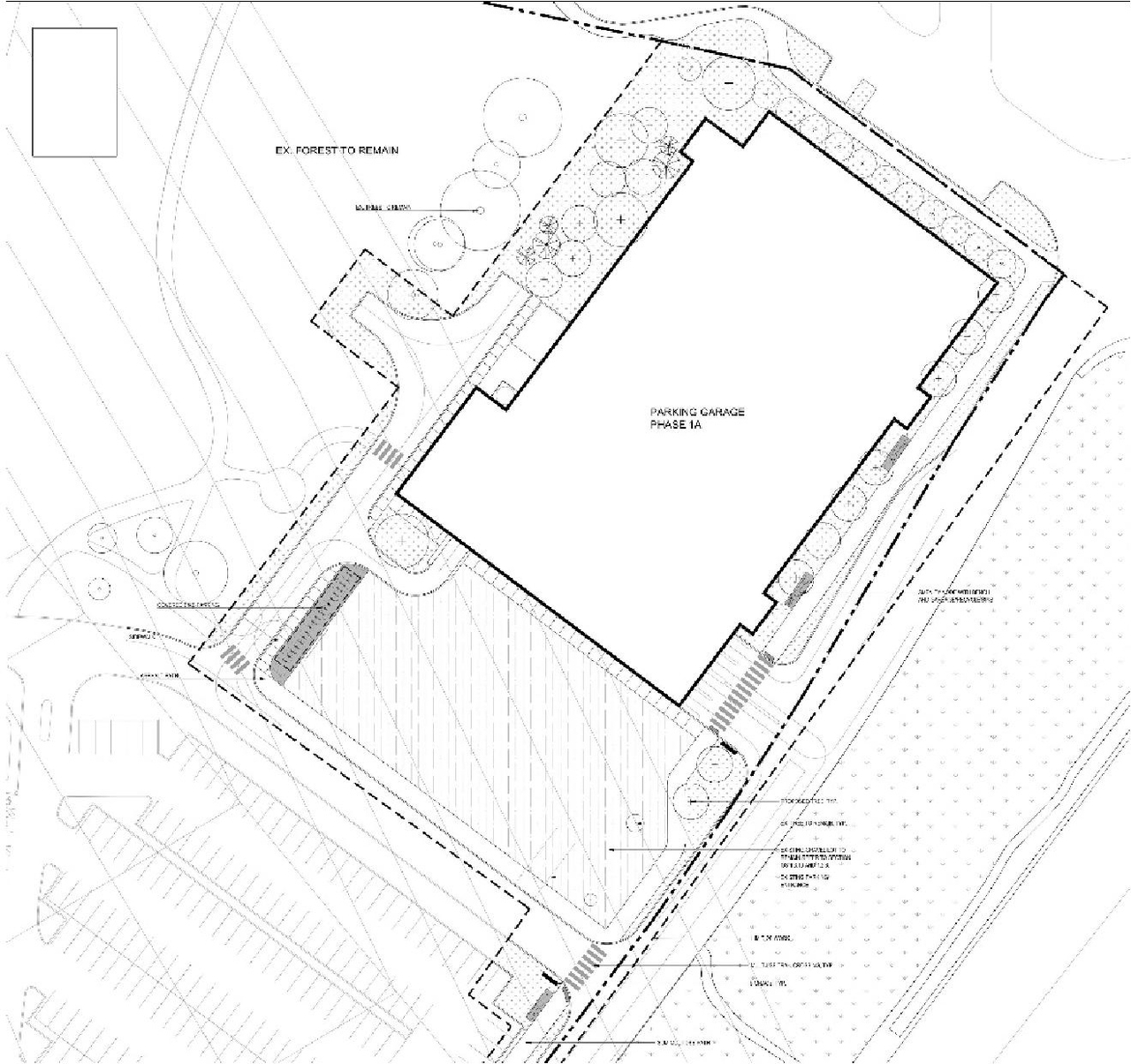
Seven storey parking structure with 1050 spots
Status
Post Approval (Receipt of Agreement from Owner Pending)
Building Scale (Max.)
Based on elevation drawings. Values may be approximate. See sources for exact figures.
Low-rise · 1 storey
Data Quality Note
Text was extracted using optical character recognition. This may introduce artifacts or misreads.
· 0.9 m
Data Quality Note
Height was partially estimated using visual scale. This may be approximate.
Data Quality Note
Text was extracted using optical character recognition. This may introduce artifacts or misreads.
Renders#
Location#
Select a marker to view the address.
Site Plans, Elevations and Floor Plans#
Additional Information#
| Date Initiated | 2022-12-13 |
| Ward | Ward 18 - Marty Carr |








