Ottawa Development Projects

520 Preston St./930 Carling Ave.#

Last updated: 2025-01-15 · ID: D07-12-22-0168

Summary#

The development proposed are Phase 3 and Phase 4 of The Ottawa Hospital Master Site Plan: Phase 3 is the CUP (Central Utility Plant containing electrical, heating, and cooling equipment, located at the rear of the hospital - Phase 4 is the hospital main building consists of 2-storey podium, two towers (8-12 storey) and pavilion flanking main entrance)

Status
Inactive (Notice of Decision Sent)

Building Scale (Max.) Based on elevation drawings. Values may be approximate. See sources for exact figures.
High-rise · 14 storeys · 66.96 m

Renders#

  • Rendering of building from page 7 of the file '2023-08-03 - Design Drawings - D07-12-22-0168'
  • Rendering of building from page 19 of the file '2023-08-03 - Design Drawings - D07-12-22-0168'
  • Rendering of building from page 72 of the file '2023-04-17 - Design Brief - D07-12-22-0168'
  • Rendering of building from page 20 of the file '2023-08-03 - Design Drawings - D07-12-22-0168'
  • Rendering of building from page 53 of the file '2023-01-12 Urban Design Review Panel Formal Submission D07-12-22-0168'
  • Rendering of building from page 36 of the file '2023-01-12 Urban Design Review Panel Formal Submission D07-12-22-0168'
  • Rendering of building from page 79 of the file '2023-04-17 - Design Brief - D07-12-22-0168'
  • Rendering of building from page 16 of the file '2022-12-07 - Site Plan Control and FLUDA Design Drawings - D07-12-22-0168'
  • Rendering of building from page 21 of the file '2023-08-03 - Design Drawings - D07-12-22-0168'
  • Rendering of building from page 47 of the file '2023-01-12 Urban Design Review Panel Formal Submission D07-12-22-0168'
  • Rendering of building from page 17 of the file '2023-01-12 Urban Design Review Panel Formal Submission D07-12-22-0168'
  • Rendering of building from page 25 of the file '2023-01-12 Urban Design Review Panel Formal Submission D07-12-22-0168'
  • Rendering of building from page 80 of the file '2023-04-17 - Design Brief - D07-12-22-0168'
  • Rendering of building from page 23 of the file '2023-08-03 - Design Drawings - D07-12-22-0168'
  • Rendering of building from page 43 of the file '2023-01-12 Urban Design Review Panel Formal Submission D07-12-22-0168'
  • Rendering of building from page 13 of the file '2023-01-12 Urban Design Review Panel Formal Submission D07-12-22-0168'
  • Rendering of building from page 24 of the file '2023-08-03 - Design Drawings - D07-12-22-0168'
  • Rendering of building from page 70 of the file '2022-12-07 - Design Brief - D07-12-22-0168'
  • Rendering of building from page 35 of the file '2023-08-03 - Design Drawings - D07-12-22-0168'
  • Rendering of building from page 16 of the file '2023-01-12 Urban Design Review Panel Formal Submission D07-12-22-0168'
  • Rendering of building from page 22 of the file '2023-08-03 - Design Drawings - D07-12-22-0168'
  • Rendering of building from page 34 of the file '2023-01-12 Urban Design Review Panel Formal Submission D07-12-22-0168'
  • Rendering of building from page 40 of the file '2023-01-12 Urban Design Review Panel Formal Submission D07-12-22-0168'
  • Rendering of building from page 48 of the file '2023-01-12 Urban Design Review Panel Formal Submission D07-12-22-0168'
  • Rendering of building from page 23 of the file '2023-01-12 Urban Design Review Panel Formal Submission D07-12-22-0168'
  • Rendering of building from page 73 of the file '2023-04-17 - Design Brief - D07-12-22-0168'
  • Rendering of building from page 27 of the file '2023-08-03 - Design Drawings - D07-12-22-0168'
  • Rendering of building from page 71 of the file '2023-04-17 - Design Brief - D07-12-22-0168'
  • Rendering of building from page 24 of the file '2023-01-12 Urban Design Review Panel Formal Submission D07-12-22-0168'
  • Rendering of building from page 27 of the file '2023-01-12 Urban Design Review Panel Formal Submission D07-12-22-0168'
  • Rendering of building from page 81 of the file '2023-04-17 - Design Brief - D07-12-22-0168'
  • Rendering of building from page 46 of the file '2023-01-12 Urban Design Review Panel Formal Submission D07-12-22-0168'
  • Rendering of building from page 40 of the file '2023-04-17 - Design Brief - D07-12-22-0168'
  • Rendering of building from page 28 of the file '2023-08-03 - Design Drawings - D07-12-22-0168'
  • Rendering of building from page 18 of the file '2023-08-03 - Design Drawings - D07-12-22-0168'
  • Rendering of building from page 1 of the file '2023-08-03 - Design Drawings - D07-12-22-0168'
  • Rendering of building from page 75 of the file '2023-04-17 - Design Brief - D07-12-22-0168'
  • Rendering of building from page 40 of the file '2023-04-17 - Design Brief - D07-12-22-0168'
  • Rendering of building from page 22 of the file '2023-08-03 - Design Drawings - D07-12-22-0168'
  • Rendering of building from page 74 of the file '2023-04-17 - Design Brief - D07-12-22-0168'
  • Rendering of building from page 82 of the file '2023-04-17 - Design Brief - D07-12-22-0168'
  • Rendering of building from page 42 of the file '2023-01-12 Urban Design Review Panel Formal Submission D07-12-22-0168'
  • Rendering of building from page 75 of the file '2023-04-17 - Design Brief - D07-12-22-0168'
  • Rendering of building from page 44 of the file '2023-04-17 - Design Brief - D07-12-22-0168'
  • Rendering of building from page 73 of the file '2023-04-17 - Design Brief - D07-12-22-0168'
  • Rendering of building from page 41 of the file '2023-01-12 Urban Design Review Panel Formal Submission D07-12-22-0168'
  • Rendering of building from page 44 of the file '2023-04-17 - Design Brief - D07-12-22-0168'
  • Rendering of building from page 84 of the file '2023-04-17 - Design Brief - D07-12-22-0168'
  • Rendering of building from page 28 of the file '2023-01-12 Urban Design Review Panel Formal Submission D07-12-22-0168'
  • Rendering of building from page 43 of the file '2023-04-17 - Design Brief - D07-12-22-0168'
  • Rendering of building from page 42 of the file '2023-04-17 - Design Brief - D07-12-22-0168'
  • Rendering of building from page 26 of the file '2023-01-12 Urban Design Review Panel Formal Submission D07-12-22-0168'
  • Rendering of building from page 74 of the file '2023-04-17 - Design Brief - D07-12-22-0168'
  • Rendering of building from page 22 of the file '2023-08-03 - Design Drawings - D07-12-22-0168'
  • Rendering of building from page 29 of the file '2023-08-03 - Design Drawings - D07-12-22-0168'
  • Rendering of building from page 30 of the file '2023-08-03 - Design Drawings - D07-12-22-0168'
  • Rendering of building from page 21 of the file '2023-08-03 - Design Drawings - D07-12-22-0168'
  • Rendering of building from page 32 of the file '2023-08-03 - Design Drawings - D07-12-22-0168'
  • Rendering of building from page 21 of the file '2023-08-03 - Design Drawings - D07-12-22-0168'
  • Rendering of building from page 30 of the file '2023-08-03 - Design Drawings - D07-12-22-0168'
  • Rendering of building from page 7 of the file '2023-08-03 - Design Drawings - D07-12-22-0168'
  • Rendering of building from page 19 of the file '2023-08-03 - Design Drawings - D07-12-22-0168'
  • Rendering of building from page 72 of the file '2023-04-17 - Design Brief - D07-12-22-0168'
  • Rendering of building from page 20 of the file '2023-08-03 - Design Drawings - D07-12-22-0168'
  • Rendering of building from page 53 of the file '2023-01-12 Urban Design Review Panel Formal Submission D07-12-22-0168'
  • Rendering of building from page 36 of the file '2023-01-12 Urban Design Review Panel Formal Submission D07-12-22-0168'
  • Rendering of building from page 79 of the file '2023-04-17 - Design Brief - D07-12-22-0168'
  • Rendering of building from page 16 of the file '2022-12-07 - Site Plan Control and FLUDA Design Drawings - D07-12-22-0168'
  • Rendering of building from page 21 of the file '2023-08-03 - Design Drawings - D07-12-22-0168'
  • Rendering of building from page 47 of the file '2023-01-12 Urban Design Review Panel Formal Submission D07-12-22-0168'
  • Rendering of building from page 17 of the file '2023-01-12 Urban Design Review Panel Formal Submission D07-12-22-0168'
  • Rendering of building from page 25 of the file '2023-01-12 Urban Design Review Panel Formal Submission D07-12-22-0168'
  • Rendering of building from page 80 of the file '2023-04-17 - Design Brief - D07-12-22-0168'
  • Rendering of building from page 23 of the file '2023-08-03 - Design Drawings - D07-12-22-0168'
  • Rendering of building from page 43 of the file '2023-01-12 Urban Design Review Panel Formal Submission D07-12-22-0168'
  • Rendering of building from page 13 of the file '2023-01-12 Urban Design Review Panel Formal Submission D07-12-22-0168'
  • Rendering of building from page 24 of the file '2023-08-03 - Design Drawings - D07-12-22-0168'
  • Rendering of building from page 70 of the file '2022-12-07 - Design Brief - D07-12-22-0168'
  • Rendering of building from page 35 of the file '2023-08-03 - Design Drawings - D07-12-22-0168'
  • Rendering of building from page 16 of the file '2023-01-12 Urban Design Review Panel Formal Submission D07-12-22-0168'
  • Rendering of building from page 22 of the file '2023-08-03 - Design Drawings - D07-12-22-0168'
  • Rendering of building from page 34 of the file '2023-01-12 Urban Design Review Panel Formal Submission D07-12-22-0168'
  • Rendering of building from page 40 of the file '2023-01-12 Urban Design Review Panel Formal Submission D07-12-22-0168'
  • Rendering of building from page 48 of the file '2023-01-12 Urban Design Review Panel Formal Submission D07-12-22-0168'
  • Rendering of building from page 23 of the file '2023-01-12 Urban Design Review Panel Formal Submission D07-12-22-0168'
  • Rendering of building from page 73 of the file '2023-04-17 - Design Brief - D07-12-22-0168'
  • Rendering of building from page 27 of the file '2023-08-03 - Design Drawings - D07-12-22-0168'
  • Rendering of building from page 71 of the file '2023-04-17 - Design Brief - D07-12-22-0168'
  • Rendering of building from page 24 of the file '2023-01-12 Urban Design Review Panel Formal Submission D07-12-22-0168'
  • Rendering of building from page 27 of the file '2023-01-12 Urban Design Review Panel Formal Submission D07-12-22-0168'
  • Rendering of building from page 81 of the file '2023-04-17 - Design Brief - D07-12-22-0168'
  • Rendering of building from page 46 of the file '2023-01-12 Urban Design Review Panel Formal Submission D07-12-22-0168'
  • Rendering of building from page 40 of the file '2023-04-17 - Design Brief - D07-12-22-0168'
  • Rendering of building from page 28 of the file '2023-08-03 - Design Drawings - D07-12-22-0168'
  • Rendering of building from page 18 of the file '2023-08-03 - Design Drawings - D07-12-22-0168'
  • Rendering of building from page 1 of the file '2023-08-03 - Design Drawings - D07-12-22-0168'
  • Rendering of building from page 75 of the file '2023-04-17 - Design Brief - D07-12-22-0168'
  • Rendering of building from page 40 of the file '2023-04-17 - Design Brief - D07-12-22-0168'
  • Rendering of building from page 22 of the file '2023-08-03 - Design Drawings - D07-12-22-0168'
  • Rendering of building from page 74 of the file '2023-04-17 - Design Brief - D07-12-22-0168'
  • Rendering of building from page 82 of the file '2023-04-17 - Design Brief - D07-12-22-0168'
  • Rendering of building from page 42 of the file '2023-01-12 Urban Design Review Panel Formal Submission D07-12-22-0168'
  • Rendering of building from page 75 of the file '2023-04-17 - Design Brief - D07-12-22-0168'
  • Rendering of building from page 44 of the file '2023-04-17 - Design Brief - D07-12-22-0168'
  • Rendering of building from page 73 of the file '2023-04-17 - Design Brief - D07-12-22-0168'
  • Rendering of building from page 41 of the file '2023-01-12 Urban Design Review Panel Formal Submission D07-12-22-0168'
  • Rendering of building from page 44 of the file '2023-04-17 - Design Brief - D07-12-22-0168'
  • Rendering of building from page 84 of the file '2023-04-17 - Design Brief - D07-12-22-0168'
  • Rendering of building from page 28 of the file '2023-01-12 Urban Design Review Panel Formal Submission D07-12-22-0168'
  • Rendering of building from page 43 of the file '2023-04-17 - Design Brief - D07-12-22-0168'
  • Rendering of building from page 42 of the file '2023-04-17 - Design Brief - D07-12-22-0168'
  • Rendering of building from page 26 of the file '2023-01-12 Urban Design Review Panel Formal Submission D07-12-22-0168'
  • Rendering of building from page 74 of the file '2023-04-17 - Design Brief - D07-12-22-0168'
  • Rendering of building from page 22 of the file '2023-08-03 - Design Drawings - D07-12-22-0168'
  • Rendering of building from page 29 of the file '2023-08-03 - Design Drawings - D07-12-22-0168'
  • Rendering of building from page 30 of the file '2023-08-03 - Design Drawings - D07-12-22-0168'
  • Rendering of building from page 21 of the file '2023-08-03 - Design Drawings - D07-12-22-0168'
  • Rendering of building from page 32 of the file '2023-08-03 - Design Drawings - D07-12-22-0168'
  • Rendering of building from page 21 of the file '2023-08-03 - Design Drawings - D07-12-22-0168'
  • Rendering of building from page 30 of the file '2023-08-03 - Design Drawings - D07-12-22-0168'

Location#

Select a marker to view the address.

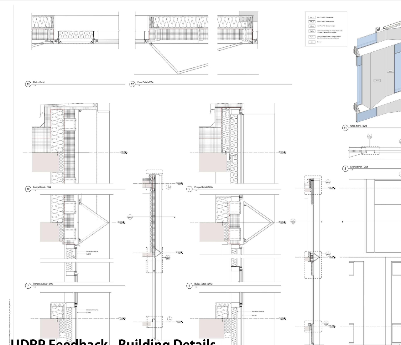
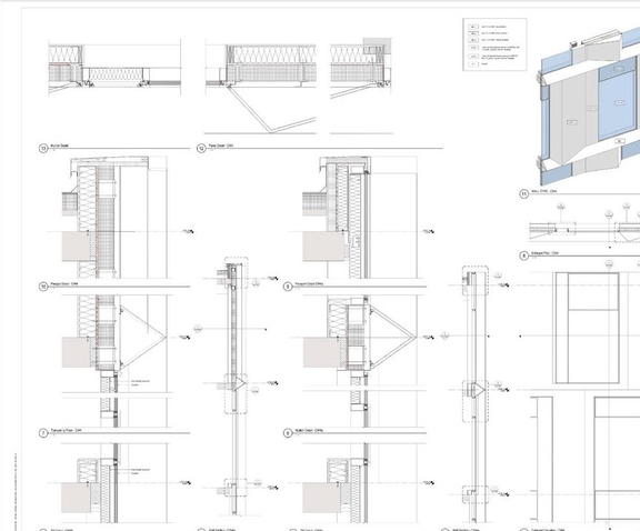
Site Plans, Elevations and Floor Plans#

  • Image from page 18 of the file '2023-01-12 Urban Design Review Panel Formal Submission D07-12-22-0168'
  • Image from page 18 of the file '2023-01-12 Urban Design Review Panel Formal Submission D07-12-22-0168'
  • Image from page 31 of the file '2023-08-03 - Design Drawings - D07-12-22-0168'
  • Image from page 18 of the file '2023-01-12 Urban Design Review Panel Formal Submission D07-12-22-0168'
  • Image from page 18 of the file '2023-01-12 Urban Design Review Panel Formal Submission D07-12-22-0168'
  • Image from page 84 of the file '2022-12-07 - Design Brief - D07-12-22-0168'
  • Image from page 37 of the file '2023-04-17 - Design Brief - D07-12-22-0168'
  • Image from page 16 of the file '2023-08-03 - Design Drawings - D07-12-22-0168'
  • Image from page 22 of the file '2023-01-12 Urban Design Review Panel Formal Submission D07-12-22-0168'
  • Image from page 21 of the file '2023-01-12 Urban Design Review Panel Formal Submission D07-12-22-0168'
  • Image from page 45 of the file '2023-01-12 Urban Design Review Panel Formal Submission D07-12-22-0168'
  • Image from page 10 of the file '2022-12-07 - Site Plan Control and FLUDA Design Drawings - D07-12-22-0168'
  • Image from page 23 of the file '2022-12-07 - Site Plan Control and FLUDA Design Drawings - D07-12-22-0168'
  • Image from page 25 of the file '2022-12-07 - Site Plan Control and FLUDA Design Drawings - D07-12-22-0168'
  • Construction site plan for project from page 46 of the file '2022-12-07 - Design Brief - D07-12-22-0168'
  • Construction site plan for project from page 8 of the file '2023-08-03 - Design Drawings - D07-12-22-0168'
  • Construction site plan for project from page 31 of the file '2023-08-03 - Design Drawings - D07-12-22-0168'
  • Construction site plan for project from page 9 of the file '2023-04-17 - Design Drawings - D07-12-22-0168'
  • Construction site plan for project from page 9 of the file '2023-08-03 - Design Drawings - D07-12-22-0168'
  • Construction site plan for project from page 6 of the file '2022-12-07 - Site Plan Control and FLUDA Design Drawings - D07-12-22-0168'
  • Construction site plan for project from page 7 of the file '2023-08-03 - Design Drawings - D07-12-22-0168'
  • Construction site plan for project from page 4 of the file '2023-08-03 - Design Drawings - D07-12-22-0168'
  • Construction site plan for project from page 83 of the file '2022-12-07 - Design Brief - D07-12-22-0168'
  • Construction site plan for project from page 7 of the file '2022-12-07 - Site Plan Control and FLUDA Design Drawings - D07-12-22-0168'
  • Construction site plan for project from page 77 of the file '2022-12-07 - Design Brief - D07-12-22-0168'
  • Construction site plan for project from page 46 of the file '2022-12-07 - Design Brief - D07-12-22-0168'
  • Construction site plan for project from page 47 of the file '2023-04-17 - Design Brief - D07-12-22-0168'
  • Construction site plan for project from page 55 of the file '2023-04-17 - Design Brief - D07-12-22-0168'
  • Construction site plan for project from page 32 of the file '2023-01-12 Urban Design Review Panel Formal Submission D07-12-22-0168'
  • Construction site plan for project from page 6 of the file '2023-04-17 - Design Drawings - D07-12-22-0168'
  • Construction site plan for project from page 78 of the file '2023-04-17 - Design Brief - D07-12-22-0168'
  • Construction site plan for project from page 19 of the file '2023-08-03 - Design Drawings - D07-12-22-0168'
  • Construction site plan for project from page 23 of the file '2022-12-07 - Site Plan Control and FLUDA Design Drawings - D07-12-22-0168'
  • Construction site plan for project from page 16 of the file '2023-04-17 - Design Brief - D07-12-22-0168'
  • Construction site plan for project from page 6 of the file '2023-08-03 - Design Drawings - D07-12-22-0168'
  • Construction site plan for project from page 52 of the file '2022-12-07 - Design Brief - D07-12-22-0168'
  • Construction site plan for project from page 55 of the file '2022-12-07 - Design Brief - D07-12-22-0168'
  • Construction site plan for project from page 66 of the file '2022-12-07 - Design Brief - D07-12-22-0168'
  • Construction site plan for project from page 27 of the file '2023-04-17 - Design Brief - D07-12-22-0168'
  • Construction site plan for project from page 10 of the file '2022-12-07 - Site Plan Control and FLUDA Design Drawings - D07-12-22-0168'
  • Construction site plan for project from page 10 of the file '2022-12-07 - Site Plan Control and FLUDA Design Drawings - D07-12-22-0168'
  • Construction site plan for project from page 87 of the file '2023-04-17 - Design Brief - D07-12-22-0168'
  • Construction site plan for project from page 29 of the file '2023-04-17 - Design Brief - D07-12-22-0168'
  • Construction site plan for project from page 26 of the file '2023-04-17 - Design Brief - D07-12-22-0168'
  • Construction site plan for project from page 3 of the file '2023-01-12 Urban Design Review Panel Formal Submission D07-12-22-0168'
  • Construction site plan for project from page 57 of the file '2023-04-17 - Design Brief - D07-12-22-0168'
  • Construction site plan for project from page 7 of the file '2023-04-17 - Design Drawings - D07-12-22-0168'
  • Construction site plan for project from page 12 of the file '2023-01-12 Urban Design Review Panel Formal Submission D07-12-22-0168'
  • Construction site plan for project from page 11 of the file '2022-12-07 - Site Plan Control and FLUDA Design Drawings - D07-12-22-0168'
  • Construction site plan for project from page 60 of the file '2023-04-17 - Design Brief - D07-12-22-0168'
  • Construction site plan for project from page 7 of the file '2023-04-17 - Design Brief - D07-12-22-0168'
  • Construction site plan for project from page 30 of the file '2023-04-17 - Design Brief - D07-12-22-0168'
  • Construction site plan for project from page 29 of the file '2023-04-17 - Design Brief - D07-12-22-0168'
  • Construction site plan for project from page 61 of the file '2023-04-17 - Design Brief - D07-12-22-0168'
  • Construction site plan for project from page 37 of the file '2023-04-17 - Design Brief - D07-12-22-0168'
  • Construction site plan for project from page 52 of the file '2023-04-17 - Design Brief - D07-12-22-0168'
  • Construction site plan for project from page 53 of the file '2022-12-07 - Design Brief - D07-12-22-0168'
  • Construction site plan for project from page 30 of the file '2023-04-17 - Design Brief - D07-12-22-0168'
  • Construction site plan for project from page 5 of the file '2023-08-03 - Design Drawings - D07-12-22-0168'
  • Construction site plan for project from page 55 of the file '2023-04-17 - Design Brief - D07-12-22-0168'
  • Construction site plan for project from page 54 of the file '2022-12-07 - Design Brief - D07-12-22-0168'
  • Construction site plan for project from page 53 of the file '2022-12-07 - Design Brief - D07-12-22-0168'
  • Construction site plan for project from page 53 of the file '2023-04-17 - Design Brief - D07-12-22-0168'
  • Construction site plan for project from page 30 of the file '2023-04-17 - Design Brief - D07-12-22-0168'
  • Construction site plan for project from page 7 of the file '2023-08-03 - Design Drawings - D07-12-22-0168'
  • Construction site plan for project from page 66 of the file '2023-04-17 - Design Brief - D07-12-22-0168'
  • Construction site plan for project from page 36 of the file '2023-04-17 - Design Drawings - D07-12-22-0168'
  • Construction site plan for project from page 7 of the file '2022-12-07 - Design Brief - D07-12-22-0168'
  • Construction site plan for project from page 55 of the file '2022-12-07 - Design Brief - D07-12-22-0168'
  • Construction site plan for project from page 72 of the file '2023-04-17 - Design Brief - D07-12-22-0168'
  • Construction site plan for project from page 36 of the file '2023-08-03 - Design Drawings - D07-12-22-0168'
  • Construction site plan for project from page 11 of the file '2023-04-17 - Design Brief - D07-12-22-0168'
  • Construction site plan for project from page 11 of the file '2022-12-07 - Design Brief - D07-12-22-0168'
  • Construction site plan for project from page 6 of the file '2023-01-12 Urban Design Review Panel Formal Submission D07-12-22-0168'
  • Construction site plan for project from page 62 of the file '2022-12-07 - Design Brief - D07-12-22-0168'
  • Construction site plan for project from page 25 of the file '2022-12-07 - Site Plan Control and FLUDA Design Drawings - D07-12-22-0168'
  • Construction site plan for project from page 54 of the file '2023-04-17 - Design Brief - D07-12-22-0168'
  • Construction site plan for project from page 55 of the file '2023-04-17 - Design Brief - D07-12-22-0168'
  • Construction site plan for project from page 73 of the file '2023-04-17 - Design Brief - D07-12-22-0168'
  • Construction site plan for project from page 29 of the file '2023-08-03 - Design Drawings - D07-12-22-0168'
  • Construction site plan for project from page 8 of the file '2023-01-12 Urban Design Review Panel Formal Submission D07-12-22-0168'
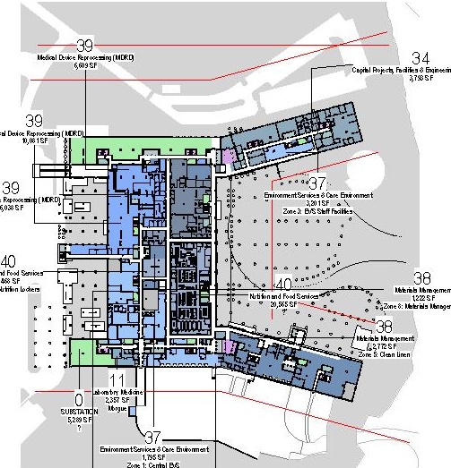
  • Floor plan for project from page 20 of the file '2023-01-12 Urban Design Review Panel Formal Submission D07-12-22-0168'
  • Image from page 18 of the file '2023-01-12 Urban Design Review Panel Formal Submission D07-12-22-0168'
  • Image from page 18 of the file '2023-01-12 Urban Design Review Panel Formal Submission D07-12-22-0168'
  • Image from page 31 of the file '2023-08-03 - Design Drawings - D07-12-22-0168'
  • Image from page 18 of the file '2023-01-12 Urban Design Review Panel Formal Submission D07-12-22-0168'
  • Image from page 18 of the file '2023-01-12 Urban Design Review Panel Formal Submission D07-12-22-0168'
  • Image from page 84 of the file '2022-12-07 - Design Brief - D07-12-22-0168'
  • Image from page 37 of the file '2023-04-17 - Design Brief - D07-12-22-0168'
  • Image from page 16 of the file '2023-08-03 - Design Drawings - D07-12-22-0168'
  • Image from page 22 of the file '2023-01-12 Urban Design Review Panel Formal Submission D07-12-22-0168'
  • Image from page 21 of the file '2023-01-12 Urban Design Review Panel Formal Submission D07-12-22-0168'
  • Image from page 45 of the file '2023-01-12 Urban Design Review Panel Formal Submission D07-12-22-0168'
  • Image from page 10 of the file '2022-12-07 - Site Plan Control and FLUDA Design Drawings - D07-12-22-0168'
  • Image from page 23 of the file '2022-12-07 - Site Plan Control and FLUDA Design Drawings - D07-12-22-0168'
  • Image from page 25 of the file '2022-12-07 - Site Plan Control and FLUDA Design Drawings - D07-12-22-0168'
  • Construction site plan for project from page 46 of the file '2022-12-07 - Design Brief - D07-12-22-0168'
  • Construction site plan for project from page 8 of the file '2023-08-03 - Design Drawings - D07-12-22-0168'
  • Construction site plan for project from page 31 of the file '2023-08-03 - Design Drawings - D07-12-22-0168'
  • Construction site plan for project from page 9 of the file '2023-04-17 - Design Drawings - D07-12-22-0168'
  • Construction site plan for project from page 9 of the file '2023-08-03 - Design Drawings - D07-12-22-0168'
  • Construction site plan for project from page 6 of the file '2022-12-07 - Site Plan Control and FLUDA Design Drawings - D07-12-22-0168'
  • Construction site plan for project from page 7 of the file '2023-08-03 - Design Drawings - D07-12-22-0168'
  • Construction site plan for project from page 4 of the file '2023-08-03 - Design Drawings - D07-12-22-0168'
  • Construction site plan for project from page 83 of the file '2022-12-07 - Design Brief - D07-12-22-0168'
  • Construction site plan for project from page 7 of the file '2022-12-07 - Site Plan Control and FLUDA Design Drawings - D07-12-22-0168'
  • Construction site plan for project from page 77 of the file '2022-12-07 - Design Brief - D07-12-22-0168'
  • Construction site plan for project from page 46 of the file '2022-12-07 - Design Brief - D07-12-22-0168'
  • Construction site plan for project from page 47 of the file '2023-04-17 - Design Brief - D07-12-22-0168'
  • Construction site plan for project from page 55 of the file '2023-04-17 - Design Brief - D07-12-22-0168'
  • Construction site plan for project from page 32 of the file '2023-01-12 Urban Design Review Panel Formal Submission D07-12-22-0168'
  • Construction site plan for project from page 6 of the file '2023-04-17 - Design Drawings - D07-12-22-0168'
  • Construction site plan for project from page 78 of the file '2023-04-17 - Design Brief - D07-12-22-0168'
  • Construction site plan for project from page 19 of the file '2023-08-03 - Design Drawings - D07-12-22-0168'
  • Construction site plan for project from page 23 of the file '2022-12-07 - Site Plan Control and FLUDA Design Drawings - D07-12-22-0168'
  • Construction site plan for project from page 16 of the file '2023-04-17 - Design Brief - D07-12-22-0168'
  • Construction site plan for project from page 6 of the file '2023-08-03 - Design Drawings - D07-12-22-0168'
  • Construction site plan for project from page 52 of the file '2022-12-07 - Design Brief - D07-12-22-0168'
  • Construction site plan for project from page 55 of the file '2022-12-07 - Design Brief - D07-12-22-0168'
  • Construction site plan for project from page 66 of the file '2022-12-07 - Design Brief - D07-12-22-0168'
  • Construction site plan for project from page 27 of the file '2023-04-17 - Design Brief - D07-12-22-0168'
  • Construction site plan for project from page 10 of the file '2022-12-07 - Site Plan Control and FLUDA Design Drawings - D07-12-22-0168'
  • Construction site plan for project from page 10 of the file '2022-12-07 - Site Plan Control and FLUDA Design Drawings - D07-12-22-0168'
  • Construction site plan for project from page 87 of the file '2023-04-17 - Design Brief - D07-12-22-0168'
  • Construction site plan for project from page 29 of the file '2023-04-17 - Design Brief - D07-12-22-0168'
  • Construction site plan for project from page 26 of the file '2023-04-17 - Design Brief - D07-12-22-0168'
  • Construction site plan for project from page 3 of the file '2023-01-12 Urban Design Review Panel Formal Submission D07-12-22-0168'
  • Construction site plan for project from page 57 of the file '2023-04-17 - Design Brief - D07-12-22-0168'
  • Construction site plan for project from page 7 of the file '2023-04-17 - Design Drawings - D07-12-22-0168'
  • Construction site plan for project from page 12 of the file '2023-01-12 Urban Design Review Panel Formal Submission D07-12-22-0168'
  • Construction site plan for project from page 11 of the file '2022-12-07 - Site Plan Control and FLUDA Design Drawings - D07-12-22-0168'
  • Construction site plan for project from page 60 of the file '2023-04-17 - Design Brief - D07-12-22-0168'
  • Construction site plan for project from page 7 of the file '2023-04-17 - Design Brief - D07-12-22-0168'
  • Construction site plan for project from page 30 of the file '2023-04-17 - Design Brief - D07-12-22-0168'
  • Construction site plan for project from page 29 of the file '2023-04-17 - Design Brief - D07-12-22-0168'
  • Construction site plan for project from page 61 of the file '2023-04-17 - Design Brief - D07-12-22-0168'
  • Construction site plan for project from page 37 of the file '2023-04-17 - Design Brief - D07-12-22-0168'
  • Construction site plan for project from page 52 of the file '2023-04-17 - Design Brief - D07-12-22-0168'
  • Construction site plan for project from page 53 of the file '2022-12-07 - Design Brief - D07-12-22-0168'
  • Construction site plan for project from page 30 of the file '2023-04-17 - Design Brief - D07-12-22-0168'
  • Construction site plan for project from page 5 of the file '2023-08-03 - Design Drawings - D07-12-22-0168'
  • Construction site plan for project from page 55 of the file '2023-04-17 - Design Brief - D07-12-22-0168'
  • Construction site plan for project from page 54 of the file '2022-12-07 - Design Brief - D07-12-22-0168'
  • Construction site plan for project from page 53 of the file '2022-12-07 - Design Brief - D07-12-22-0168'
  • Construction site plan for project from page 53 of the file '2023-04-17 - Design Brief - D07-12-22-0168'
  • Construction site plan for project from page 30 of the file '2023-04-17 - Design Brief - D07-12-22-0168'
  • Construction site plan for project from page 7 of the file '2023-08-03 - Design Drawings - D07-12-22-0168'
  • Construction site plan for project from page 66 of the file '2023-04-17 - Design Brief - D07-12-22-0168'
  • Construction site plan for project from page 36 of the file '2023-04-17 - Design Drawings - D07-12-22-0168'
  • Construction site plan for project from page 7 of the file '2022-12-07 - Design Brief - D07-12-22-0168'
  • Construction site plan for project from page 55 of the file '2022-12-07 - Design Brief - D07-12-22-0168'
  • Construction site plan for project from page 72 of the file '2023-04-17 - Design Brief - D07-12-22-0168'
  • Construction site plan for project from page 36 of the file '2023-08-03 - Design Drawings - D07-12-22-0168'
  • Construction site plan for project from page 11 of the file '2023-04-17 - Design Brief - D07-12-22-0168'
  • Construction site plan for project from page 11 of the file '2022-12-07 - Design Brief - D07-12-22-0168'
  • Construction site plan for project from page 6 of the file '2023-01-12 Urban Design Review Panel Formal Submission D07-12-22-0168'
  • Construction site plan for project from page 62 of the file '2022-12-07 - Design Brief - D07-12-22-0168'
  • Construction site plan for project from page 25 of the file '2022-12-07 - Site Plan Control and FLUDA Design Drawings - D07-12-22-0168'
  • Construction site plan for project from page 54 of the file '2023-04-17 - Design Brief - D07-12-22-0168'
  • Construction site plan for project from page 55 of the file '2023-04-17 - Design Brief - D07-12-22-0168'
  • Construction site plan for project from page 73 of the file '2023-04-17 - Design Brief - D07-12-22-0168'
  • Construction site plan for project from page 29 of the file '2023-08-03 - Design Drawings - D07-12-22-0168'
  • Construction site plan for project from page 8 of the file '2023-01-12 Urban Design Review Panel Formal Submission D07-12-22-0168'
  • Floor plan for project from page 20 of the file '2023-01-12 Urban Design Review Panel Formal Submission D07-12-22-0168'

Additional Information#

Date Initiated2022-12-07
WardWard 16 - Riley Brockington

Documents#

TypeDocument
Application Summary2022-12-12 - Application Summary - D07-12-22-0168
Architectural Plans2024-06-14 - Approved Hospital Elevations - D07-12-22-0168
Architectural Plans2024-06-14 - Approved Hospital Building Sections A-7 - D07-12-22-0168
Architectural Plans2024-06-14 - Approved Exterior Elevations - D07-12-22-0168
Architectural Plans2023-08-03 - Site Drawings and Landscape Plans - D07-12-22-0168
Architectural Plans2023-04-17 - Architectural Drawings - D07-12-22-0168 (2)
Architectural Plans2023-04-17 - Architectural Drawings - D07-12-22-0168
Architectural Plans2022-12-07 - Mechanical Site Plan - D07-12-22-0168
Architectural Plans2022-12-07 - DrawingAppendix-A_Landscape Plans - D07-12-22-0168
Architectural Plans2024-12-10 - Exterior Elevations - D07-12-22-0168
Civil Engineering Report2024-06-14 - Approved Civil Drawings (PSOS Drawings) - D07-12-22-0168
Civil Engineering Report2024-06-14 - Approved Civil Drawings (Advanced Works ) - D07-12-22-0168
Civil Engineering Report2023-04-17 - Civil Drawings - D07-12-22-0168
Civil Engineering Report2022-12-07 - Civil Figures - D07-12-22-0168
Civil Engineering Report2022-12-07 - Civil Drawings - D07-12-22-0168
Design Brief2023-08-03 - Design Drawings - D07-12-22-0168
Design Brief2023-04-17 - Design Drawings - D07-12-22-0168
Design Brief2023-04-17 - Design Brief - D07-12-22-0168
Design Brief2023-01-12 Urban Design Review Panel Formal Submission D07-12-22-0168
Design Brief2022-12-07 - Site Plan Control and FLUDA Design Drawings - D07-12-22-0168
Design Brief2022-12-07 - Design Brief - D07-12-22-0168
Electrical Plan2023-08-03 - Electrical Site Plans - D07-12-22-0168
Electrical Plan2022-12-07 - Electrical Site Plans - D07-12-22-0168
Environmental2022-12-07 - Phase 2 Environmental Site Assessment - D07-12-22-0168
Geotechnical Report2023-04-17 - Preliminary Groundwater Inflow-D07-12-22-0168
Geotechnical Report2023-04-17 - Geotechnical & Hydrogeological Investigation - D07-12-22-0168
Geotechnical Report2022-12-07 - Geotechnical and Hydrogeological Investigation - D07-12-22-0168
Landscape Plan2024-06-14 - Approved Landscape Plans - D07-12-22-0168
Landscape Plan2023-04-17 - Landscape Plans - D07-12-22-0168
Noise Study2022-12-07 - Stationary Noise Assessment - D07-12-22-0168
Noise Study2022-12-07 - Addendum to Environmental Noise & Vibration Assessment - D07-12-22-0168
Notification2025-01-14 - Commence Work Notification - D07-12-22-0168
Planning2023-04-17 - Planning Rationale - D07-12-22-0168
Planning2022-12-07 - Planning Rationale - D07-12-22-0168
Site Servicing2024-06-14 - Approved Site Servicing and SWM Report - D07-12-22-0168
Site Servicing2023-04-17 - Site Servicing and Stormwater Report - D07-12-22-0168
Site Servicing2022-12-07 - Site Servicing and Stormwater Report - D07-12-22-0168
Transportation Analysis2023-08-11 - Transportation Monitoring Strategy - D07-12-22-0168
Transportation Analysis2023-08-03 - Transportation Monitoring Strategy - D07-12-22-0168
Transportation Analysis2023-08-03 - Transportation Demand Management Strategy - D07-12-22-0168
Transportation Analysis2023-08-03 - TIA Addendum 2 Main Building - D07-12-22-0168
Transportation Analysis2023-08-03 - Appendix for TIA Addendum 2 - D07-12-22-0168
Transportation Analysis2023-04-17 - Transportation Impact Assessment - D07-12-22-0168
Transportation Analysis2023-04-17 - Transportation Demand Management Strategy - D07-12-22-0168
Transportation Analysis2022-12-13 - Transportation Impact Assessment Addendum 2 - D07-12-22-0168
Tree Information and Conservation2024-06-14 - Approved TOH Advanced Works_Tree Preservation and Removals - D07-12-22-0168
Tree Information and Conservation2024-06-14 - Approved Master Tree Canopy Cover Plans - D07-12-22-0168
Tree Information and Conservation2024-06-14 - Approved Advanced Works_Tree Preservation Plan_ Construction - D07-12-22-0168
Tree Information and Conservation2024-04-18 - Final Environmental Effects Evaluation, EIS & TCR Update - D07-12-22-0168
Tree Information and Conservation2023-04-17 - Drawings Appendix- Master Tree Canopy Cover Plan - D07-12-22-0168
Tree Information and Conservation2022-12-07 - Environmental Effects Evaluation and EIA and TCR Update - D07-12-22-0168
Tree Information and Conservation2022-12-07 - Drawings Appendix-A_Conceptual Tree Canopy Cover Plan - D07-12-22-0168
Wind Study2022-12-07 - Pedestrian Level Wind Study and Snow Drift Assessment - D07-12-22-0168
2024-06-14 - Signed Delegated Authority Report - D07-12-22-0168
2024-06-14 - Approved Sections - Building A-301 & A-302 - D07-12-22-0168
2024-06-14 - Approved Retaining Wall Preliminary Designs (PSOS Drawings) - D07-12-22-0168
2024-06-14 - Approved CUP Parking Deck Level & Drainage A-106 & A-107 - D07-12-22-0168
2023-08-11 - Neighbourhood Traffic Management Strategy - D07-12-22-0168
2023-08-03 - Off-Site Parking Strategy - D07-12-22-0168
2023-04-17 - Tech Memo Sewer Discharge - D07-12-22-0168
2023-04-17 - RETAINING WALLS - D07-12-22-0168
2023-04-17 - Offsite Parking Strategy - D07-12-22-0168
2023-04-17 - Full Draft Report - D07-12-22-0168
2023-04-17 - Cultural Heritage Impact Statement - D07-12-22-0168
2023-04-17 - Consultation Summary - D07-12-22-0168
2023-03-27 - Off Site Parking Strategy Report - D07-12-22-0168
2022-12-14 - Cultural Heritage Impact Statement Addendum 2 - D07-12-22-0168
2022-12-09 - Community Association Presentation - D07-12-22-0168
2022-12-07 - Retaining Wall Drawings - D07-12-22-0168
2022-12-07 - Drawings Appendix-A_Architectural Drawings-Hospital - D07-12-22-0168
2022-12-07 - Drawings Appendix-A_Architectural Drawings-CUP - D07-12-22-0168
2022-12-07 - Air Quality Study - D07-12-22-0168
2024-12-10 - Sections - Building -D07-12-22-0168
2024-12-10 - Sections - Building - D07-12-22-0168
2024-12-10 - Parking Deck Level - D07-12-22-0168
2024-12-10 - Parking Deck Drainage - D07-12-22-0168