Ottawa Development Projects

230-232 Lisgar St.#

Last updated: 2026-01-15 · ID: D07-12-22-0166

Summary#

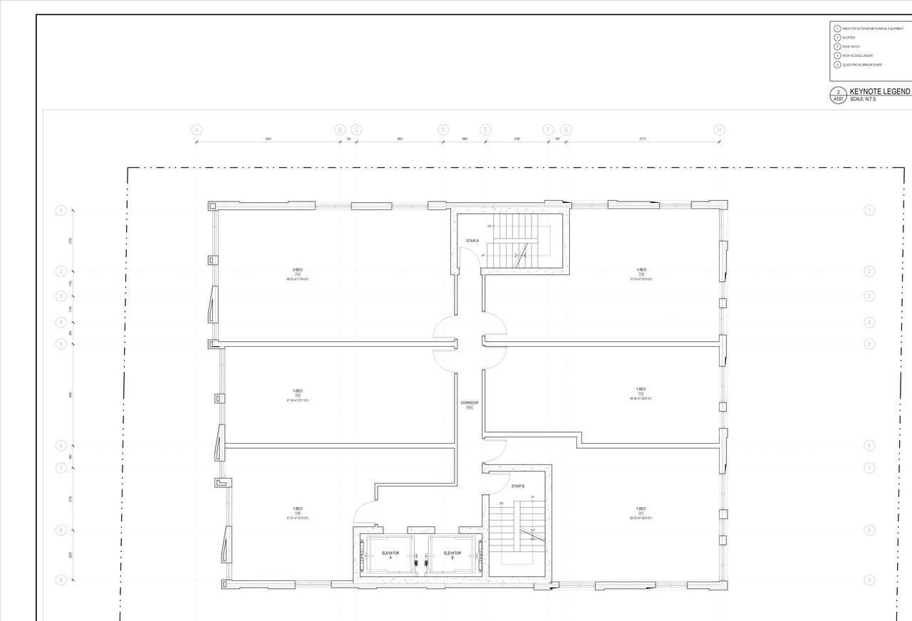
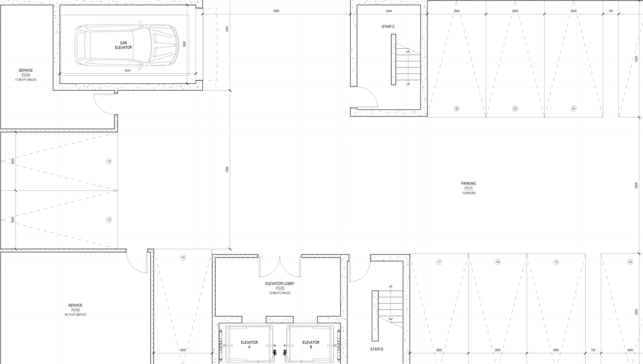
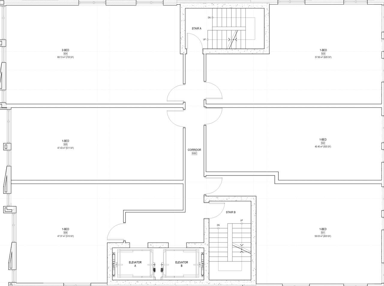
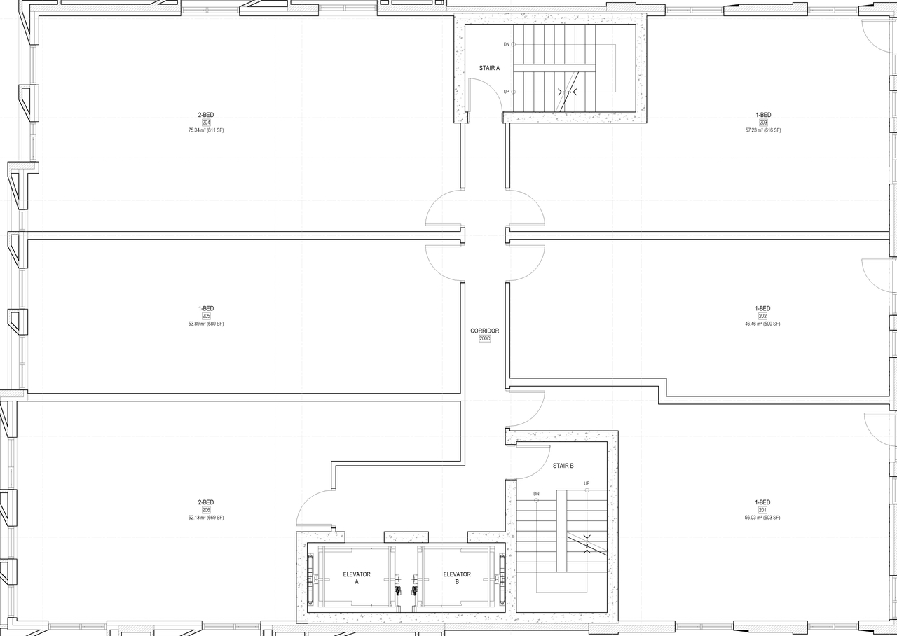
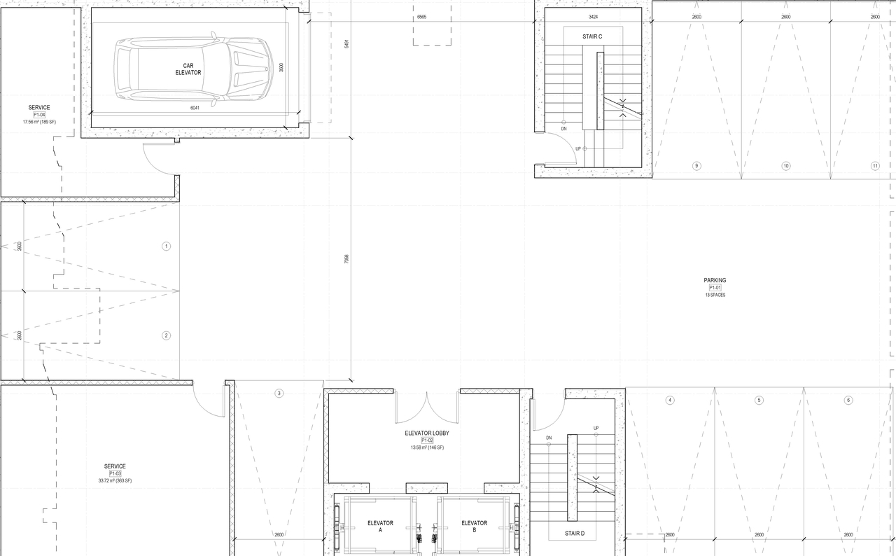
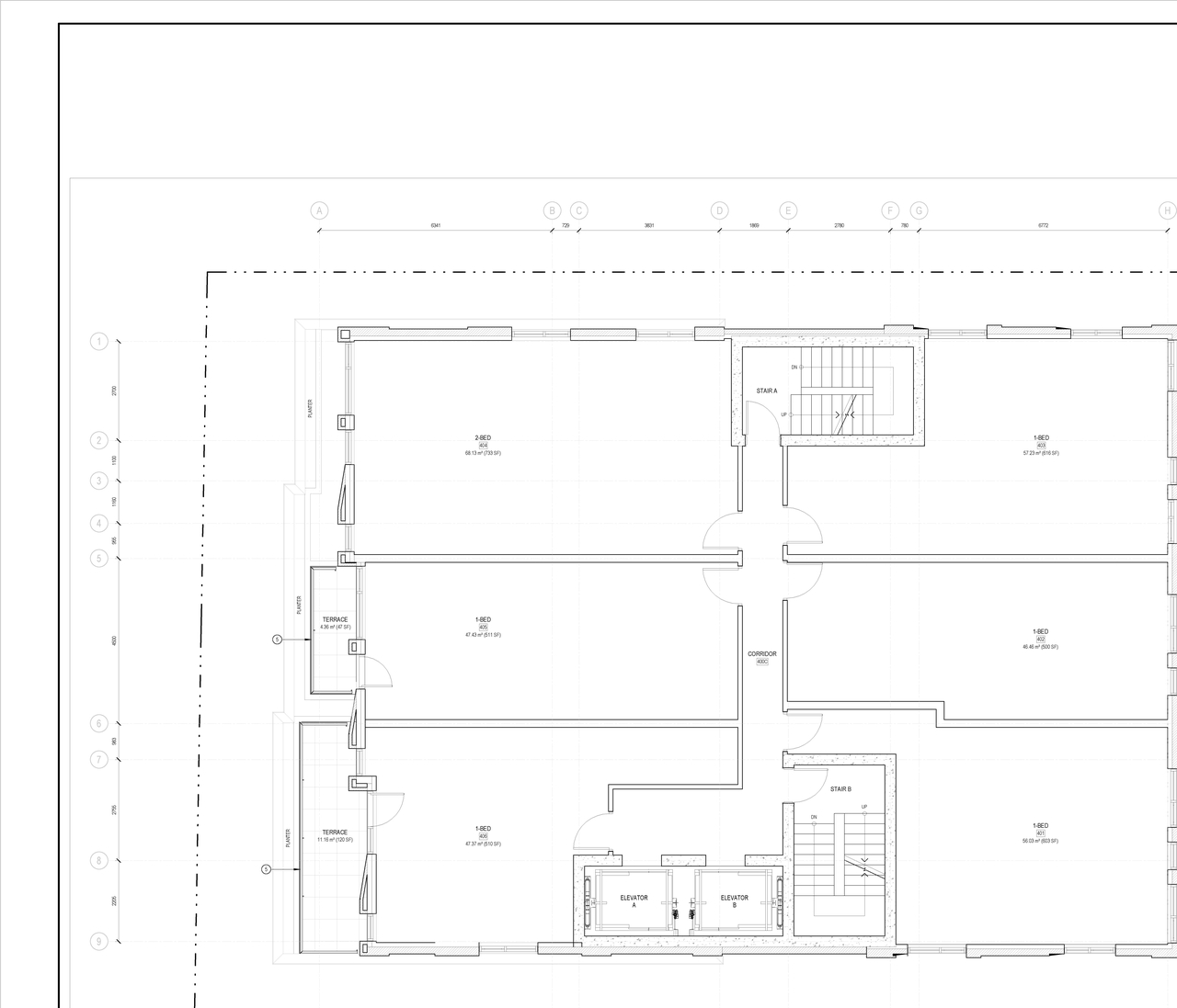
The City of Ottawa has received a Zoning By-law Amendment and Site Plan Control application to construct a 9-storey mid-rise residential apartment building containing 49 residential units. A total of 294 square metres of indoor amenity space is proposed. 26 vehicular parking spaces (22 residential and 4 visitor) will be provided in an underground parking garage, as well as 43 bicycle parking spaces located on the ground floor of the building.

Status
Post Approval (Agreement Signed)

Building Scale (Max.) Based on elevation drawings. Values may be approximate. See sources for exact figures.
Mid-rise · 9 storeys · 30.9 m

Renders#

Location#

Select a marker to view the address.

Site Plans, Elevations and Floor Plans#

Additional Information#

Date Initiated2022-12-02
WardWard 14 - Ariel Troster
All Addresses230 Lisgar St.
232 Lisgar St.

Documents#

TypeDocument
Application Summary2022-12-21 - Application Summary - D07-12-22-0166
Architectural Plans2024-02-01 - Approved West Elevation - D07-12-22-0166
Architectural Plans2024-02-01 - Approved South Elevation - D07-12-22-0166
Architectural Plans2024-02-01 - Approved Site Plan - D07-12-22-0166
Architectural Plans2024-02-01 - Approved North Elevation - D07-12-22-0166
Architectural Plans2024-02-01 - Approved General Plan of Services - D07-12-22-0166
Architectural Plans2024-02-01 - Approved East Elevation - D07-12-22-0166
Architectural Plans2024-01-15 - General Plan of Services - D07-12-22-0166
Architectural Plans2023-12-23 - Site Plan and Architectural Package - D07-12-22-0166
Architectural Plans2023-12-23 - General Plan of Services - D07-12-22-0166
Architectural Plans2023-10-25 - Site, Floor and Elevation Plans - D07-12-22-0166
Architectural Plans2023-10-25 - General Plan of Services -D07-12-22-0166
Architectural Plans2023-06-19 - Site, Floor, Elevation Plans - D07-12-22-0166
Architectural Plans2023-06-19 - Memo - Grading Plan Review - D07-12-22-0166 (2)
Architectural Plans2023-06-19 - MEMO - Grading Plan Review - D07-12-22-0166
Architectural Plans2023-06-19 - General Plan of Services - D07-12-22-0166
Architectural Plans2022-12-02 - Site, Floor Elevation Plans - D07-12-22-0166
Architectural Plans2022-12-02 - General Plan of Services - D07-12-22-0166
Design Brief2022-12-02 - Design Brief - D07-12-22-0166
Environmental2023-12-23 - Phase I Environmental Site Assessment - D07-12-22-0166
Environmental2023-12-23 - Environmental Noise Control Study - D07-12-22-0166
Environmental2023-06-19 - Environmental Noise Control Study - D07-12-22-0166
Environmental2022-12-02 - Phase I Environmental Site Assessment - D07-12-22-0166
Existing Conditions2024-02-01 - Approved Existing Conditions & Removals Plan - D07-12-22-0166
Existing Conditions2023-12-23 - Existing Conditions and Removals Plan - D07-12-22-0166
Existing Conditions2023-06-19 - EXISTING CONDITIONS AND REMOVALS PLAN - D07-12-22-0166
Existing Conditions2022-12-02 - Existing Conditions & Removal Plan - D07-12-22-0166 (2)
Existing Conditions2022-12-02 - Existing Conditions & Removal Plan - D07-12-22-0166
Floor Plan2022-12-02 - Floor Plans - D07-12-22-0166
Geotechnical Report2024-02-01 - Approved Grading, Erosion & Sediment Control Plan - D07-12-22-0166
Geotechnical Report2024-01-15 - Grading and Erosion and Sediment Control Plan - D07-12-22-0166
Geotechnical Report2023-12-23 - Grading, Erosion & Sediment Control Plan - D07-12-22-0166
Geotechnical Report2023-12-23 - Geotechnical Investigation - D07-12-22-0166
Geotechnical Report2023-10-25 - Grading and Erosion Plan - D07-12-22-0166
Geotechnical Report2023-10-25 - Geotechnical Investigation - D07-12-22-0166
Geotechnical Report2023-06-19 - GRADING AND EROSION & SEDIMENT CONTROL PLAN - D07-12-22-0166
Landscape Plan2023-12-23 - Landscape Plan - D07-12-22-0166
Landscape Plan2023-10-25 - Landscape Plan - D07-12-22-0166
Landscape Plan2022-12-02 - Landscape Plan - D07-12-22-0166
Noise Study2022-12-02 - Noise Attenuation Study - D07-12-22-0166
Planning2022-12-29 - Planning Rationale - D07-12-22-0166
Shadow Study2022-06-19 - FUS Calculations - D07-12-22-0166
Site Servicing2023-12-23 - Servicing & SWM Report - D07-12-22-0166
Stormwater Management2024-02-01 - Approved Post-Development Storm Drainage Area Plan - D07-12-22-0166
Stormwater Management2024-01-15 - Post-Development Storm Drainage Area Plan - D07-12-22-0166
Stormwater Management2023-12-23 - Pre-Development & Post-Development Storm Drainage Area Plans - D07-12-22-0166
Stormwater Management2023-06-19 - PRE-DEVELOPMENT STORM DRAINAGE AREA PLAN - D07-12-22-0166
Stormwater Management2023-06-19 - POST-DEVELOPMENT STORM DRAINAGE PLAN - D07-12-22-0166
Stormwater Management2023-06-19 - Development Servicing Study and Stormwater Management Report - D07-12-22-0166
Stormwater Management2022-12-02 - Stormwater Management Report - D07-12-22-0166
Stormwater Management2022-12-02 - Pre-Development Storm Drainage Plan - D07-12-22-0166
Stormwater Management2022-12-02 - Post Development Stormwater Management Plan - D07-12-22-0166
Surveying2022-12-02 - Topographic Survey - D07-12-22-0166
Transportation Analysis2022-12-14 - Transportation Impact Assessment Guidelines - D07-12-22-0166
Tree Information and Conservation2024-02-01 - Approved Tree Conservation Report & Landscape Plan - D07-12-22-0166
Tree Information and Conservation2023-12-07 - Landscape Plan and TCR - D07-12-22-0166
Tree Information and Conservation2023-06-19 - Tree Conservation Report and Landscape Plan - D07-12-22-0166
Wind Study2023-12-23 - Pedestrian Level Wind Study - D07-12-22-0166
Wind Study2022-12-02 - Pedestrian Level Wind Study - D07-12-22-0166
2024-02-01 - Signed Delegated Authority Report - D07-12-22-0166
2023-12-23 - Heritage Supplementary Information - D07-12-22-0166
2023-12-23 - Cultural Heritage Impact Statement - D07-12-22-0166
2023-06-19 - Heritage Supplement - D07-12-22-0166
2023-06-19 - CULTURAL HERITAGE IMPACT STATEMENT - D07-12-22-0166
2022-12-02 - Cultural Heritage Impact Statement - D07-12-22-0166