357-363 Preston St.#
Summary#
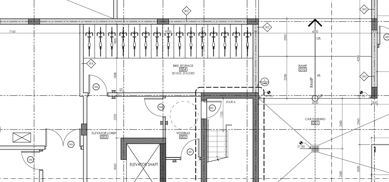
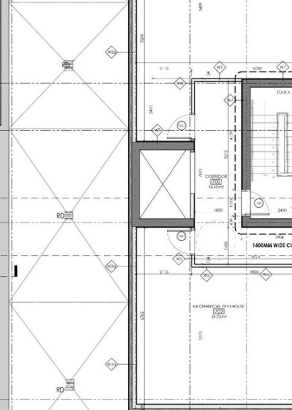
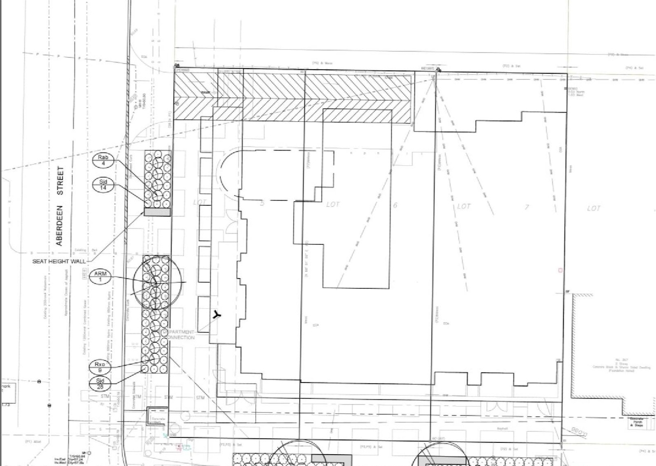
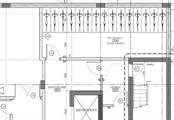
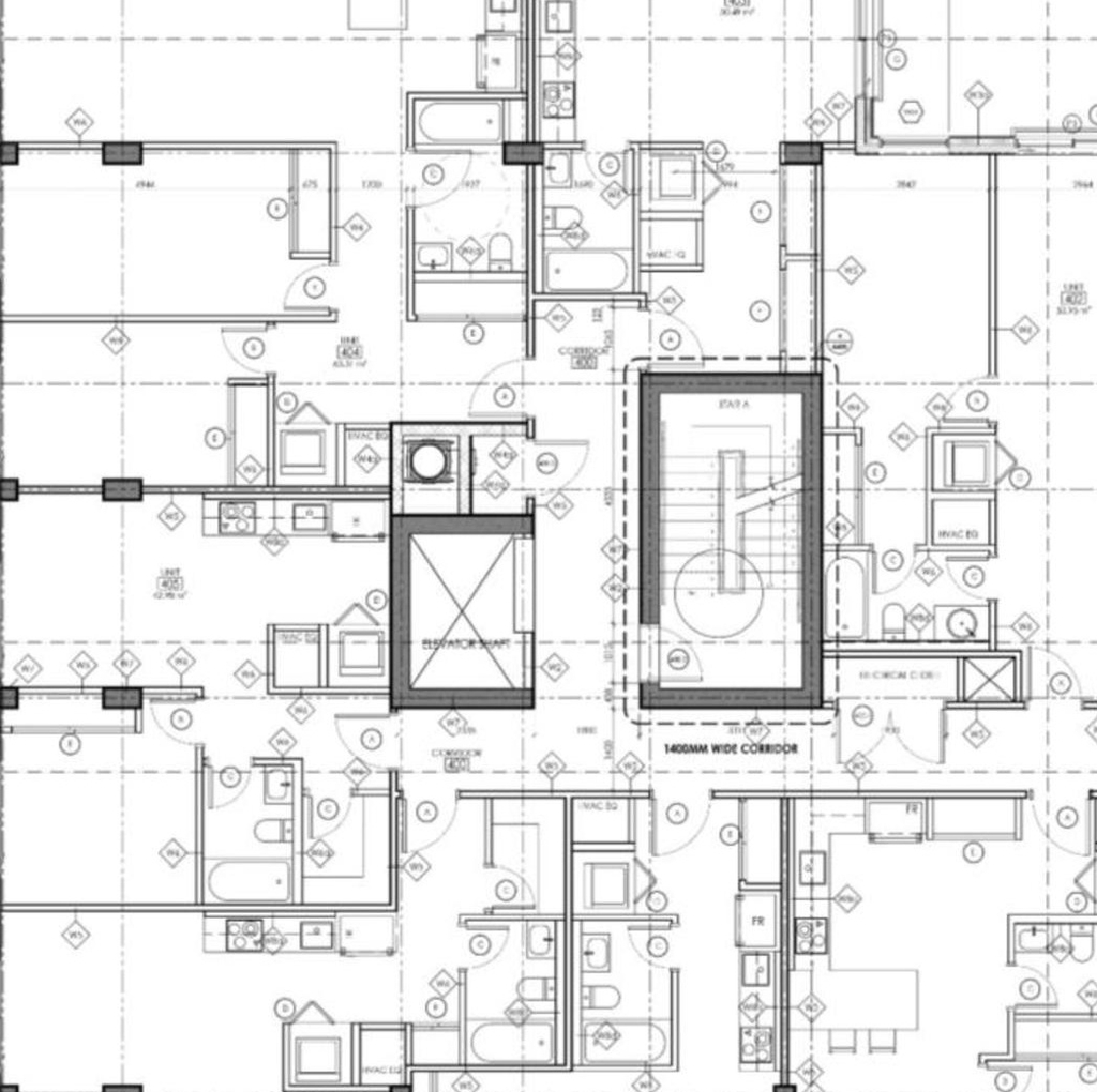
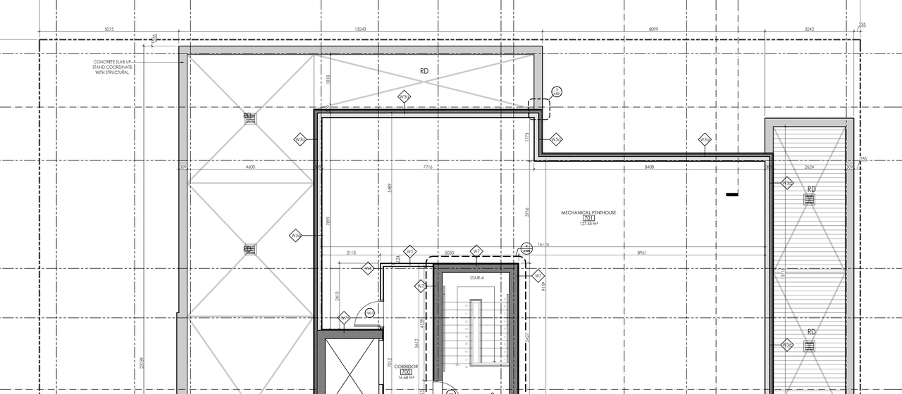
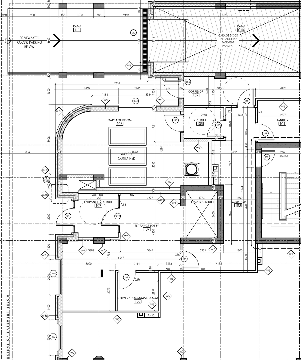
It is proposed to construct a six-storey mixed-use building on the Subject Property. The, building will Include two commercial units on the ground floor and 37 apartment units. A one-level underground parking garage will provide 9 parking spaces. These parking spaces will be accessible via a driveway and ramp to the rear of the building off Aberdeen Street. A te"ace with common access is proposed on the roof of the building. A Minor Zoning By-law Amendment is required to facilitate the proposed development on the Subject Property and is being submitted concurrently with the Site Pion application.
Status
Active (Additional Submission Review Required)
Building Scale (Max.)
Based on elevation drawings. Values may be approximate. See sources for exact figures.
Mid-rise · 8 storeys
· 23.1 m
Data Quality Note
Height was partially estimated using visual scale. This may be approximate.
Data Quality Note
Text was extracted using optical character recognition. This may introduce artifacts or misreads.
Renders#
Location#
Site Plans, Elevations and Floor Plans#
Additional Information#
| Date Initiated | 2022-12-02 |
| Ward | Ward 14 - Ariel Troster |
| All Addresses | 357 Preston St. 361 Preston St. 363 Preston St. |










































