836 Solarium Ave.#
Last updated: 2023-09-07 · ID: D07-12-22-0145
Summary#
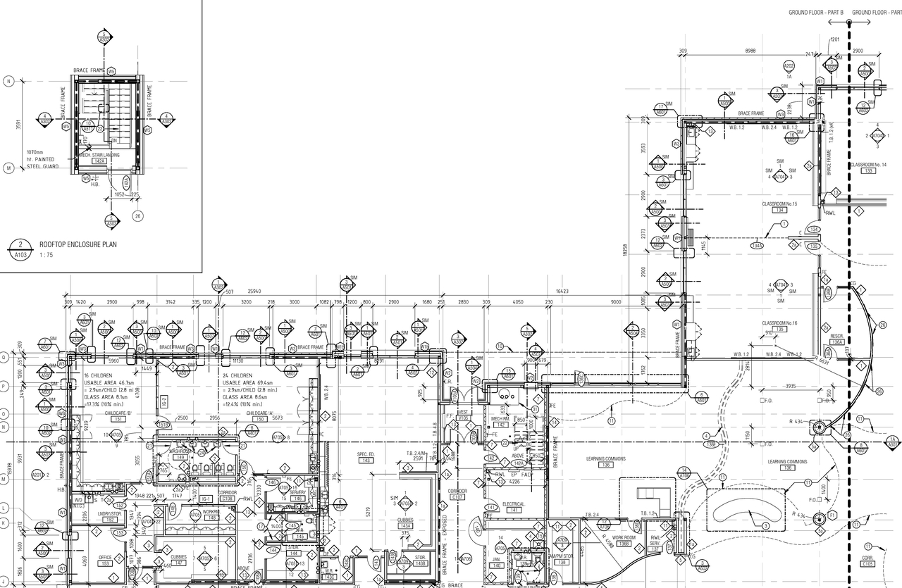
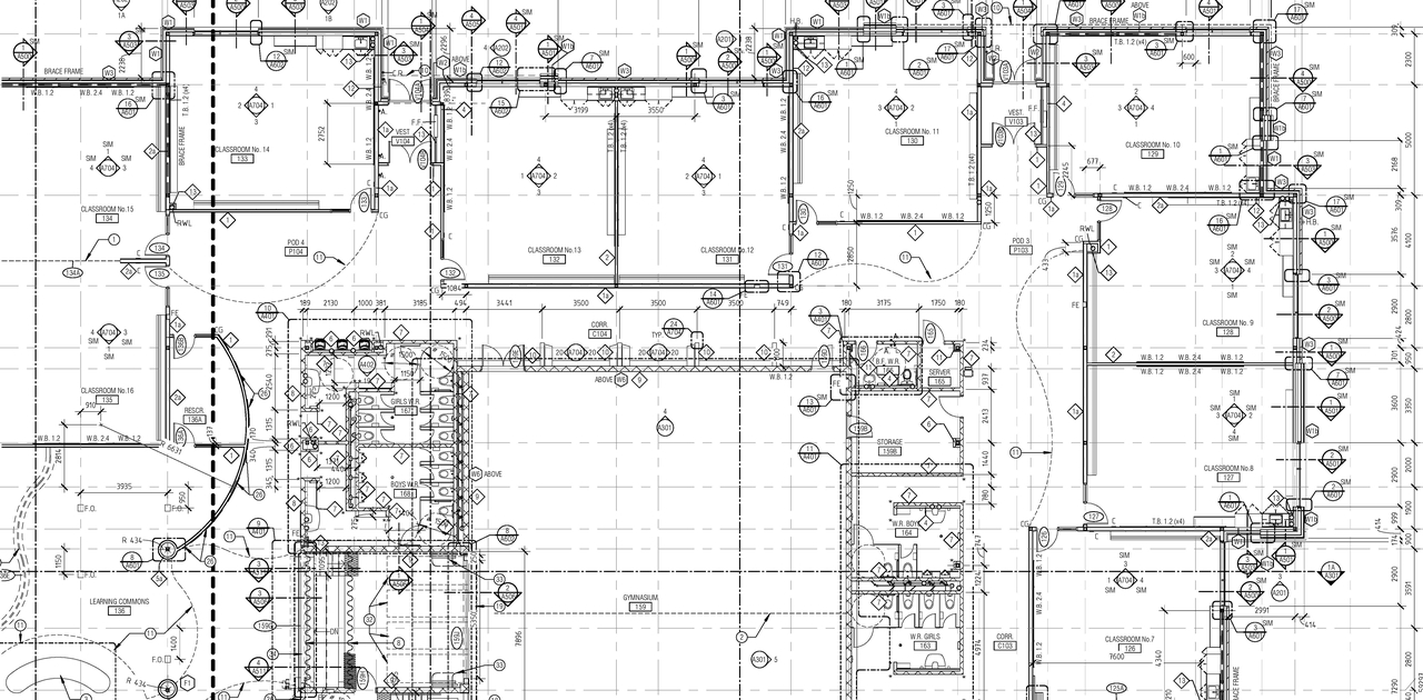
Single storey elementary school and childcare centre
Status
Post Approval (Receipt of Agreement from Owner Pending)
Building Scale (Max.)
Based on elevation drawings. Values may be approximate. See sources for exact figures.
Low-rise · 1 storey
· 7.5 m
Location#
Select a marker to view the address.
Site Plans, Elevations and Floor Plans#
Additional Information#
| Date Initiated | 2022-10-11 |
| Ward | Ward 22 - Steve Desroches |

