112 Montreal#
Last updated: 2023-05-25 · ID: D07-12-22-0138
Summary#
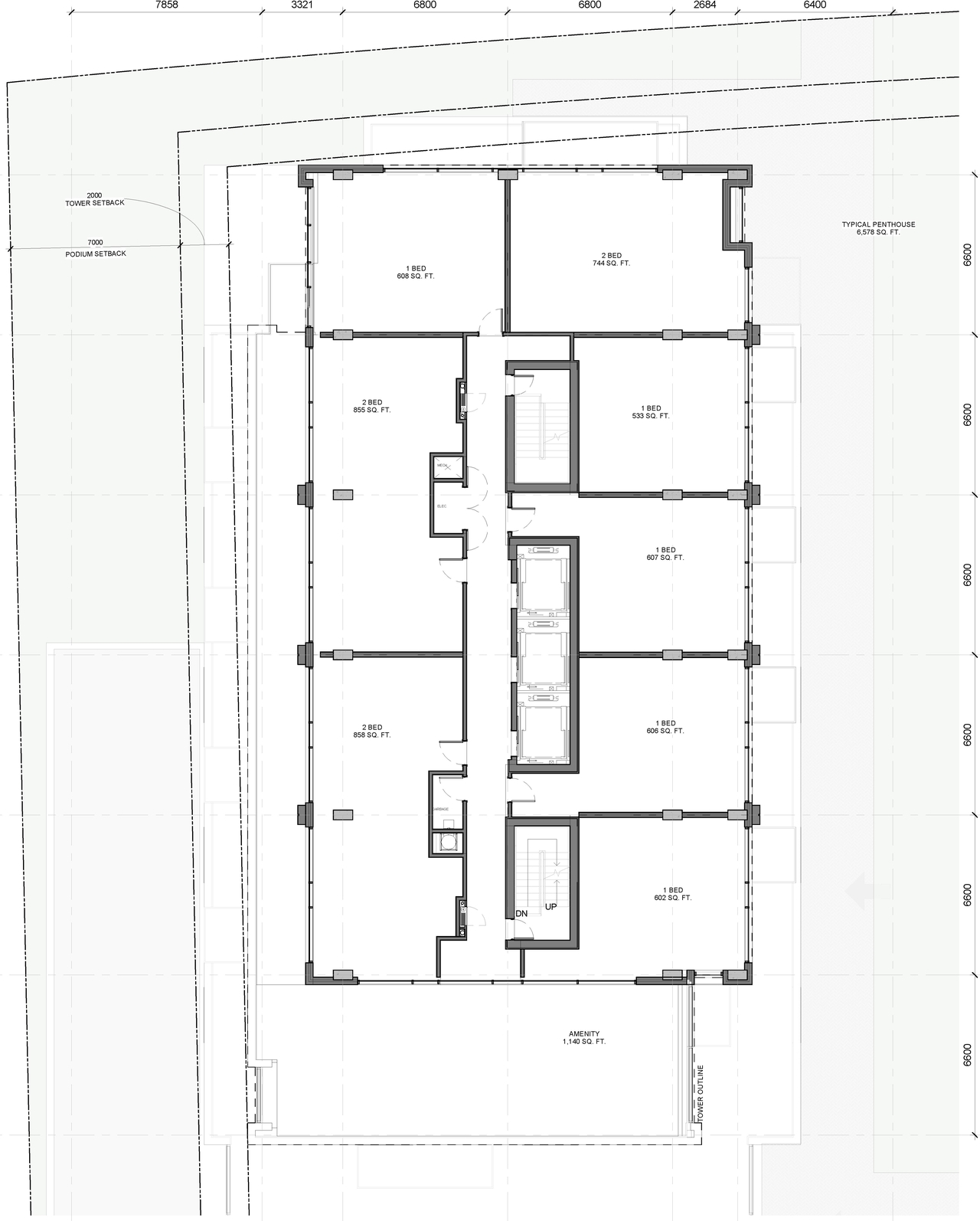
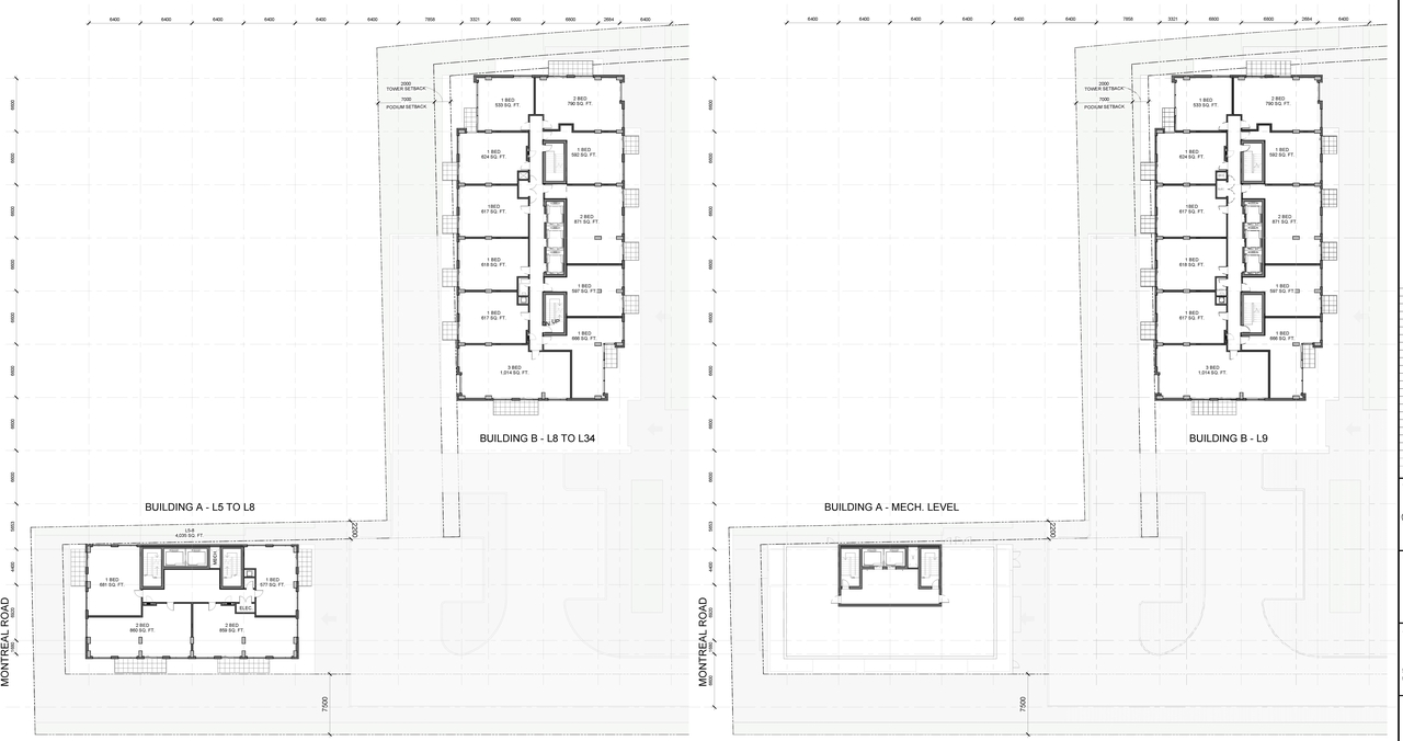
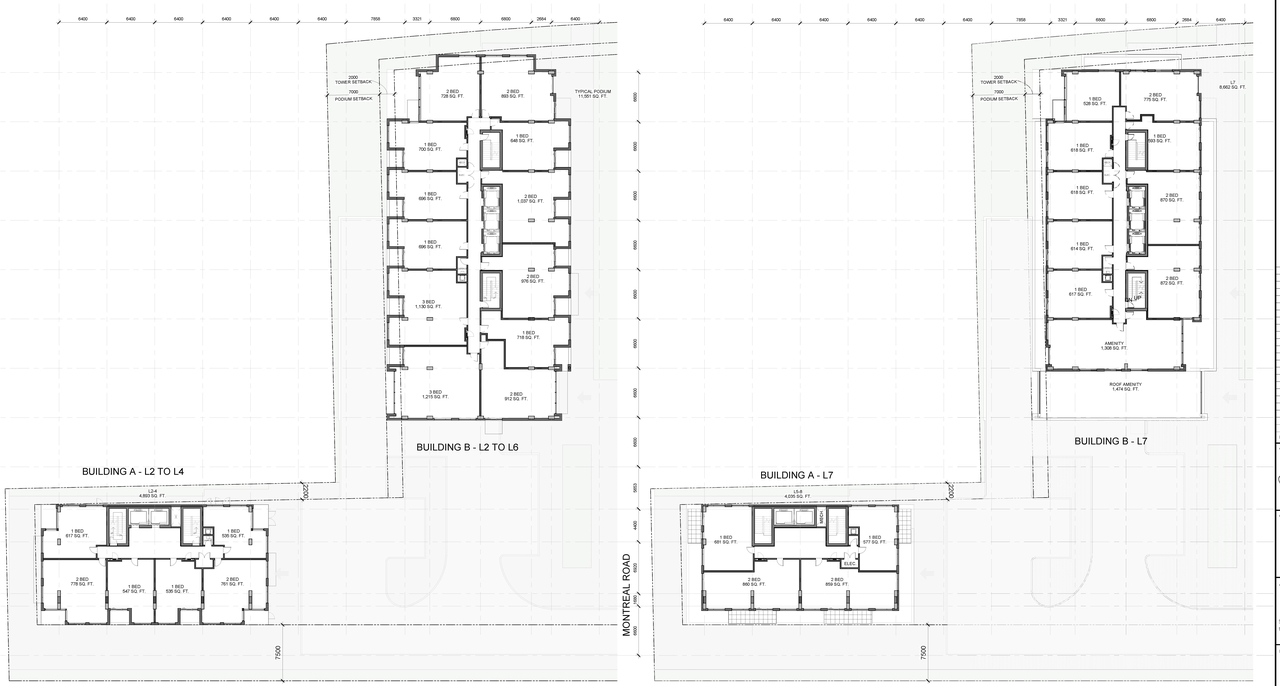
Establish a four (4)-building complex including one 8-storey mixed building fronting onto Montreal Road, one 16-storey building located internal to the site, a 37-storey building fronting onto the Vanier Parkway, and a 28-storey building fronting onto the Vanier Parkway. Phase 1 will incorporate the establishment of the 8-storey Mixed-Use Building fronting onto Montreal Road (Building A) and the 37-storey apartment building fronting onto the Vanier Parkway (Tower B1).
Status
Active (Additional Submission Review Required)
Building Scale (Max.)
Based on elevation drawings. Values may be approximate. See sources for exact figures.
High-rise · 37 storeys
· 117.85 m
Renders#
Location#
Select a marker to view the address.
Site Plans, Elevations and Floor Plans#
Additional Information#
| Date Initiated | 2022-09-19 |
| Ward | Ward 12 - Stéphanie Plante |









