1400-1410 Youville Dr.#
Last updated: 2023-09-12 · ID: D07-12-22-0130
Summary#
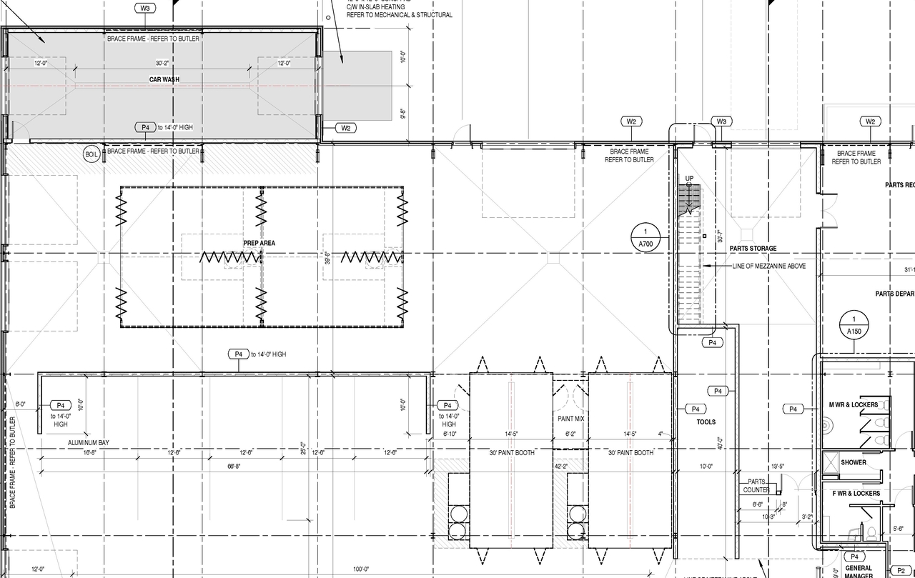
New 2,115 sq metre auto body shop building with office space and associated outdoor vehicle storage, parking and landscaping
Status
Post Approval (Request for Agreement Received)
Building Scale (Max.)
Based on elevation drawings. Values may be approximate. See sources for exact figures.
Low-rise · 1 storey
· 5.18 m
Location#
Select a marker to view the address.
Site Plans, Elevations and Floor Plans#
Additional Information#
| Date Initiated | 2022-08-30 |
| Ward | Ward 2 - Laura Dudas |
| All Addresses | 1400 Youville Dr. 1410 Youville Dr. |
Documents#
Related Projects#
| Project | Last Updated | Date Initiated |
|---|---|---|
1400-1410 Youville Dr.
D02-02-22-0086 | 2023-08-10 | 2022-08-30 |

