Ottawa Development Projects

150-160 Laurier Ave. W.#

Last updated: 2026-02-18 · ID: D07-12-22-0128

Summary#

A Site Plan Control application to construct a 27-storey mixed-use building with ground-floor commercial, 312 dwelling units, and underground parking for 200 vehicles has been received.

Status
Post Approval (Agreement Signed)

Building Scale (Max.) Based on elevation drawings. Values may be approximate. See sources for exact figures.
High-rise · 29 storeys · 89.17 m

Renders#

Location#

Select a marker to view the address.

Site Plans, Elevations and Floor Plans#

  • Image from page 1 of the file '2022-09-01 - Perspective Views - D07-12-22-0128'
  • Image from page 14 of the file '2022-11-01 - Formal UDRP Presentation - D07-12-22-0128'
  • Image from page 15 of the file '2022-11-01 - Formal UDRP Presentation - D07-12-22-0128'
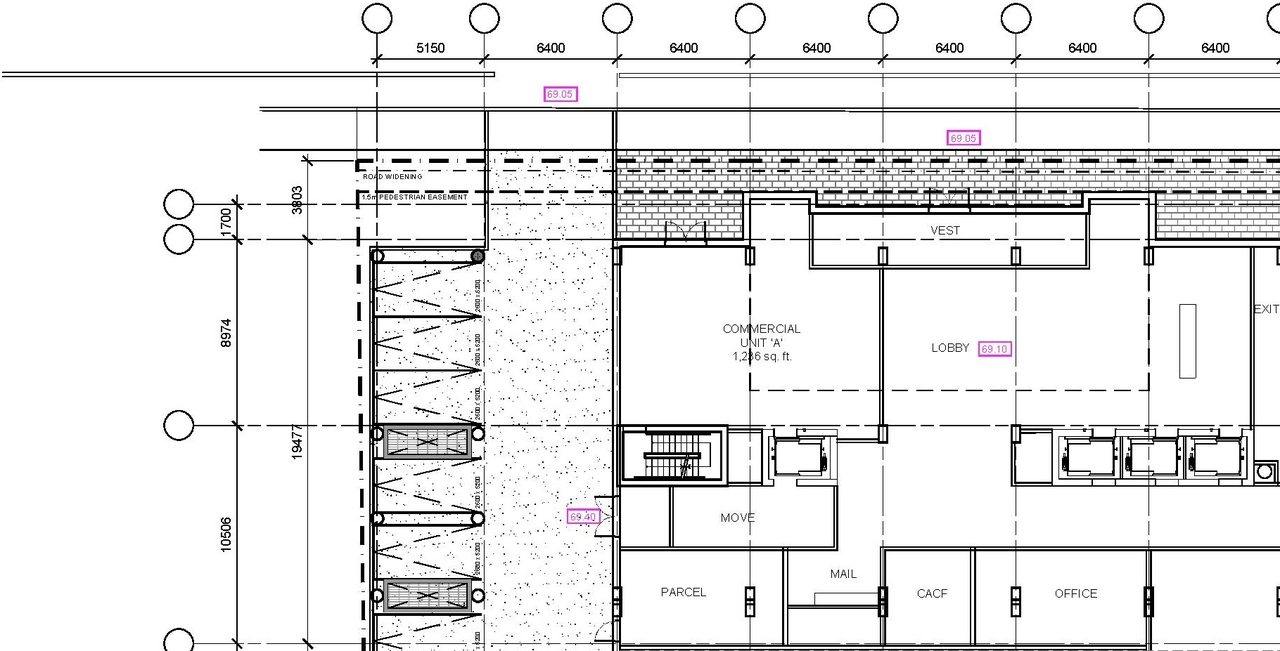
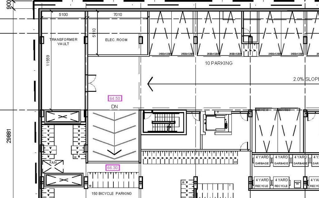
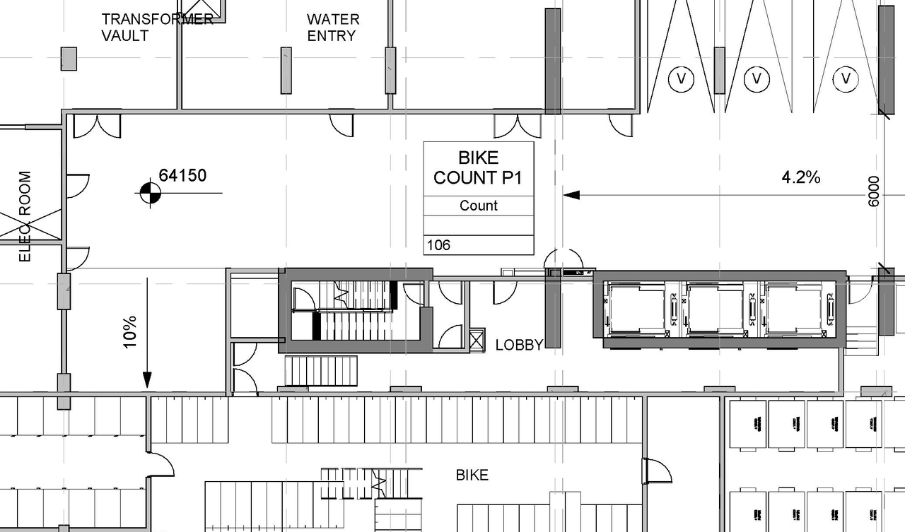
  • Construction site plan for project from page 29 of the file '2022-11-01 - Formal UDRP Presentation - D07-12-22-0128'
  • Construction site plan for project from page 10 of the file '2022-11-01 - Formal UDRP Presentation - D07-12-22-0128'
  • Construction site plan for project from page 25 of the file '2022-11-01 - Formal UDRP Presentation - D07-12-22-0128'
  • Construction site plan for project from page 3 of the file '2022-11-01 - Formal UDRP Presentation - D07-12-22-0128'
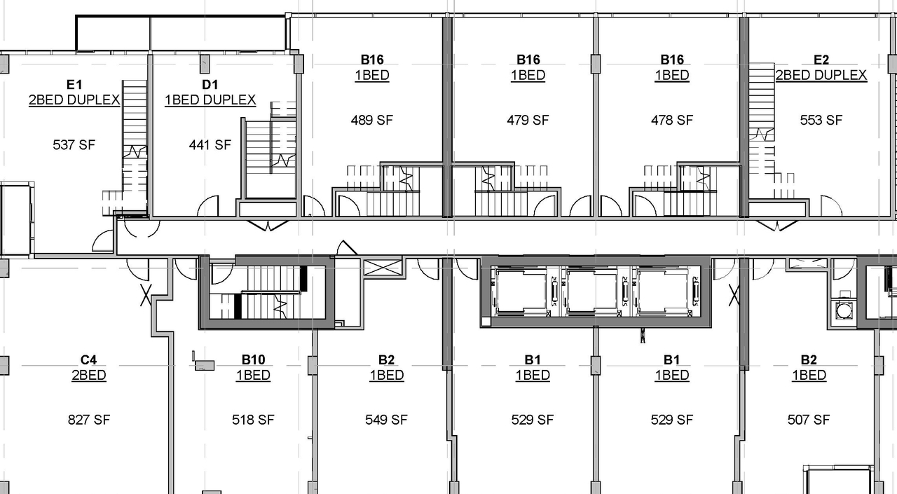
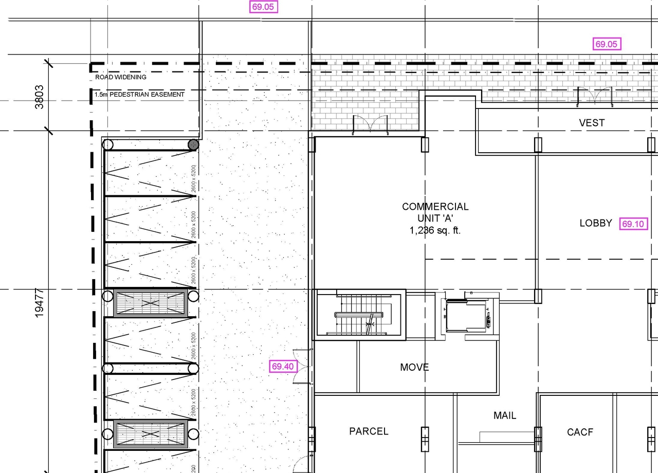
  • Construction site plan for project from page 1 of the file '2022-09-01 - Floor Plans - D07-12-22-0128'
  • Construction site plan for project from page 2 of the file '2023-07-13 - Elevation, Floor, Sunshade, Perspectives Plans - D07-12-22-0128'
  • Construction site plan for project from page 4 of the file '2022-09-01 - Floor Plans - D07-12-22-0128'
  • Construction site plan for project from page 1 of the file '2023-07-13 - Elevation, Floor, Sunshade, Perspectives Plans - D07-12-22-0128'
  • Construction site plan for project from page 7 of the file '2023-07-13 - Elevation, Floor, Sunshade, Perspectives Plans - D07-12-22-0128'
  • Construction site plan for project from page 29 of the file '2022-11-01 - Formal UDRP Presentation - D07-12-22-0128'
  • Construction site plan for project from page 7 of the file '2023-07-13 - Elevation, Floor, Sunshade, Perspectives Plans - D07-12-22-0128'
  • Construction site plan for project from page 9 of the file '2023-07-13 - Elevation, Floor, Sunshade, Perspectives Plans - D07-12-22-0128'
  • Construction site plan for project from page 28 of the file '2022-11-01 - Formal UDRP Presentation - D07-12-22-0128'
  • Construction site plan for project from page 7 of the file '2023-07-13 - Elevation, Floor, Sunshade, Perspectives Plans - D07-12-22-0128'
  • Construction site plan for project from page 7 of the file '2023-07-13 - Elevation, Floor, Sunshade, Perspectives Plans - D07-12-22-0128'
  • Construction site plan for project from page 7 of the file '2023-07-13 - Elevation, Floor, Sunshade, Perspectives Plans - D07-12-22-0128'
  • Construction site plan for project from page 8 of the file '2023-07-13 - Elevation, Floor, Sunshade, Perspectives Plans - D07-12-22-0128'
  • Construction site plan for project from page 7 of the file '2023-07-13 - Elevation, Floor, Sunshade, Perspectives Plans - D07-12-22-0128'
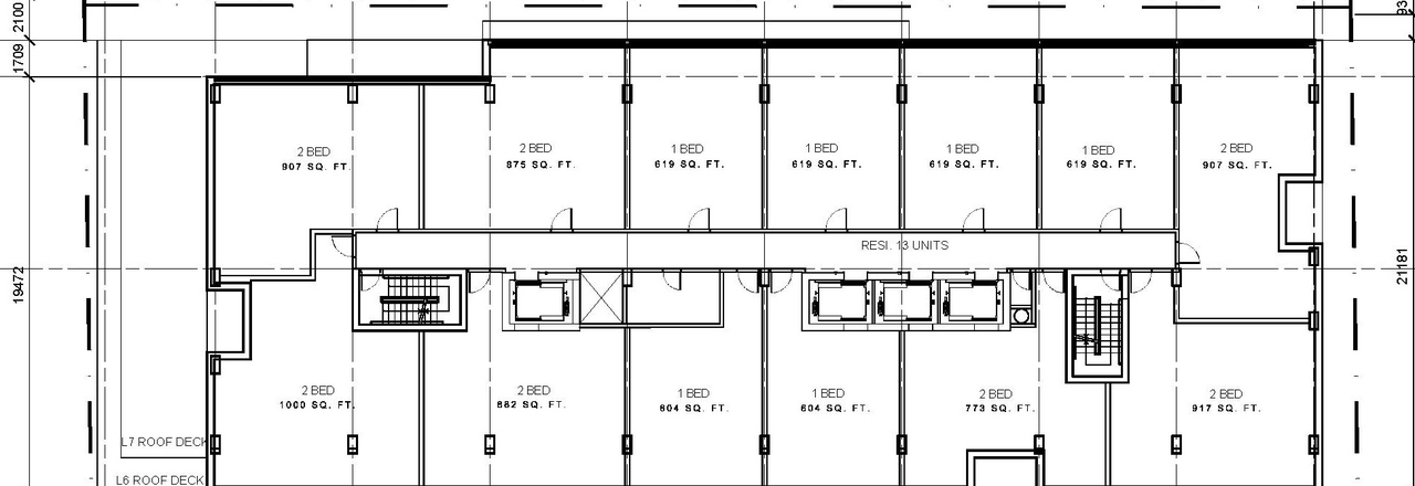
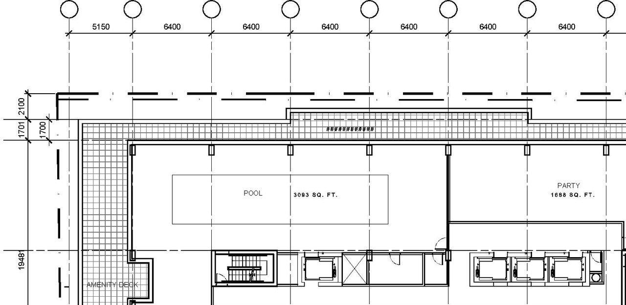
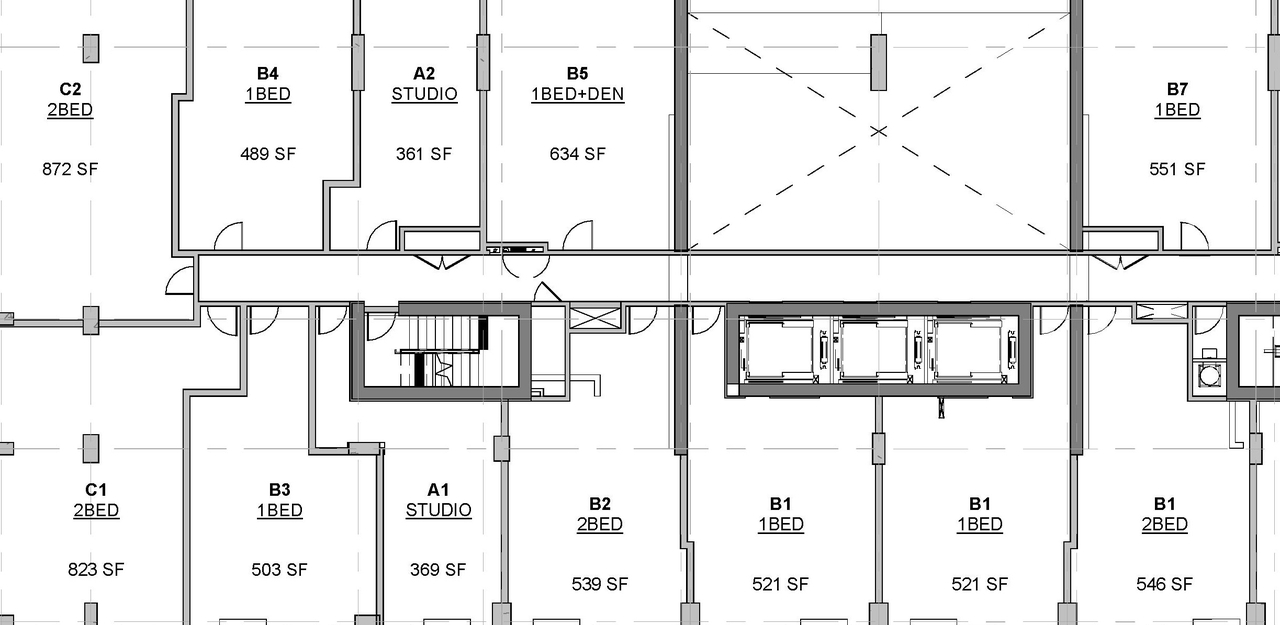
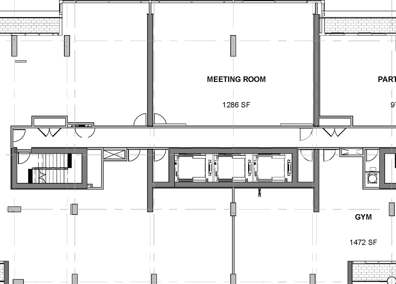
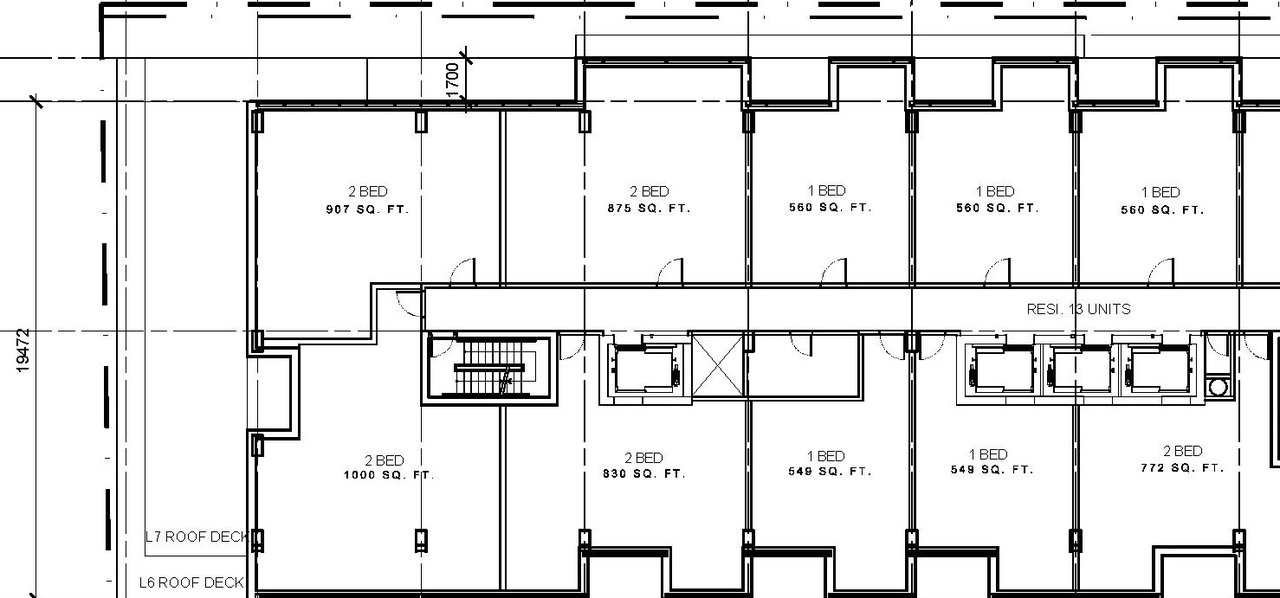
  • Floor plan for project from page 2 of the file '2022-09-01 - Floor Plans - D07-12-22-0128'
  • Floor plan for project from page 2 of the file '2022-09-01 - Floor Plans - D07-12-22-0128'
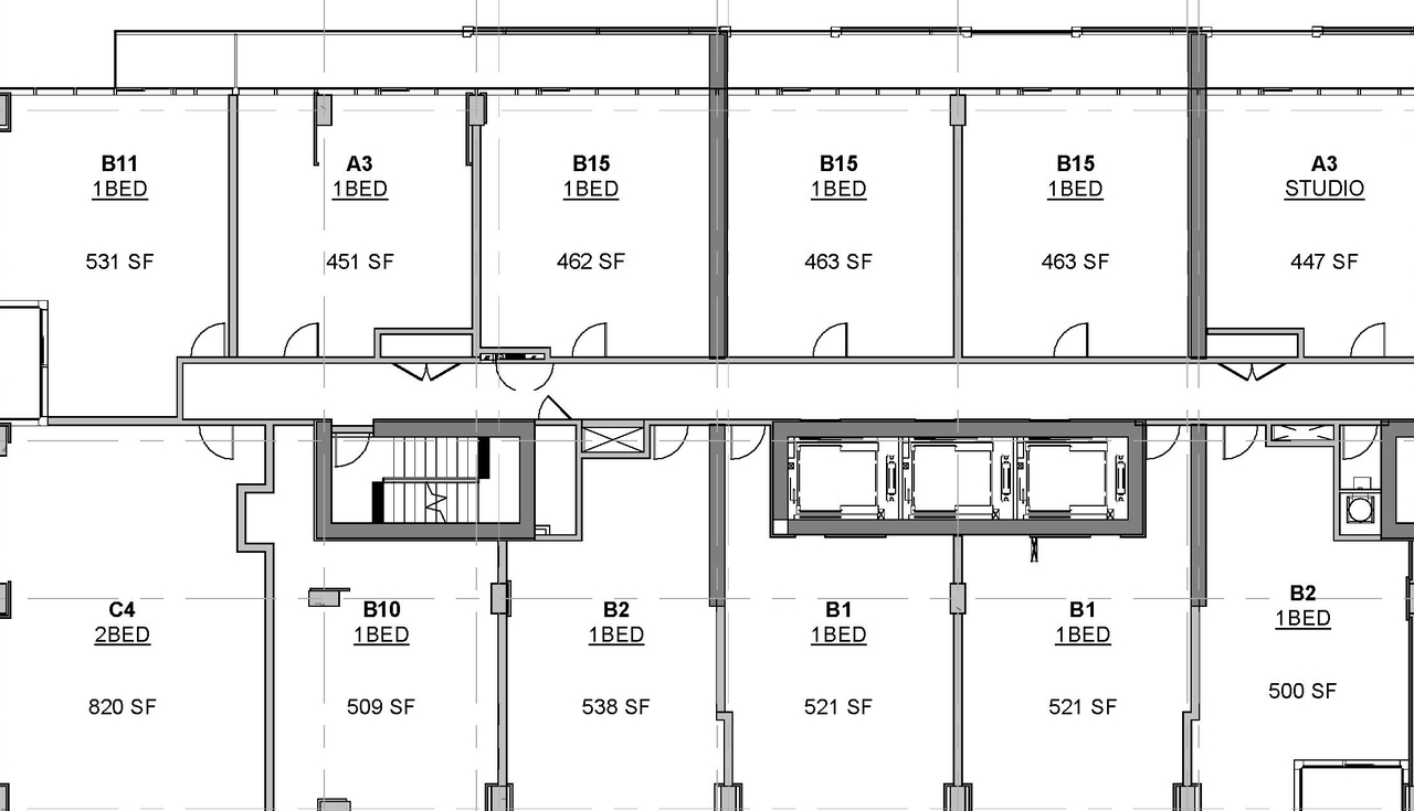
  • Floor plan for project from page 1 of the file '2023-07-13 - Elevation, Floor, Sunshade, Perspectives Plans - D07-12-22-0128'
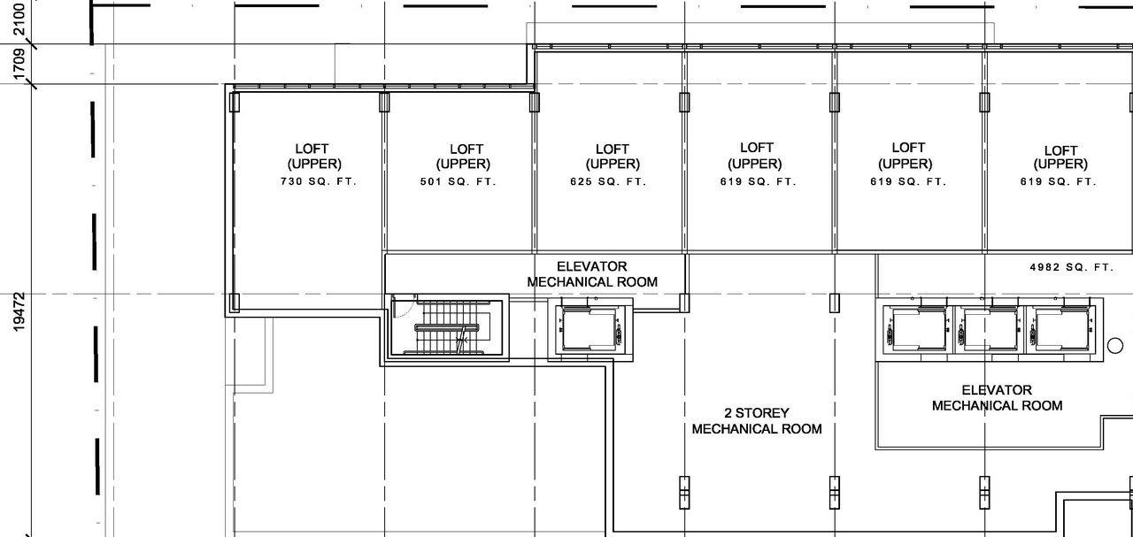
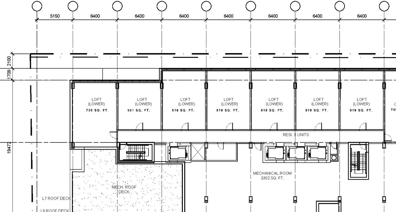
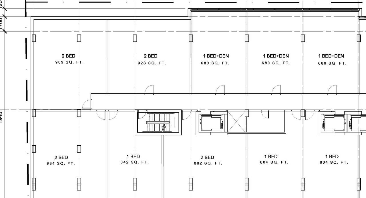
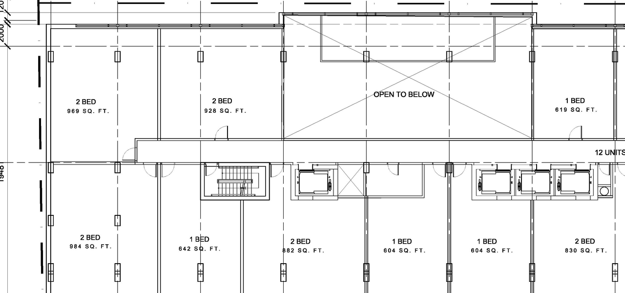
  • Floor plan for project from page 13 of the file '2022-11-01 - Formal UDRP Presentation - D07-12-22-0128'
  • Floor plan for project from page 12 of the file '2022-11-01 - Formal UDRP Presentation - D07-12-22-0128'
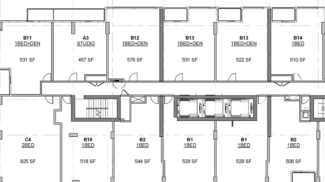
  • Floor plan for project from page 4 of the file '2022-09-01 - Floor Plans - D07-12-22-0128'
  • Floor plan for project from page 1 of the file '2022-09-01 - Floor Plans - D07-12-22-0128'
  • Floor plan for project from page 2 of the file '2023-07-13 - Elevation, Floor, Sunshade, Perspectives Plans - D07-12-22-0128'
  • Floor plan for project from page 13 of the file '2022-11-01 - Formal UDRP Presentation - D07-12-22-0128'
  • Floor plan for project from page 2 of the file '2023-07-13 - Elevation, Floor, Sunshade, Perspectives Plans - D07-12-22-0128'
  • Floor plan for project from page 4 of the file '2023-07-13 - Elevation, Floor, Sunshade, Perspectives Plans - D07-12-22-0128'
  • Floor plan for project from page 11 of the file '2022-11-01 - Formal UDRP Presentation - D07-12-22-0128'
  • Floor plan for project from page 3 of the file '2023-07-13 - Elevation, Floor, Sunshade, Perspectives Plans - D07-12-22-0128'
  • Floor plan for project from page 11 of the file '2022-11-01 - Formal UDRP Presentation - D07-12-22-0128'
  • Floor plan for project from page 12 of the file '2022-11-01 - Formal UDRP Presentation - D07-12-22-0128'
  • Floor plan for project from page 3 of the file '2023-07-13 - Elevation, Floor, Sunshade, Perspectives Plans - D07-12-22-0128'
  • Floor plan for project from page 2 of the file '2023-07-13 - Elevation, Floor, Sunshade, Perspectives Plans - D07-12-22-0128'
  • Floor plan for project from page 2 of the file '2023-07-13 - Elevation, Floor, Sunshade, Perspectives Plans - D07-12-22-0128'
  • Floor plan for project from page 3 of the file '2023-07-13 - Elevation, Floor, Sunshade, Perspectives Plans - D07-12-22-0128'
  • Floor plan for project from page 3 of the file '2022-09-01 - Floor Plans - D07-12-22-0128'
  • Image from page 1 of the file '2022-09-01 - Perspective Views - D07-12-22-0128'
  • Image from page 14 of the file '2022-11-01 - Formal UDRP Presentation - D07-12-22-0128'
  • Image from page 15 of the file '2022-11-01 - Formal UDRP Presentation - D07-12-22-0128'
  • Construction site plan for project from page 29 of the file '2022-11-01 - Formal UDRP Presentation - D07-12-22-0128'
  • Construction site plan for project from page 10 of the file '2022-11-01 - Formal UDRP Presentation - D07-12-22-0128'
  • Construction site plan for project from page 25 of the file '2022-11-01 - Formal UDRP Presentation - D07-12-22-0128'
  • Construction site plan for project from page 3 of the file '2022-11-01 - Formal UDRP Presentation - D07-12-22-0128'
  • Construction site plan for project from page 1 of the file '2022-09-01 - Floor Plans - D07-12-22-0128'
  • Construction site plan for project from page 2 of the file '2023-07-13 - Elevation, Floor, Sunshade, Perspectives Plans - D07-12-22-0128'
  • Construction site plan for project from page 4 of the file '2022-09-01 - Floor Plans - D07-12-22-0128'
  • Construction site plan for project from page 1 of the file '2023-07-13 - Elevation, Floor, Sunshade, Perspectives Plans - D07-12-22-0128'
  • Construction site plan for project from page 7 of the file '2023-07-13 - Elevation, Floor, Sunshade, Perspectives Plans - D07-12-22-0128'
  • Construction site plan for project from page 29 of the file '2022-11-01 - Formal UDRP Presentation - D07-12-22-0128'
  • Construction site plan for project from page 7 of the file '2023-07-13 - Elevation, Floor, Sunshade, Perspectives Plans - D07-12-22-0128'
  • Construction site plan for project from page 9 of the file '2023-07-13 - Elevation, Floor, Sunshade, Perspectives Plans - D07-12-22-0128'
  • Construction site plan for project from page 28 of the file '2022-11-01 - Formal UDRP Presentation - D07-12-22-0128'
  • Construction site plan for project from page 7 of the file '2023-07-13 - Elevation, Floor, Sunshade, Perspectives Plans - D07-12-22-0128'
  • Construction site plan for project from page 7 of the file '2023-07-13 - Elevation, Floor, Sunshade, Perspectives Plans - D07-12-22-0128'
  • Construction site plan for project from page 7 of the file '2023-07-13 - Elevation, Floor, Sunshade, Perspectives Plans - D07-12-22-0128'
  • Construction site plan for project from page 8 of the file '2023-07-13 - Elevation, Floor, Sunshade, Perspectives Plans - D07-12-22-0128'
  • Construction site plan for project from page 7 of the file '2023-07-13 - Elevation, Floor, Sunshade, Perspectives Plans - D07-12-22-0128'
  • Floor plan for project from page 2 of the file '2022-09-01 - Floor Plans - D07-12-22-0128'
  • Floor plan for project from page 2 of the file '2022-09-01 - Floor Plans - D07-12-22-0128'
  • Floor plan for project from page 1 of the file '2023-07-13 - Elevation, Floor, Sunshade, Perspectives Plans - D07-12-22-0128'
  • Floor plan for project from page 13 of the file '2022-11-01 - Formal UDRP Presentation - D07-12-22-0128'
  • Floor plan for project from page 12 of the file '2022-11-01 - Formal UDRP Presentation - D07-12-22-0128'
  • Floor plan for project from page 4 of the file '2022-09-01 - Floor Plans - D07-12-22-0128'
  • Floor plan for project from page 1 of the file '2022-09-01 - Floor Plans - D07-12-22-0128'
  • Floor plan for project from page 2 of the file '2023-07-13 - Elevation, Floor, Sunshade, Perspectives Plans - D07-12-22-0128'
  • Floor plan for project from page 13 of the file '2022-11-01 - Formal UDRP Presentation - D07-12-22-0128'
  • Floor plan for project from page 2 of the file '2023-07-13 - Elevation, Floor, Sunshade, Perspectives Plans - D07-12-22-0128'
  • Floor plan for project from page 4 of the file '2023-07-13 - Elevation, Floor, Sunshade, Perspectives Plans - D07-12-22-0128'
  • Floor plan for project from page 11 of the file '2022-11-01 - Formal UDRP Presentation - D07-12-22-0128'
  • Floor plan for project from page 3 of the file '2023-07-13 - Elevation, Floor, Sunshade, Perspectives Plans - D07-12-22-0128'
  • Floor plan for project from page 11 of the file '2022-11-01 - Formal UDRP Presentation - D07-12-22-0128'
  • Floor plan for project from page 12 of the file '2022-11-01 - Formal UDRP Presentation - D07-12-22-0128'
  • Floor plan for project from page 3 of the file '2023-07-13 - Elevation, Floor, Sunshade, Perspectives Plans - D07-12-22-0128'
  • Floor plan for project from page 2 of the file '2023-07-13 - Elevation, Floor, Sunshade, Perspectives Plans - D07-12-22-0128'
  • Floor plan for project from page 2 of the file '2023-07-13 - Elevation, Floor, Sunshade, Perspectives Plans - D07-12-22-0128'
  • Floor plan for project from page 3 of the file '2023-07-13 - Elevation, Floor, Sunshade, Perspectives Plans - D07-12-22-0128'
  • Floor plan for project from page 3 of the file '2022-09-01 - Floor Plans - D07-12-22-0128'

Additional Information#

Date Initiated2022-08-30
WardWard 14 - Ariel Troster
All Addresses150 Laurier Ave. W.
160 Laurier Ave. W.

Documents#

TypeDocument
Application Summary2022-09-13 - Application Summary - D07-12-22-0128
Architectural Plans2024-04-15 - Approved Site Plan - D07-12-22-0128
Architectural Plans2024-04-15 - Approved General Plan of Services - D07-12-22-0128
Architectural Plans2024-04-15 - Approved Elevations - West & South - D07-12-22-0128
Architectural Plans2024-04-15 - Approved Elevations - East & North - D07-12-22-0128
Architectural Plans2023-10-24 - Site Plan - D07-12-22-0128
Architectural Plans2023-10-24 - General Plan of Services - D07-12-22-0128
Architectural Plans2023-10-24 - Architectural Drawing Set - D07-12-22-0128
Architectural Plans2023-07-13 - Site Plan - D07-12-22-0128
Architectural Plans2023-07-13 - MEMO - Grading & Servicing Plan Review - D07-12-22-0128
Architectural Plans2023-07-13 - General Plan of Services - D07-12-22-0128
Architectural Plans2022-09-01 - Site Plan - D07-12-22-0128
Architectural Plans2022-09-01 - General Plan of Services - D07-12-22-0128
Architectural Plans2022-09-01 - Elevations - D07-12-22-0128
Design Brief2022-11-01 - Formal UDRP Presentation - D07-12-22-0128
Environmental2023-07-13 - Phase II Environmental Site Assessment - D07-12-22-0128
Environmental2023-07-13 - Phase I Environmental Site Assessment - D07-12-22-0128
Environmental2022-09-01 - Phase I Environmental Site Assessment - D07-12-22-0128
Existing Conditions2024-04-15 - Approved Existing Conditions and Removals Plan - D07-12-22-0128
Existing Conditions2023-10-24 - Existing Conditions and Removals Plan - D07-12-22-0128
Existing Conditions2022-09-01 - Existing Conditions and Removals Plan - D07-12-22-0128
Floor Plan2022-09-01 - Floor Plans - D07-12-22-0128
Geotechnical Report2024-04-15 - Geotechnical Investigation Memo 3 - D07-12-22-0128
Geotechnical Report2024-04-15 - Geotechnical Investigation Memo 1 - D07-12-22-0128
Geotechnical Report2024-04-15 - Approved Grading and Erosion & Sediment Control Plan - D07-12-22-0128
Geotechnical Report2023-10-24 - Grading and Erosion & Sediment Control Plan - D07-12-22-0128
Geotechnical Report2023-10-24 - Geotechnical Investigation - D07-12-22-0128
Geotechnical Report2023-07-13 - Grading and Erosion and Sediment Control Plan - D07-12-22-0128
Geotechnical Report2023-07-13 - Geotechnical Investigation - D07-12-22-0128
Geotechnical Report2022-09-01 - Grading and Erosion & Sediment Control Plan - D07-12-22-0128
Geotechnical Report2022-09-01 - Geotechnical Investigation - D07-12-22-0128
Landscape Plan2024-04-15 - Approved Landscape Concept - D07-12-22-0128
Landscape Plan2023-10-24 - Landscape Concept - D07-12-22-0128
Landscape Plan2023-07-13 - Landscape Concept Plan - D07-12-22-0128
Landscape Plan2022-09-01 - Landscape Plan - D07-12-22-0128
Noise Study2022-09-01 - Traffic Noise Assessment - D07-12-22-0128
Planning2022-09-01 - Planning Rationale and Design Brief - D07-12-22-0128
Rendering2023-07-13 - Elevation, Floor, Sunshade, Perspectives Plans - D07-12-22-0128
Rendering2022-09-01 - Renderings - D07-12-22-0128
Rendering2022-09-01 - Perspective Views - D07-12-22-0128
Shadow Study2022-09-01 - Shadow Study - D07-12-22-0128
Site Servicing2023-10-24 - Servicing Study and SWM Report - D07-12-22-0128
Site Servicing2023-07-13 - Servicing Study and Stormwater Management Report - D07-12-22-0128
Site Servicing2022-09-01 - Servicing Study and SWM Report - D07-12-22-0128
Stormwater Management2024-04-15 - Approved Pre-Dev Storm Drainage Plan - D07-12-22-0128
Stormwater Management2024-04-15 - Approved Post-Dev Stormwater Management Plan - D07-12-22-0128
Stormwater Management2023-10-24 - Pre and Post-Development Stormwater Management Plan - D07-12-22-0128
Stormwater Management2023-07-13 - Pre-Development Storm Drainage Plan - D07-12-22-0128
Stormwater Management2023-07-13 - Post-Development Stormwater Management Plan - D07-12-22-0128
Surveying2022-09-01 - Survey Plan - D07-12-22-0128
Transportation Analysis2024-04-15 - Transportation Impact Assessment - D07-12-22-0128
Transportation Analysis2022-09-01 - Transportation Impact Assessment - D07-12-22-0128
Tree Information and Conservation2022-09-01 - Tree Conservation Report - D07-12-22-0128
Wind Study2022-09-01 - Wind Study - D07-12-22-0128
2024-04-15 - Signed Delegated Authority Report - D07-12-22-0128
2022-11-18 - Cultural Heritage Impact Statement - D07-12-22-0128
2022-10-24 - Cultural Heritage Impact Statement - D07-12-22-0128