Ottawa Development Projects

15-17 Oblats#

Last updated: 2025-09-09 · ID: D07-12-22-0124

Summary#

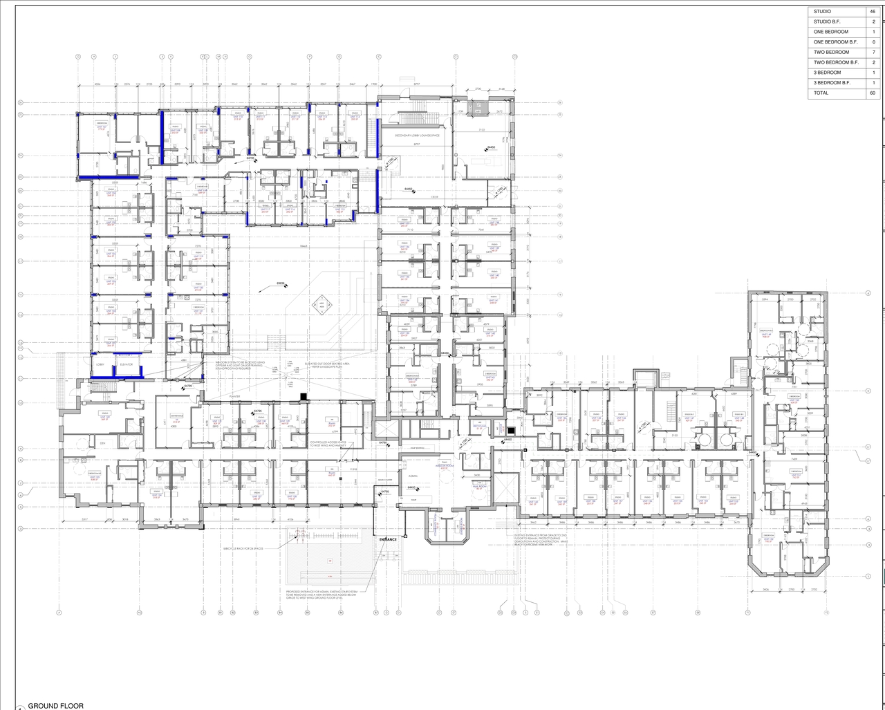
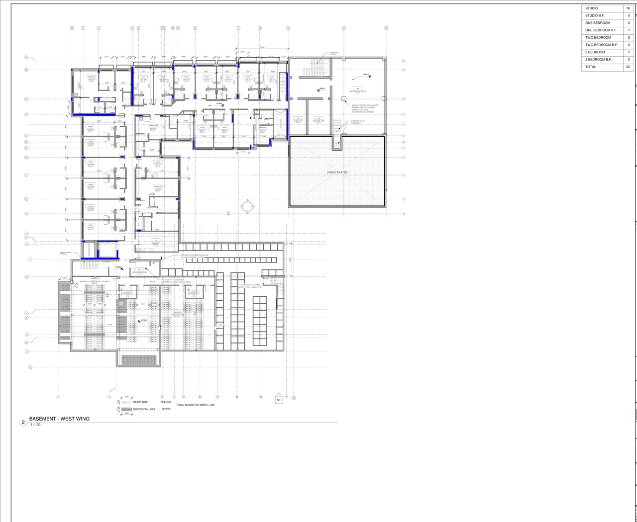
The proposed development is a 1,019 square metre addition to the existing building and the conversion of the existing building to rental units. A total of 284 residential units are proposed, with 20 vehicular parking spaces, 291 bicycle parking spaces, and 2,834 square metres of amenity space (indoor and outdoor)

Status
Post Approval (Receipt of Agreement from Owner Pending)

Building Scale (Max.) Based on elevation drawings. Values may be approximate. See sources for exact figures.
Low-rise · 2 storeys Data Quality Note Text was extracted using optical character recognition. This may introduce artifacts or misreads.

Location#

Select a marker to view the address.

Site Plans, Elevations and Floor Plans#

Additional Information#

Date Initiated2022-08-23
WardWard 17 - Shawn Menard
All Addresses15 Oblats
17 Oblats

Documents#

TypeDocument
Application Summary2022-09-21 - Application Summary - D02-02-22-0083 & D07-12-22-0124
Architectural Plans2023-03-30 - Site Plan - D07-12-22-0124
Architectural Plans2023-03-30 - Removal Plan - D07-12-22-0124
Architectural Plans2023-03-30 - Elevations - D07-12-22-0124
Architectural Plans2022-08-23 - Site Plan - D07-12-22-0124
Architectural Plans2022-08-23 - Floor & Elevation Drawings - D07-12-22-0124
Architectural Plans2022-08-23 - Conservation Plan - D07-12-22-0124
Architectural Plans2024-09-11 - Site Plan - D07-12-22-0124
Architectural Plans2024-09-11 - Removal Plan - D07-12-22-0124
Architectural Plans2024-09-11 - Elevations - D07-12-22-0124
Architectural Plans2024-11-15 - Typical 2B Corner Unit Plan - D07-12-22-0124
Architectural Plans2024-11-15 - Site Plan - D07-12-22-0124
Architectural Plans2024-11-15 - Removal Plan - D07-12-22-0124
Architectural Plans2024-11-15 - Partial North Elevation - D07-12-22-0124
Architectural Plans2025-02-11 - Approved Site Plan - D07-12-22-0124
Architectural Plans2025-02-11 - Approved Planting Plan - D07-12-22-0124
Architectural Plans2025-02-11 - Approved Elevations - D07-12-22-0124
Civil Engineering Report2022-08-23 - Civil Plans - D07-12-22-0124
Civil Engineering Report2025-02-11 - Approved Civil Plans - D07-12-22-0124
Electrical Plan2024-11-15 - Lighting Calculation - D07-12-22-0124
Environmental2022-08-23 - Phase Two Environmental Site Assessment - D07-12-22-0124
Environmental2022-08-23 - Phase 1 Environmental Site Assessment - D07-12-22-0124
Erosion And Sediment Control Plan2023-03-30 - Erosion and Sediment Control - D07-12-22-0124
Erosion And Sediment Control Plan2024-09-11 - Erosion and Sediment Control Plan - D07-12-22-0124
Erosion And Sediment Control Plan2024-11-15 - Erosion and Sediment Control Plan - D07-12-22-0124
Floor Plan2023-03-30 - Floor Plans - D07-12-22-0124
Geotechnical Report2023-03-30 - Grading Plan - D07-12-22-0124
Geotechnical Report2023-03-30 - Grading & Servicing Plan Review Memo - D07-12-22-0124
Geotechnical Report2023-03-30 - Geotechnical Investigation - D07-12-22-0124
Geotechnical Report2022-08-23 - Geotechnical Investigation Report - D07-12-22-0124
Geotechnical Report2024-09-11 - Grading Plan - D07-12-22-0124
Geotechnical Report2024-09-11 - Geotechnical Investigation Report - D07-12-22-0124
Geotechnical Report2024-11-15 - Grading Plan - D07-12-22-0124
Geotechnical Report2024-11-15 - Geotechnical Investigation Report - D07-12-22-0124
Landscape Plan2022-08-23 - Landscape Plan - D07-12-22-0124
Landscape Plan2024-09-11 - Landscape Plan - D07-12-22-0124
Landscape Plan2024-11-15 - Landscape Plan - D07-12-22-0124
Noise Study2023-03-30 - Roadway Traffic Noise Addendum Letter - D07-12-22-0124
Noise Study2022-08-23 - Traffic Noise - D07-12-22-0124
Noise Study2024-11-15 - Noise Addendum Letter - D07-12-22-0124
Planning2023-03-30 - Planning Rationale Addendum - D07-12-22-0124
Planning2023-03-30 - Planning Rationale - D07-12-22-0124
Planning2022-08-23 - Planning Rationale & Design Brief -D07-12-22-0124
Shadow Study2023-03-30 - Shadow Study - D07-12-22-0124
Site Servicing2023-03-30 - Site Servicing Report - D07-12-22-0124
Site Servicing2023-03-30 - Servicing Plan - D07-12-22-0124
Site Servicing2022-08-23 - Site Servicing Report - D07-12-22-0124
Site Servicing2024-09-11 - Site Servicing Report - D07-12-22-0124
Site Servicing2024-09-11 - Servicing Plan - D07-12-22-0124
Site Servicing2024-11-15 - Servicing Plan - D07-12-22-0124
Stormwater Management2023-03-30 - Stormwater Management Report - D07-12-22-0124
Stormwater Management2022-08-23 - Stormwater Management Report - D07-12-22-0124
Stormwater Management2024-09-11 - Stormwater Management Report - D07-12-22-0124
Surveying2022-08-23 - Topographical Plan of Survey - D07-12-22-0124
Transportation Analysis2023-03-30 - Transportation Impact Assessment - D07-12-22-0124
Transportation Analysis2022-08-23 - Transportation Impact Assessment -D07-12-22-0124
Tree Information and Conservation2023-03-30 - Tree Conservation Report & Landscape Plan - D07-12-22-0124
Tree Information and Conservation2024-09-11 - Tree Conservation Report - D07-12-22-0124
Tree Information and Conservation2024-11-15 - Tree Conservation Report - D07-12-22-0124
2023-03-30 - Unit Mix Analysis - D07-12-22-0124
2022-09-27 - Exterior Aerial 2 - D07-12-22-0124
2022-09-27 - Exterior Aerial 1 - D07-12-22-0124
2024-09-11 - Sections - D07-12-22-0124
2024-09-11 - Project Statistics - D07-12-22-0124
2024-09-11 - FloorPlans - D07-12-22-0124
2024-11-27 - Undertaking Letter - D07-12-22-0124
2025-02-11 - Delegated Authority Report SIGNED - D07-12-22-0124