Ottawa Development Projects

1375 Hemlock Rd.#

Last updated: 2023-06-02 · ID: D07-12-22-0122

Summary#

A Site Plan Control application to construct a 9-storey mixed-use building

Status
File Pending (Application File Pending)

Building Scale (Max.) Based on elevation drawings. Values may be approximate. See sources for exact figures.
Mid-rise · 9 storeys · 32.25 m

Renders#

Location#

Select a marker to view the address.

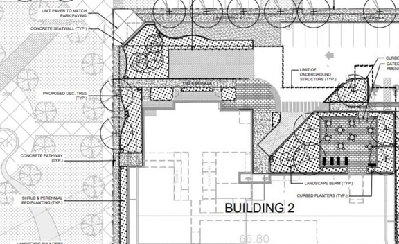
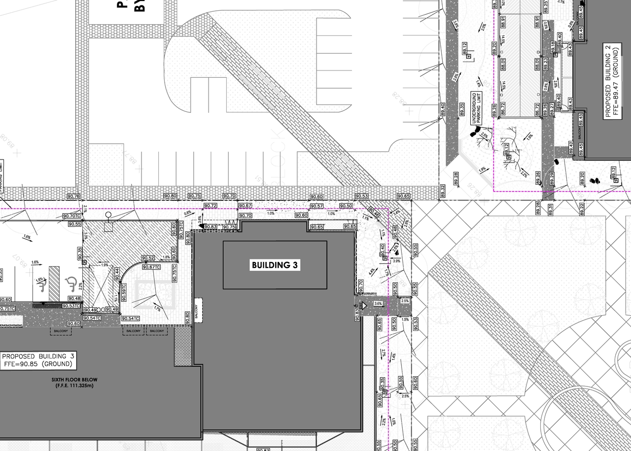
Site Plans, Elevations and Floor Plans#

  • Image from page 12 of the file '2022-08-16 - Design Brief - D07-12-22-01221'
  • Image from page 11 of the file '2022-08-16 - Design Brief - D07-12-22-01221'
  • Image from page 67 of the file '2022-08-16 - Design Brief - D07-12-22-0122'
  • Image from page 11 of the file '2022-08-16 - Design Brief - D07-12-22-01221'
  • Image from page 11 of the file '2022-08-16 - Design Brief - D07-12-22-01221'
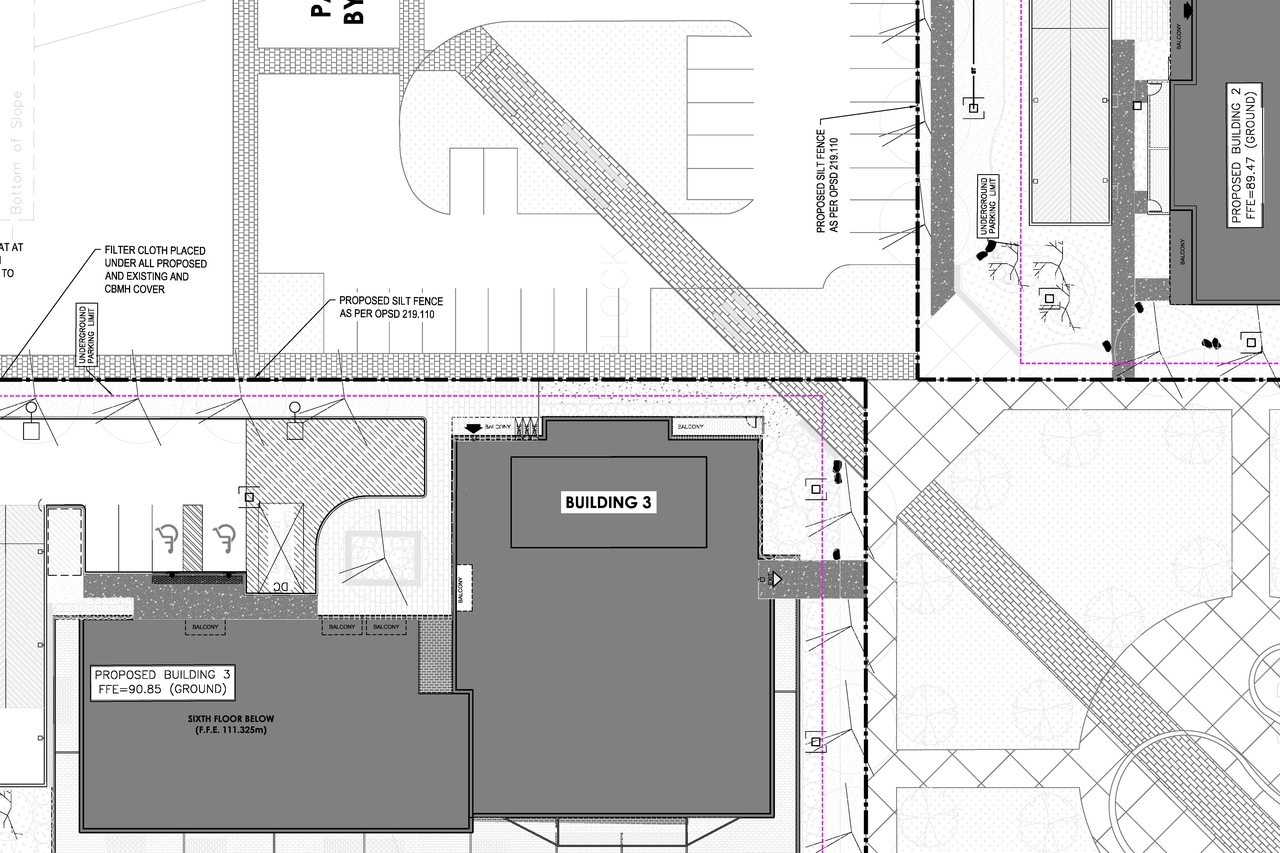
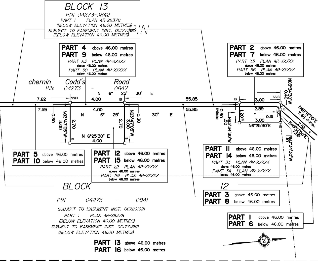
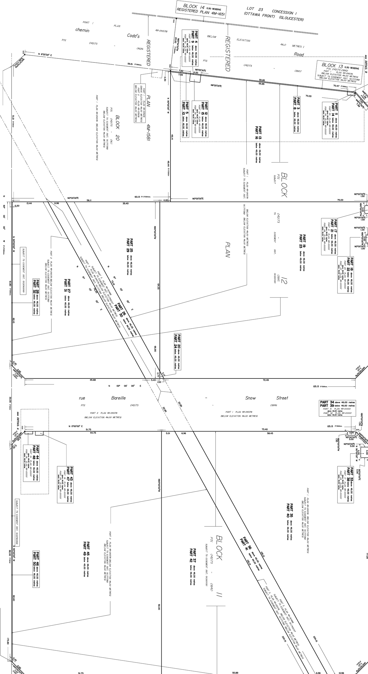
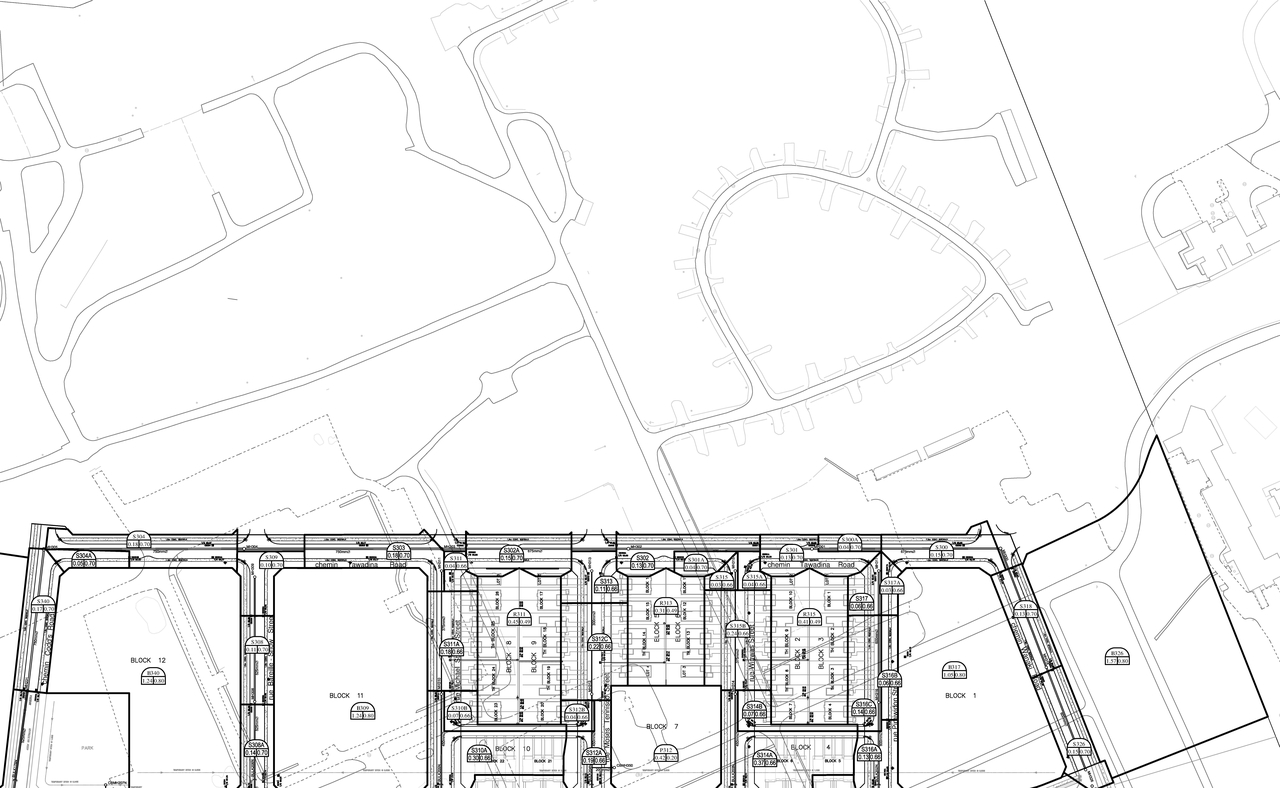
  • Construction site plan for project from page 113 of the file '2022-08-16 - Design Brief - D07-12-22-0122'
  • Construction site plan for project from page 116 of the file '2022-08-16 - Design Brief - D07-12-22-0122'
  • Construction site plan for project from page 112 of the file '2022-08-16 - Design Brief - D07-12-22-0122'
  • Construction site plan for project from page 110 of the file '2022-08-16 - Design Brief - D07-12-22-0122'
  • Construction site plan for project from page 118 of the file '2022-08-16 - Design Brief - D07-12-22-0122'
  • Construction site plan for project from page 109 of the file '2022-08-16 - Design Brief - D07-12-22-0122'
  • Construction site plan for project from page 1 of the file '2024-02-21 - Site Floor Elevations Views Plans - D07-12-22-0122'
  • Construction site plan for project from page 34 of the file '2022-08-16 - Design Brief - D07-12-22-0122'
  • Construction site plan for project from page 117 of the file '2022-08-16 - Design Brief - D07-12-22-0122'
  • Construction site plan for project from page 54 of the file '2022-08-16 - Design Brief - D07-12-22-0122'
  • Construction site plan for project from page 7 of the file '2022-08-16 - Design Brief - D07-12-22-01221'
  • Construction site plan for project from page 5 of the file '2022-08-16 - Design Brief - D07-12-22-01221'
  • Construction site plan for project from page 8 of the file '2022-08-16 - Design Brief - D07-12-22-01221'
  • Construction site plan for project from page 35 of the file '2022-08-16 - Design Brief - D07-12-22-0122'
  • Construction site plan for project from page 69 of the file '2022-08-16 - Design Brief - D07-12-22-0122'
  • Construction site plan for project from page 35 of the file '2022-08-16 - Design Brief - D07-12-22-0122'
  • Construction site plan for project from page 13 of the file '2022-08-16 - Design Brief - D07-12-22-0122'
  • Construction site plan for project from page 67 of the file '2022-08-16 - Design Brief - D07-12-22-0122'
  • Construction site plan for project from page 51 of the file '2022-08-16 - Design Brief - D07-12-22-0122'
  • Construction site plan for project from page 8 of the file '2022-08-16 - Design Brief - D07-12-22-01221'
  • Construction site plan for project from page 87 of the file '2022-08-16 - Design Brief - D07-12-22-0122'
  • Floor plan for project from page 35 of the file '2022-08-16 - Design Brief - D07-12-22-0122'
  • Image from page 12 of the file '2022-08-16 - Design Brief - D07-12-22-01221'
  • Image from page 11 of the file '2022-08-16 - Design Brief - D07-12-22-01221'
  • Image from page 67 of the file '2022-08-16 - Design Brief - D07-12-22-0122'
  • Image from page 11 of the file '2022-08-16 - Design Brief - D07-12-22-01221'
  • Image from page 11 of the file '2022-08-16 - Design Brief - D07-12-22-01221'
  • Construction site plan for project from page 113 of the file '2022-08-16 - Design Brief - D07-12-22-0122'
  • Construction site plan for project from page 116 of the file '2022-08-16 - Design Brief - D07-12-22-0122'
  • Construction site plan for project from page 112 of the file '2022-08-16 - Design Brief - D07-12-22-0122'
  • Construction site plan for project from page 110 of the file '2022-08-16 - Design Brief - D07-12-22-0122'
  • Construction site plan for project from page 118 of the file '2022-08-16 - Design Brief - D07-12-22-0122'
  • Construction site plan for project from page 109 of the file '2022-08-16 - Design Brief - D07-12-22-0122'
  • Construction site plan for project from page 1 of the file '2024-02-21 - Site Floor Elevations Views Plans - D07-12-22-0122'
  • Construction site plan for project from page 34 of the file '2022-08-16 - Design Brief - D07-12-22-0122'
  • Construction site plan for project from page 117 of the file '2022-08-16 - Design Brief - D07-12-22-0122'
  • Construction site plan for project from page 54 of the file '2022-08-16 - Design Brief - D07-12-22-0122'
  • Construction site plan for project from page 7 of the file '2022-08-16 - Design Brief - D07-12-22-01221'
  • Construction site plan for project from page 5 of the file '2022-08-16 - Design Brief - D07-12-22-01221'
  • Construction site plan for project from page 8 of the file '2022-08-16 - Design Brief - D07-12-22-01221'
  • Construction site plan for project from page 35 of the file '2022-08-16 - Design Brief - D07-12-22-0122'
  • Construction site plan for project from page 69 of the file '2022-08-16 - Design Brief - D07-12-22-0122'
  • Construction site plan for project from page 35 of the file '2022-08-16 - Design Brief - D07-12-22-0122'
  • Construction site plan for project from page 13 of the file '2022-08-16 - Design Brief - D07-12-22-0122'
  • Construction site plan for project from page 67 of the file '2022-08-16 - Design Brief - D07-12-22-0122'
  • Construction site plan for project from page 51 of the file '2022-08-16 - Design Brief - D07-12-22-0122'
  • Construction site plan for project from page 8 of the file '2022-08-16 - Design Brief - D07-12-22-01221'
  • Construction site plan for project from page 87 of the file '2022-08-16 - Design Brief - D07-12-22-0122'
  • Floor plan for project from page 35 of the file '2022-08-16 - Design Brief - D07-12-22-0122'

Additional Information#

Date Initiated2022-08-16
WardWard 13 - Rawlson King

Documents#

TypeDocument
Application Summary2022-09-15 - Application Summary - D07-12-22-0122
Architectural Plans2023-12-22 - Park Plans - D07-12-22-0122
Architectural Plans2023-12-22 - Architectural Drawing Package - D07-12-22-0122
Architectural Plans2023-06-09 - Site, Floor Elevation Plans -D07-12-22-0122
Architectural Plans2023-06-09 - Site Plan - D07-12-22-0122
Architectural Plans2022-08-16 - Site Plan - D07-12-22-0122
Architectural Plans2022-08-16 - Notes and details - D07-12-22-0122
Civil Engineering Report2024-02-21 - Civil Plans - D07-12-22-0122
Civil Engineering Report2023-12-22 - Civil Plans - D07-12-22-0122
Civil Engineering Report2023-06-09 - Civil Drawings - D07-12-22-0122 (2)
Civil Engineering Report2023-06-09 - Civil Drawings - D07-12-22-0122 (2)
Civil Engineering Report2023-06-09 - Civil Drawings - D07-12-22-0122
Design Brief2022-08-16 - Design Brief - D07-12-22-01221
Design Brief2022-08-16 - Design Brief - D07-12-22-0122
Environmental2024-02-21 - Phase One Environmental Site Assessment - D07-12-22-0122
Environmental2022-08-16 - Phase One Environmental Site Assessment Update Letter - D07-12-22-0122
Geotechnical Report2024-02-21 - Geotechnical Report - D07-12-22-0122
Geotechnical Report2023-12-22 - Grading Plans - D07-12-22-0122
Geotechnical Report2023-12-22 - Geotechnical Report - D07-12-22-0122
Geotechnical Report2023-06-09 - Geotechnical Deep Sewer memo - D07-12-22-0122
Geotechnical Report2022-08-16 - Subsurface Investigation Report - D07-12-22-01221
Landscape Plan2024-02-21 - Landscape Plan - D07-12-22-0122
Landscape Plan2024-02-21 - Landscape General Notes and Details - D07-12-22-0122
Landscape Plan2023-12-22 - Landscape Plans - D07-12-22-0122
Landscape Plan2023-06-09 - Landscape Plan - D07-12-22-0122
Landscape Plan2022-08-16 - Landscape Plan - D07-12-22-0122
Noise Study2024-02-21 - Roadway Traffic Noise - D07-12-22-0122
Noise Study2024-02-21 - Noise Addendum Letter - D07-12-22-0122
Noise Study2023-12-22 - Roadway Traffic Noise Assessment - D07-12-22-0122
Noise Study2023-06-09 - Noise Addendum Letter - D07-12-22-0122
Noise Study2022-08-16 - Roadway Traffic Noise Assessment - D07-12-22-0122
Planning2022-08-16 - Planning Rationale - D07-12-22-0122
Rendering2024-02-21 - Site Floor Elevations Views Plans - D07-12-22-0122
Shadow Study2022-08-16 - Shadow Study - D07-12-22-0122
Site Servicing2024-02-21 - Servicing Report - D07-12-22-0122
Site Servicing2024-01-11 - Servicing Report - D07-12-22-0122
Site Servicing2023-06-09 - Servicing Report - D07-12-22-0122 (2)
Site Servicing2023-06-09 - Servicing Report - D07-12-22-0122
Site Servicing2022-08-16 - Servicing Drawings - D07-12-22-0122
Stormwater Management2024-02-21 - Stormwater Management Report - D07-12-22-0122
Stormwater Management2023-12-22 - SWM Report - D07-12-22-0122
Stormwater Management2023-06-09 - STORMWATER MANAGEMENT REPORT - D07-12-22-0122 (2)
Stormwater Management2023-06-09 - STORMWATER MANAGEMENT REPORT - D07-12-22-0122
Surveying2022-08-16 - Strata Plan of survey - D07-12-22-0122
Transportation Analysis2023-12-22 - Transportation Impact Assessment-Step 3 & 4 Forecasting & Analysis - D07-12-22-0122
Transportation Analysis2022-08-16 - Transportation Impact Assessment - D07-12-22-0122
2023-12-22 - Sewer Vibrat Load Effects - D07-12-22-0122
2023-12-22 - Impact Resistance Comparison Chart - D07-12-22-0122
2023-06-09 - Memo - Confirmation of Project Requirements - D07-12-22-0122
2023-06-09 - Implementation and Planning - D07-12-22-0122
2023-06-09 - Assessment of Revised Block 11 and 12 Storm and Sanitary - D07-12-22-0122