Ottawa Development Projects

211 Armstrong St.#

Last updated: 2024-11-30 · ID: D07-12-22-0120

Summary#

Three-storey low-rise apartment building including 12 apartment units.

Status
Inactive (Agreement Registered - Final Legal Clearance Given)

Building Scale (Max.) Based on elevation drawings. Values may be approximate. See sources for exact figures.
Low-rise · 3 storeys · 10.65 m

Location#

Select a marker to view the address.

Site Plans, Elevations and Floor Plans#

Additional Information#

Date Initiated2022-08-03
WardWard 15 - Jeff Leiper

Documents#

TypeDocument
Application Summary2022-10-11 - Application Summary - D07-12-22-0120
Architectural Plans2024-05-24 - Approved Site Plan - D07-12-22-0120
Architectural Plans2024-05-24 - Approved Elevations - D07-12-22-0120
Architectural Plans2023-04-12 - Site Plan - D02-02-22-0079 - D07-12-22-0120
Architectural Plans2023-04-12 - Elevations - D02-02-22-0079 - D07-12-22-0120
Architectural Plans2022-08-03 - Site Plan - D07-12-22-0120
Architectural Plans2022-08-03 - Elevations - D07-12-22-0120
Environmental2022-08-03 - Phase I Environmental Site Assessment - D07-12-22-0120
Erosion And Sediment Control Plan2024-05-24 - Approved Erosion Control Plan & Detail Sheet - D07-12-22-0120
Erosion And Sediment Control Plan2023-04-12 - Erosion Control Plan and Detail Sheet - D02-02-22-0079 - D07-12-22-0120
Erosion And Sediment Control Plan2022-08-03 - Erosion Control Plan and Detail Sheet - D07-12-22-0120
Existing Conditions2024-05-24 - Approved Existing Conditions Storm Drainage Plan - D07-12-22-0120
Existing Conditions2024-05-24 - Approved Existing Conditions & Removals Plan - D07-12-22-0120
Existing Conditions2023-04-12 - Existing Conditions Storm Drainage Plan - D02-02-22-0079 - D07-12-22-0120
Existing Conditions2023-04-12 - Existing Conditions and Removals Plan - D02-02-22-0079 - D07-12-22-0120
Existing Conditions2022-08-03 - Existing Conditions Storm Drainage Plan - D07-12-22-0120
Existing Conditions2022-08-03 - Existing Conditions and Removals Plan - D07-12-22-0120
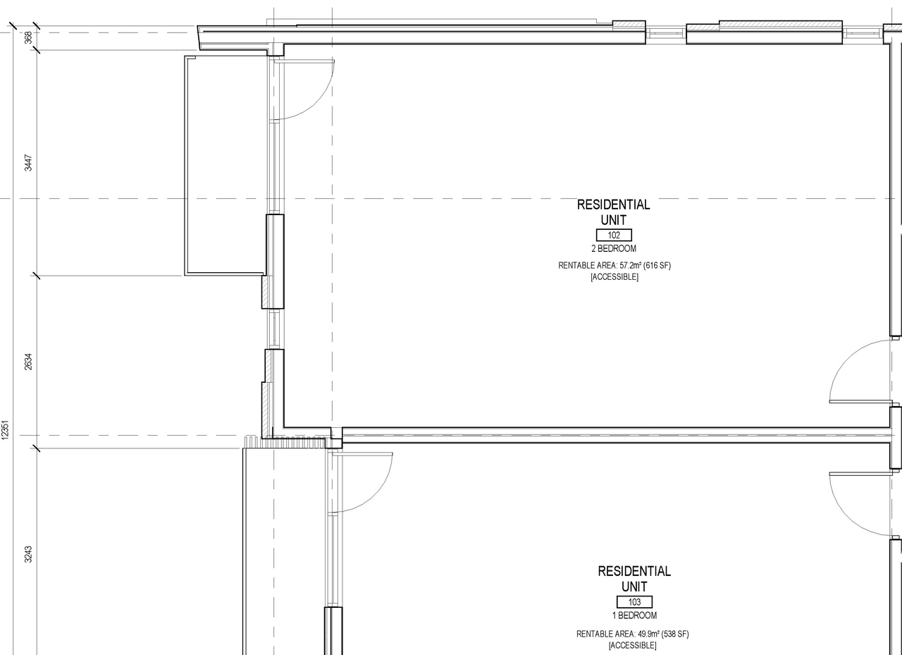
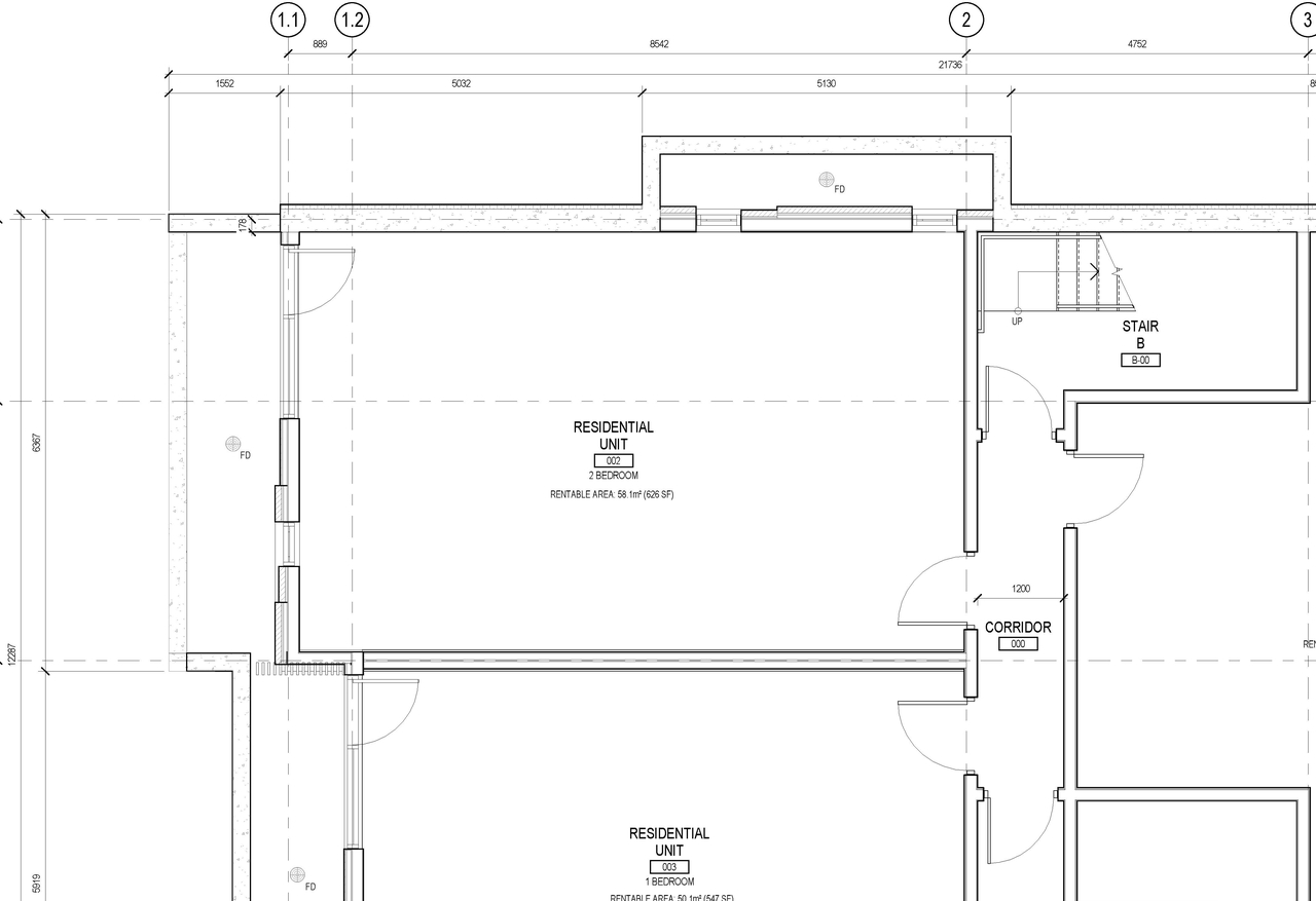
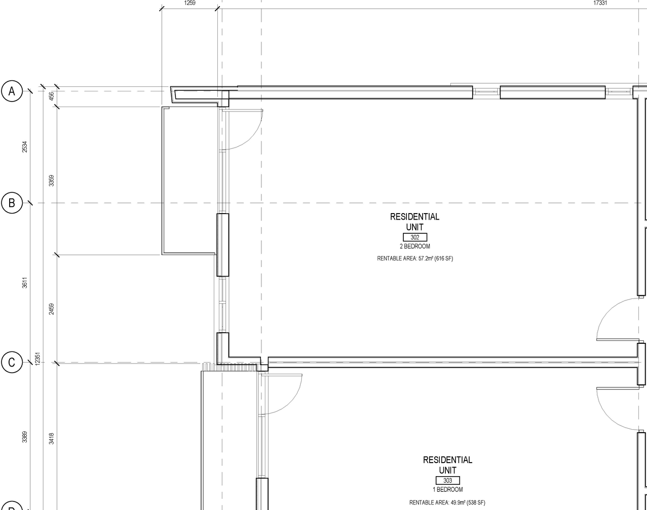
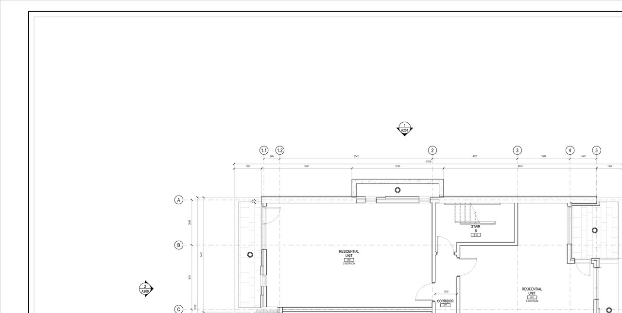
Floor Plan2023-04-12 - Floor Plans - D02-02-22-0079 - D07-12-22-0120
Floor Plan2022-08-03 - Floor Plans - D07-12-22-0120
Geotechnical Report2024-05-24 - Approved Grading Plan - D07-12-22-0120
Geotechnical Report2023-04-12 - Grading Plan - D02-02-22-0079 - D07-12-22-0120
Geotechnical Report2023-04-12 - Geotechnical Investigation - D02-02-22-0079 - D07-12-22-0120
Geotechnical Report2022-08-03 - Grading Plan - D07-12-22-0120
Geotechnical Report2022-08-03 - Geotechnical Investigation - D07-12-22-0120
Landscape Plan2024-05-24 - Approved Landscape Plan & Construction Details - D07-12-22-0120
Landscape Plan2023-04-12 - Landscape Plan (& Construction Details) - D02-02-22-0079 - D07-12-22-0120
Landscape Plan2022-08-03 - Landscape Plan - D07-12-22-0120
Noise Study2022-11-09 - Noise Study
Planning2022-08-03 - Planning Rationale - D07-12-22-0120
Site Servicing2024-05-24 - Approved Site Servicing Plan - D07-12-22-0120
Site Servicing2023-04-12 - Site Servicing Plan - D02-02-22-0079 - D07-12-22-0120
Site Servicing2022-08-03 - Site Servicing Plan - D07-12-22-0120
Stormwater Management2024-05-24 - Approved Storm Drainage Plan - D07-12-22-0120
Stormwater Management2023-04-12 - Stormwater Management and Servicing Report - D02-02-22-0079 - D07-12-22-0120
Stormwater Management2023-04-12 - Storm Drainage Plan - D02-02-22-0079 - D07-12-22-0120
Stormwater Management2022-09-09 - Stormwater Management and Servicing Report_updated
Stormwater Management2022-08-03 - Stormwater Management and Servicing Report - D07-12-22-0120
Stormwater Management2022-08-03 - Storm Drainage Plan - D07-12-22-0120
Surveying2022-08-03 - Survey Plan - D07-12-22-0120
Tree Information and Conservation2023-04-12 - Tree Conservation Report - D02-02-22-0079 - D07-12-22-0120
Tree Information and Conservation2022-08-03 - Tree Conservation Report - D07-12-22-0120
2024-05-24 - Signed Delegated Authority Report - D07-12-22-0120