29 Russell Ave.#
Last updated: 2025-07-24 · ID: D07-12-22-0115
Summary#
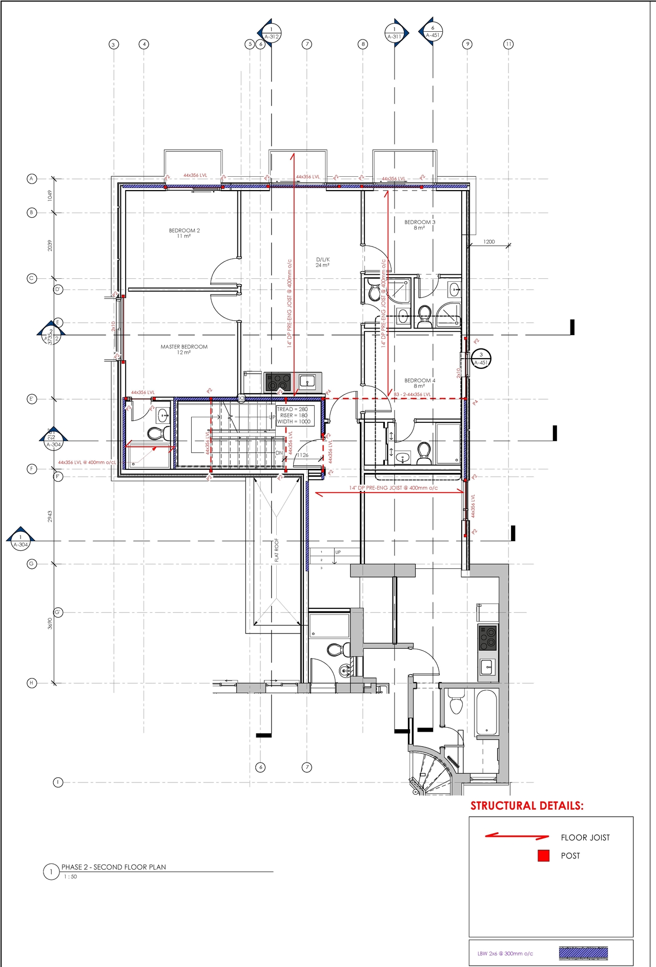
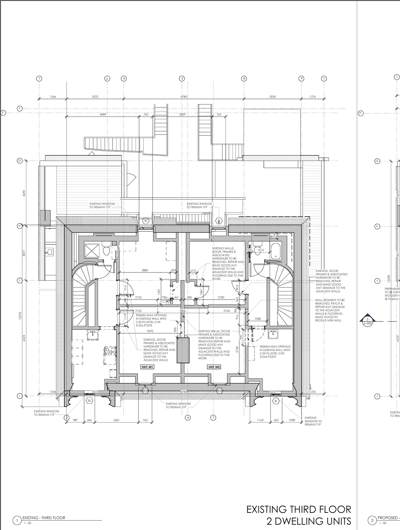
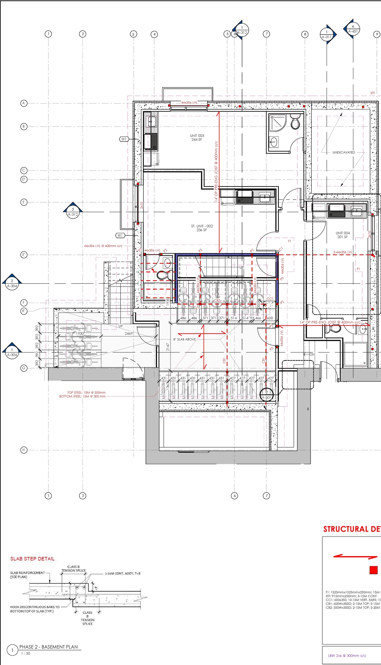
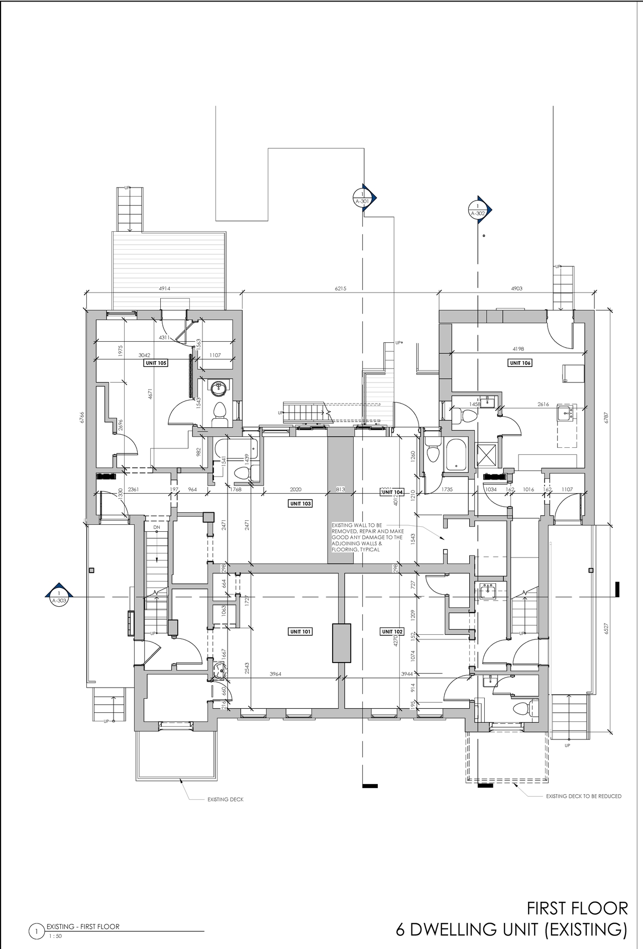
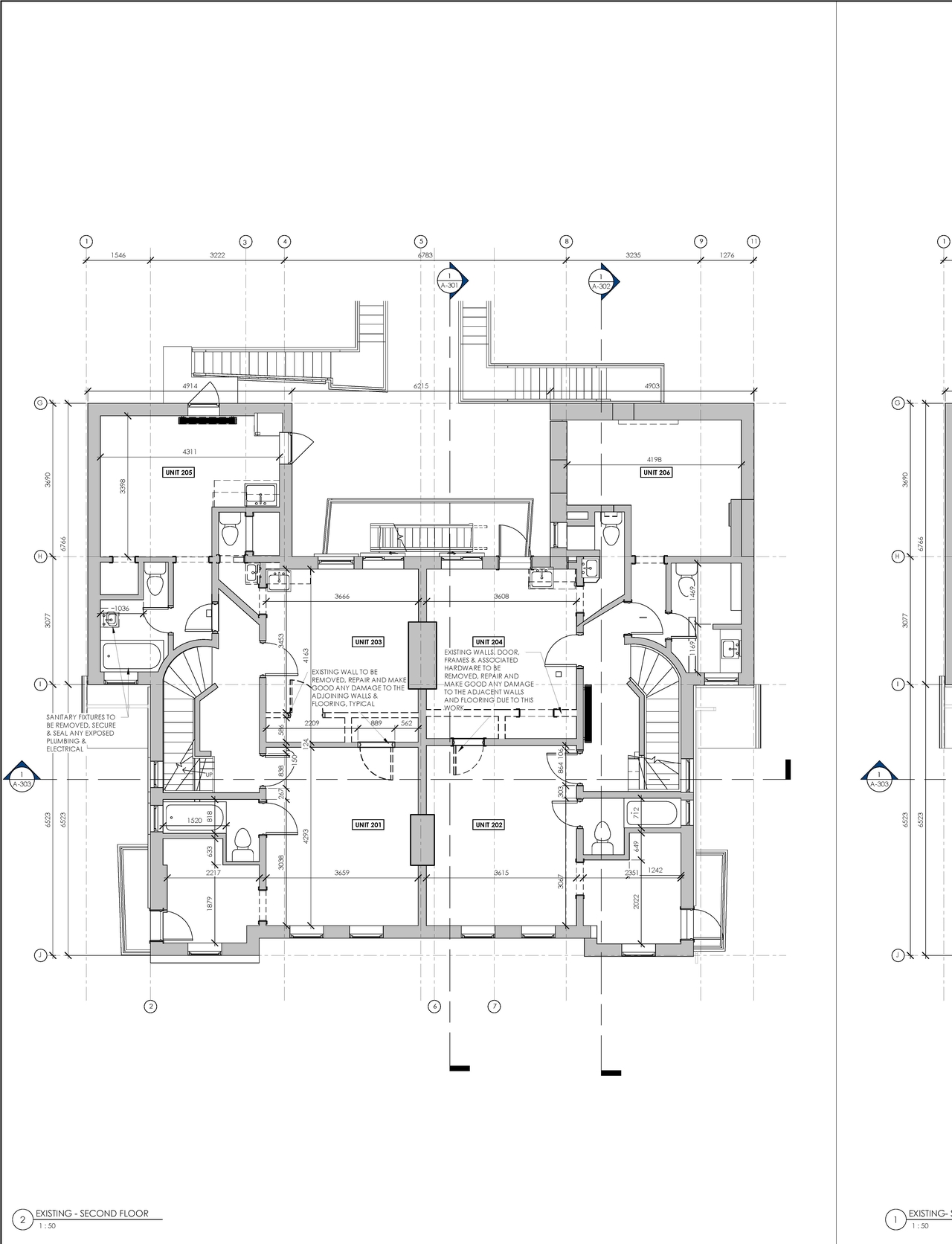
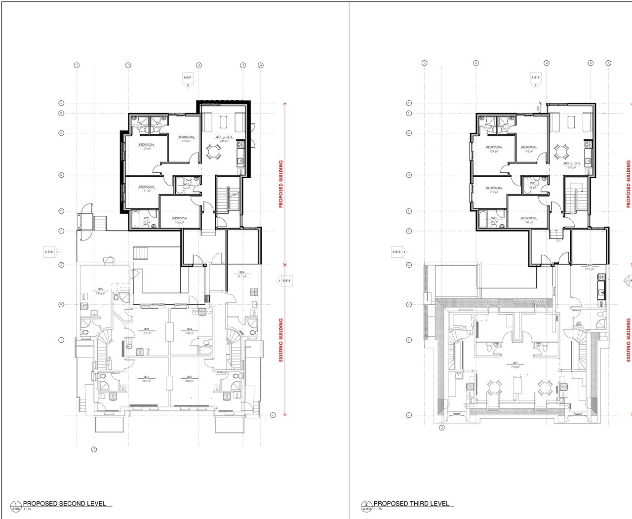
The original building is proposed to be retained, and a new low-rise (3 storey) residential use addition is proposed attached to the rear. The addition will provide a total of 21 units including 14 in the existing building, and 7 in the new building.
Status
File Pending (Application File Pending)
File Pending (Application File Pending)
Type
Site Plan Control
Site Plan Control
Building Scale (Max.)
Based on elevation drawings. Values may be approximate. See sources for exact figures.
Low-rise · 3 storeys
· 9.57 m
Massing Diagrams#
Location#
Select a marker to view the address.
Project Updates#
Status Updated
- Status: File Pending (Application File Pending)
Added description, height, 13 images and 3 documents
- Status: Active (Additional Submission Deemed Adequate)
- The original building is proposed to be retained, and a new low-rise (3 storey) residential use addition is proposed attached to the rear. …
- Height: 9.569 m
- Storeys: 3 storeys
- 3 massing diagrams
- 1 site plan
- 2022-08-15 - Floor & Elevations & Rendering Plans - D07-12-22-0115
- 2022-08-15 - Planning Rationale & Design Brief - D07-12-22-0115
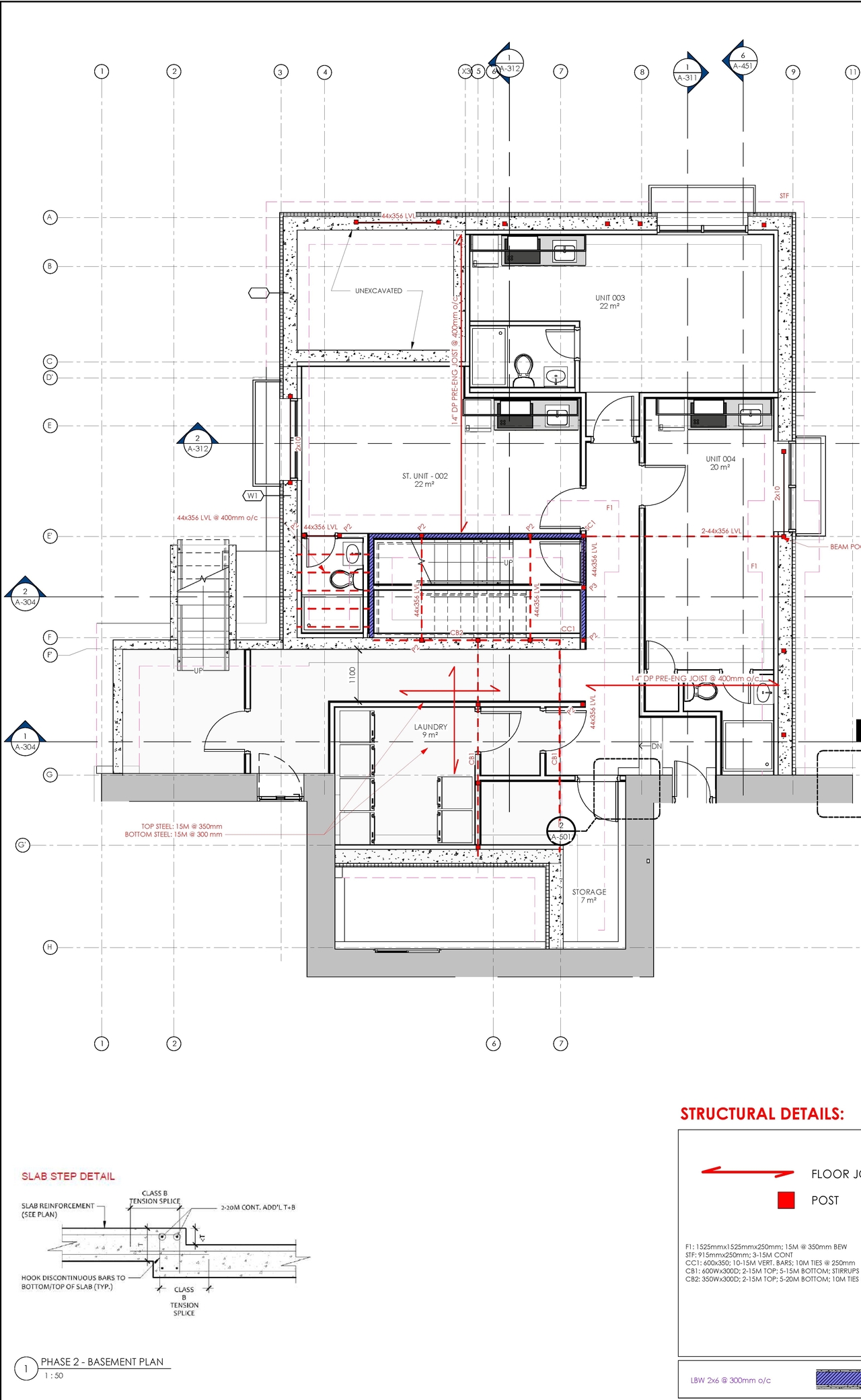
- 2023-10-18 - Phase 2 Fire Rating Plans and Floor Plans - D07-12-22-0115
Site Plans, Elevations and Floor Plans#
Additional Information#
| Date Initiated | 2022-07-25 |
| Ward | Ward 12 - Stéphanie Plante |














