Ottawa Development Projects

1185 Beaverwood Rd.#

Last updated: 2024-08-29 · ID: D07-12-22-0114

Summary#

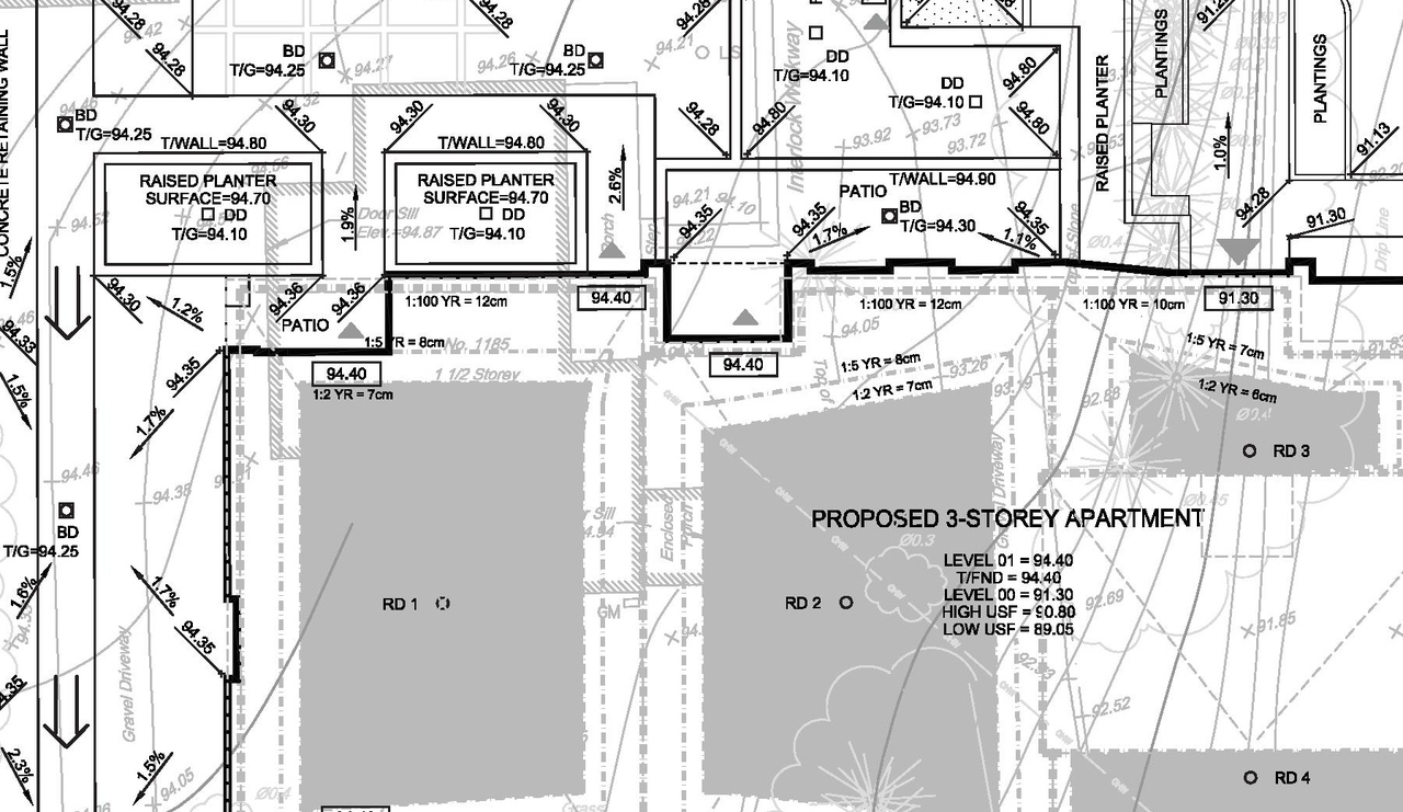
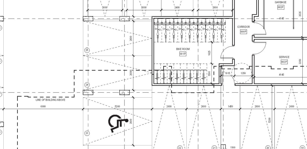
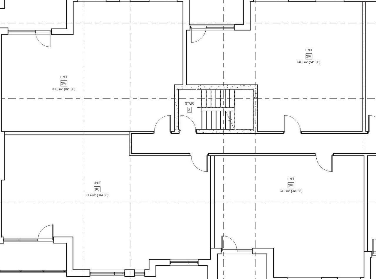
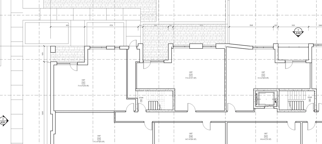
The City of Ottawa has received a Zoning By-law Amendment and Site Plan Control application to accommodate the development of a 3-storey, residential building with 27 units. A total of 34 parking spaces are proposed, located both at surface and below grade.

Status
Post Approval (Agreement Signed)

Building Scale (Max.) Based on elevation drawings. Values may be approximate. See sources for exact figures.
Low-rise · 3 storeys · 11.05 m

Renders#

Location#

Select a marker to view the address.

Site Plans, Elevations and Floor Plans#

Additional Information#

Date Initiated2022-07-25
WardWard 21 - David Brown

Documents#

TypeDocument
Application Summary2022-09-16 - Application Summary - D07-12-22-0114
Architectural Plans25-07-22 - Turning Movement Plan - D07-12-22-0114
Architectural Plans25-07-22 - Plans and Elevation - D07-12-22-0114
Architectural Plans25-07-22 - General Plan of Services - D07-12-22-0114
Architectural Plans2023-08-29 - Approved Site Plan and Elevations - D07-12-22-0114
Architectural Plans2023-08-29 - Approved General Plan of Services - D07-12-22-0114
Architectural Plans2023-06-20 - General Plan of Services - D07-12-22-0114
Architectural Plans2023-05-31 - General Plan of Services - D07-12-22-0114
Architectural Plans2023-03-27 - Turning Movement Plan - D07-12-22-0114
Architectural Plans2023-03-27 - General Plan of Services - D07-12-22-0114
Architectural Plans2023-01-05 - General Plan of Services - D07-12-22-0114
Architectural Plans2023-01-03 - Site Plan and Elevations - D07-12-22-0114
Design Brief25-07-22 - Design Brief - D07-12-22-0114
Environmental25-07-22 - Phase I Environmental Site Assessment - D07-12-22-0114
Environmental2023-01-23 - Phase 1 Environmental Site Assessment - D07-12-22-0114
Environmental2023-01-09 - Phase I Environmental Site Assessment - D07-12-22-0114
Geotechnical Report25-07-22 - Hydrogeological Risk Brief - D07-12-22-0114
Geotechnical Report25-07-22 - Groundwater Impact Assessment - D07-12-22-0114
Geotechnical Report25-07-22 - Grading and Erosion & Sediment Control Plan - D07-12-22-0114
Geotechnical Report25-07-22 - Geotechnical Investigation - D07-12-22-0114
Geotechnical Report2023-08-29 - Approved Grading and Erosion & Sediment Control Plan - D07-12-22-0114
Geotechnical Report2023-06-20 - Hydrogeology Brief - D07-12-22-0114
Geotechnical Report2023-06-20 - groundwater Impact Assesment - D07-12-22-0114
Geotechnical Report2023-06-20 - GRADING AND EROSION AND SEDIMENT CONTROL PLAN - D07-12-22-0114
Geotechnical Report2023-06-20 - Geotechnical Investigation - D07-12-22-0114
Geotechnical Report2023-05-31 - Grading and Erosion & Sediment Control Plan - D07-12-22-0114
Geotechnical Report2023-05-31 - Geotechnical Investigation - D07-12-22-0114
Geotechnical Report2023-03-27 - GRADING AND EROSION & SEDIMENT CONTROL PLAN - D07-12-22-0114
Geotechnical Report2023-03-27 - Geotechnical Investigation - D07-12-22-0114
Geotechnical Report2023-01-05 - Grading and Erosion & Sediment Control Plan - D07-12-22-0114
Geotechnical Report2023-01-03 - Groundwater Impact Assessment - D07-12-22-0114
Geotechnical Report2023-01-03 - Geotechnical Investigation - D07-12-22-0114
Geotechnical Report2022-09-13 - Geotechnical Investigation - D07-12-22-0114
Landscape Plan2023-06-20 - Landscape Plan - D07-12-22-0114
Landscape Plan2023-03-27 - Landscape Plan - D07-12-22-0114
Planning25-07-22 - Planning Rationale - D07-12-22-0114
Planning2023-06-20 - Planning Rationale - D07-12-22-0114
Rendering2023-01-03 - Renderings - D07-12-22-0114
Site Servicing2023-01-03 - Servicing Study and SWM Report - D07-12-22-0114
Stormwater Management25-07-22 - Pre and Post Development Stormwater Management Plan - D07-12-22-0114
Stormwater Management25-07-22 - Development Servicing Study and Stormwater Management Report - D07-12-22-0114
Stormwater Management2023-08-29 - Approved Pre-Development Stormwater Management Plan - D07-12-22-0114
Stormwater Management2023-08-29 - Approved Post-Development Stormwater Management Plan - D07-12-22-0114
Stormwater Management2023-06-20 - PRE-DEVELOPMENT STORMWATER MANAGEMENT PLAN - D07-12-22-0114
Stormwater Management2023-06-20 - POST-DEVELOPMENT STORMWATER MANAGEMENT PLAN - D07-12-22-0114
Stormwater Management2023-06-20 - Development Servicing Study and Stormwater Management Report - D07-12-22-0114
Stormwater Management2023-05-31 - Pre-Development Stormwater Management Plan - D07-12-22-0114
Stormwater Management2023-05-31 - Post-Development Stormwater Management Plan - D07-12-22-0114
Stormwater Management2023-03-27 - PRE-DEVELOPMENT STORMWATER MANAGEMENT PLAN - D07-12-22-0114
Stormwater Management2023-03-27 - POST DEVELOPMENT STORMWATER MANAGEMENT PLAN - D07-12-22-0114
Stormwater Management2023-03-27 - Development Servicing Study & Stormwater Management Report - D07-12-22-0114
Stormwater Management2023-01-05 - Pre-Development Stormwater Management Plan - D07-12-22-0114
Stormwater Management2023-01-05 - Post-Development Stormwater Management Plan - D07-12-22-0114
Surveying25-07-22 - Topographic Plan Of Survey - D07-12-22-0114
Surveying2023-06-20 - Topographic Plan of Survey - D07-12-22-0114
Surveying2023-03-27 - Topographical Plan of Survey - D07-12-22-0114
Surveying2023-01-03 - Survey Certificate - D07-12-22-0114
Surveying2022-09-13 - Survey Plan - D07-12-22-0114
Tree Information and Conservation25-07-22 - Landscape Plan & Tree Conservation Report - D07-12-22-0114
Tree Information and Conservation2023-08-29 - Approved Landscape Plan & TCR - D07-12-22-0114
Tree Information and Conservation2023-01-03 - Landscape Plan & Tree Conservation Report - D07-12-22-0114
2023-08-29 - Signed Delegated Authority Report - D07-12-22-0114
2023-03-27 - Butternut Assessment Interim Memo - D07-12-22-0114
2023-01-09 -Planning Rationale - D07-12-22-0114
2023-01-03 - Cultural Heritage Evaluation Report - D07-12-22-0114