Ottawa Development Projects

8415 Campeau Dr.#

Last updated: 2024-10-22 · ID: D07-12-22-0111

Summary#

264 stacked townhouse dwelings; 104 townhouse dwellings; 314 parlcing spaces for stacked dwellings (above and below ground); and 208 parlcing spaces for the townhouse dwellings (1 in the garage and 1 on the driveway). One (1) 0.56 ha park block and two outdoor amenity areas.

Status
Post Approval (Receipt of Agreement from Owner Pending)

Building Scale (Max.) Based on elevation drawings. Values may be approximate. See sources for exact figures.
Low-rise · 3 storeys · 17.7 m Data Quality Note Height was partially estimated using visual scale. This may be approximate. Data Quality Note Text was extracted using optical character recognition. This may introduce artifacts or misreads.

Renders#

Location#

Select a marker to view the address.

Site Plans, Elevations and Floor Plans#

  • Image from page 2 of the file '2022-07-21 - Haven Floor Plan - D07-12-22-0111'
  • Image from page 2 of the file '2022-07-21 - Tahoe End Unit 4 Bedroom Floor Plan - D07-12-22-0111'
  • Image from page 2 of the file '2022-07-21 - Haven Floor Plan - D07-12-22-0111'
  • Image from page 4 of the file '2022-07-21 - Venice Corner Unit Floor Plan - D07-12-22-0111'
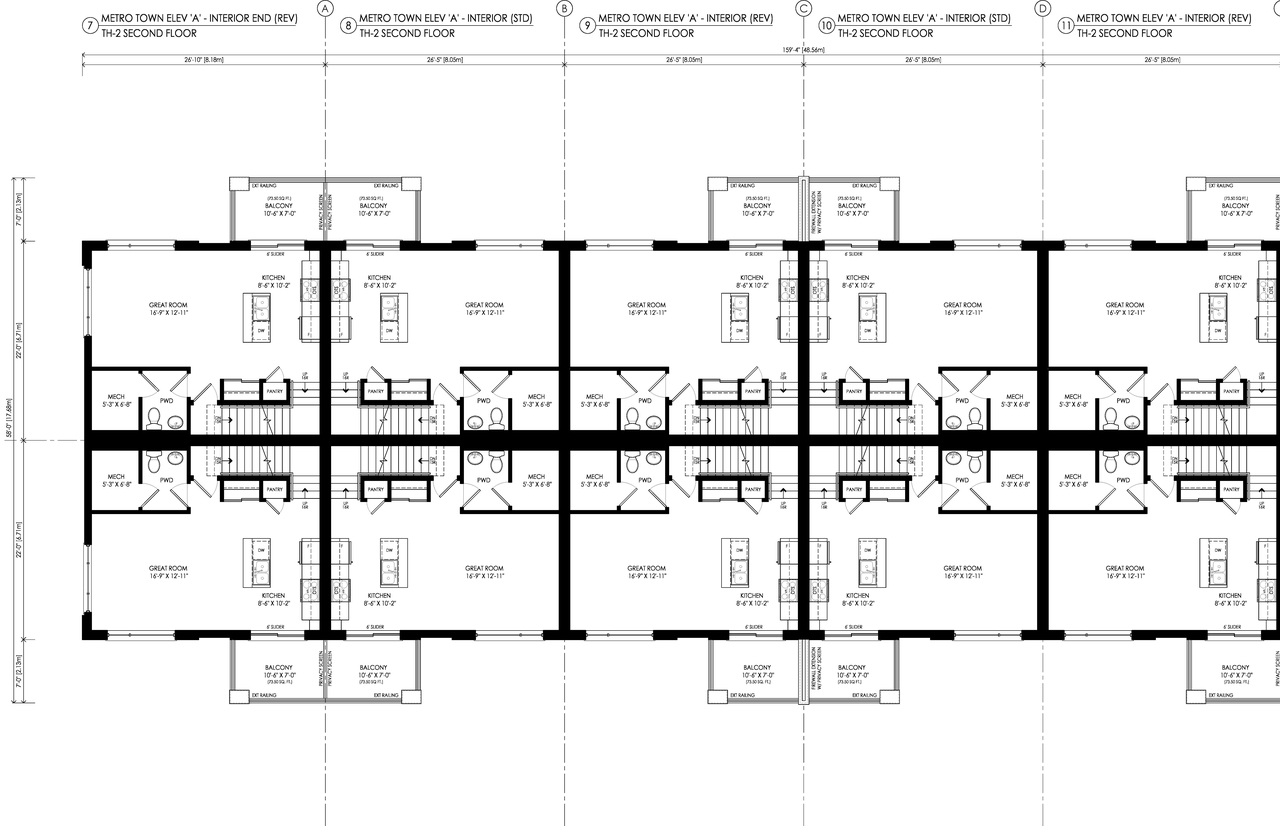
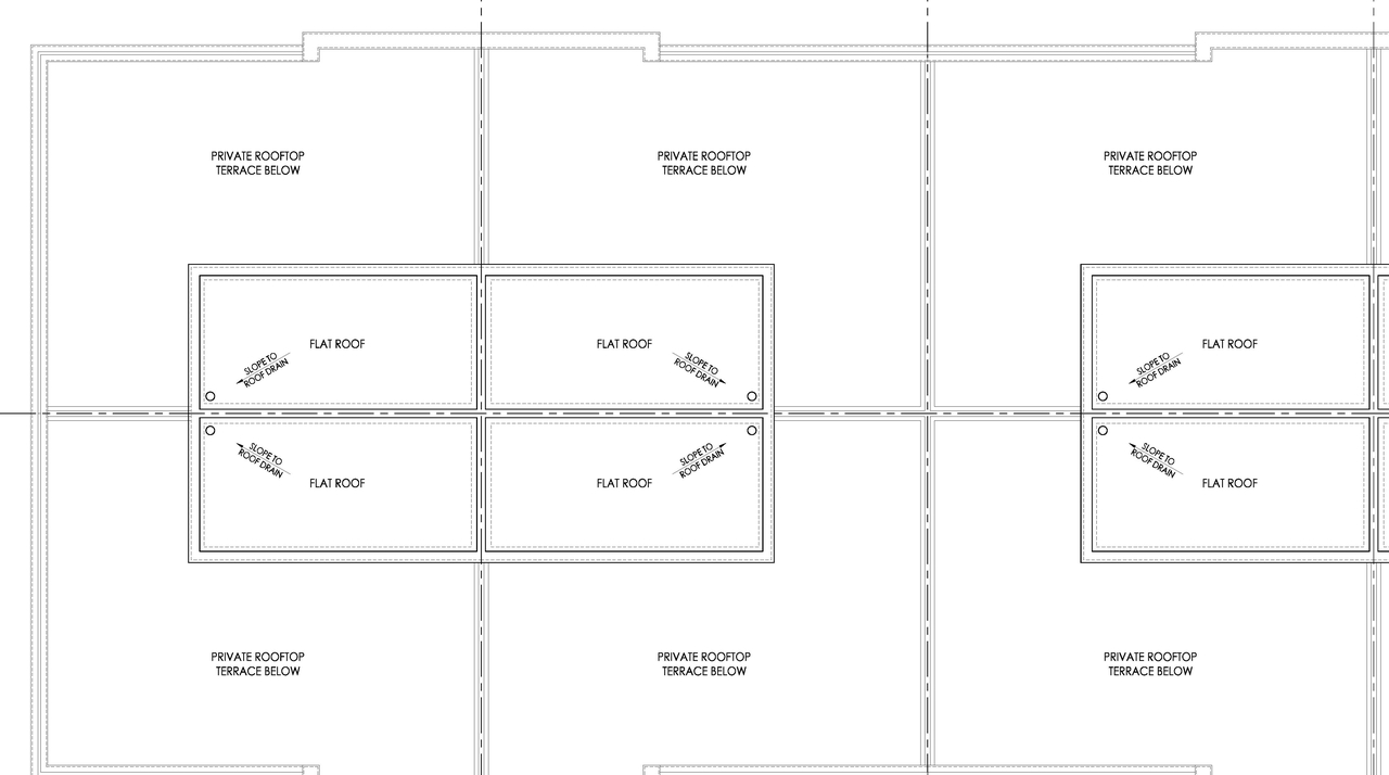
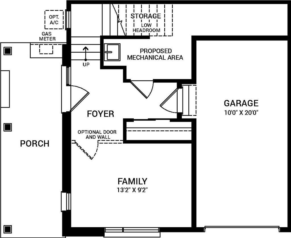
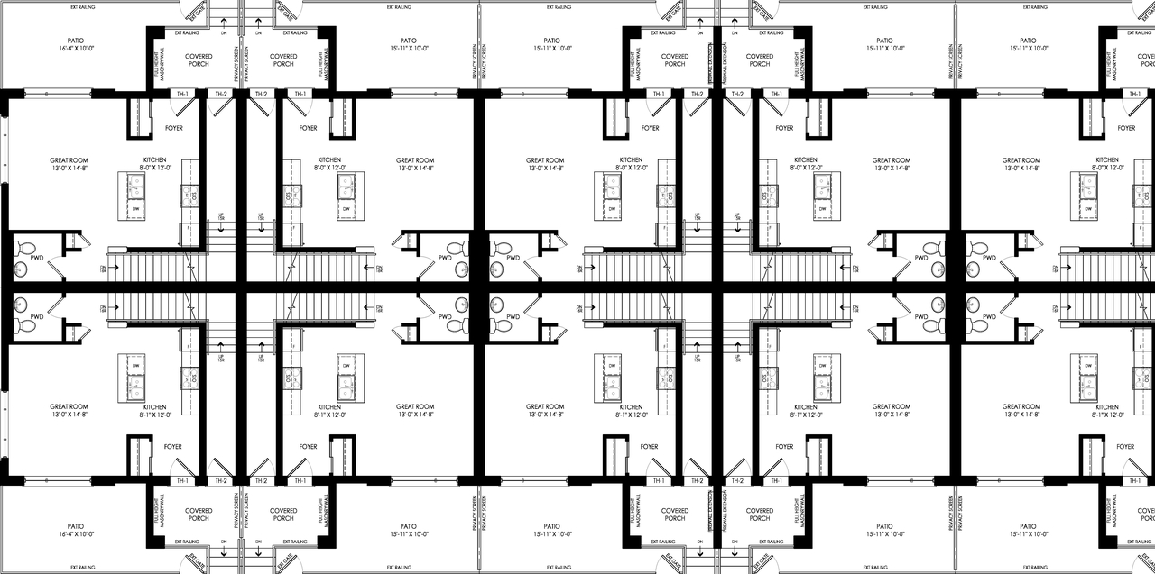
  • Floor plan for project from page 4 of the file '2022-07-21 - Floor Plans - D07-12-22-0111'
  • Floor plan for project from page 16 of the file '2022-07-21 - Floor Plans - D07-12-22-0111'
  • Floor plan for project from page 1 of the file '2022-07-21 - Tahoe End Unit 4 Bedroom Floor Plan - D07-12-22-0111'
  • Floor plan for project from page 1 of the file '2022-07-21 - Laguna End Unit Floor Plan - D07-12-22-0111'
  • Floor plan for project from page 2 of the file '2022-07-21 - Laguna Floor Plan - D07-12-22-0111'
  • Floor plan for project from page 1 of the file '2022-07-21 - Monterey End Unit Floor Plan - D07-12-22-0111'
  • Floor plan for project from page 2 of the file '2022-07-21 - Cambridge End Unit Floor Plan - D07-12-22-0111'
  • Floor plan for project from page 3 of the file '2022-07-21 - Floor Plans - D07-12-22-0111'
  • Floor plan for project from page 1 of the file '2022-07-21 - Haven Floor Plan - D07-12-22-0111'
  • Floor plan for project from page 4 of the file '2022-07-21 - Venice Corner Unit Floor Plan - D07-12-22-0111'
  • Floor plan for project from page 2 of the file '2022-07-21 - Tahoe End Unit 4 Bedroom Floor Plan - D07-12-22-0111'
  • Floor plan for project from page 1 of the file '2022-07-21 - Laguna Floor Plan - D07-12-22-0111'
  • Floor plan for project from page 2 of the file '2022-07-21 - Monterey Floor Plan - D07-12-22-0111'
  • Floor plan for project from page 1 of the file '2022-07-21 - Alder Floor Plan - D07-12-22-0111'
  • Floor plan for project from page 1 of the file '2022-07-21 - Alder Floor Plan - D07-12-22-0111'
  • Floor plan for project from page 1 of the file '2022-07-21 - Cambridge Floor Plan - D07-12-22-0111'
  • Floor plan for project from page 1 of the file '2022-07-21 - McKee Corner Unit Floor Plan - D07-12-22-0111'
  • Floor plan for project from page 6 of the file '2022-07-21 - Floor Plans - D07-12-22-0111'
  • Floor plan for project from page 4 of the file '2022-07-21 - Venice Corner Unit Floor Plan - D07-12-22-0111'
  • Floor plan for project from page 1 of the file '2022-07-21 - Venice Corner Unit Floor Plan - D07-12-22-0111'
  • Floor plan for project from page 1 of the file '2022-07-21 - Cambridge Floor Plan - D07-12-22-0111'
  • Floor plan for project from page 2 of the file '2022-07-21 - Floor Plans - D07-12-22-0111'
  • Floor plan for project from page 2 of the file '2022-07-21 - Laguna Floor Plan - D07-12-22-0111'
  • Floor plan for project from page 1 of the file '2022-07-21 - McKee Corner Unit Floor Plan - D07-12-22-0111'
  • Floor plan for project from page 1 of the file '2022-07-21 - Burnaby Floor Plan - D07-12-22-0111'
  • Floor plan for project from page 1 of the file '2022-07-21 - Citrus Floor Plan - D07-12-22-0111'
  • Floor plan for project from page 2 of the file '2022-07-21 - Laguna Floor Plan - D07-12-22-0111'
  • Floor plan for project from page 6 of the file '2022-07-21 - Floor Plans - D07-12-22-0111'
  • Floor plan for project from page 2 of the file '2022-07-21 - Monterey Floor Plan - D07-12-22-0111'
  • Floor plan for project from page 1 of the file '2022-07-21 - Laguna End Unit Floor Plan - D07-12-22-0111'
  • Floor plan for project from page 1 of the file '2022-07-21 - Dawson End Unit Floor Plan - D07-12-22-0111'
  • Floor plan for project from page 1 of the file '2022-07-21 - Citrus Floor Plan - D07-12-22-0111'
  • Floor plan for project from page 1 of the file '2022-07-21 - Dawson End Unit Floor Plan - D07-12-22-0111'
  • Floor plan for project from page 1 of the file '2022-07-21 - Laguna Floor Plan - D07-12-22-0111'
  • Floor plan for project from page 2 of the file '2022-07-21 - Tahoe End Unit 4 Bedroom Floor Plan - D07-12-22-0111'
  • Floor plan for project from page 1 of the file '2022-07-21 - Haven Floor Plan - D07-12-22-0111'
  • Floor plan for project from page 1 of the file '2022-07-21 - Cambridge End Unit Floor Plan - D07-12-22-0111'
  • Floor plan for project from page 1 of the file '2022-07-21 - Monterey End Unit Floor Plan - D07-12-22-0111'
  • Floor plan for project from page 2 of the file '2022-07-21 - McKee Corner Unit Floor Plan - D07-12-22-0111'
  • Floor plan for project from page 6 of the file '2022-07-21 - Floor Plans - D07-12-22-0111'
  • Floor plan for project from page 2 of the file '2022-07-21 - Citrus Floor Plan - D07-12-22-0111'
  • Floor plan for project from page 1 of the file '2022-07-21 - Alder Floor Plan - D07-12-22-0111'
  • Floor plan for project from page 1 of the file '2022-07-21 - Haven Floor Plan - D07-12-22-0111'
  • Floor plan for project from page 1 of the file '2022-07-21 - Tahoe End Unit 4 Bedroom Floor Plan - D07-12-22-0111'
  • Floor plan for project from page 1 of the file '2022-07-21 - Laguna End Unit Floor Plan - D07-12-22-0111'
  • Floor plan for project from page 2 of the file '2022-07-21 - Tahoe End Unit 4 Bedroom Floor Plan - D07-12-22-0111'
  • Floor plan for project from page 2 of the file '2022-07-21 - Haven Floor Plan - D07-12-22-0111'
  • Floor plan for project from page 1 of the file '2022-07-21 - Monterey End Unit Floor Plan - D07-12-22-0111'
  • Floor plan for project from page 1 of the file '2022-07-21 - Dawson End Unit Floor Plan - D07-12-22-0111'
  • Floor plan for project from page 2 of the file '2022-07-21 - Monterey Floor Plan - D07-12-22-0111'
  • Floor plan for project from page 2 of the file '2022-07-21 - Citrus Floor Plan - D07-12-22-0111'
  • Floor plan for project from page 1 of the file '2022-07-21 - Citrus Floor Plan - D07-12-22-0111'
  • Floor plan for project from page 1 of the file '2022-07-21 - Burnaby Floor Plan - D07-12-22-0111'
  • Floor plan for project from page 2 of the file '2022-07-21 - Burnaby Floor Plan - D07-12-22-0111'
  • Floor plan for project from page 1 of the file '2022-07-21 - McKee Corner Unit Floor Plan - D07-12-22-0111'
  • Floor plan for project from page 2 of the file '2022-07-21 - Venice Corner Unit Floor Plan - D07-12-22-0111'
  • Image from page 2 of the file '2022-07-21 - Haven Floor Plan - D07-12-22-0111'
  • Image from page 2 of the file '2022-07-21 - Tahoe End Unit 4 Bedroom Floor Plan - D07-12-22-0111'
  • Image from page 2 of the file '2022-07-21 - Haven Floor Plan - D07-12-22-0111'
  • Image from page 4 of the file '2022-07-21 - Venice Corner Unit Floor Plan - D07-12-22-0111'
  • Floor plan for project from page 4 of the file '2022-07-21 - Floor Plans - D07-12-22-0111'
  • Floor plan for project from page 16 of the file '2022-07-21 - Floor Plans - D07-12-22-0111'
  • Floor plan for project from page 1 of the file '2022-07-21 - Tahoe End Unit 4 Bedroom Floor Plan - D07-12-22-0111'
  • Floor plan for project from page 1 of the file '2022-07-21 - Laguna End Unit Floor Plan - D07-12-22-0111'
  • Floor plan for project from page 2 of the file '2022-07-21 - Laguna Floor Plan - D07-12-22-0111'
  • Floor plan for project from page 1 of the file '2022-07-21 - Monterey End Unit Floor Plan - D07-12-22-0111'
  • Floor plan for project from page 2 of the file '2022-07-21 - Cambridge End Unit Floor Plan - D07-12-22-0111'
  • Floor plan for project from page 3 of the file '2022-07-21 - Floor Plans - D07-12-22-0111'
  • Floor plan for project from page 1 of the file '2022-07-21 - Haven Floor Plan - D07-12-22-0111'
  • Floor plan for project from page 4 of the file '2022-07-21 - Venice Corner Unit Floor Plan - D07-12-22-0111'
  • Floor plan for project from page 2 of the file '2022-07-21 - Tahoe End Unit 4 Bedroom Floor Plan - D07-12-22-0111'
  • Floor plan for project from page 1 of the file '2022-07-21 - Laguna Floor Plan - D07-12-22-0111'
  • Floor plan for project from page 2 of the file '2022-07-21 - Monterey Floor Plan - D07-12-22-0111'
  • Floor plan for project from page 1 of the file '2022-07-21 - Alder Floor Plan - D07-12-22-0111'
  • Floor plan for project from page 1 of the file '2022-07-21 - Alder Floor Plan - D07-12-22-0111'
  • Floor plan for project from page 1 of the file '2022-07-21 - Cambridge Floor Plan - D07-12-22-0111'
  • Floor plan for project from page 1 of the file '2022-07-21 - McKee Corner Unit Floor Plan - D07-12-22-0111'
  • Floor plan for project from page 6 of the file '2022-07-21 - Floor Plans - D07-12-22-0111'
  • Floor plan for project from page 4 of the file '2022-07-21 - Venice Corner Unit Floor Plan - D07-12-22-0111'
  • Floor plan for project from page 1 of the file '2022-07-21 - Venice Corner Unit Floor Plan - D07-12-22-0111'
  • Floor plan for project from page 1 of the file '2022-07-21 - Cambridge Floor Plan - D07-12-22-0111'
  • Floor plan for project from page 2 of the file '2022-07-21 - Floor Plans - D07-12-22-0111'
  • Floor plan for project from page 2 of the file '2022-07-21 - Laguna Floor Plan - D07-12-22-0111'
  • Floor plan for project from page 1 of the file '2022-07-21 - McKee Corner Unit Floor Plan - D07-12-22-0111'
  • Floor plan for project from page 1 of the file '2022-07-21 - Burnaby Floor Plan - D07-12-22-0111'
  • Floor plan for project from page 1 of the file '2022-07-21 - Citrus Floor Plan - D07-12-22-0111'
  • Floor plan for project from page 2 of the file '2022-07-21 - Laguna Floor Plan - D07-12-22-0111'
  • Floor plan for project from page 6 of the file '2022-07-21 - Floor Plans - D07-12-22-0111'
  • Floor plan for project from page 2 of the file '2022-07-21 - Monterey Floor Plan - D07-12-22-0111'
  • Floor plan for project from page 1 of the file '2022-07-21 - Laguna End Unit Floor Plan - D07-12-22-0111'
  • Floor plan for project from page 1 of the file '2022-07-21 - Dawson End Unit Floor Plan - D07-12-22-0111'
  • Floor plan for project from page 1 of the file '2022-07-21 - Citrus Floor Plan - D07-12-22-0111'
  • Floor plan for project from page 1 of the file '2022-07-21 - Dawson End Unit Floor Plan - D07-12-22-0111'
  • Floor plan for project from page 1 of the file '2022-07-21 - Laguna Floor Plan - D07-12-22-0111'
  • Floor plan for project from page 2 of the file '2022-07-21 - Tahoe End Unit 4 Bedroom Floor Plan - D07-12-22-0111'
  • Floor plan for project from page 1 of the file '2022-07-21 - Haven Floor Plan - D07-12-22-0111'
  • Floor plan for project from page 1 of the file '2022-07-21 - Cambridge End Unit Floor Plan - D07-12-22-0111'
  • Floor plan for project from page 1 of the file '2022-07-21 - Monterey End Unit Floor Plan - D07-12-22-0111'
  • Floor plan for project from page 2 of the file '2022-07-21 - McKee Corner Unit Floor Plan - D07-12-22-0111'
  • Floor plan for project from page 6 of the file '2022-07-21 - Floor Plans - D07-12-22-0111'
  • Floor plan for project from page 2 of the file '2022-07-21 - Citrus Floor Plan - D07-12-22-0111'
  • Floor plan for project from page 1 of the file '2022-07-21 - Alder Floor Plan - D07-12-22-0111'
  • Floor plan for project from page 1 of the file '2022-07-21 - Haven Floor Plan - D07-12-22-0111'
  • Floor plan for project from page 1 of the file '2022-07-21 - Tahoe End Unit 4 Bedroom Floor Plan - D07-12-22-0111'
  • Floor plan for project from page 1 of the file '2022-07-21 - Laguna End Unit Floor Plan - D07-12-22-0111'
  • Floor plan for project from page 2 of the file '2022-07-21 - Tahoe End Unit 4 Bedroom Floor Plan - D07-12-22-0111'
  • Floor plan for project from page 2 of the file '2022-07-21 - Haven Floor Plan - D07-12-22-0111'
  • Floor plan for project from page 1 of the file '2022-07-21 - Monterey End Unit Floor Plan - D07-12-22-0111'
  • Floor plan for project from page 1 of the file '2022-07-21 - Dawson End Unit Floor Plan - D07-12-22-0111'
  • Floor plan for project from page 2 of the file '2022-07-21 - Monterey Floor Plan - D07-12-22-0111'
  • Floor plan for project from page 2 of the file '2022-07-21 - Citrus Floor Plan - D07-12-22-0111'
  • Floor plan for project from page 1 of the file '2022-07-21 - Citrus Floor Plan - D07-12-22-0111'
  • Floor plan for project from page 1 of the file '2022-07-21 - Burnaby Floor Plan - D07-12-22-0111'
  • Floor plan for project from page 2 of the file '2022-07-21 - Burnaby Floor Plan - D07-12-22-0111'
  • Floor plan for project from page 1 of the file '2022-07-21 - McKee Corner Unit Floor Plan - D07-12-22-0111'
  • Floor plan for project from page 2 of the file '2022-07-21 - Venice Corner Unit Floor Plan - D07-12-22-0111'

Additional Information#

Date Initiated2022-07-21
WardWard 4 - Cathy Curry

Documents#

TypeDocument
Application Summary2022-08-09 - Application Summary - D07-12-22-0111
Architectural Plans2023-11-03 - Approved Site Plan - D07-12-22-0111
Architectural Plans2023-11-03 - Approved Concept Plans - D07-12-22-0111
Architectural Plans2022-07-21 - Underground Garage Plan - D07-12-22-0111
Architectural Plans2022-07-21 - Site Plans UnStamped - D07-12-22-0111
Architectural Plans2022-07-21 - Site Plans Stamped - D07-12-22-0111
Architectural Plans2022-07-21 - Site Plan - D07-12-22-0111
Architectural Plans2022-07-21 - Elevations - D07-12-22-0111
Architectural Plans2022-07-21 - Draft Plan of Subdivision - D07-12-22-0111
Architectural Plans2022-07-21 - Draft Plan of Condominium - D07-12-22-0111
Architectural Plans2022-07-21 - Concept Plan 4 - D07-12-22-0111
Architectural Plans2022-07-21 - Concept Plan 3 - D07-12-22-0111
Architectural Plans2022-07-21 - Concept Plan 2 - D07-12-22-0111
Architectural Plans2022-07-21 - Concept Plan - D07-12-22-0111
Architectural Plans2022-07-21 - Basement and Ground Floor Elevations - D07-12-22-0111
Civil Engineering Report2023-11-03 - Approved Civil Plans - D07-12-22-0111
Environmental2023-11-03 - Approved Environmental Impact Statement - D07-12-22-0111
Environmental2022-07-21 - Phase I Environmental Site Assessment - D07-12-22-0111
Environmental2022-07-21 - Environmental Site Assessment - D07-12-22-0111
Environmental2022-07-21 - Environmental Impact Statement - D07-12-22-0111
Floor Plan2022-07-21 - Venice Corner Unit Floor Plan - D07-12-22-0111
Floor Plan2022-07-21 - Tahoe End Unit 4 Bedroom Floor Plan - D07-12-22-0111
Floor Plan2022-07-21 - Monterey Floor Plan - D07-12-22-0111
Floor Plan2022-07-21 - Monterey End Unit Floor Plan - D07-12-22-0111
Floor Plan2022-07-21 - McKee Corner Unit Floor Plan - D07-12-22-0111
Floor Plan2022-07-21 - Laguna Floor Plan - D07-12-22-0111
Floor Plan2022-07-21 - Laguna End Unit Floor Plan - D07-12-22-0111
Floor Plan2022-07-21 - Haven Floor Plan - D07-12-22-0111
Floor Plan2022-07-21 - Floor Plans - D07-12-22-0111
Floor Plan2022-07-21 - Dawson End Unit Floor Plan - D07-12-22-0111
Floor Plan2022-07-21 - Citrus Floor Plan - D07-12-22-0111
Floor Plan2022-07-21 - Cambridge Floor Plan - D07-12-22-0111
Floor Plan2022-07-21 - Cambridge End Unit Floor Plan - D07-12-22-0111
Floor Plan2022-07-21 - Burnaby Floor Plan - D07-12-22-0111
Floor Plan2022-07-21 - Alder Floor Plan - D07-12-22-0111
Geotechnical Report2023-11-03 - Approved Geotechnical Investigation - D07-12-22-0111
Geotechnical Report2022-07-21 - Geotechnical Investigation - D07-12-22-0111
Landscape Plan2023-11-03 - Approved Landscape Plans - D07-12-22-0111
Landscape Plan2022-07-21 - Landscape Plan - D07-12-22-0111
Noise Study2023-11-03 - Approved Noise Control Detailed Study - D07-12-22-0111
Noise Study2022-07-21 - Noise Study - D07-12-22-0111
Notification2023-11-22 - Commence Work Notification - D07-12-22-0111
Planning2022-07-21 - Planning Rationale - D07-12-22-0111
Site Servicing2024-03-27 - Approved Updated Site Servicing Report - D07-12-22-0111
Site Servicing2023-11-03 - Approved Site Servicing Report - D07-12-22-0111
Site Servicing2022-07-21 - Site Servicing Report - D07-12-22-0111
Surveying2022-07-21 - Plan of Survey - D07-12-22-0111
Transportation Analysis2023-11-03 - Approved Transportation Impact Assessment - D07-12-22-0111
Transportation Analysis2022-07-21 - Transportation Impact Assessment - D07-12-22-0111
2024-03-27 - Approved Updated Engineering Drawings - D07-12-22-0111
2023-11-03 - Signed Delegated Authority Report - D07-12-22-0111
2022-07-21 - Turning Movement Analysis - D07-12-22-0111
2022-07-21 - Streetlighting Drawings - D07-12-22-0111
2022-07-21 - LRT Proximity Study - D07-12-22-0111
2022-07-21 - Cover Letter - D07-12-22-0111