Ottawa Development Projects

393 McArthur Ave.#

Last updated: 2024-07-03 · ID: D07-12-22-0102

Summary#

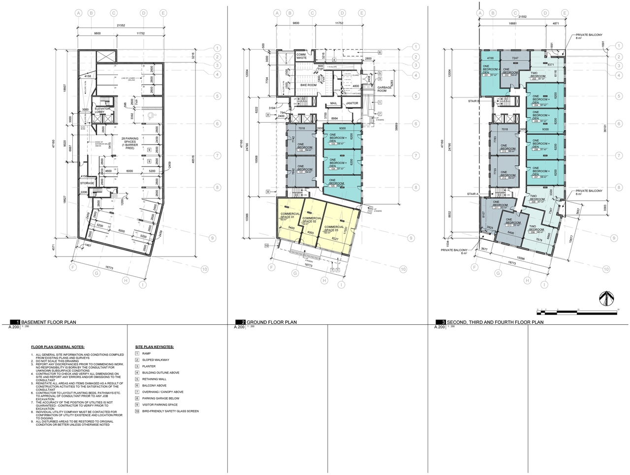
Six-storey mixed-use building including three commercial units and 66 residential apartment units.

Status
Post Approval (Request for Agreement Received)

Building Scale (Max.) Based on elevation drawings. Values may be approximate. See sources for exact figures.
Mid-rise · 6 storeys · 21.95 m

Renders#

Location#

Select a marker to view the address.

Site Plans, Elevations and Floor Plans#

Additional Information#

Date Initiated2022-06-23
WardWard 12 - Stéphanie Plante

Documents#

TypeDocument
Application Summary2022-07-26 - Application Summary - D02-02-22-0058 & D07-12-22-0102
Architectural Plans2024-06-25 - Approved Site Plan - D07-12-22-0102
Architectural Plans2024-06-25 - Approved Roof Plan and Drainage Plan - D07-12-22-0102
Architectural Plans2024-06-25 - Approved Notes Plan - D07-12-22-0102
Architectural Plans2023-11-14 - Site Plan - D07-12-22-0102
Architectural Plans2023-11-14 - Elevations - D07-12-22-0102
Architectural Plans2023-06-12 - Site Plan - D07-12-22-0102
Architectural Plans2023-06-12 - Elevations - D07-12-22-0102
Architectural Plans2022-12-20 - Site Plan - D07-12-22-0102
Architectural Plans2022-12-20 - Roof Plan and Drainage Plan - D07-12-22-0102
Architectural Plans2022-12-20 - Notes Plan C-4 - D07-12-22-0102
Architectural Plans2022-12-20 - Elevations - D07-12-22-0102
Architectural Plans2022-06-23 - Site Plan - D07-12-22-0102
Architectural Plans2022-06-23 - Roof Plan and Drainage Plan - D07-12-22-0102
Architectural Plans2022-06-23 - Engineering Notes Plan - D07-12-22-0102
Architectural Plans2022-06-23 - Elevations - D07-12-22-0102
Design Brief2022-06-23 - Design Brief - D07-12-22-0102
Environmental2022-08-25 - Phase Two Environmental Site Assessment - D07-12-22-0102
Environmental2022-06-23 - Phase One Environmental Site Assessment - D07-12-22-0102
Existing Conditions2024-06-25 - Approved Existing Conditions, Grading and Sediment Control Plan - D07-12-22-0102
Existing Conditions2022-12-20 - Existing Conditions, Grading Plan and Sediment Control Plan - D07-12-22-0102
Existing Conditions2022-06-23 - Existing Conditions Grading Plan and Sediment Control Plan - D07-12-22-0102
Floor Plan2023-11-14 - Floor Plans - D07-12-22-0102
Floor Plan2023-06-12 - Floor Plans - D07-12-22-0102
Floor Plan2022-12-20 - Floor Plans - D07-12-22-0102
Floor Plan2022-06-23 - Floor Plans (2) - D07-12-22-0102
Floor Plan2022-06-23 - Floor Plans - D07-12-22-0102
Geotechnical Report2022-06-23 - Geotechnical Investigation - D07-12-22-0102
Landscape Plan2024-06-25 - Approved Landscape Plan & Details - D07-12-22-0102
Landscape Plan2024-03-14 - Landscape Plan - D07-12-22-0102
Landscape Plan2023-11-14 - Landscape Plan - D07-12-22-0102
Landscape Plan2023-06-12 - Landscape Plan - D07-12-22-0102
Landscape Plan2022-12-20 - Landscape Plan - D07-12-22-0102
Landscape Plan2022-06-23 - Landscape Plan - D07-12-22-0102
Noise Study2022-06-23 - Roadway Traffic Noise Assessment - D07-12-22-0102
Planning2022-06-23 - Planning Rationale - D07-12-22-0102
Rendering2023-11-14 - Perspective Views - D07-12-22-0102
Rendering2023-06-12 - Perspective Views - D07-12-22-0102
Rendering2022-12-20 - Perspective Views - D07-12-22-0102
Site Servicing2024-06-25 - Approved Site Servicing Plan - D07-12-22-0102
Site Servicing2022-12-20 - Site Servicing Plan - D07-12-22-0102
Site Servicing2022-06-23 - Site Servicing Study & Stormwater Management Report - D07-12-22-0102
Site Servicing2022-06-23 - Site Servicing Plan - D07-12-22-0102
Surveying2022-07-28 - Survey Plan - D07-12-22-0102
Transportation Analysis2022-12-20 - Transportation Impact Assessment - D07-12-22-0102
Tree Information and Conservation2023-11-14 - Tree Conservation Plan - D07-12-22-0102
Tree Information and Conservation2022-12-20 - Tree Conservation Report - D07-12-22-0102
Tree Information and Conservation2022-06-23 - Tree Conservation Report - D07-12-22-0102
2024-06-25 - Signed Delegated Authority Report - D07-12-22-0102
2022-12-20 - Future Urban Context Drawing - D07-12-22-0102
2022-06-23 - Parking and Transportation Demand Management Memo - D07-12-22-0102