Ottawa Development Projects

50 Driveway (The)#

Last updated: 2023-10-23 · ID: D07-12-22-0100

Summary#

9 Storey mid rise residential building, includes 77 units, 97 underground parking stalls over 11,493 sq.m (123,711 sqft) of Gross Floor Area

Status
Post Approval (Agreement sent to applicant)

Building Scale (Max.) Based on elevation drawings. Values may be approximate. See sources for exact figures.
High-rise · 10 storeys · 30.46 m

Renders#

  • Rendering of building from page 10 of the file '2023-01-20 - Design Views - D07-12-22-0100'
  • Rendering of building from page 36 of the file '2022-06-16 - Design Brief - D07-12-22-0100'
  • Rendering of building from page 16 of the file '2023-01-20 - Design Views - D07-12-22-0100'
  • Rendering of building from page 14 of the file '2023-01-20 - Design Views - D07-12-22-0100'
  • Rendering of building from page 9 of the file '2023-01-20 - Design Views - D07-12-22-0100'
  • Rendering of building from page 11 of the file '2023-01-20 - Design Views - D07-12-22-0100'
  • Rendering of building from page 7 of the file '2023-01-20 - Design Views - D07-12-22-0100'
  • Rendering of building from page 13 of the file '2022-06-16 - Design Views - D07-12-22-0100'
  • Rendering of building from page 4 of the file '2022-06-16 - Design Brief - D07-12-22-0100'
  • Rendering of building from page 12 of the file '2023-01-20 - Design Views - D07-12-22-0100'
  • Rendering of building from page 23 of the file '2023-01-20 - Design Views - D07-12-22-0100'
  • Rendering of building from page 31 of the file '2022-06-16 - Design Brief - D07-12-22-0100'
  • Rendering of building from page 15 of the file '2023-01-20 - Design Views - D07-12-22-0100'
  • Rendering of building from page 40 of the file '2022-06-16 - Design Brief - D07-12-22-0100'
  • Rendering of building from page 3 of the file '2023-01-20 - Design Views - D07-12-22-0100'
  • Rendering of building from page 35 of the file '2023-01-20 - Design Brief - D07-12-22-0100'
  • Rendering of building from page 5 of the file '2023-01-20 - Design Views - D07-12-22-0100'
  • Rendering of building from page 28 of the file '2023-01-20 - Design Brief - D07-12-22-0100'
  • Rendering of building from page 24 of the file '2023-01-20 - Design Views - D07-12-22-0100'
  • Rendering of building from page 35 of the file '2023-01-20 - Design Brief - D07-12-22-0100'
  • Rendering of building from page 34 of the file '2023-01-20 - Design Brief - D07-12-22-0100'
  • Rendering of building from page 22 of the file '2023-01-20 - Design Brief - D07-12-22-0100'
  • Rendering of building from page 19 of the file '2023-01-20 - Design Views - D07-12-22-0100'
  • Rendering of building from page 16 of the file '2023-01-20 - Design Brief - D07-12-22-0100'
  • Rendering of building from page 10 of the file '2023-01-20 - Design Views - D07-12-22-0100'
  • Rendering of building from page 36 of the file '2022-06-16 - Design Brief - D07-12-22-0100'
  • Rendering of building from page 16 of the file '2023-01-20 - Design Views - D07-12-22-0100'
  • Rendering of building from page 14 of the file '2023-01-20 - Design Views - D07-12-22-0100'
  • Rendering of building from page 9 of the file '2023-01-20 - Design Views - D07-12-22-0100'
  • Rendering of building from page 11 of the file '2023-01-20 - Design Views - D07-12-22-0100'
  • Rendering of building from page 7 of the file '2023-01-20 - Design Views - D07-12-22-0100'
  • Rendering of building from page 13 of the file '2022-06-16 - Design Views - D07-12-22-0100'
  • Rendering of building from page 4 of the file '2022-06-16 - Design Brief - D07-12-22-0100'
  • Rendering of building from page 12 of the file '2023-01-20 - Design Views - D07-12-22-0100'
  • Rendering of building from page 23 of the file '2023-01-20 - Design Views - D07-12-22-0100'
  • Rendering of building from page 31 of the file '2022-06-16 - Design Brief - D07-12-22-0100'
  • Rendering of building from page 15 of the file '2023-01-20 - Design Views - D07-12-22-0100'
  • Rendering of building from page 40 of the file '2022-06-16 - Design Brief - D07-12-22-0100'
  • Rendering of building from page 3 of the file '2023-01-20 - Design Views - D07-12-22-0100'
  • Rendering of building from page 35 of the file '2023-01-20 - Design Brief - D07-12-22-0100'
  • Rendering of building from page 5 of the file '2023-01-20 - Design Views - D07-12-22-0100'
  • Rendering of building from page 28 of the file '2023-01-20 - Design Brief - D07-12-22-0100'
  • Rendering of building from page 24 of the file '2023-01-20 - Design Views - D07-12-22-0100'
  • Rendering of building from page 35 of the file '2023-01-20 - Design Brief - D07-12-22-0100'
  • Rendering of building from page 34 of the file '2023-01-20 - Design Brief - D07-12-22-0100'
  • Rendering of building from page 22 of the file '2023-01-20 - Design Brief - D07-12-22-0100'
  • Rendering of building from page 19 of the file '2023-01-20 - Design Views - D07-12-22-0100'
  • Rendering of building from page 16 of the file '2023-01-20 - Design Brief - D07-12-22-0100'

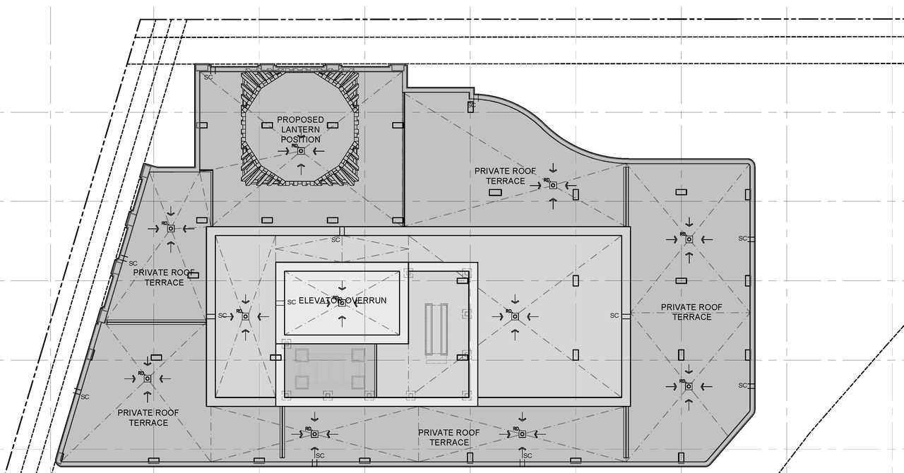
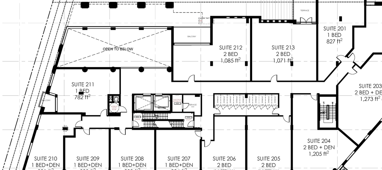
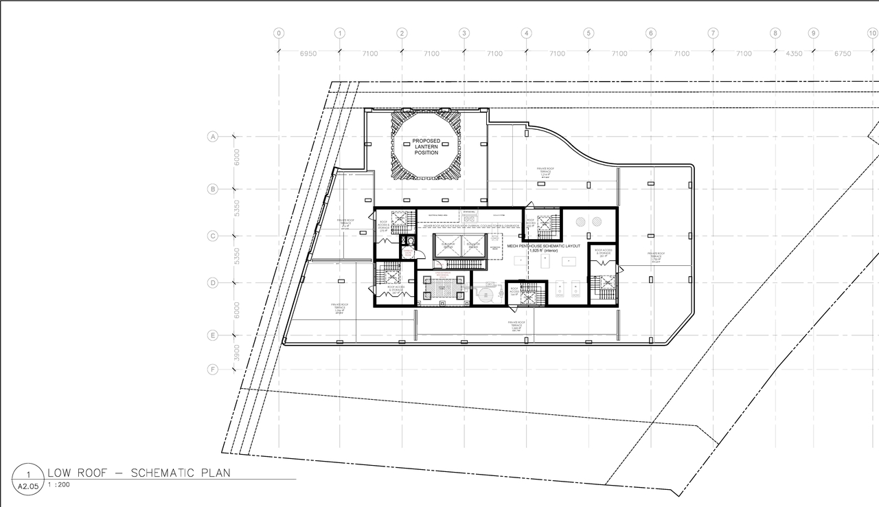
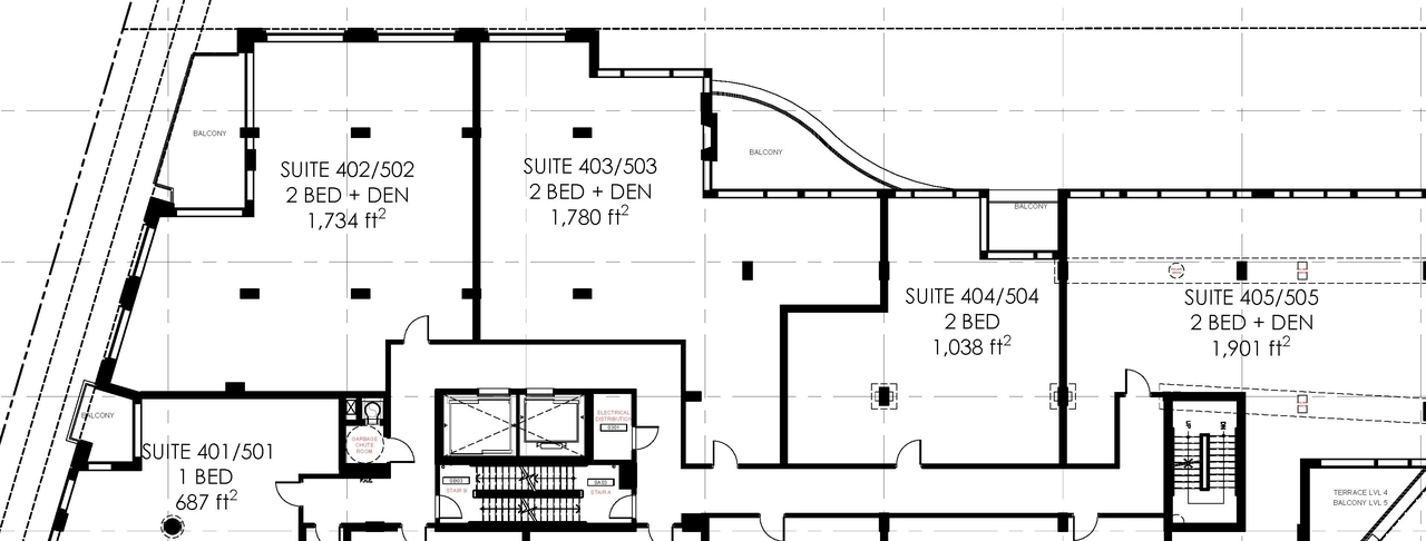
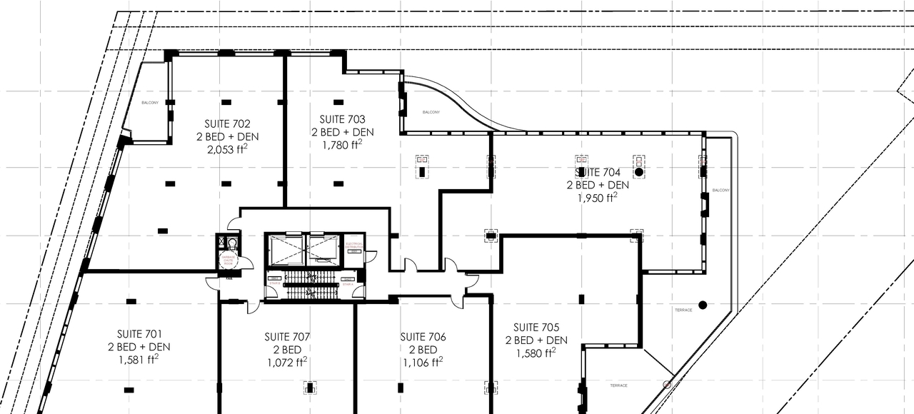
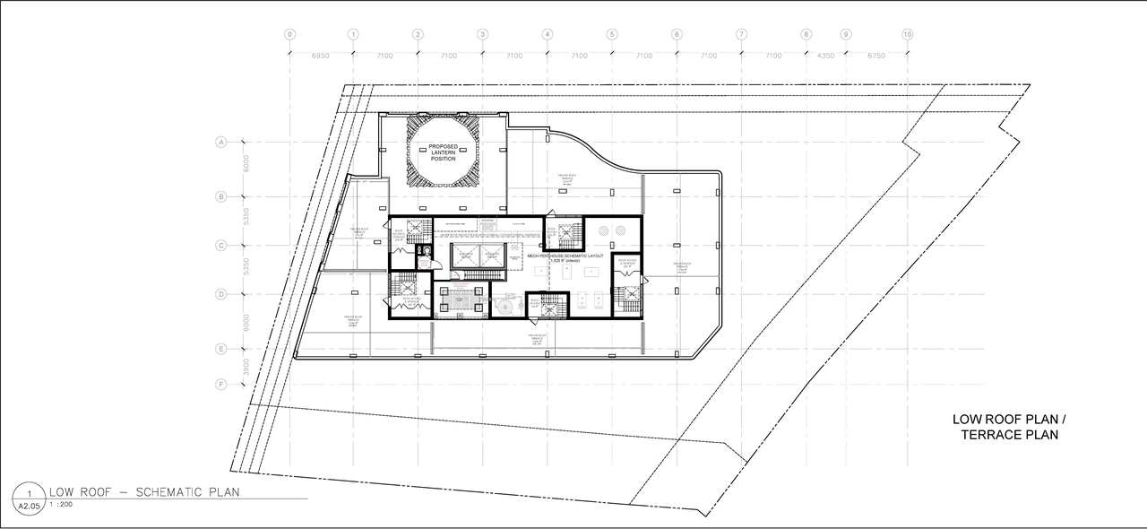
Site Plans, Elevations and Floor Plans#

Additional Information#

Date Initiated2022-06-16
WardWard 14 - Ariel Troster

Documents#

TypeDocument
Application Summary2022-07-07 - Application Summary - D07-12-22-0100
Architectural Plans2023-05-30 - Approved Site Plan - D07-12-22-0100
Architectural Plans2023-05-30 - Approved Engineering Plans - D07-12-22-0100
Architectural Plans2023-05-30 - Approved Elevations - D07-12-22-0100
Architectural Plans2023-03-28 - Site Plan - D07-12-22-0100
Architectural Plans2023-03-28 - Parking Plans - D07-12-22-0100
Architectural Plans2023-03-28 - Elevations - D07-12-22-0100
Architectural Plans2023-01-20 - Site Plan - D07-12-22-0100
Architectural Plans2023-01-20 - Parking Plans - D07-12-22-0100
Architectural Plans2023-01-20 - Lantern Photometric Plan & Fixture - D07-12-22-0100
Architectural Plans2023-01-20 - Elevations - D07-12-22-0100
Architectural Plans2023-01-20 - Design Plans & Sections - D07-12-22-0100
Architectural Plans2022-06-16 - Site Plan - D07-12-22-0100
Architectural Plans2022-06-16 - Parking Plans - D07-12-22-0100
Architectural Plans2022-06-16 - Elevations - D07-12-22-0100
Architectural Plans2022-06-16 - Design Plans & Sections - D07-12-22-0100
Civil Engineering Report2023-03-28 - Civil Drawings - D07-12-22-0100
Civil Engineering Report2022-06-16 - Civil Drawings - D07-12-22-0100
Design Brief2023-01-20 - Design Brief - D07-12-22-0100
Design Brief2022-06-16 - Design Brief - D07-12-22-0100
Electrical Plan2023-01-20 - Site Lighting Certificate - D07-12-22-0100
Environmental2022-06-16 - Phase II Environmental Site Assessment - D07-12-22-0100
Environmental2022-06-16 - Phase I Environmental Site Assessment - D07-12-22-0100
Floor Plan2023-03-28 - Floor Plans - D07-12-22-0100
Floor Plan2023-01-20 - Floor Plans - D07-12-22-0100
Floor Plan2022-06-16 - Floor Plans - D07-12-22-0100
Geotechnical Report2022-06-16 - Geotechnical Report - D07-12-22-0100
Landscape Plan2023-05-30 - Approved Landscape Plans - D07-12-22-0100
Landscape Plan2023-03-28 - Landscape Plans - D07-12-22-0100
Landscape Plan2023-01-20 - Landscape Plans - D07-12-22-0100
Landscape Plan2022-06-16 - Landscape Plans - D07-12-22-0100
Noise Study2023-05-30 - Approved Roadway Traffic Noise Assessment - D07-12-22-0100
Noise Study2023-01-20 - Roadway Traffic Noise Detailed Assessment - D07-12-22-0100
Noise Study2022-06-16 - Noise Study - D07-12-22-0100
Rendering2023-01-20 - Design Views - D07-12-22-0100
Rendering2022-06-16 - Design Views - D07-12-22-0100
Shadow Study2023-01-20 - Sun Shadow Study & Comparison - D07-12-22-0100
Shadow Study2023-01-20 - Sun Shadow Study - D07-12-22-0100
Shadow Study2022-06-16 - Sun Shadow Study & Comparison - D07-12-22-0100
Shadow Study2022-06-16 - Sun Shadow Study - D07-12-22-0100
Site Servicing2023-05-30 - Approved Site Servicing Report - D07-12-22-0100
Site Servicing2022-06-16 - Servicing Report - D07-12-22-0100
Stormwater Management2023-03-28 - Functional Servicing & Stormwater Management Report - D07-12-22-0100
Stormwater Management2023-01-20 - Functional Servicing & Stormwater Management Report - D07-12-22-0100
Surveying2022-06-16 - Topographic Survey - D07-12-22-0100
Transportation Analysis2023-03-28 - Transportation Impact Assessment Report - D07-12-22-0100
Transportation Analysis2023-01-20 - TIA Report - D07-12-22-0100
Transportation Analysis2022-06-16 - Traffic Impact Assessment - D07-12-22-0100
Tree Information and Conservation2023-05-30 - Approved Tree Conservation Reports - D07-12-22-0100
Tree Information and Conservation2023-03-28 - Tree Conservation Plan - D07-12-22-0100
Tree Information and Conservation2022-06-16 - Tree Conservation Report - D07-12-22-0100
Wind Study2023-05-30 - Approved Pedestrian Level Wind Study - D07-12-22-0100
Wind Study2022-06-16 - Wind Study - D07-12-22-0100
2023-05-30 - Signed Delegated Authority Report - D07-12-22-0100
2023-01-20 - Loading Bay Study - D07-12-22-0100
2023-01-20 - Engineering Drawings - D07-12-22-0100
2023-01-20 - Design Presentation - D07-12-22-0100
2022-06-16 - Design Presentation - D07-12-22-0100
2022-06-16 - Cultural Heritage Impact Statement - D07-12-22-0100