Ottawa Development Projects

4840 Bank St.#

Last updated: 2023-03-02 · ID: D07-12-22-0097

Summary#

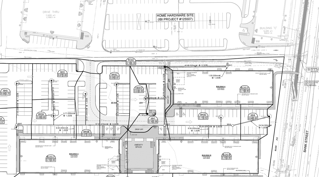
Three 4-storey rental apartment buildings with 60 units each for a total of 180 dwelling units

Status
Post Approval (Request for Agreement Received)

Building Scale (Max.) Based on elevation drawings. Values may be approximate. See sources for exact figures.
Mid-rise · 4 storeys · 16.5 m

Location#

Select a marker to view the address.

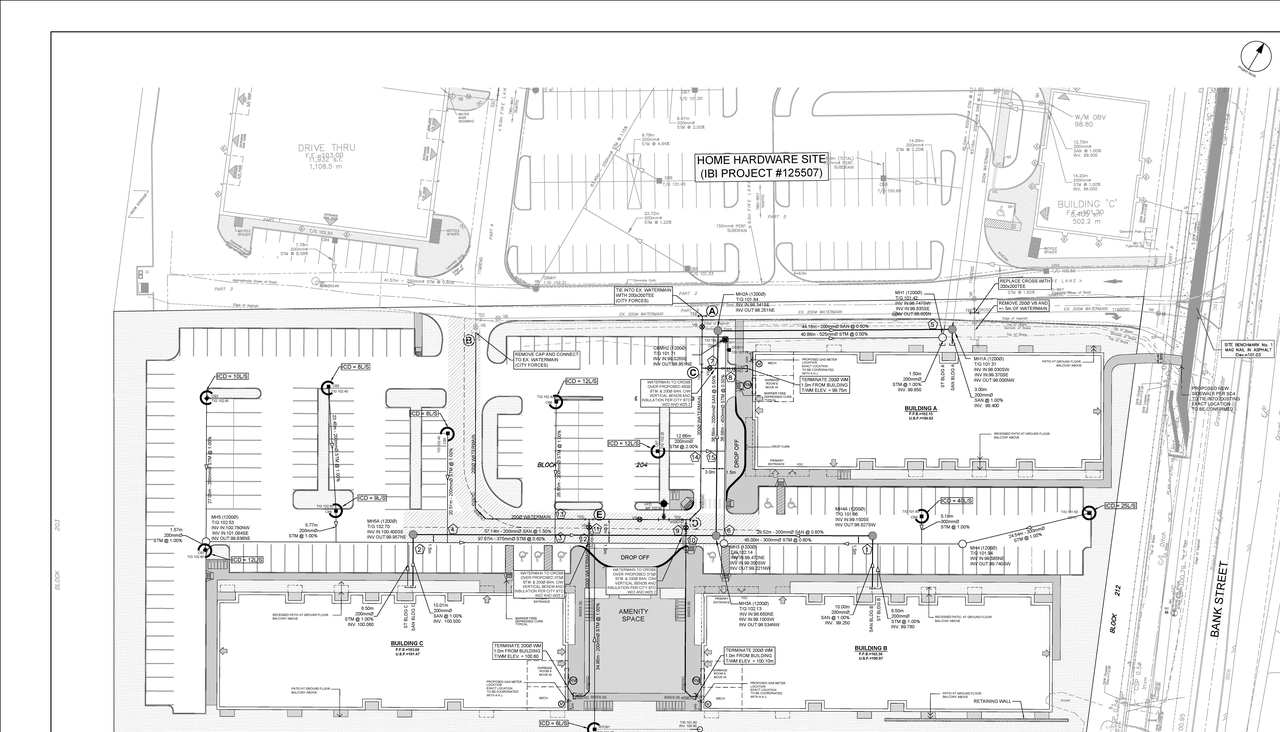
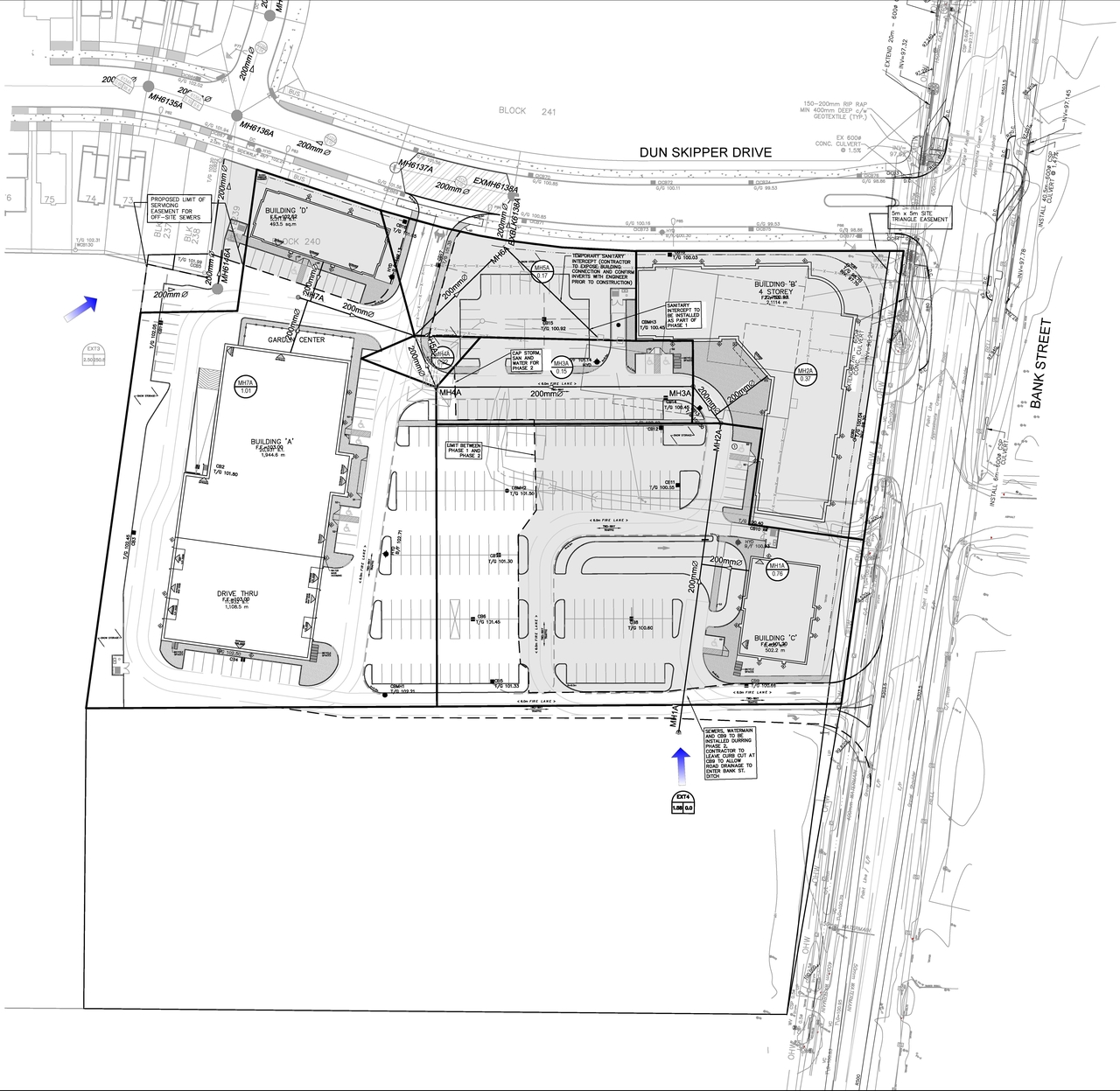
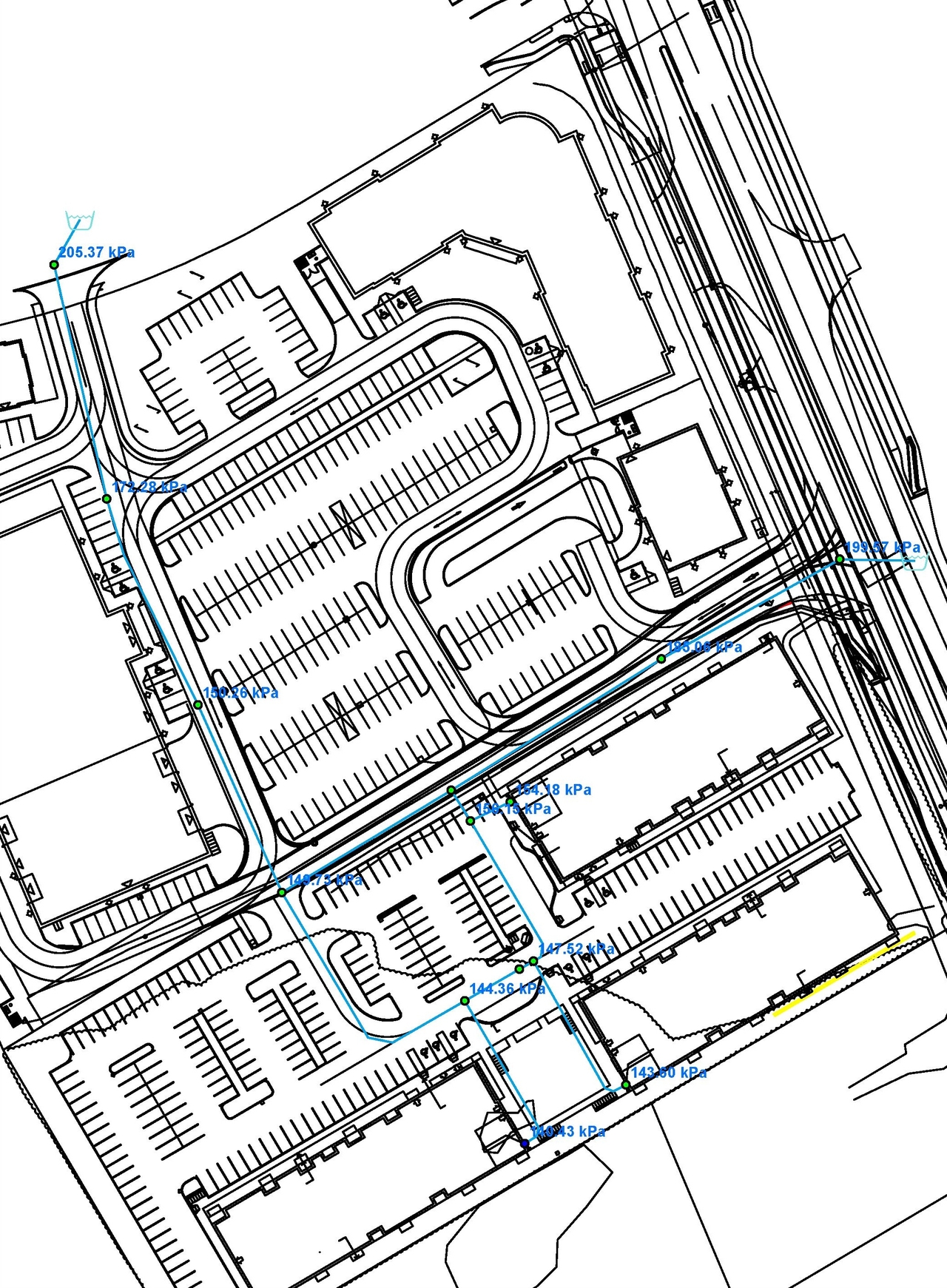
Site Plans, Elevations and Floor Plans#

Additional Information#

Date Initiated2022-06-06
WardWard 22 - Steve Desroches

Documents#

TypeDocument
Application Summary2022-06-20 - Application Summary - D07-12-22-0097
Architectural Plans2023-03-03 - Approved Site Plan - D07-12-22-0097
Architectural Plans2023-03-03 - Approved Elevations - D07-12-22-0097
Architectural Plans2022-11-03 - Site Plan - D07-12-22-0097
Architectural Plans2022-11-03 - SITE GRADING PLAN - D07-12-22-0097
Architectural Plans2022-11-03 - Sediment & Erosion Control Plan - D07-12-22-0097
Architectural Plans2022-11-03 - Sanitary Drainage Plan - D07-12-22-0097
Architectural Plans2022-11-03 - Ponding Plan - D07-12-22-0097
Architectural Plans2022-11-03 - GENERAL PLAN OF SERVICES - D07-12-22-0097
Architectural Plans2022-09-19 - Site Plan - D07-12-22-0097
Architectural Plans2022-09-19 - Draft Plan - D07-12-22-0097
Architectural Plans2022-06-06 - Site Plan - D07-12-22-0097
Architectural Plans2022-06-06 - Sediment & Erosion Control Plan - D07-12-22-0097
Architectural Plans2022-06-06 - Sanitary Drainage Area Plan - D07-12-22-0097
Architectural Plans2022-06-06 - Ponding Plan - D07-12-22-0097
Architectural Plans2022-06-06 - Plan 4M - D07-12-22-0097
Architectural Plans2022-06-06 - Elevations - D07-12-22-0097
Civil Engineering Report2023-03-03 - Approved Civil Drawings - D07-12-22-0097
Civil Engineering Report2022-11-24 - Civil Drawings - D07-12-22-0097
Civil Engineering Report2022-06-06 - Civil Drawings - D07-12-22-0097
Design Brief2022-11-03 - Design Brief - D07-12-22-0097
Design Brief2022-09-19 - Design Brief - D07-12-22-0097
Environmental2022-09-19 - Environmental Noise Assessment - D07-12-22-0097
Environmental2022-06-06 - Phase I Environmental Site Assessment - D07-12-22-0097
Geotechnical Report2022-06-06 - Grading Plan - D07-12-22-0097
Geotechnical Report2022-06-06 - Geotechnical Investigation - D07-12-22-0097
Landscape Plan2023-03-03 - Approved Landscape Plan - D07-12-22-0097
Landscape Plan2022-11-03 - Landscape Plan - D07-12-22-0097
Landscape Plan2022-09-19 - Landscape and Planting Plan - D07-12-22-0097
Noise Study2022-06-06 - Noise Study - D07-12-22-0097
Planning2022-06-06 - Planning Rationale & Design Brief - D07-12-22-0097
Site Servicing2022-06-06 - Servicing Plan - D07-12-22-0097
Site Servicing2022-06-06 - Servicing & Stormwater Management Design Brief - D07-12-22-0097
Stormwater Management2022-11-03 - Storm Drainage Area Plan - D07-12-22-0097
Stormwater Management2022-06-06 - Storm Drainage Area Plan - D07-12-22-0097
Transportation Analysis2022-06-06 - Transportation Impact Assessment (3) - D07-12-22-0097
Transportation Analysis2022-06-06 - Transportation Impact Assessment (2) - D07-12-22-0097
Transportation Analysis2022-06-06 - Transportation Impact Assessment - D07-12-22-0097
Tree Information and Conservation2022-06-06 - Environmental Impact Statement & Tree Conservation Plan - D07-12-22-0097
2023-03-03 - Signed DAR - D07-12-22-0097
2023-03-03 - Approved Bank St Reconstruction Geometry & General Layout - D07-12-22-0097
2022-11-24 - Schedule B Details - D07-12-22-0097
2022-11-03 - Full Set of Drawings - D07-12-22-0097
2022-09-19 - Proposed Signage - D07-12-22-0097
2022-09-19 - Full Set of Drawings - D07-12-22-0097
2022-09-19 - Circulation Comments - D07-12-22-0097
2022-06-06 - Notes Legend - D07-12-22-0097