78 Rosemount Ave.#
Last updated: 2023-11-10 · ID: D07-12-22-0094
Summary#
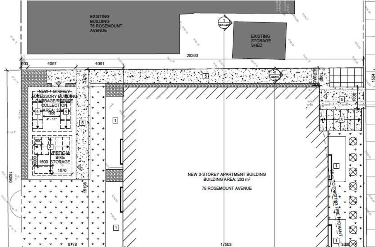
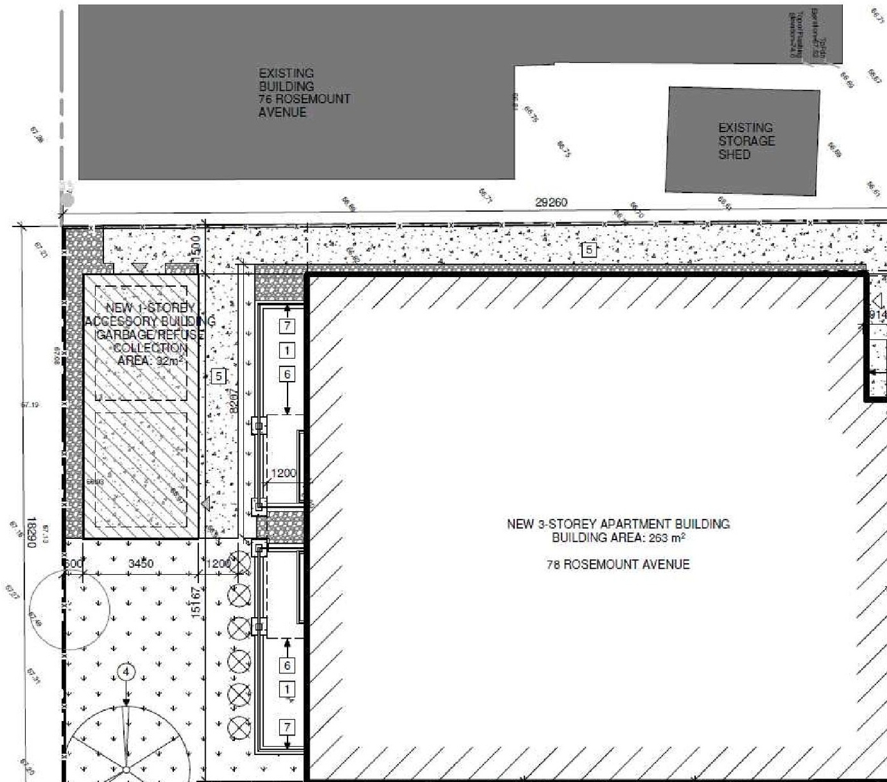
The proposed development is the construction of a 3 story multifamily residential building with 12 rental units. The intended unit mix is 2 one-bedroom, 1 one+den, and 9 two-bedroom units. No motor vehicle parking will be provided. An accessory building in the rear yard is also being proposed - this buiding will serve as indoor bicycle parking for residents and provide storage space for waste receptacles. There will be landscaped areas in both the front and rear yards. The rear yard will serve as amenity space for all residents.
Status
Post Approval (Receipt of Letter of Undertaking from Owner Pending)
Building Scale (Max.)
Based on elevation drawings. Values may be approximate. See sources for exact figures.
Low-rise · 3 storeys
· 10.92 m
Renders#
Location#
Select a marker to view the address.
Site Plans, Elevations and Floor Plans#
Additional Information#
| Date Initiated | 2022-06-03 |
| Ward | Ward 15 - Jeff Leiper |









