1305 Maritime Way#
Last updated: 2024-12-18 · ID: D07-12-22-0091
Summary#
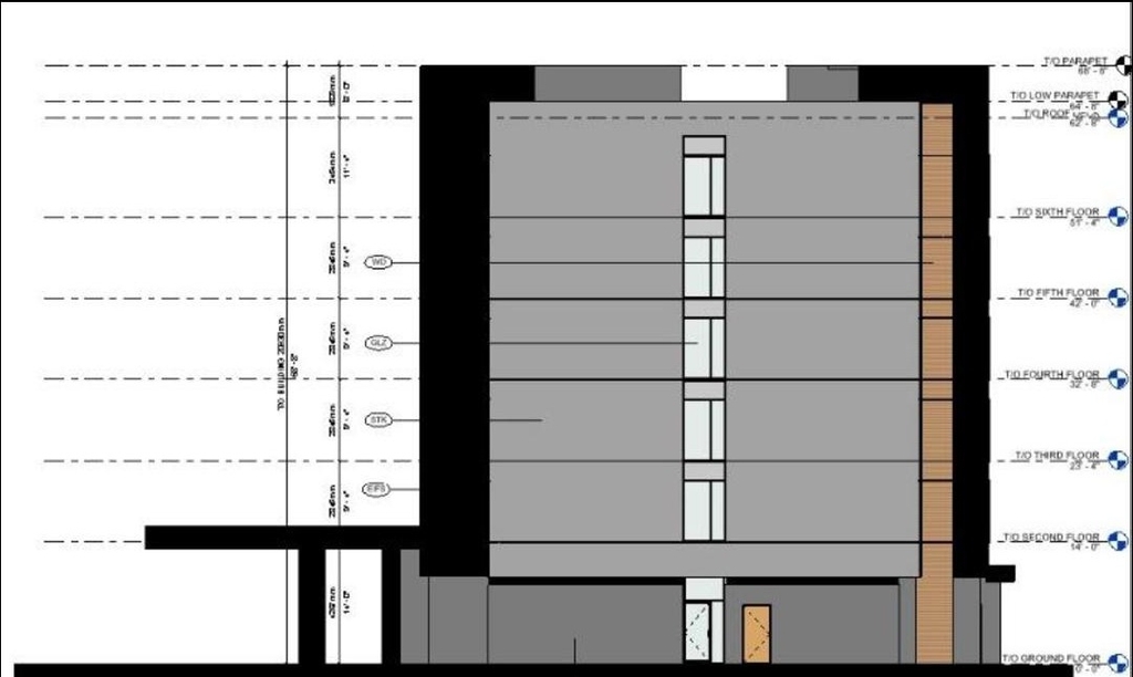
The proposed development involves a six storey hotel with 102 rooms, with a building footprint of 1,017 square metres and a total gross area of 6092 square metres. 102 vehicular parking spaces, 2 loading spaces, and 7 bicycle parking spaces are proposed along with a driveway from Maritime Way. Hard and soft landscape features, and other site elements, are also proposed.
Status
Active (Draft Report Sent for Response)
Building Scale (Max.)
Based on elevation drawings. Values may be approximate. See sources for exact figures.
Mid-rise · 6 storeys
· 21.74 m
Renders#
Location#
Select a marker to view the address.
Site Plans, Elevations and Floor Plans#
Additional Information#
| Date Initiated | 2022-05-30 |
| Ward | Ward 4 - Cathy Curry |












