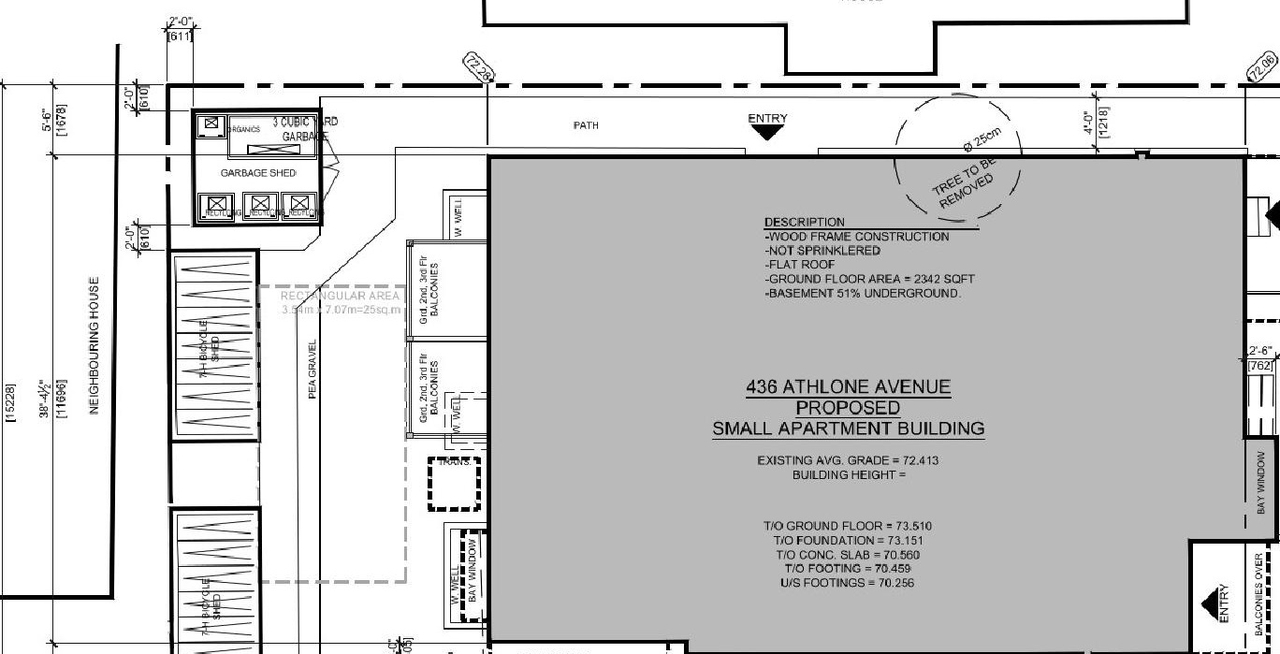
436 Athlone Ave.#
Last updated: 2025-04-12 · ID: D07-12-22-0086
Summary#
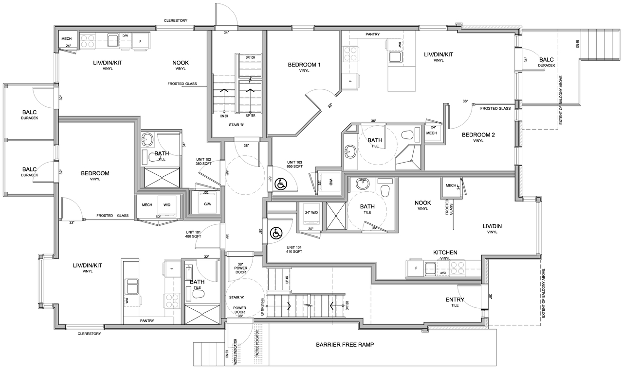
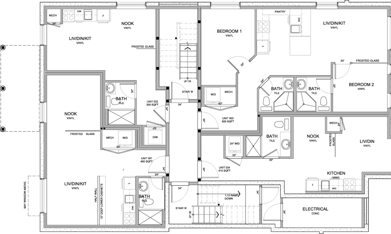
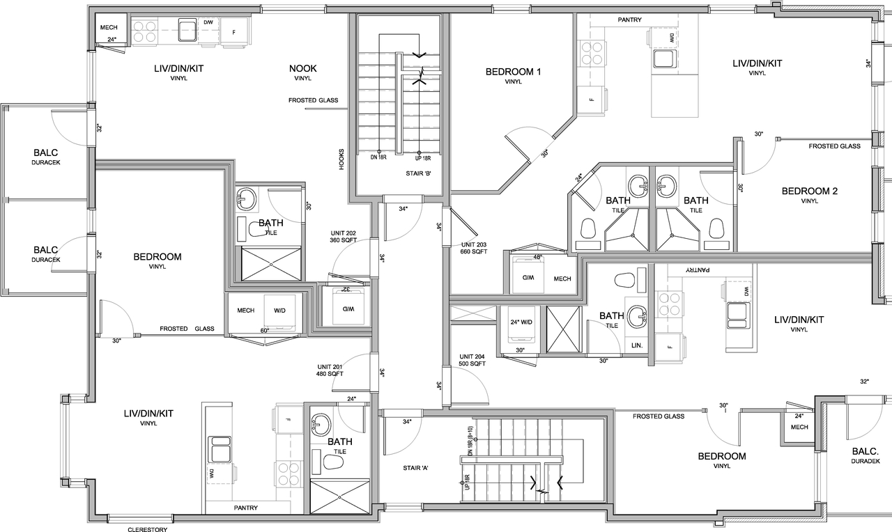
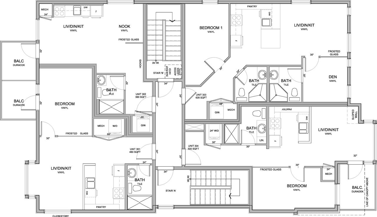
Proposed three-storey, 16 unit apartment building.
Status
Inactive (Notice of Decision Sent)
Building Scale (Max.)
Based on elevation drawings. Values may be approximate. See sources for exact figures.
Low-rise · 3 storeys
· 8.7 m
Data Quality Note
Height was partially estimated using visual scale. This may be approximate.
Renders#
Location#
Select a marker to view the address.
Site Plans, Elevations and Floor Plans#
Additional Information#
| Date Initiated | 2022-05-24 |
| Ward | Ward 15 - Jeff Leiper |
























