Ottawa Development Projects

70 Richmond Rd./376 Island Park Dr.#

Last updated: 2024-07-23 · ID: D07-12-22-0082

Summary#

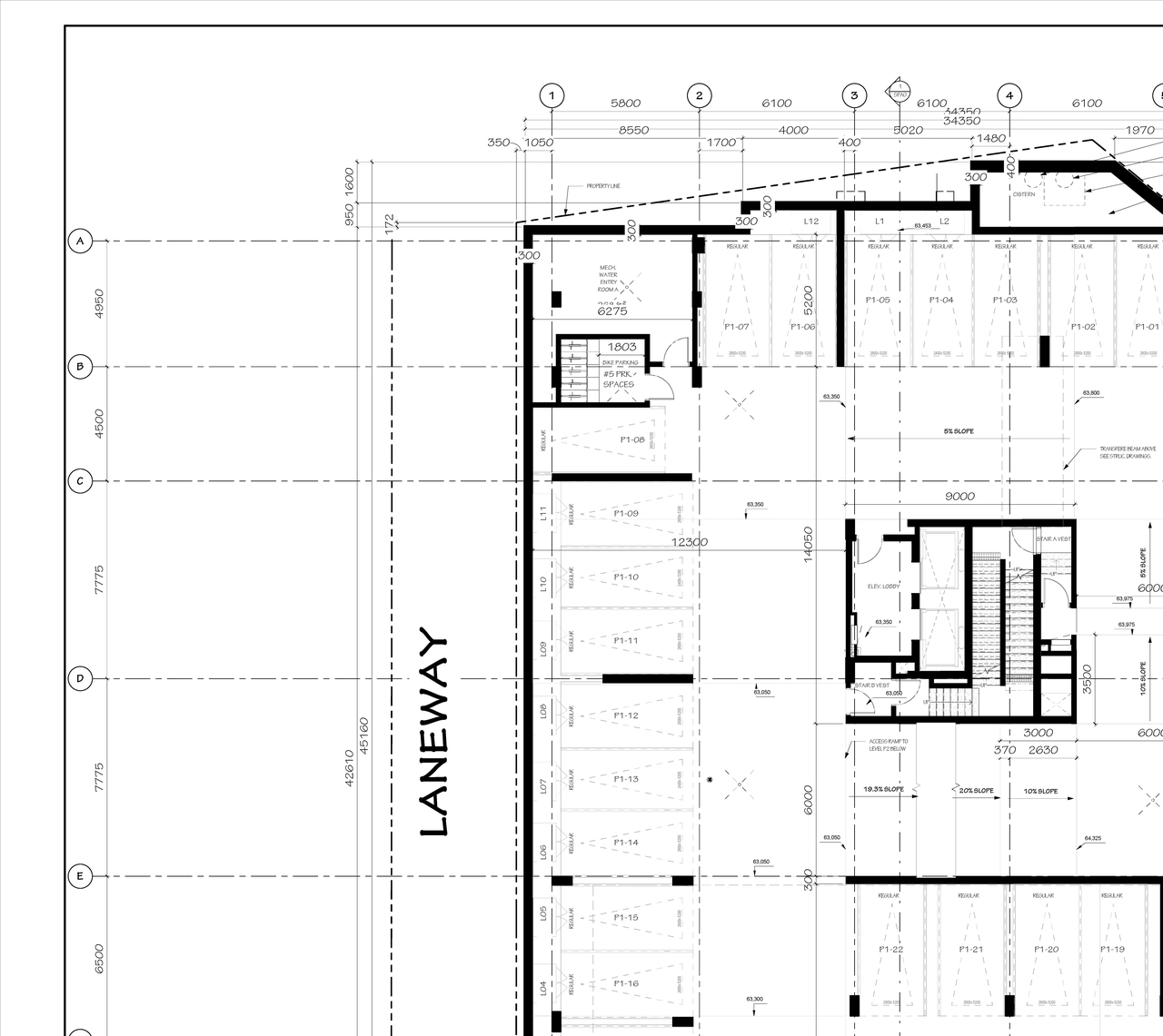
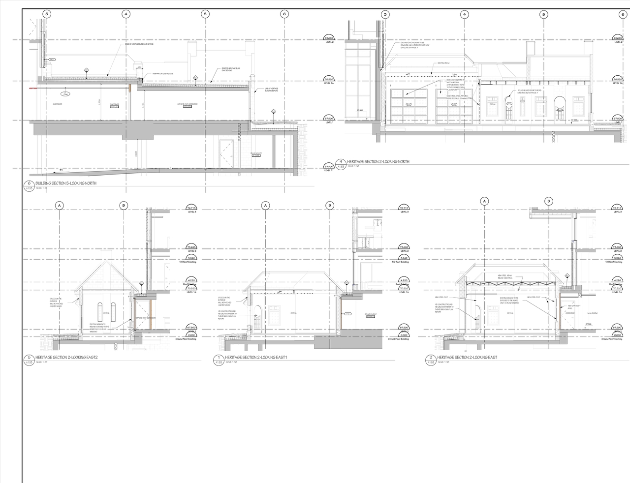
Proposed 9 storey mixed-use building, relocating and integrating the heritage gas station as retail space, with 88 residential units above. A total of 71 vehicular parking spaces are proposed within the underground garage and 88 bike parking spaces are proposed.

Status
Inactive (Agreement Registered - Final Legal Clearance Given)

Building Scale (Max.) Based on elevation drawings. Values may be approximate. See sources for exact figures.
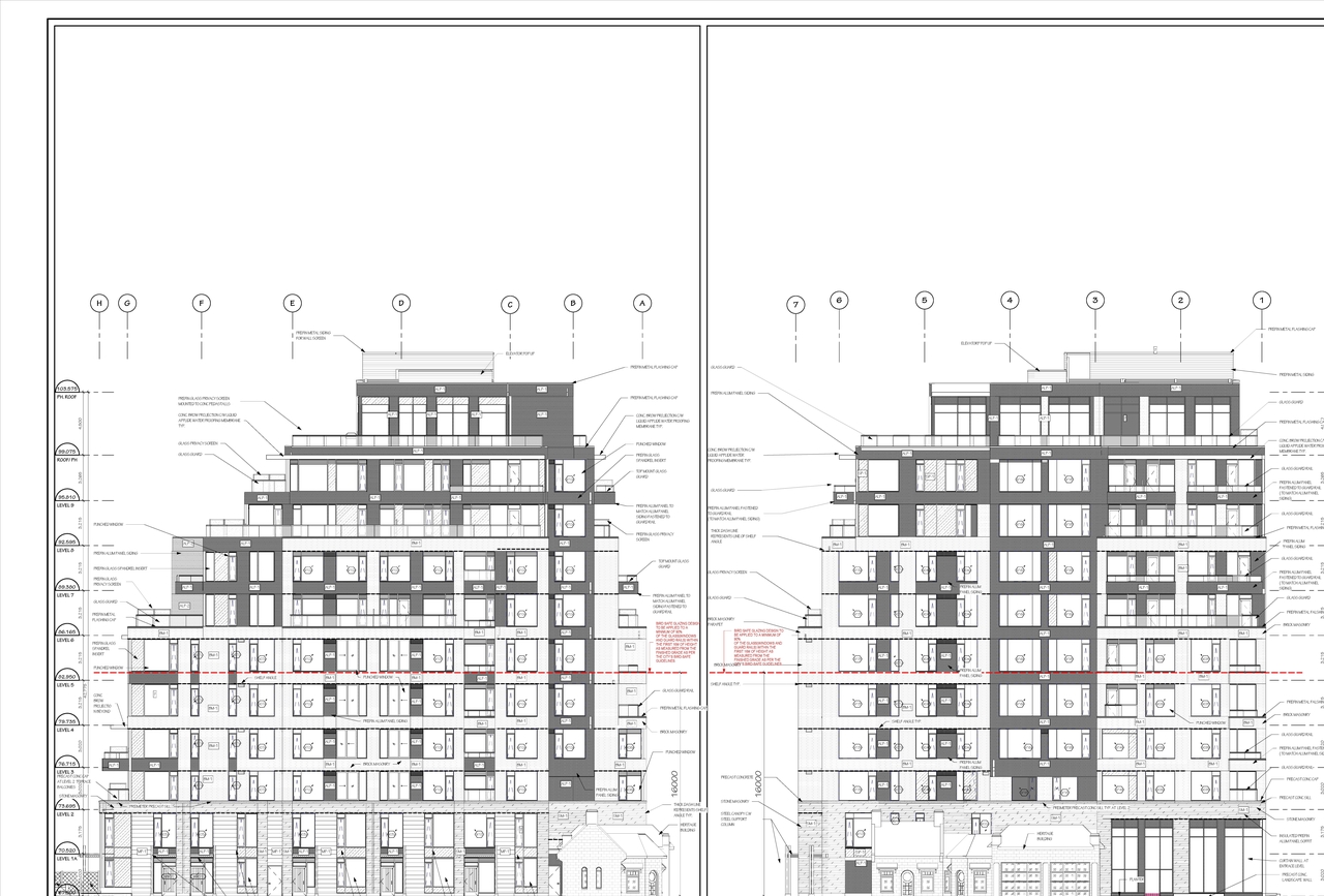
Mid-rise · 9 storeys · 39.58 m

Renders#

Location#

Select a marker to view the address.

Site Plans, Elevations and Floor Plans#

Additional Information#

Date Initiated2022-05-16
WardWard 15 - Jeff Leiper

Documents#

TypeDocument
Application Summary2022-06-09 - Application Summary - D07-12-22-0082
Architectural Plans2023-11-22 - Approved Architectural Plans - D07-12-22-0082
Architectural Plans2023-06-28 - CONSERVATION PLAN - D07-12-22-0082
Architectural Plans2023-05-01 - Site, Floor, Sections, Elevations Plans - D07-12-22-0082
Architectural Plans2023-05-01 - CONSERVATION PLAN - D07-12-22-0082
Architectural Plans2022-11-24 - Site Plan & Elevations - D07-12-22-0082
Architectural Plans2022-05-16 - Site Plan - D07-12-22-0082
Architectural Plans2022-05-16 - Level P2 Plan - D07-12-22-0082
Architectural Plans2022-05-16 - Level P1 Plan - D07-12-22-0082
Architectural Plans2022-05-16 - Elevations - D07-12-22-0082
Architectural Plans2022-05-16 - Conservation Plan - D07-12-22-0082
Civil Engineering Report2023-11-22 - Approved Civil Drawings - D07-12-22-0082
Civil Engineering Report2023-10-03 - Civil Drawings - D07-12-22-0082
Civil Engineering Report2023-06-28 - Civil Drawings - D07-12-22-0082
Civil Engineering Report2023-05-01 - Civil Drawings - D07-12-22-0082
Civil Engineering Report2022-11-24 - Civil Drawings - D07-12-22-0082
Civil Engineering Report2022-05-16 - Civil Drawings - D07-12-22-0082
Environmental2022-05-16 - Phase II Environmental Site Assessment - D07-12-22-0082
Environmental2022-05-16 - Phase 1 Environmental Site Assessment - D07-12-22-0082
Floor Plan2023-10-03 - Site Plan and Floor Plans - D07-12-22-0082
Geotechnical Report2022-05-16 - Geotechnical Investigation - D07-12-22-0082
Landscape Plan2023-10-03 - Landscape Plans - D07-12-22-0082
Landscape Plan2023-06-28 - Landscape Plan - D07-12-22-0082
Landscape Plan2023-05-01 - Landscape Plan - D07-12-22-0082
Landscape Plan2022-11-24 - Landscape Plan - D07-12-22-0082
Landscape Plan2022-05-16 - Landscape Plan - D07-12-22-0082
Noise Study2022-05-31 - Traffic Noise Assessment Final - D07-12-22-0082
Noise Study2022-05-16 - Noise Addendum Letter - D07-12-22-0082
Notificationl2024-06-27 - Limited Commence Work Notification - D07-12-22-0082
Planning2022-05-16 - Planning Rationale & Design Brief - D07-12-22-0082
Rendering2023-06-28 - Site, Heritage Floor , Elevation Sections, Views Plans - D07-12-22-0082
Site Servicing2023-05-01 - Servicing & Stormwater Management Report - D07-12-22-0082
Stormwater Management2023-10-03 - Functional Servicing and SWM Report - D07-12-22-0082
Stormwater Management2023-06-28 - Stormwater Management Report - D07-12-22-0082
Stormwater Management2022-11-24 - Functional Servicing and Stormwater Management Report - D07-12-22-0082
Stormwater Management2022-05-16 - Stormwater Management Report - D07-12-22-0082
Surveying2022-11-24 - Topographical Survey - D07-12-22-0082
Surveying2022-05-31 - Topo Survey Plan - D07-12-22-0082
Transportation Analysis2023-05-01 - Transportation Impact Assessment - D07-12-22-0082
Transportation Analysis2022-11-24 - Transportation Impact Assessment - D07-12-22-0082
Transportation Analysis2022-05-16 - Transportation Impact Assessment - D07-12-22-0082
Tree Information and Conservation2023-05-01 - TREE PROTECTION PLAN - D07-12-22-0082
Tree Information and Conservation2022-05-31 - Tree Infromation Report - D07-12-22-0082
Wind Study2022-05-31 - Wind Study - D07-12-22-0082
Wind Study2022-05-16 - Pedestrian Level Wind Study Addendum Letter - D07-12-22-0082
2023-11-22 - Signed Delegated Authority Report - D07-12-22-0082
2022-05-16 - Drawings - D07-12-22-0082
2022-05-16 - Cultural Heritage Impact Statement - D07-12-22-0082