216 McArthur Ave.#
Last updated: 2023-08-21 · ID: D07-12-22-0072
Summary#
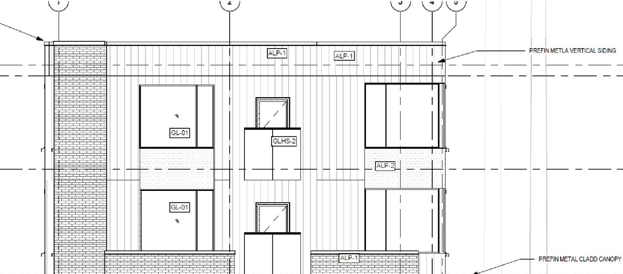
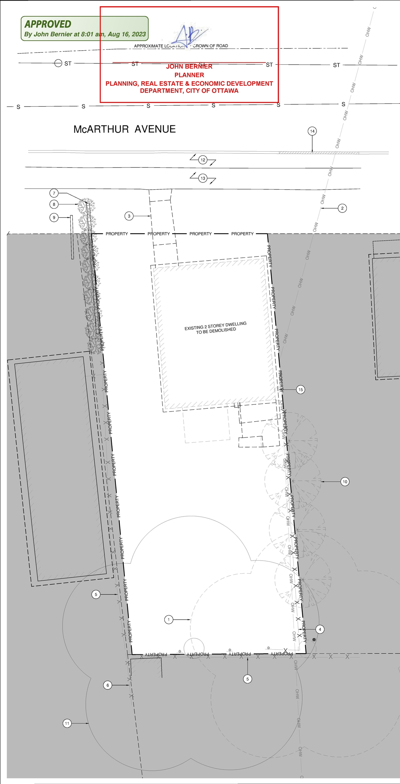
Demolition of existing three-unit, low-rise apartment building for the development of a three-storey mixed use development consisting 12 residential units and a grounfloor commercial space.
Status
Inactive (Notice of Decision Sent)
Building Scale (Max.)
Based on elevation drawings. Values may be approximate. See sources for exact figures.
Low-rise · 3 storeys
· 10.56 m
Data Quality Note
Text was extracted using optical character recognition. This may introduce artifacts or misreads.
Renders#
Location#
Select a marker to view the address.
Site Plans, Elevations and Floor Plans#
Additional Information#
| Date Initiated | 2022-05-02 |
| Ward | Ward 12 - Stéphanie Plante |









