Ottawa Development Projects

505 Chaudiere#

Last updated: 2024-08-03 · ID: D07-12-22-0071

Summary#

The City of Ottawa has received Zoning By-law Amendment and Site Plan Control applications to permit the development of a 23-storey mixed-use building, including an increase to the maximum permitted floorplate area for the 10th storey.

Status
Post Approval (Receipt of Agreement from Owner Pending)

Building Scale (Max.) Based on elevation drawings. Values may be approximate. See sources for exact figures.
High-rise · 22 storeys · 75.69 m

Renders#

  • Rendering of building from page 30 of the file '2022-06-03 - Urban Design Review Panel Presentation - D07-12-22-0071'
  • Rendering of building from page 1 of the file '2022-10-03 - Project Perspectives - D07-12-22-0071'
  • Rendering of building from page 1 of the file '2022-04-27 - Project Perspectives - D07-12-22-0071'
  • Rendering of building from page 49 of the file '2022-06-03 - Urban Design Review Panel Presentation - D07-12-22-0071'
  • Rendering of building from page 1 of the file '2022-10-03 - Project Perspectives - D07-12-22-0071'
  • Rendering of building from page 30 of the file '2022-06-03 - Urban Design Review Panel Presentation - D07-12-22-0071'
  • Rendering of building from page 1 of the file '2022-04-27 - Project Perspectives - D07-12-22-0071'
  • Rendering of building from page 19 of the file '2022-10-03 - Design Brief - D07-12-22-0071'
  • Rendering of building from page 31 of the file '2022-10-03 - Design Brief - D07-12-22-0071'
  • Rendering of building from page 47 of the file '2022-06-03 - Urban Design Review Panel Presentation - D07-12-22-0071'
  • Rendering of building from page 54 of the file '2022-10-03 - Design Brief - D07-12-22-0071'
  • Rendering of building from page 53 of the file '2022-04-27 - Architectural Design Brief - D07-12-22-0071'
  • Rendering of building from page 17 of the file '2022-10-03 - Design Brief - D07-12-22-0071'
  • Rendering of building from page 16 of the file '2022-06-03 - Urban Design Review Panel Presentation - D07-12-22-0071'
  • Rendering of building from page 48 of the file '2022-10-03 - Design Brief - D07-12-22-0071'
  • Rendering of building from page 30 of the file '2022-06-03 - Urban Design Review Panel Presentation - D07-12-22-0071'
  • Rendering of building from page 5 of the file '2022-04-27 - View Study - D07-12-22-0071'
  • Rendering of building from page 54 of the file '2022-10-03 - Design Brief - D07-12-22-0071'
  • Rendering of building from page 31 of the file '2022-10-03 - Design Brief - D07-12-22-0071'
  • Rendering of building from page 19 of the file '2022-10-03 - Design Brief - D07-12-22-0071'
  • Rendering of building from page 16 of the file '2022-06-03 - Urban Design Review Panel Presentation - D07-12-22-0071'
  • Rendering of building from page 18 of the file '2022-06-03 - Urban Design Review Panel Presentation - D07-12-22-0071'
  • Rendering of building from page 53 of the file '2022-04-27 - Architectural Design Brief - D07-12-22-0071'
  • Rendering of building from page 3 of the file '2022-06-03 - Urban Design Review Panel Presentation - D07-12-22-0071'
  • Rendering of building from page 52 of the file '2022-04-27 - Architectural Design Brief - D07-12-22-0071'
  • Rendering of building from page 6 of the file '2022-04-27 - View Study - D07-12-22-0071'
  • Rendering of building from page 12 of the file '2022-10-03 - Design Brief - D07-12-22-0071'
  • Rendering of building from page 3 of the file '2022-10-03 - Design Brief - D07-12-22-0071'
  • Rendering of building from page 7 of the file '2022-04-27 - View Study - D07-12-22-0071'
  • Rendering of building from page 4 of the file '2022-04-27 - View Study - D07-12-22-0071'
  • Rendering of building from page 7 of the file '2022-10-03 - Design Brief - D07-12-22-0071'
  • Rendering of building from page 7 of the file '2022-10-03 - Design Brief - D07-12-22-0071'
  • Rendering of building from page 7 of the file '2022-10-03 - Design Brief - D07-12-22-0071'
  • Rendering of building from page 30 of the file '2022-06-03 - Urban Design Review Panel Presentation - D07-12-22-0071'
  • Rendering of building from page 1 of the file '2022-10-03 - Project Perspectives - D07-12-22-0071'
  • Rendering of building from page 1 of the file '2022-04-27 - Project Perspectives - D07-12-22-0071'
  • Rendering of building from page 49 of the file '2022-06-03 - Urban Design Review Panel Presentation - D07-12-22-0071'
  • Rendering of building from page 1 of the file '2022-10-03 - Project Perspectives - D07-12-22-0071'
  • Rendering of building from page 30 of the file '2022-06-03 - Urban Design Review Panel Presentation - D07-12-22-0071'
  • Rendering of building from page 1 of the file '2022-04-27 - Project Perspectives - D07-12-22-0071'
  • Rendering of building from page 19 of the file '2022-10-03 - Design Brief - D07-12-22-0071'
  • Rendering of building from page 31 of the file '2022-10-03 - Design Brief - D07-12-22-0071'
  • Rendering of building from page 47 of the file '2022-06-03 - Urban Design Review Panel Presentation - D07-12-22-0071'
  • Rendering of building from page 54 of the file '2022-10-03 - Design Brief - D07-12-22-0071'
  • Rendering of building from page 53 of the file '2022-04-27 - Architectural Design Brief - D07-12-22-0071'
  • Rendering of building from page 17 of the file '2022-10-03 - Design Brief - D07-12-22-0071'
  • Rendering of building from page 16 of the file '2022-06-03 - Urban Design Review Panel Presentation - D07-12-22-0071'
  • Rendering of building from page 48 of the file '2022-10-03 - Design Brief - D07-12-22-0071'
  • Rendering of building from page 30 of the file '2022-06-03 - Urban Design Review Panel Presentation - D07-12-22-0071'
  • Rendering of building from page 5 of the file '2022-04-27 - View Study - D07-12-22-0071'
  • Rendering of building from page 54 of the file '2022-10-03 - Design Brief - D07-12-22-0071'
  • Rendering of building from page 31 of the file '2022-10-03 - Design Brief - D07-12-22-0071'
  • Rendering of building from page 19 of the file '2022-10-03 - Design Brief - D07-12-22-0071'
  • Rendering of building from page 16 of the file '2022-06-03 - Urban Design Review Panel Presentation - D07-12-22-0071'
  • Rendering of building from page 18 of the file '2022-06-03 - Urban Design Review Panel Presentation - D07-12-22-0071'
  • Rendering of building from page 53 of the file '2022-04-27 - Architectural Design Brief - D07-12-22-0071'
  • Rendering of building from page 3 of the file '2022-06-03 - Urban Design Review Panel Presentation - D07-12-22-0071'
  • Rendering of building from page 52 of the file '2022-04-27 - Architectural Design Brief - D07-12-22-0071'
  • Rendering of building from page 6 of the file '2022-04-27 - View Study - D07-12-22-0071'
  • Rendering of building from page 12 of the file '2022-10-03 - Design Brief - D07-12-22-0071'
  • Rendering of building from page 3 of the file '2022-10-03 - Design Brief - D07-12-22-0071'
  • Rendering of building from page 7 of the file '2022-04-27 - View Study - D07-12-22-0071'
  • Rendering of building from page 4 of the file '2022-04-27 - View Study - D07-12-22-0071'
  • Rendering of building from page 7 of the file '2022-10-03 - Design Brief - D07-12-22-0071'
  • Rendering of building from page 7 of the file '2022-10-03 - Design Brief - D07-12-22-0071'
  • Rendering of building from page 7 of the file '2022-10-03 - Design Brief - D07-12-22-0071'

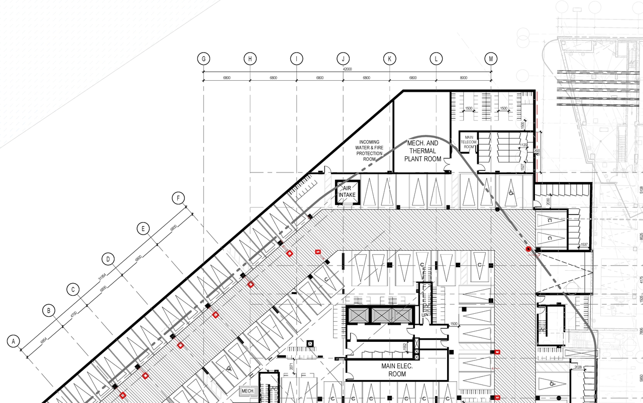
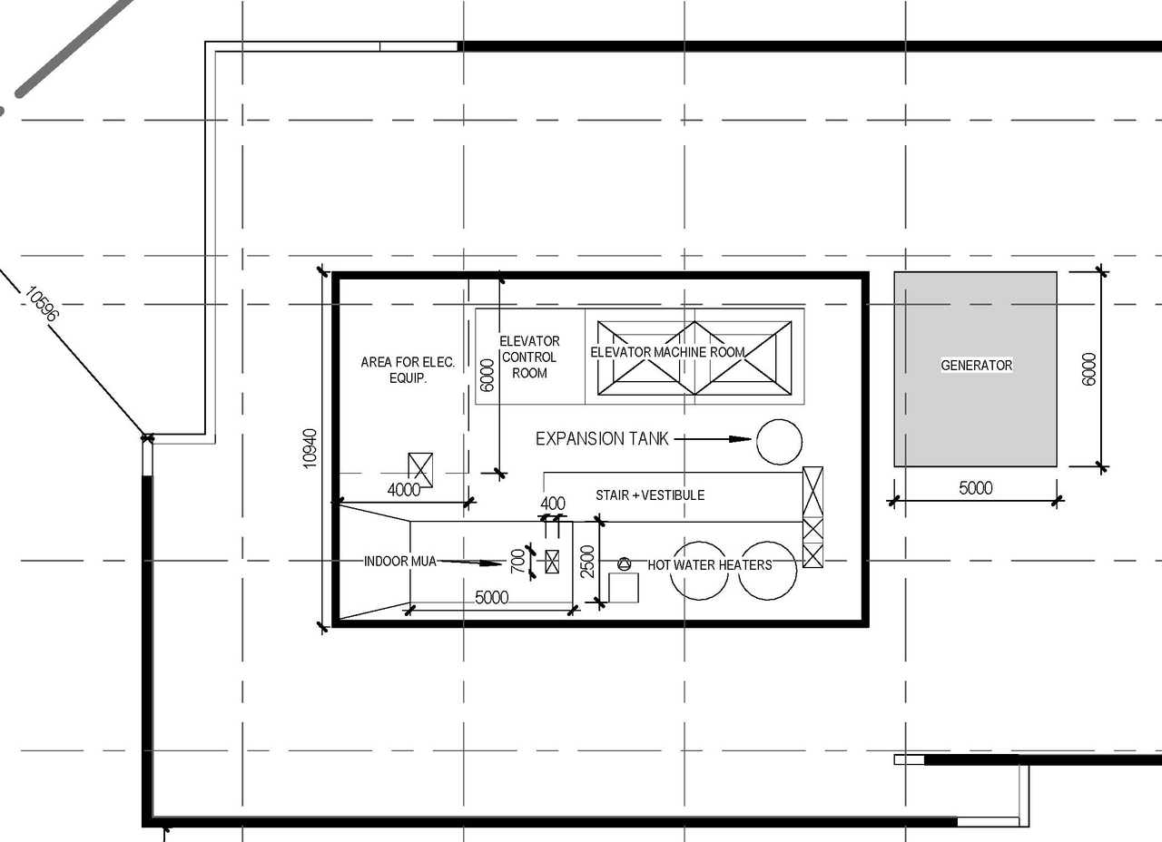
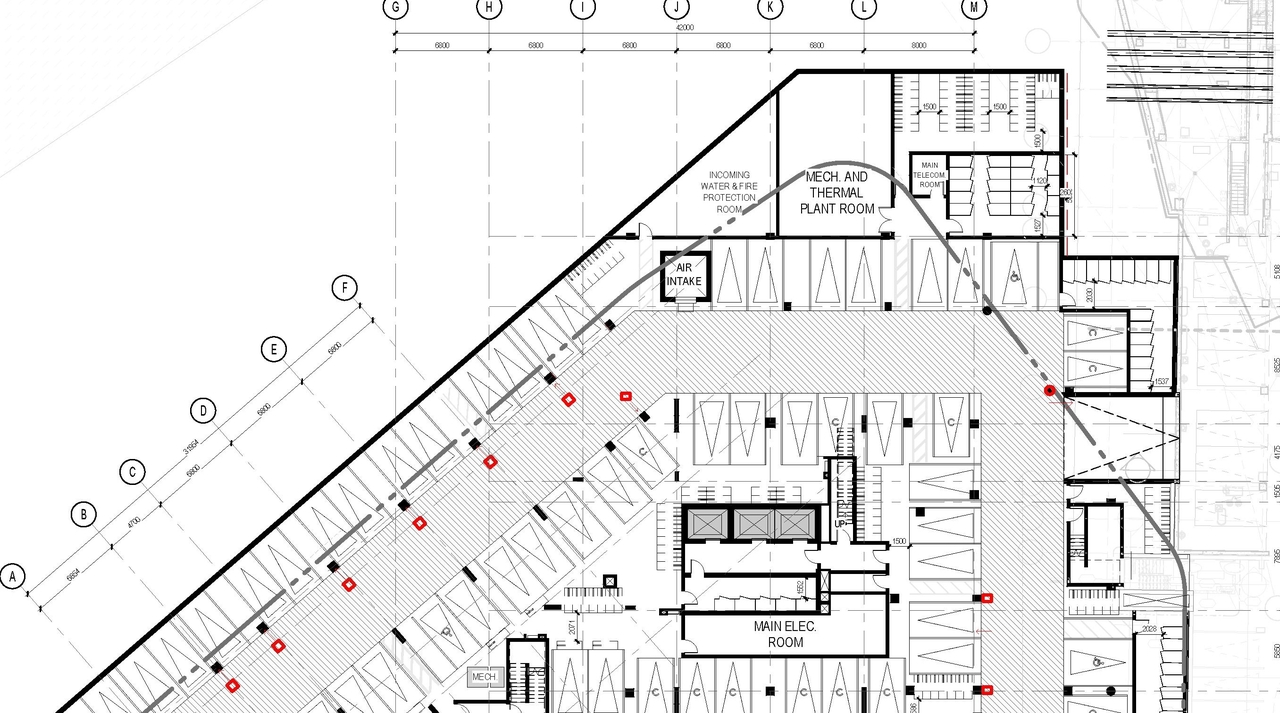
Site Plans, Elevations and Floor Plans#

Additional Information#

Date Initiated2022-04-27
WardWard 14 - Ariel Troster

Documents#

TypeDocument
Architectural Plans2023-05-26 - Approved Site Plan - D07-12-22-0071
Architectural Plans2023-05-26 - Approved Sediment and Erosion Control Plan - D07-12-22-0071.pdf
Architectural Plans2023-05-26 - Approved Plans and Profile 2 - D07-12-22-0071
Architectural Plans2023-05-26 - Approved Plans and Profile 1 - D07-12-22-0071
Architectural Plans2023-05-26 - Approved Notes Plan - D07-12-22-0071.pdf
Architectural Plans2023-05-26 - Approved Legal Plan Easements - D07-12-22-0071
Architectural Plans2023-05-26 - Approved Grade Control and Drainage Plan - D07-12-22-0071
Architectural Plans2023-05-26 - Approved Elevation West - D07-12-22-0071
Architectural Plans2023-05-26 - Approved Elevation South - D07-12-22-0071
Architectural Plans2023-05-26 - Approved Elevation North - D07-12-22-0071
Architectural Plans2023-05-26 - Approved Elevation East - D07-12-22-0071
Architectural Plans2023-03-04 - Architectural Plans - D07-12-22-0071
Architectural Plans2022-10-03 - Site Plan - D07-12-22-0071
Architectural Plans2022-10-03 - Sediment and Erosion Control Plan - D07-12-22-0071
Architectural Plans2022-10-03 - Plans and Profile - Miwate Private - D07-12-22-0071
Architectural Plans2022-10-03 - Notes Plan - D07-12-22-0071
Architectural Plans2022-10-03 - Master Plan Ontario Lands - D07-12-22-0071
Architectural Plans2022-10-03 - Elevation-West - D07-12-22-0071
Architectural Plans2022-10-03 - Elevation-South - D07-12-22-0071
Architectural Plans2022-10-03 - Elevation-North - D07-12-22-0071
Architectural Plans2022-10-03 - Elevation-East - D07-12-22-0071
Architectural Plans2022-10-03 - Context Site Plan -D07-12-22-0071
Architectural Plans2022-04-27 - Site Plan - D07-12-22-0071
Architectural Plans2022-04-27 - Sediment and Erosion Control Plan - D07-12-22-0071
Architectural Plans2022-04-27 - Plans and Profile (2) - D07-12-22-0071
Architectural Plans2022-04-27 - Plans and Profile - D07-12-22-0071
Architectural Plans2022-04-27 - Notes Plan - D07-12-22-0071
Architectural Plans2022-04-27 - Elevation West - D07-12-22-0071
Architectural Plans2022-04-27 - Elevation South - D07-12-22-0071
Architectural Plans2022-04-27 - Elevation North - D07-12-22-0071
Architectural Plans2022-04-27 - Elevation East - D07-12-22-0071
Architectural Plans2022-04-27 - Context Site Plan - D07-12-22-0071
Architectural Plans2022-04-27 - Architectural Cover Sheet - D07-12-22-0071
Civil Engineering Report2023-03-07 - Civil Plans - D07-12-22-0071
Cover Letter2022-10-03 - Cover Sheet - D07-12-22-0071
Design Brief2022-10-03 - Design Brief - D07-12-22-0071
Design Brief2022-06-03 - Urban Design Review Panel Presentation - D07-12-22-0071
Design Brief2022-04-27 - Architectural Design Brief - D07-12-22-0071
Electrical Plan2022-04-27 - Lighting Compliance Letter - D07-12-22-0071
Environmental2023-06-01 - Approved Environmental Noise Assessment - D07-12-22-0071
Environmental2022-04-27 - Phase Two Environmental Site Assessment - D07-12-22-0071
Environmental2022-04-27 - Phase One Environmental Site Assessment - D07-12-22-0071
Environmental2022-04-27 - Phase II Environmental Site Assessment - D07-12-22-0071
Environmental2022-04-27 - Phase I Environmental Site Assessment - D07-12-22-0071
Environmental2022-04-27 - Environmental Site Status Memorandum - D07-12-22-0071
Environmental2022-04-27 - Environmental Noise Assessment - D07-12-22-0071
Floor Plan2022-10-03 - Floor Plan-P1 - D07-12-22-0071
Floor Plan2022-10-03 - Floor Plan-Mechanical Penthouse - D07-12-22-0071
Floor Plan2022-10-03 - Floor Plan-Level 9 - D07-12-22-0071
Floor Plan2022-10-03 - Floor Plan-Level 6 - D07-12-22-0071
Floor Plan2022-10-03 - Floor Plan-Level 3 - D07-12-22-0071
Floor Plan2022-10-03 - Floor Plan-Level 2 - D07-12-22-0071
Floor Plan2022-10-03 - Floor Plan-Level 11 - D07-12-22-0071
Floor Plan2022-10-03 - Floor Plan-Level 10 -D07-12-22-0071
Floor Plan2022-10-03 - Floor Plan Level 1-Ground - D07-12-22-0071
Floor Plan2022-10-03 - FLOOR PLAN -Mezzanine - D07-12-22-0071
Floor Plan2022-04-27 - Floor Plan-Mezzanine - D07-12-22-0071
Floor Plan2022-04-27 - Floor Plan-Level 4 - D07-12-22-0071
Floor Plan2022-04-27 - Floor Plan-Level 3 - D07-12-22-0071
Floor Plan2022-04-27 - Floor Plan-Level 2 - D07-12-22-0071
Floor Plan2022-04-27 - Floor Plan-Level 11 - D07-12-22-0071
Floor Plan2022-04-27 - Floor Plan-Level 10 - D07-12-22-0071
Floor Plan2022-04-27 - Floor Plan-Level 1-Ground - D07-12-22-0071
Floor Plan2022-04-27 - Floor Plan Parking1 - D07-12-22-0071
Floor Plan2022-04-27 - Floor Plan Mechanical Penthouse - D07-12-22-0071
Floor Plan2022-04-27 - Floor Plan Level 12 - D07-12-22-0071
Geotechnical Report2023-06-01 - Approved Hydrogeological Investigation - D07-12-22-0071
Geotechnical Report2023-06-01 - Approved Geotechnical Investigation - D07-12-22-0071
Geotechnical Report2023-03-17 - Geotechnical Investigation Rev 3 - D07-12-22-0071
Geotechnical Report2022-10-03 - Geotechnical Investigation - Block 201 to 205B - D07-12-22-0071
Geotechnical Report2022-04-27 - Geotechnical Investigation - D07-12-22-0071
Landscape Plan2023-05-26 - Approved Landscape Plan Interim Condition - D07-12-22-0071
Landscape Plan2023-05-26 - Approved Landscape Plan Ground Floor - D07-12-22-0071
Landscape Plan2023-05-26 - Approved Landscape Enlargement North Side - D07-12-22-0071
Landscape Plan2023-05-26 - Approved Landscape Enlargement East Side - D07-12-22-0071
Landscape Plan2023-05-26 - Approved Landscape Details 3 - D07-12-22-0071
Landscape Plan2023-05-26 - Approved Landscape Details 2 - D07-12-22-0071
Landscape Plan2023-05-26 - Approved Landscape Details 1 - D07-12-22-0071
Landscape Plan2023-03-07 - Landscape Plans and Details - D07-12-22-0071
Landscape Plan2022-10-03 - Landscape Plan-Tenth Level - D07-12-22-0071
Landscape Plan2022-10-03 - Landscape Plan-Second Level - D07-12-22-0071
Landscape Plan2022-10-03 - Landscape Plan-Interim Condition - D07-12-22-0071
Landscape Plan2022-10-03 - Landscape Plan-Ground Floor - D07-12-22-0071 (2)
Landscape Plan2022-10-03 - Landscape Plan-Ground Floor - D07-12-22-0071
Landscape Plan2022-10-03 - Landscape Details - D07-12-22-0071 (3)
Landscape Plan2022-10-03 - Landscape Details - D07-12-22-0071 (2)
Landscape Plan2022-10-03 - Landscape Details - D07-12-22-0071
Landscape Plan2022-04-27 - Landscape Plan-Tenth Level - D07-12-22-0071
Landscape Plan2022-04-27 - Landscape Plan-Second Level - D07-12-22-0071
Landscape Plan2022-04-27 - Landscape Plan-Interim Condition - D07-12-22-0071
Landscape Plan2022-04-27 - Landscape Plan-Ground Floor (2) - D07-12-22-0071
Landscape Plan2022-04-27 - Landscape Plan-Ground Floor - D07-12-22-0071
Landscape Plan2022-04-27 - Landscape Details (3) - D07-12-22-0071
Landscape Plan2022-04-27 - Landscape Details (2) - D07-12-22-0071
Landscape Plan2022-04-27 - Landscape Details - D07-12-22-0071
Noise Study2022-10-03 - Noise Report - D07-12-22-0071
Planning2022-04-27 - Planning Rationale - D07-12-22-0071
Rendering2022-10-03 - Project Perspectives - D07-12-22-0071
Rendering2022-10-03 - Axonometric Views - D07-12-22-0071 (2)
Rendering2022-10-03 - Axonometric Views - D07-12-22-0071
Rendering2022-04-27 - View Study - D07-12-22-0071
Rendering2022-04-27 - Project Perspectives - D07-12-22-0071
Rendering2022-04-27 - Axonometric Views (2) - D07-12-22-0071
Rendering2022-04-27 - Axonometric Views - D07-12-22-0071
Shadow Study2022-10-03 - Shadow Study - D07-12-22-0071
Shadow Study2022-04-27 - Shadow Study - D07-12-22-0071
Site Servicing2023-06-01 - Approved Site Servicing Report - D07-12-22-0071
Site Servicing2023-05-26 - Approved Site Servicing Layout - D07-12-22-0071
Site Servicing2023-03-17 - Site Servicing Report Rev 2 - D07-12-22-0071
Site Servicing2022-10-03 - Site Servicing Report - D07-12-22-0071
Site Servicing2022-10-03 - Site Servicing Plan-D07-12-22-0071
Site Servicing2022-04-27 - Site Servicing Report - D07-12-22-0071
Site Servicing2022-04-27 - Site Servicing Plan-Ultimate - D07-12-22-0071
Site Servicing2022-04-27 - Site Servicing Plan-Interim - D07-12-22-0071
Stormwater Management2023-05-26 - Approved Stormwater Management Plan -D07-12-22-0071.pdf
Stormwater Management2022-10-03 - Stormwater Management Plan - D07-12-22-0071
Stormwater Management2022-04-27 - Stormwater Management Plan - D07-12-22-0071
Surveying2022-10-03 - Topographical Survey Plan - D07-12-22-0071
Surveying2022-04-27 - Topographical Survey Plan - D07-12-22-0071
Surveying2022-04-27 - Plan of Survey - D07-12-22-0071
Transportation Analysis2022-10-03 - Transportation Addendum Letter - D07-12-22-0071
Wind Study2023-06-01 - Approved Pedestrian Level Wind Study - D07-12-22-0071
Wind Study2022-04-27 - Pedestrian Level Wind Study - D07-12-22-0071
2023-06-01 - Approved Letter Integrated Environmental Impact Statement - D07-12-22-0071
2023-06-01 - Approved Memorandum TIS Addendum - D07-12-22-0071
2023-05-26 - Final Signed Delegated Authority Report - D07-12-22-0071
2023-05-26 - Approved Typical Cross Sections and Details - D07-12-22-0071.pdf
2023-05-26 - Approved Bird Friendly Design - D07-12-22-0071
2022-10-03 - North-South Section - D07-12-22-0071
2022-10-03 - Letter re Sprinkler for Inclusion in CIMA Site Servicing Report - D07-12-22-0071
2022-10-03 - Hydrogeogy Report - D07-12-22-0071
2022-10-03 - Grade Control and Drainage-D07-12-22-0071
2022-10-03 - East-West Section - D07-12-22-0071
2022-10-03 - Cross-Sections - D07-12-22-0071
2022-10-03 - Cover Page - D07-12-22-0071
2022-04-27 - Technical Memorandum - D07-12-22-0071
2022-04-27 - North-South Section - D07-12-22-0071
2022-04-27 - Letter Wildlife Program - D07-12-22-0071
2022-04-27 - Grade Control and Drainage-Ultimate - D07-12-22-0071
2022-04-27 - Grade Control and Drainage-Interim - D07-12-22-0071
2022-04-27 - East West Section - D07-12-22-0071
2022-04-27 - Cross Sections - D07-12-22-0071
2022-04-27 - Cover Page - D07-12-22-0071