2345-2351 Mer-Bleue Rd.#
Last updated: 2026-03-06 ยท ID: D07-12-22-0056
Summary#
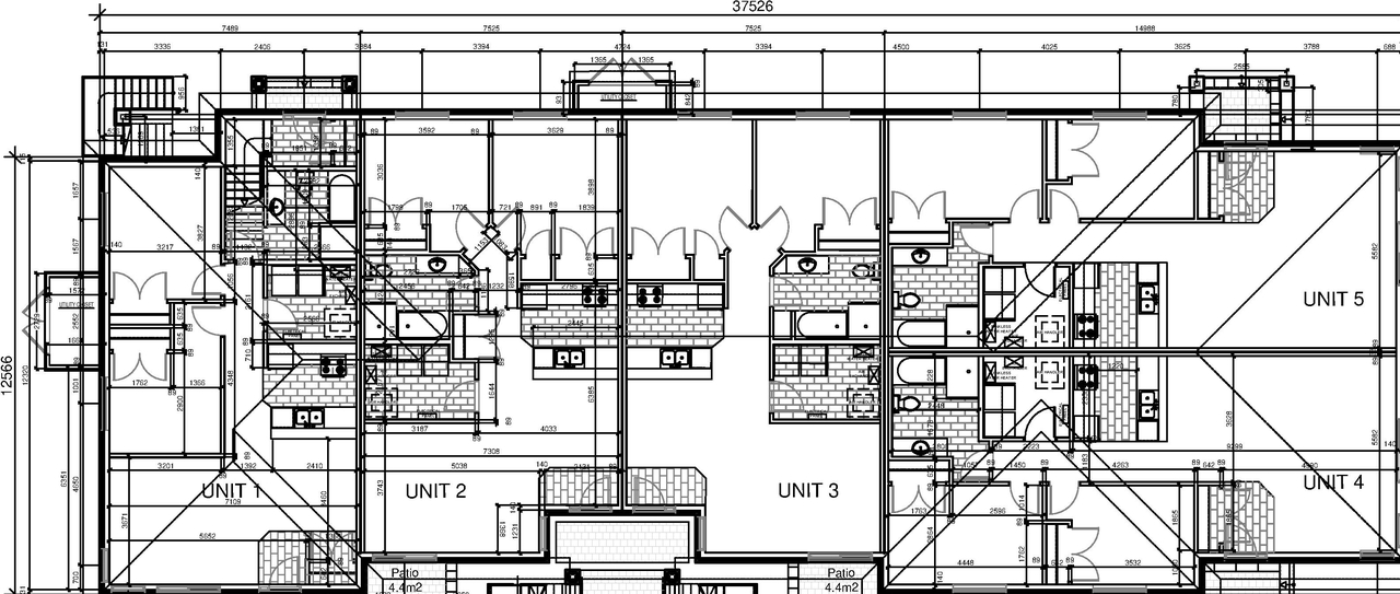
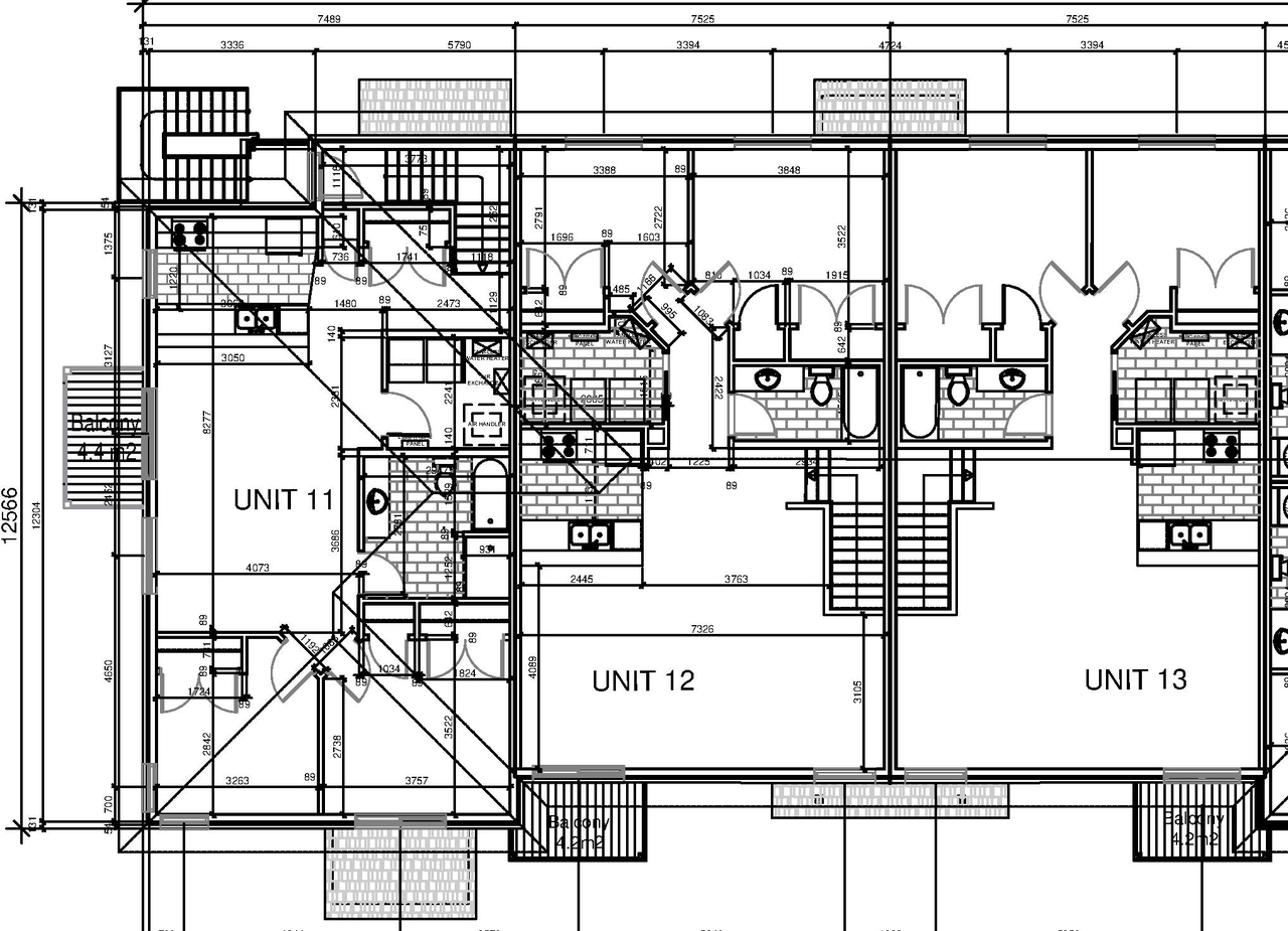
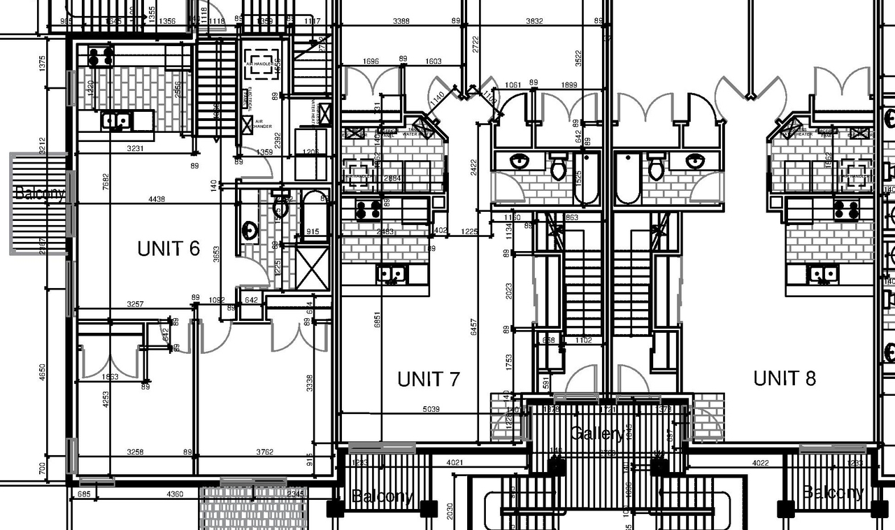
The City of Ottawa has received a Zoning By-law Amendment application to rezone the site from Development Reserve (DR) to Residential Fourth Density Subzone Z (R4Z) to permit a Planned Unit Development (PUD) with two buildings. Each building will be 3-storeys and have 15 units. A PUD needs to obtain Site Plan Control (SPC) Approval, and a SPC application has also been submitted.
Status
Active (Application Reactivated)
Location#
Select a marker to view the address.
Site Plans, Elevations and Floor Plans#
Additional Information#
| Date Initiated | 2022-04-05 |
| Ward | Ward 19 - Catherine Kitts |
| All Addresses | 2345 Mer-Bleue Rd. 2351 Mer-Bleue Rd. |
Documents#
Related Projects#
| Project | Last Updated | Date Initiated |
|---|---|---|
2345-2351 Mer-Bleue Rd.
D02-02-22-0029 | 2026-02-10 | 2022-04-05 |



