Ottawa Development Projects

3040-3044 Innes Rd.#

Last updated: 2024-11-17 ยท ID: D07-12-22-0050

Summary#

Four-storey low-rise apartment building.

Status
Post Approval (Receipt of Agreement from Owner Pending)

Renders#

Location#

Select a marker to view the address.

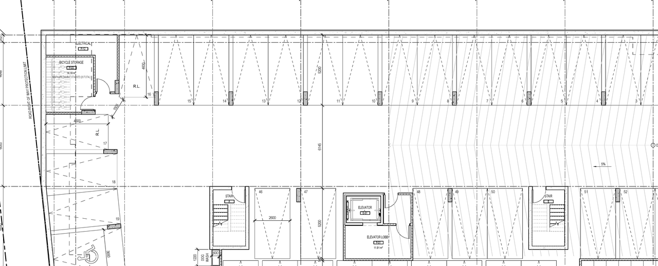
Site Plans, Elevations and Floor Plans#

Additional Information#

Date Initiated2022-03-28
WardWard 2 - Laura Dudas
All Addresses3040 Innes Rd.
3044 Innes Rd.

Documents#

TypeDocument
Application Summary2022-04-29 - Application Summary - D02-02-22-0028 & D07-12-22-0050
Architectural Plans2024-02-07 - Approved Site Plan - D07-12-22-0050
Architectural Plans2024-02-07 - Approved Pre-Development Watershed Plan - D07-12-22-0050
Architectural Plans2024-02-07 - Approved Post-Development Watershed Plan - D07-12-22-0050
Architectural Plans2024-02-07 - Approved Elevations - D07-12-22-0050
Architectural Plans2024-02-07 - Approved Construction Detail Plan - D07-12-22-0050
Architectural Plans2023-11-06 - Architectural Drawings Rev 5 - D07-12-22-0050
Architectural Plans2023-05-15 - Architectural Drawings - D07-12-22-0050
Architectural Plans2022-11-24 - Architectural Drawings - D07-12-22-0050
Architectural Plans2022-03-28- Topographical Plan - D07-12-22-0050
Architectural Plans2022-03-28 - Architectural Drawings - D07-12-22-0050
Civil Engineering Report2023-11-06 - Civil Engineering Drawings Rev 5 - D07-12-22-0050
Design Brief2022-03-28 - Design Brief - D07-12-22-0050
Environmental2022-03-28 - Phase 1 Environmental Site Assessment - D07-12-22-0050
Erosion And Sediment Control Plan2024-02-07 - Approved Erosion and Sediment Control Plan - D07-12-22-0050
Floor Plan2024-02-07 - Approved Level P1-Floor Plan - D07-12-22-0050
Geotechnical Report2024-02-07 - Approved Grading and Drainage Plan - D07-12-22-0050
Geotechnical Report2023-11-06 - Geotechnical Review Memorandum - D07-12-22-0050
Geotechnical Report2023-11-06 - Geotechnical Investigation Rev 3 - D07-12-22-0050
Geotechnical Report2022-11-24 - Geotechnical Investigation - D07-12-22-0050
Geotechnical Report2022-03-28 - Geotechnical Study - D07-12-22-0050
Landscape Plan2024-02-07 - Approved Landscape Plan - D07-12-22-0050
Landscape Plan2023-11-06 - Landscape Plan - D07-12-22-0050
Landscape Plan2023-05-15 - Landscape Plan - D07-12-22-0050
Landscape Plan2022-11-24 - Landscape Plan - D07-12-22-0050
Landscape Plan2022-03-28 - Landscape Plan - D07-12-22-0050
Noise Study2022-03-28 - Roadway Traffic Noise Assessment - D07-12-22-0050
Planning2022-03-28 - Planning Rationale - D07-12-22-0050
Site Servicing2024-02-07 - Approved Servicing Plan - D07-12-22-0050
Stormwater Management2024-02-07 - Approved Stormwater Management Plan - D07-12-22-0050
Stormwater Management2023-11-06 - Stormwater Management Report and Servicing Brief - D07-12-22-0050
Stormwater Management2023-05-15 - Stormwater Management Report and Servicing Brief - D07-12-22-0050
Stormwater Management2022-11-24 - Stormwater Management Report and Servicing Brief - D07-12-22-0050
Stormwater Management2022-03-28 - Stormwater Management Report and Servicing Brief - D07-12-22-0050
Tree Information and Conservation2023-05-15 - Tree Conservation Report and Environmental Impact Statement - D07-12-22-0050
Tree Information and Conservation2022-11-24 - Tree Conservation Report and Environmental Impact Statement - D07-12-22-0050
Tree Information and Conservation2022-03-28 - Tree Conservation Report and Environmental Impact Statement - D07-12-22-0050
2024-02-07 - Signed Delegated Authority Report - D07-12-22-0050
2024-02-07 - Approved General Notes - D07-12-22-0050
2023-05-15 - Engineering Drawings - D07-12-22-0050
2022-11-24 - Engineering Drawings - D07-12-22-0050
2022-03-28 - Engineering Drawings - D07-12-22-0050