326-330 Wilbrod St.#
Last updated: 2023-09-25 · ID: D07-12-22-0049
Summary#
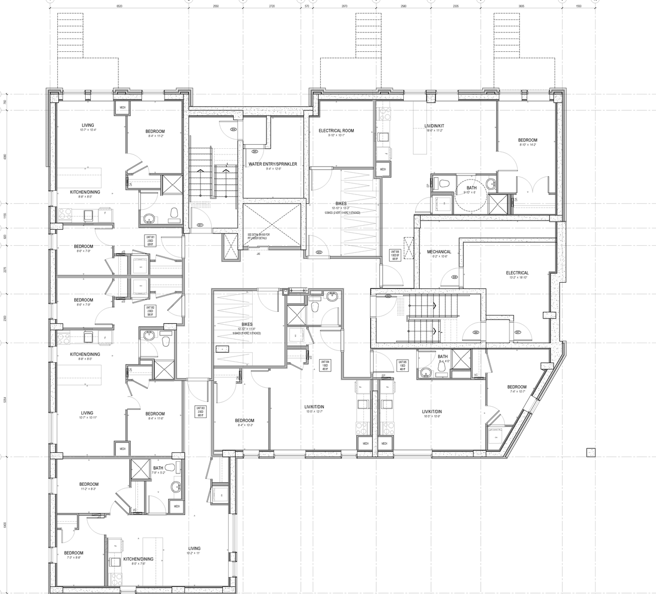
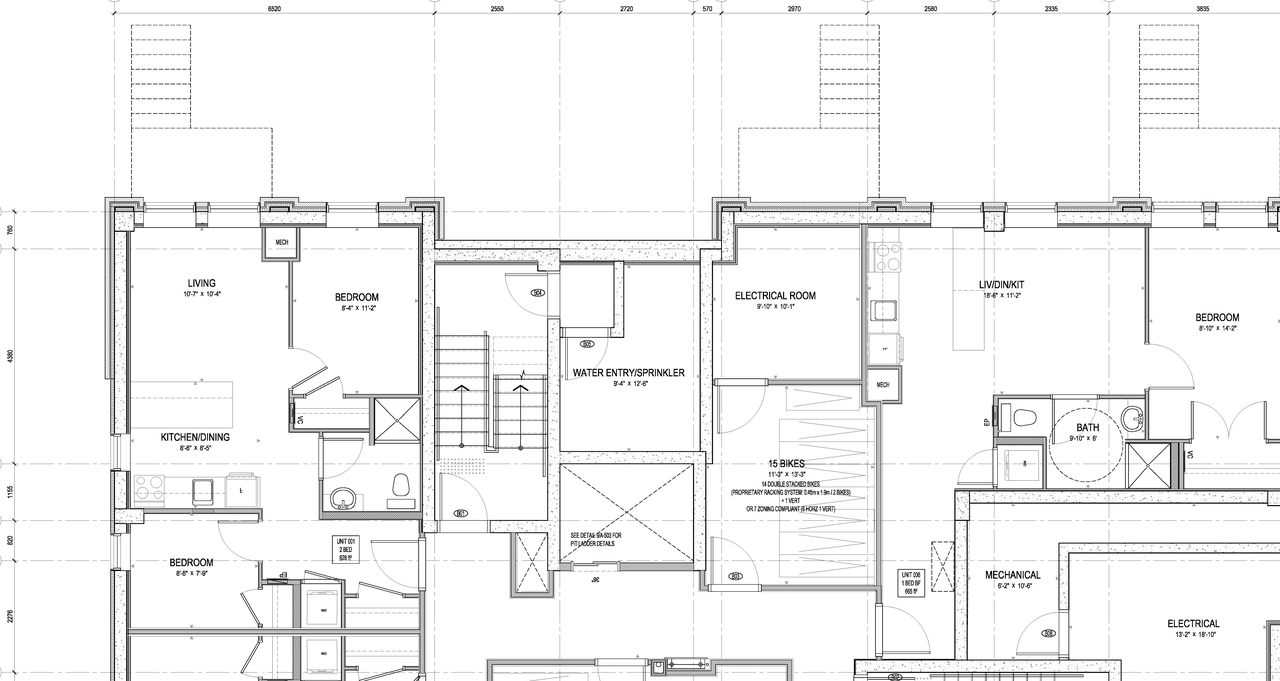
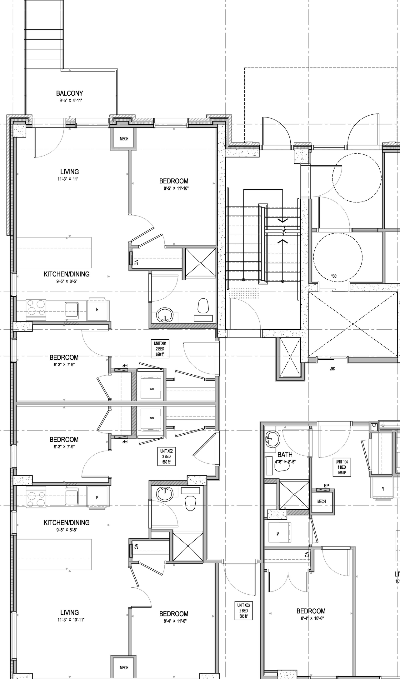
A four-storey low-rise apartment buillding containing 40 dwelling units on the subject property is proposed. Three visitor parking spaces with access off Wilbrod Street are provided at the rear of the proposed building to service the proposed development. The proposed development will require modifications to site grading, drainage and landscaping. The existing buildings have been demolished to facilitate the proposed development. A Minor Zoning By-law Amendment application is required to facilitate the proposed development on the subject property.
Status
Post Approval (Receipt of Agreement from Owner Pending)
Location#
Select a marker to view the address.
Site Plans, Elevations and Floor Plans#
Additional Information#
| Date Initiated | 2022-03-28 |
| Ward | Ward 12 - Stéphanie Plante |
| All Addresses | 326 Wilbrod St. 330 Wilbrod St. |
Documents#
Related Projects#
| Project | Last Updated | Date Initiated |
|---|---|---|
326-330 Wilbrod St.
D07-05-21-0006 | 2021-12-02 | 2021-08-11 |






