Ottawa Development Projects

1498 Stittsville Main St.#

Last updated: 2023-01-06 ยท ID: D07-12-22-0035

Summary#

Existing building is damaged, will be replaced by a new 2-storey non combustible building, building area 509m2, wil be used as a micro distillery with retail space at the front.

Status
File Pending (Application File Pending)

Renders#

Location#

Select a marker to view the address.

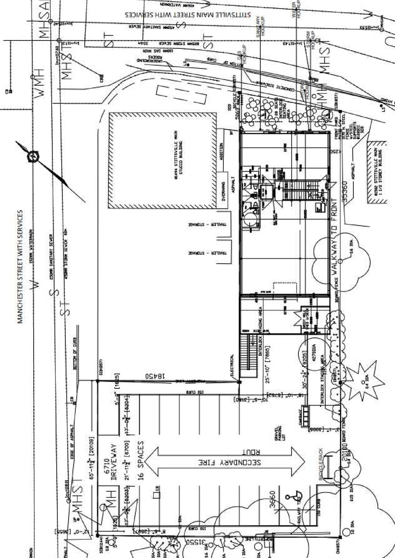
Site Plans, Elevations and Floor Plans#

Additional Information#

Date Initiated2022-03-03
WardWard 6 - Glen Gower

Documents#

TypeDocument
Application Summary2022-03-07 - Application Summary - D07-12-22-0035
Architectural Plans2022-11-18 - Site Plan - D07-12-22-0035
Architectural Plans2022-11-18 - Elevations - D07-12-22-0035
Architectural Plans2022-10-26 - Site Plan - D07-12-22-0035
Architectural Plans2022-10-26 - Section Plan - D07-12-22-0035 (2)
Architectural Plans2022-10-26 - Section Plan - D07-12-22-0035
Architectural Plans2022-10-26 - North & West Elevations - D07-12-22-0035
Architectural Plans2022-10-26 - North & West Elevation Plan - D07-12-22-0035
Architectural Plans2022-10-26 - Ground Floor Equipment Plan - D07-12-22-0035
Architectural Plans2022-10-26 - Basement Foundation Plan - D07-12-22-0035
Architectural Plans2022-03-03 - Site Plan - D07-12-22-0035
Architectural Plans2022-03-03 - Second Floor Equipment Plan - D07-12-22-0035
Architectural Plans2022-03-03 - North & West Elevation Plan (2) - D07-12-22-0035
Architectural Plans2022-03-03 - North & West Elevation Plan - D07-12-22-0035
Architectural Plans2022-03-03 - Ground Floor Equipment Plan - D07-12-22-0035
Architectural Plans2022-03-03 - Basement Partition Plan - D07-12-22-0035
Architectural Plans2022-03-03 - Basement Equipment Plan - D07-12-22-0035
Design Brief2022-12-17 - Design Brief - D07-12-22-0035
Design Brief2022-03-03 - Design Brief - D07-12-22-0035
Drainage Plan2022-10-26 - Drainage Plan - D07-12-22-0035
Drainage Plan2022-03-03 - Drainage Plan - D07-12-22-0035
Environmental2022-03-31 - Phase I Environmental Site Assessment - D07-12-22-0035
Environmental2022-03-03 - Phase II Environmental Site Assessment - D07-12-22-0035
Environmental2022-03-03 - Phase I Environmental Site Assessment - D07-12-22-0035
Erosion And Sediment Control Plan2022-10-26 - Erosion & Sediment Control Plan - D07-12-22-0035
Erosion And Sediment Control Plan2022-03-03 - Erosion & Sediment Control Plan - D07-12-22-0035
Existing Conditions2022-10-26 - Existing Conditions & Removals Plan - D07-12-22-0035
Existing Conditions2022-03-03 - Existing Conditions & Removals - D07-12-22-0035
Floor Plan2022-10-26 - Second Floor Plan - D07-12-22-0035
Geotechnical Report2022-10-26 - Grading Plan - D07-12-22-0035
Geotechnical Report2022-10-26 - Geotechnical Report - D07-12-22-0035
Geotechnical Report2022-03-03 - Grading Plan - D07-12-22-0035
Noise Study2022-03-03 - Noise - D07-12-22-0035
Planning2022-10-26 - Zoning Chart - D07-12-22-0035
Site Servicing2022-10-26 - Site Servicing Plan - D07-12-22-0035
Site Servicing2022-10-26 - SERVICING BRIEF & Stormwater Management Report - D07-12-22-0035
Site Servicing2022-03-15 - Servicing Brief & Stormwater Management Report - D07-12-22-0035
Site Servicing2022-03-03 - Site Servicing Plan - D07-12-22-0035
Surveying2022-10-26 - Topographic Plan - D07-12-22-0035
Surveying2022-03-14 - Land Survey - D07-12-22-0035
Tree Information and Conservation2022-10-27 - TREE CONSERVATION REPORT - D07-12-22-0035
2022-10-26 - NUMBER SEQUENCE BOTTOM - D07-12-22-0035
2022-10-26 - Notes - D07-12-22-0035
2022-10-26 - FLOW CONTROL ROOF DRAINAGE DECLARATION - D07-12-22-0035
2022-10-26 - Fixture Counts Calculator - D07-12-22-0035
2022-10-26 - Details & Schedules - D07-12-22-0035
2022-03-03 - Section Drawing - D07-12-22-0035
2022-03-03 - Memo Geotechnical Assessment - D07-12-22-0035
2022-03-03 - Details & Schedules - D07-12-22-0035