Ottawa Development Projects

301 Palladium Dr.#

Last updated: 2024-07-23 · ID: D07-12-22-0017

Summary#

The purpose of the Site Plan Control application is to permit the development of a 582m2 one-storey commercial building.

Status
Post Approval (Request for Agreement Received)

Building Scale (Max.) Based on elevation drawings. Values may be approximate. See sources for exact figures.
Low-rise · 1 storey · 5.9 m

Renders#

Location#

Select a marker to view the address.

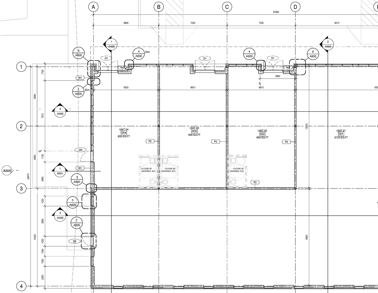
Site Plans, Elevations and Floor Plans#

Additional Information#

Date Initiated2022-02-02
WardWard 23 - Allan Hubley

Documents#

TypeDocument
Application Summary2022-02-18 - Application Summary - D07-12-22-0017
Architectural Plans2023-09-13 - Approved Site Plan - D07-12-22-0017
Architectural Plans2023-09-13 - Approved Proposed Drainage Area Plan - D07-12-22-0017
Architectural Plans2023-09-13 - Approved Elevations - D07-12-22-0017
Architectural Plans2022-10-03 - LOCATION PLAN, SITE PLAN, ZONING REVIEW NOTES - STATISTICS - D07-12-22-0017
Architectural Plans2022-06-28 - Site Plan - D07-12-22-0017
Architectural Plans2022-06-28 - Proposed Drainage Area Plan - D07-12-22-0017
Architectural Plans2022-02-02 - Site Plan - D07-12-22-0017
Architectural Plans2022-02-02 - Elevations - D07-12-22-0017
Design Brief2022-02-02 - Design Brief - D07-12-22-0017
Electrical Plan2022-02-02 - Electrical (2) - D07-12-22-0011
Electrical Plan2022-02-02 - Electrical - D07-12-22-0017
Environmental2022-06-28 - Phase 1 Environmental Site Assessment - D07-12-22-0017
Environmental2022-02-02 - Phase 1 Environmental Site Assessment - D07-12-22-0017
Erosion And Sediment Control Plan2023-09-13 - Approved Erosion & Sediment Control Plan - D07-12-22-0017
Erosion And Sediment Control Plan2022-10-03 - Erosion Sediment Control and Drainage Area Plan - D07-12-22-0017 (3)
Erosion And Sediment Control Plan2022-10-03 - Erosion Sediment Control and Drainage Area Plan - D07-12-22-0017 (2)
Erosion And Sediment Control Plan2022-10-03 - Erosion Sediment Control and Drainage Area Plan - D07-12-22-0017
Erosion And Sediment Control Plan2022-06-28 - Erosion & Sediment Control Plan - D07-12-22-0017
Erosion And Sediment Control Plan2022-02-02 - Erosion and Sediment Control Plan - D07-12-22-0017
Existing Conditions2023-09-13 - Approved Existing Drainage Area Plan - D07-12-22-0017
Existing Conditions2022-06-28 - Existing Drainage Area Plan - D07-12-22-0017
Floor Plan2022-02-02 - Ground Floor Plan - D07-12-22-0017
Geotechnical Report2023-09-13 - Approved Grading Plan - D07-12-22-0017
Geotechnical Report2022-10-03 - Grading Plan - D07-12-22-0017
Geotechnical Report2022-02-02 - Grading Plan - D07-12-22-0017
Geotechnical Report2022-02-02 - Geotechnical Report - D07-12-22-0017
Landscape Plan2023-09-13 - Approved Landscape Plan - D07-12-22-0017
Landscape Plan2022-06-28 - Landscape Plan - D07-12-22-0017
Landscape Plan2022-02-02 - Landscape Plan - D07-12-22-0017
Planning2022-02-02 - Planning Rationale - D07-12-22-0017
Site Servicing2023-09-13 - Approved Site Servicing Plan - D07-12-22-0017
Site Servicing2022-10-03 - Site Servicing Plan - D07-12-22-0017
Site Servicing2022-10-03 - Site Servicing Design Brief - D07-12-22-0017
Site Servicing2022-06-28 - Site Servicing Plan - D07-12-22-0017
Site Servicing2022-06-28 - Site Servicing & Stormwater Management Design Brief - D07-12-22-0017
Site Servicing2022-02-02 - Site Servicing Plan - D07-12-22-0017
Site Servicing2022-02-02 - Site Servicing Design Brief - D07-12-22-0017
Surveying2022-02-02 - Surveyors Real Property Report - D07-12-22-0017
Transportation Analysis2022-02-02 - Transportation Impact Screening Form - D07-12-22-0017
Transportation Analysis2022-02-02 - Transportation Impact Assessment - D07-12-22-0017
Tree Information and Conservation2022-02-02 - Tree Conservation Report - D07-12-22-0017
2023-09-13 - Signed Delegated Authority Report - D07-12-22-0017
2023-09-13 - Approved Site Details - D07-12-22-0017