Ottawa Development Projects

42 Northside Rd.#

Last updated: 2023-06-28 · ID: D07-12-22-0015

Summary#

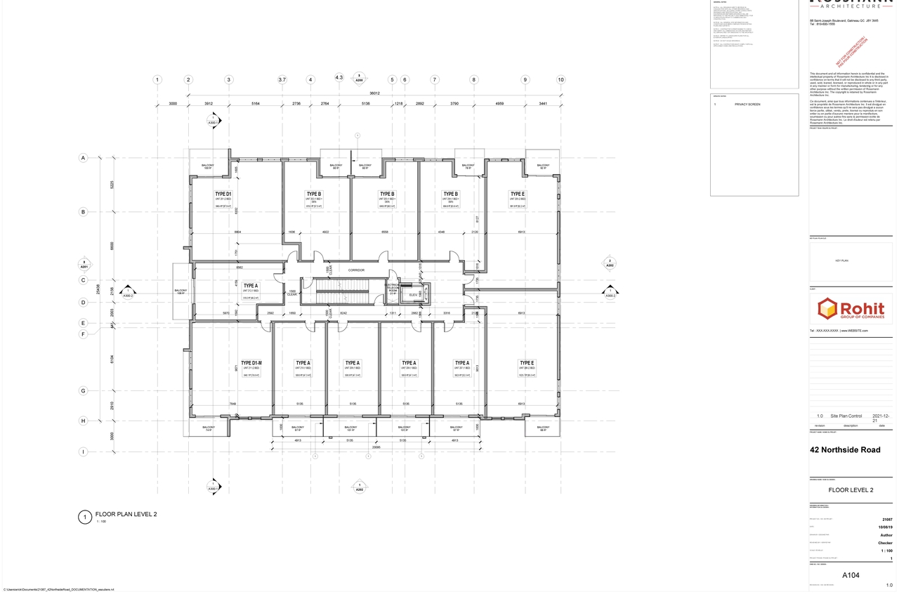
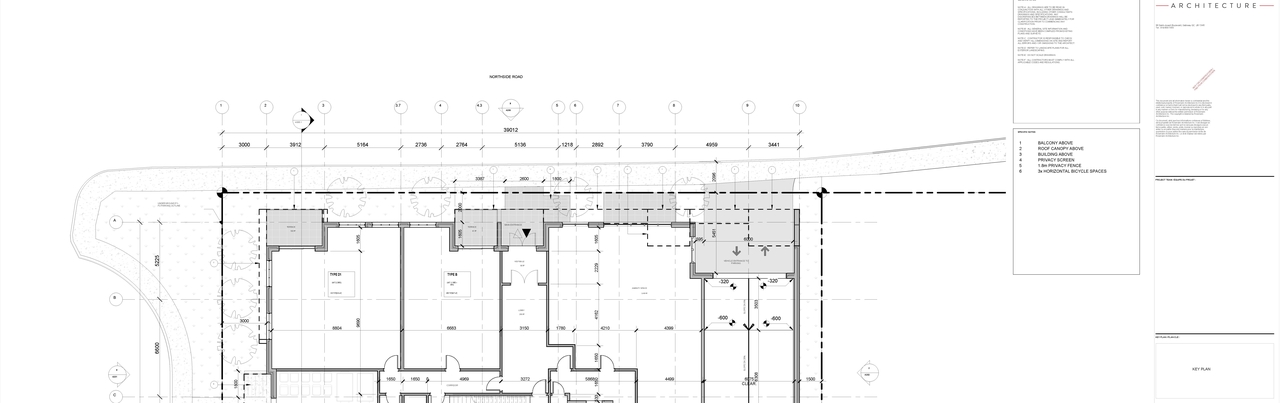
Proposed 5-storey, 51-unit residential building with 56 parking spaces underground.

Status
Post Approval (Agreement Registered - Securities Held)

Building Scale (Max.) Based on elevation drawings. Values may be approximate. See sources for exact figures.
Mid-rise · 5 storeys · 21.55 m

Location#

Select a marker to view the address.

Site Plans, Elevations and Floor Plans#

Additional Information#

Date Initiated2022-01-28
WardWard 8 - Laine Johnson

Documents#

TypeDocument
Adequacy Of Public Services2022-01-28 - Serviceability Brief - D07-12-22-0015
Application Summary2022-02-10 - Application Summary - D07-12-22-0015
Architectural Plans2022-11-08 - Approved Site Plan - D07-12-22-0015
Architectural Plans2022-11-08 - Approved P2 Parking Plan - D07-12-22-0015
Architectural Plans2022-11-08 - Approved P1 Parking Plan - D07-12-22-0015
Architectural Plans2022-11-08 - Approved Elevations - D07-12-22-0015
Architectural Plans2022-09-06 - Site Plan - D07-12-22-0015
Architectural Plans2022-07-07 - Site Plan - D07-12-22-0015
Architectural Plans2022-05-11 - Pre Development and Post Development Landscape Plan - D07-12-22-0015
Architectural Plans2022-05-11 - Engineering Plans - D07-12-22-0015
Architectural Plans2022-05-11 - Architectural Package - D07-12-22-0015
Architectural Plans2022-01-28 - Site Plan - D07-12-22-0015
Architectural Plans2022-01-28 - Pre-Development Conditions Plan - D07-12-22-0015
Architectural Plans2022-01-28 - Pre and Post Development Vegetation Plans - D07-12-22-0015
Architectural Plans2022-01-28 - Elevations - D07-12-22-0015
Civil Engineering Report2022-09-06 - Civil Drawings - D07-12-22-0015
Design Brief2022-01-28 - Design Brief - D07-12-22-0015
Environmental2022-01-28 - Phase 1 Environmental Site Assessment - D07-12-22-0015
Erosion And Sediment Control Plan2022-11-08 - Approved Erosion and Sediment Control Plan - D07-12-22-0015
Erosion And Sediment Control Plan2022-09-06 - Erosion Control Plan - D07-12-22-0015
Erosion And Sediment Control Plan2022-01-28 - Erosion Control Plan - D07-12-22-0015
Floor Plan2022-01-28 - Parking and Floor Plans - D07-12-22-0015
Geotechnical Report2022-11-08 - Approved Grading Plan - D07-12-22-0015
Geotechnical Report2022-09-06 - Grading Plan - D07-12-22-0015
Geotechnical Report2022-01-28 - Grading Plan - D07-12-22-0015
Geotechnical Report2022-01-28 - Geotechnical Investigation - D07-12-22-0015
Landscape Plan2022-11-08 - Approved Landscape Plan - D07-12-22-0015
Landscape Plan2022-05-11 - Landscape Plan - D07-12-22-0015
Landscape Plan2022-01-28 - Landscape Plan - D07-12-22-0015
Noise Study2022-05-11 - Transportation Noise & Vibration Assessment - D07-12-22-0015
Noise Study2022-01-28 - Transportation Noise and Vibration Assessment - D07-12-22-0015
Notification2023-06-15 - Commence Work Notification - D07-12-22-0015
Planning2022-01-28 - Planning Rationale - D07-12-22-0015
Site Servicing2022-11-08 - Approved Site Servicing Plan - D07-12-22-0015
Site Servicing2022-09-06 - Site Servicing Plan - D07-12-22-0015
Site Servicing2022-09-06 - Servicing Feasibility Report - D07-12-22-0015
Site Servicing2022-05-11 - Servicing Feasibility Report - D07-12-22-0015
Site Servicing2022-01-28 - Site Servicing Plan - D07-12-22-0015
Stormwater Management2022-11-08 - Approved Stormwater Management Report - D07-12-22-0015
Stormwater Management2022-11-08 - Approved Stormwater Management Plan - D07-12-22-0015
Stormwater Management2022-09-06 - SWM Plan - D07-12-22-0015
Stormwater Management2022-01-28 - Stormwater Management Report - D07-12-22-0015
Stormwater Management2022-01-28 - Stormwater Management and Catchment Areas Plan - D07-12-22-0015
Surveying2022-01-28 - Topographic Survey - D07-12-22-0015
Transportation Analysis2022-05-11 - Transportation Impact Assessment - D07-12-22-0015
Transportation Analysis2022-01-28 - Transportation Impact Assessment Forecasting and Strategy Report - D07-12-22-0015
2022-11-08 - SIGNED DELEGATED AUTHORITY REPORT - D07-12-22-0015
2022-11-08 - Approved Pre-development Vegetation - D07-12-22-0015
2022-11-08 - Approved Post-development Vegetation - D07-12-22-0015
2022-09-06 - Pre Development Conditions - D07-12-22-0015
2022-07-07 - Engineering Drawings - D07-12-22-0015