352 Somerset St.#
Last updated: 2025-05-05 · ID: D07-12-22-0003
Summary#
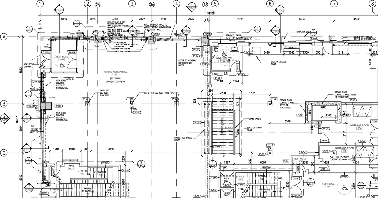
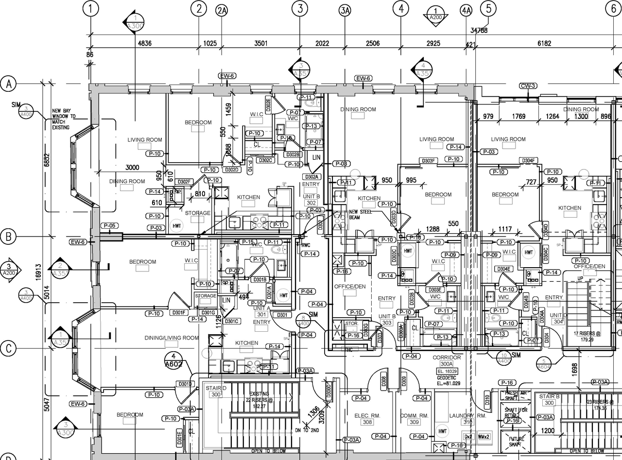
The City of Ottawa has received a Zoning By-law Amendment and Site Plan Control application to construct a three-storey addition to an existing three-storey vacant designed heritage building (Somerset House). The redevelopment of the site will result in a three-storey mixed-use building with 14 residential units and 2 ground floor commercial units. No vehicular parking and no bicycle parking spaces are proposed.
Status
Post Approval (Receipt of Agreement from Owner Pending)
Building Scale (Max.)
Based on elevation drawings. Values may be approximate. See sources for exact figures.
Low-rise · 3 storeys
Data Quality Note
Text was extracted using optical character recognition. This may introduce artifacts or misreads.
Location#
Select a marker to view the address.
Site Plans, Elevations and Floor Plans#
Additional Information#
| Date Initiated | 2022-01-13 |
| Ward | Ward 14 - Ariel Troster |
Documents#
Related Projects#
| Project | Last Updated | Date Initiated |
|---|---|---|
352 Somerset St.
D09-04-23-0030 | 2023-10-23 | 2023-06-14 |
352 Somerset St.
D02-02-23-0036 | 2023-10-18 | 2023-05-03 |




