Ottawa Development Projects

1940 Carling Ave.#

Last updated: 2024-06-14 · ID: D07-12-22-0001

Summary#

Proposed seven-storey apartment building with underground parking.

Status
Inactive (Notice of Decision Sent)

Building Scale (Max.) Based on elevation drawings. Values may be approximate. See sources for exact figures.
Mid-rise · 7 storeys · 27.6 m Data Quality Note Height was partially estimated using visual scale. This may be approximate.

Renders#

Location#

Select a marker to view the address.

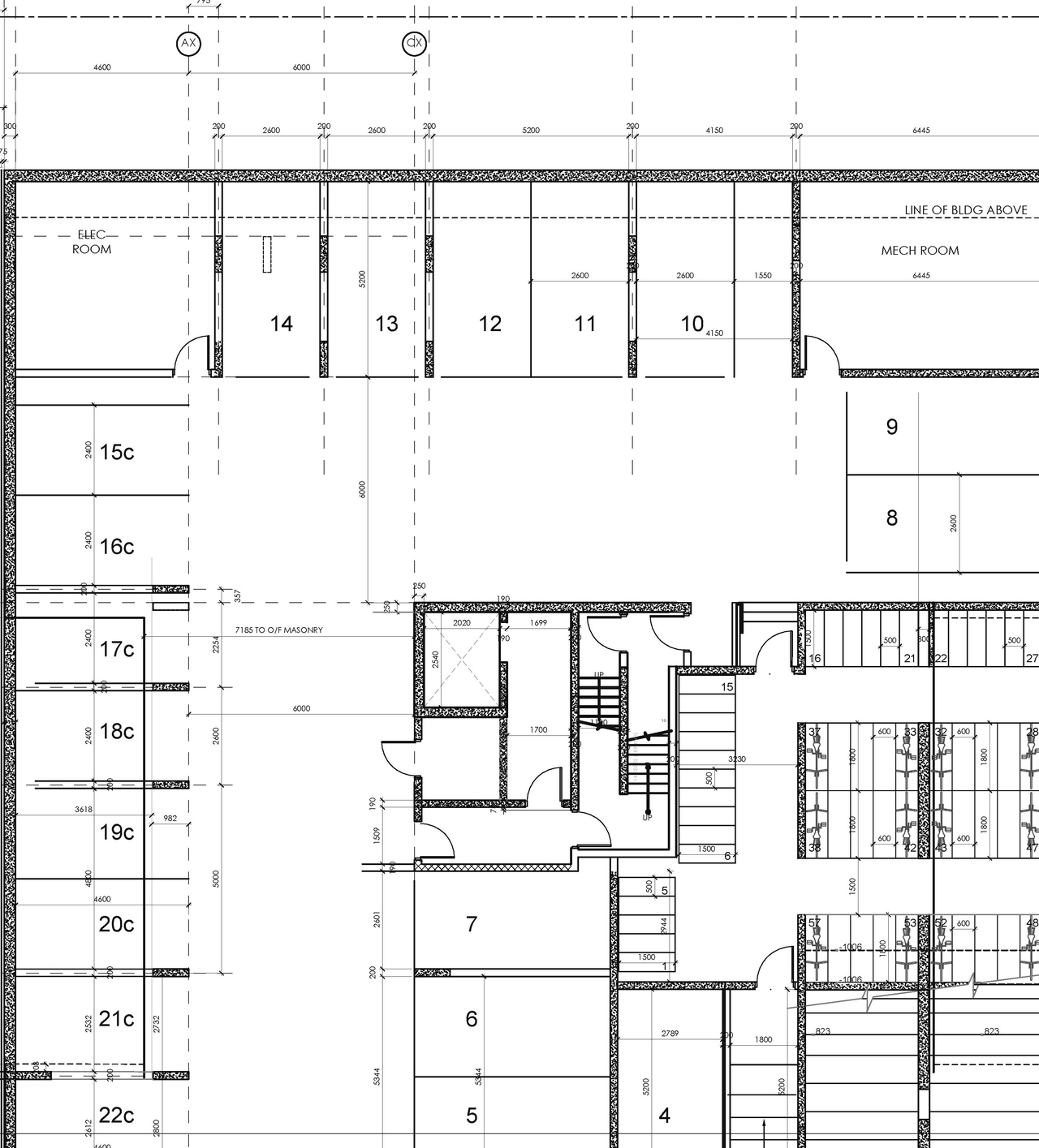
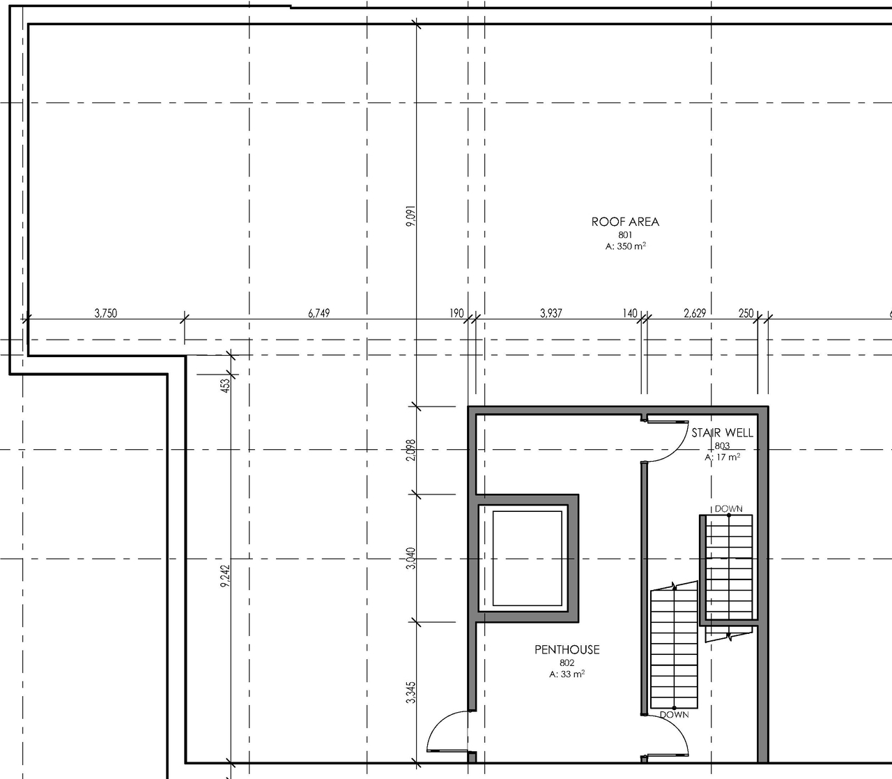
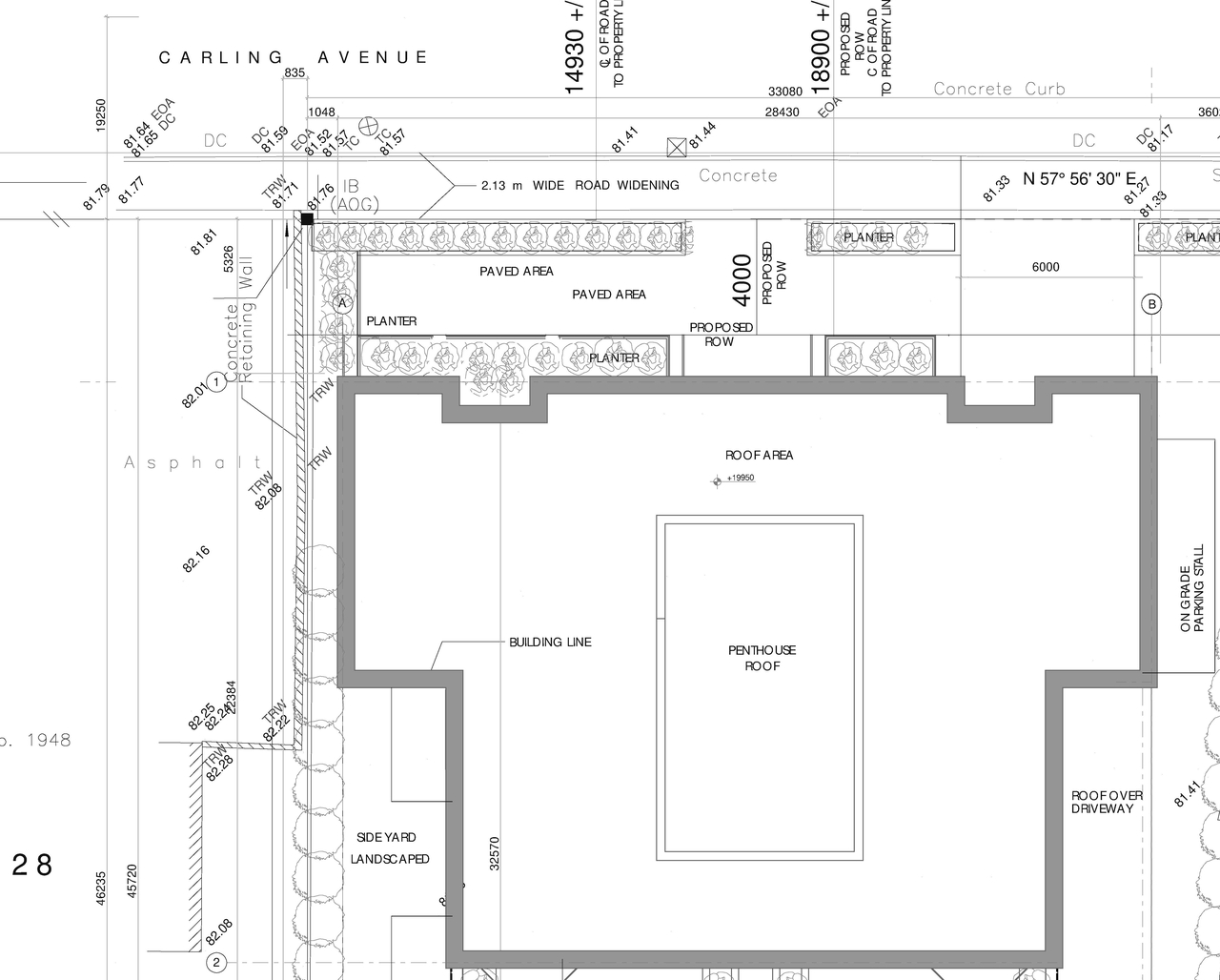
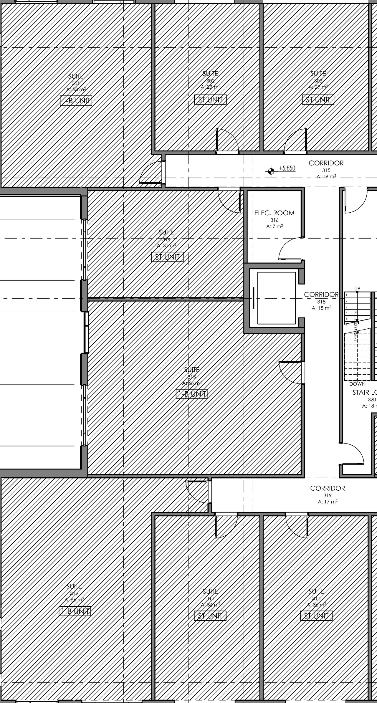
Site Plans, Elevations and Floor Plans#

  • Image from page 21 of the file '2022-01-05 - Design Brief - D07-12-22-0001'
  • Image from page 20 of the file '2022-01-05 - Design Brief - D07-12-22-0001'
  • Image from page 22 of the file '2022-01-05 - Design Brief - D07-12-22-0001'
  • Image from page 23 of the file '2022-01-05 - Design Brief - D07-12-22-0001'
  • Image from page 24 of the file '2022-01-05 - Design Brief - D07-12-22-0001'
  • Image from page 19 of the file '2022-01-05 - Design Brief - D07-12-22-0001'
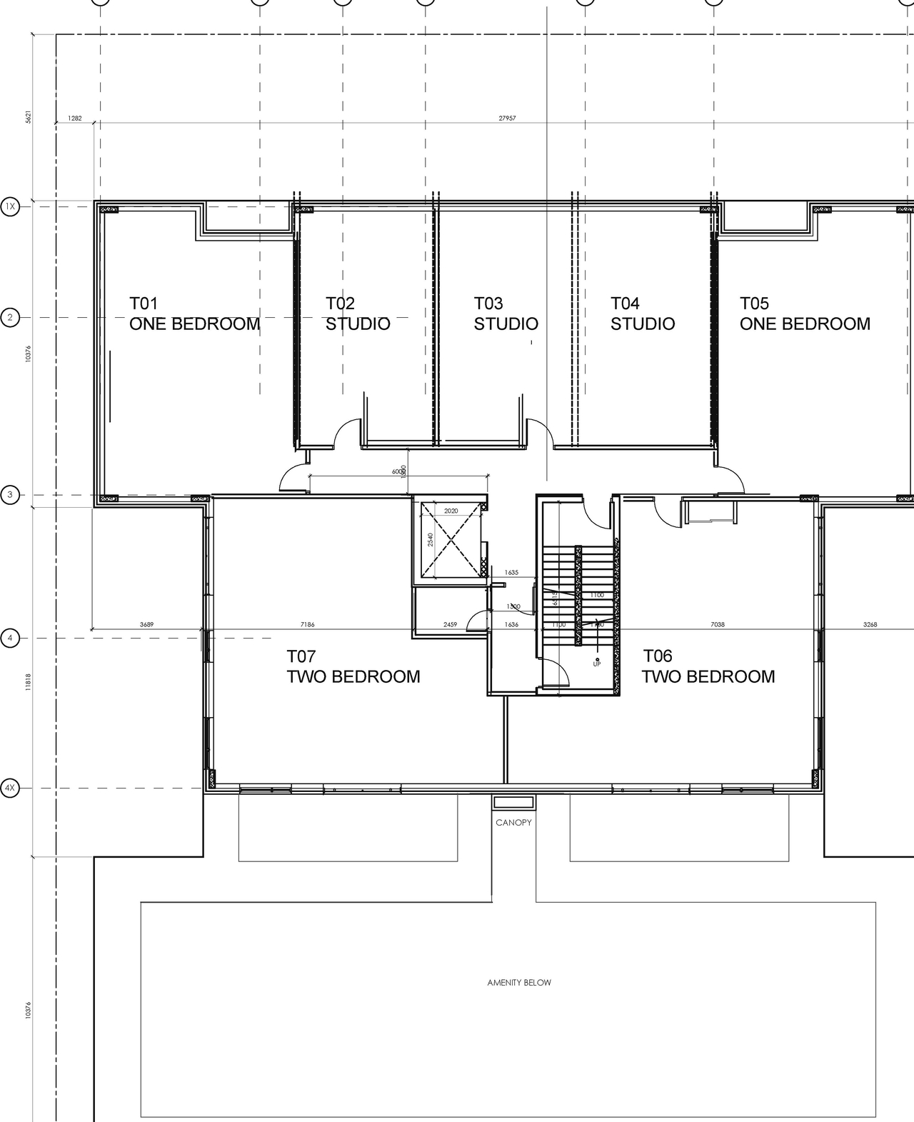
  • Image from page 4 of the file '2022-09-27 - Floor Plans - D07-12-22-0001'
  • Construction site plan for project from page 6 of the file '2022-01-05 - Design Brief - D07-12-22-0001'
  • Construction site plan for project from page 29 of the file '2022-01-05 - Design Brief - D07-12-22-0001'
  • Construction site plan for project from page 31 of the file '2022-01-05 - Design Brief - D07-12-22-0001'
  • Construction site plan for project from page 1 of the file '2022-01-05 - Site Plan and Floor Plans - D07-12-22-0001'
  • Construction site plan for project from page 29 of the file '2022-01-05 - Design Brief - D07-12-22-0001'
  • Construction site plan for project from page 31 of the file '2022-01-05 - Design Brief - D07-12-22-0001'
  • Construction site plan for project from page 29 of the file '2022-01-05 - Design Brief - D07-12-22-0001'
  • Construction site plan for project from page 29 of the file '2022-01-05 - Design Brief - D07-12-22-0001'
  • Construction site plan for project from page 29 of the file '2022-01-05 - Design Brief - D07-12-22-0001'
  • Construction site plan for project from page 29 of the file '2022-01-05 - Design Brief - D07-12-22-0001'
  • Construction site plan for project from page 3 of the file '2022-09-27 - Floor Plans - D07-12-22-0001'
  • Construction site plan for project from page 8 of the file '2022-01-05 - Design Brief - D07-12-22-0001'
  • Construction site plan for project from page 15 of the file '2022-01-05 - Design Brief - D07-12-22-0001'
  • Construction site plan for project from page 2 of the file '2022-09-27 - Floor Plans - D07-12-22-0001'
  • Construction site plan for project from page 29 of the file '2022-01-05 - Design Brief - D07-12-22-0001'
  • Construction site plan for project from page 5 of the file '2022-01-05 - Site Plan and Floor Plans - D07-12-22-0001'
  • Construction site plan for project from page 3 of the file '2022-01-05 - Design Brief - D07-12-22-0001'
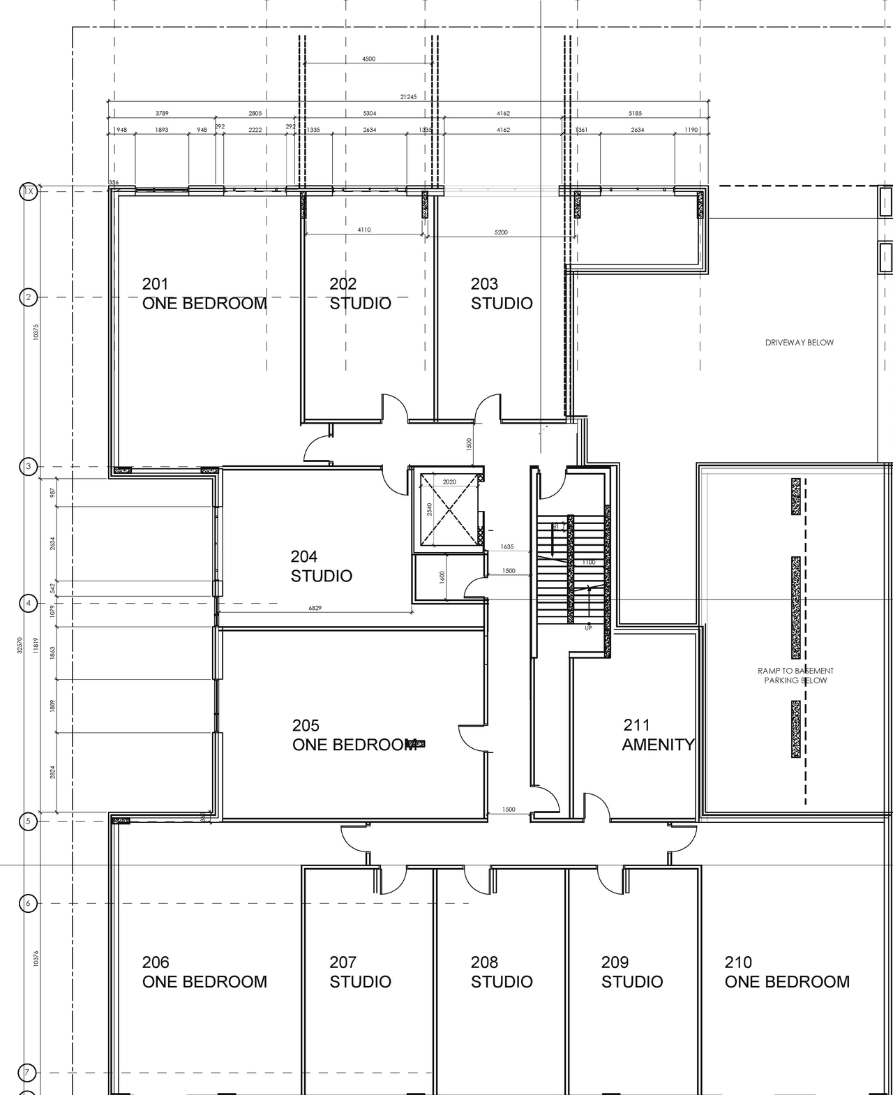
  • Floor plan for project from page 2 of the file '2022-01-05 - Site Plan and Floor Plans - D07-12-22-0001'
  • Floor plan for project from page 3 of the file '2022-01-05 - Site Plan and Floor Plans - D07-12-22-0001'
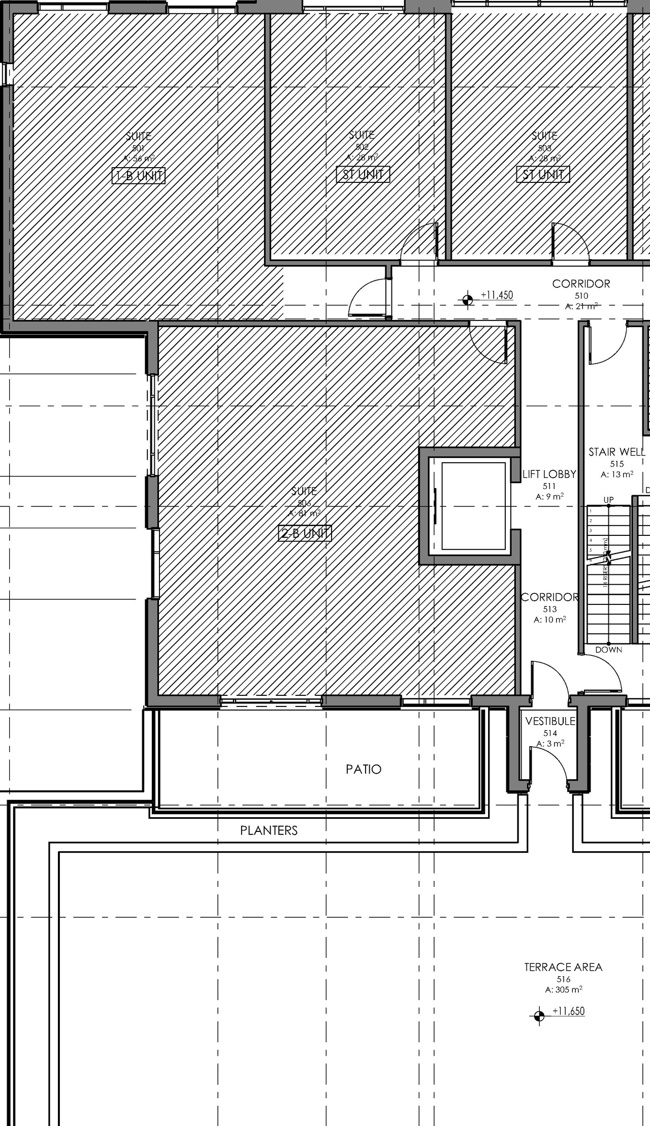
  • Floor plan for project from page 4 of the file '2022-09-27 - Floor Plans - D07-12-22-0001'
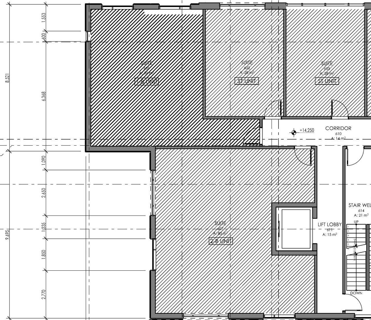
  • Floor plan for project from page 3 of the file '2022-09-27 - Floor Plans - D07-12-22-0001'
  • Image from page 21 of the file '2022-01-05 - Design Brief - D07-12-22-0001'
  • Image from page 20 of the file '2022-01-05 - Design Brief - D07-12-22-0001'
  • Image from page 22 of the file '2022-01-05 - Design Brief - D07-12-22-0001'
  • Image from page 23 of the file '2022-01-05 - Design Brief - D07-12-22-0001'
  • Image from page 24 of the file '2022-01-05 - Design Brief - D07-12-22-0001'
  • Image from page 19 of the file '2022-01-05 - Design Brief - D07-12-22-0001'
  • Image from page 4 of the file '2022-09-27 - Floor Plans - D07-12-22-0001'
  • Construction site plan for project from page 6 of the file '2022-01-05 - Design Brief - D07-12-22-0001'
  • Construction site plan for project from page 29 of the file '2022-01-05 - Design Brief - D07-12-22-0001'
  • Construction site plan for project from page 31 of the file '2022-01-05 - Design Brief - D07-12-22-0001'
  • Construction site plan for project from page 1 of the file '2022-01-05 - Site Plan and Floor Plans - D07-12-22-0001'
  • Construction site plan for project from page 29 of the file '2022-01-05 - Design Brief - D07-12-22-0001'
  • Construction site plan for project from page 31 of the file '2022-01-05 - Design Brief - D07-12-22-0001'
  • Construction site plan for project from page 29 of the file '2022-01-05 - Design Brief - D07-12-22-0001'
  • Construction site plan for project from page 29 of the file '2022-01-05 - Design Brief - D07-12-22-0001'
  • Construction site plan for project from page 29 of the file '2022-01-05 - Design Brief - D07-12-22-0001'
  • Construction site plan for project from page 29 of the file '2022-01-05 - Design Brief - D07-12-22-0001'
  • Construction site plan for project from page 3 of the file '2022-09-27 - Floor Plans - D07-12-22-0001'
  • Construction site plan for project from page 8 of the file '2022-01-05 - Design Brief - D07-12-22-0001'
  • Construction site plan for project from page 15 of the file '2022-01-05 - Design Brief - D07-12-22-0001'
  • Construction site plan for project from page 2 of the file '2022-09-27 - Floor Plans - D07-12-22-0001'
  • Construction site plan for project from page 29 of the file '2022-01-05 - Design Brief - D07-12-22-0001'
  • Construction site plan for project from page 5 of the file '2022-01-05 - Site Plan and Floor Plans - D07-12-22-0001'
  • Construction site plan for project from page 3 of the file '2022-01-05 - Design Brief - D07-12-22-0001'
  • Floor plan for project from page 2 of the file '2022-01-05 - Site Plan and Floor Plans - D07-12-22-0001'
  • Floor plan for project from page 3 of the file '2022-01-05 - Site Plan and Floor Plans - D07-12-22-0001'
  • Floor plan for project from page 4 of the file '2022-09-27 - Floor Plans - D07-12-22-0001'
  • Floor plan for project from page 3 of the file '2022-09-27 - Floor Plans - D07-12-22-0001'

Additional Information#

Date Initiated2022-01-05
WardWard 7 - Theresa Kavanagh

Documents#

TypeDocument
Application Summary2022-01-09 - Application Summary - D07-12-22-0001
Architectural Plans2024-06-12 - APPROVED Site Plan - D07-12-22-0001
Architectural Plans2024-06-12 - APPROVED Elevations - D07-12-22-0001
Architectural Plans2024-02-07 - SITE PLAN - D07-12-22-0001
Architectural Plans2023-07-07 - Site Plan - D07-12-22-0001
Architectural Plans2023-07-07 - Removals, Site Servicing, Lot Grading, Drainage, Sediment & Erosion Control Plan - D
Architectural Plans2023-07-07 - Architectural Site Plan - D07-12-22-0001
Architectural Plans2023-03-02 - Site Plan - D07-12-22-0001
Architectural Plans2023-03-02 - Removals Site Servicing Lot Grading Drainage Sediment & Erosion Control Plan - D07-1
Architectural Plans2023-03-02 - Building Elevations - D07-12-22-0001
Architectural Plans2023-03-02 - Architectural Site Plan - D07-12-22-0001
Architectural Plans2022-09-27 - West Elevation - D07-12-22-0001
Architectural Plans2022-09-27 - South Elevation - D07-12-22-0001
Architectural Plans2022-09-27 - Site Plan - D07-12-22-0001
Architectural Plans2022-09-27 - Removals, Site Servicing, Lot Grading, Drainage, Sediment and Erosion Control Plan -
Architectural Plans2022-09-27 - North Elevation - D07-12-22-0001
Architectural Plans2022-09-27 - East Elevation - D07-12-22-0001
Architectural Plans2022-09-27 - Building Section BS-02 - D07-12-22-0001
Architectural Plans2022-09-27 - Building Section BS-01 - D07-12-22-0001
Architectural Plans2022-09-27 - Basement Ramp Grading Plan - D07-12-22-0001
Architectural Plans2022-01-05 - Elevations - D07-12-22-0001
Civil Engineering Report2024-02-07 - Civil Plan - D07-12-22-0001
Design Brief2022-01-05 - Design Brief - D07-12-22-0001
Electrical Plan2023-07-07 - Wall Sconce Lighting - D07-12-22-0001
Electrical Plan2023-07-07 - Parking Garage & Canopy Lighting - D07-12-22-0001
Environmental2022-01-05 - Phase 1 Environmental Site Assessment - D07-12-22-0001
Erosion And Sediment Control Plan2022-01-05 - Erosion Control, Removals, Grading and Servicing Plan - D07-12-22-0001
Floor Plan2022-09-27 - Floor Plans - D07-12-22-0001
Floor Plan2022-01-05 - Site Plan and Floor Plans - D07-12-22-0001
Geotechnical Report2022-01-05 - Geotechnical Investigation - D07-12-22-0001
Landscape Plan2024-06-12 - APPROVED Landscape Plan - D07-12-22-0001
Landscape Plan2024-02-07 - Landscape Plan - D07-12-22-0001
Landscape Plan2023-07-10 - Landscape Plan - D07-12-22-0001
Landscape Plan2022-09-29 - Landscape Plan - D07-12-22-0001
Landscape Plan2022-01-05 - Landscape Plan - D07-12-22-0001
Noise Study2022-01-05 - Traffic Noise Assessment - D07-12-22-0001
Planning2022-01-05 - Planning Rationale - D07-12-22-0001
Shadow Study2022-01-05 - Shadow Study - D07-12-22-0001
Site Servicing2024-06-12 - APPROVED Servicing Grading Drainage and Erosion Control Plan - D07-12-22-0001
Site Servicing2023-07-07 - Servicing & Stormwater Management Report- D07-12-22-0001
Site Servicing2023-03-02 - Servicing & Stormwater Management Report - D07-12-22-0001
Site Servicing2022-09-27 - Servicing and Stormwater Management Report - D07-12-22-0001
Site Servicing2022-01-05 - Servicing and Stormwater Management Report - D07-12-22-0001
Surveying2022-01-05 - Topographic Survey - D07-12-22-0001
Transportation Analysis2022-09-27 - TIA Strategy Document Addendum - D07-12-22-0001
Transportation Analysis2022-02-23 - Transportation Impact Assessment - D07-12-22-0001
Transportation Analysis2022-01-05 - Transportation Impact Assessment Forecasting Report - D07-12-22-0001
Tree Information and Conservation2023-03-02 - Tree Conservation Report & Landscape Plan - D07-12-22-0001
Tree Information and Conservation2023-03-02 - Tree Conservation Report - D07-12-22-0001
Tree Information and Conservation2022-09-27 - Tree Conservation Report - D07-12-22-0001
Tree Information and Conservation2022-01-05 - Tree Conservation Report - D07-12-22-0001
2024-06-12 - APPROVED Delegated Authority Report - D07-12-22-0001
2023-03-02 - Technical Memorandum - D07-12-22-0001
2023-03-02 - Ground Floor - D07-12-22-0001
2023-03-02 - Facade Finishes - D07-12-22-0001
2023-03-02 - Basement - D07-12-22-0001
2022-09-27 - Access to Parking Stall 1 - D07-12-22-0001