572 Moodie Dr./4000 Old Richmond Rd.#
Last updated: 2026-01-20 · ID: D07-12-21-0234
Summary#
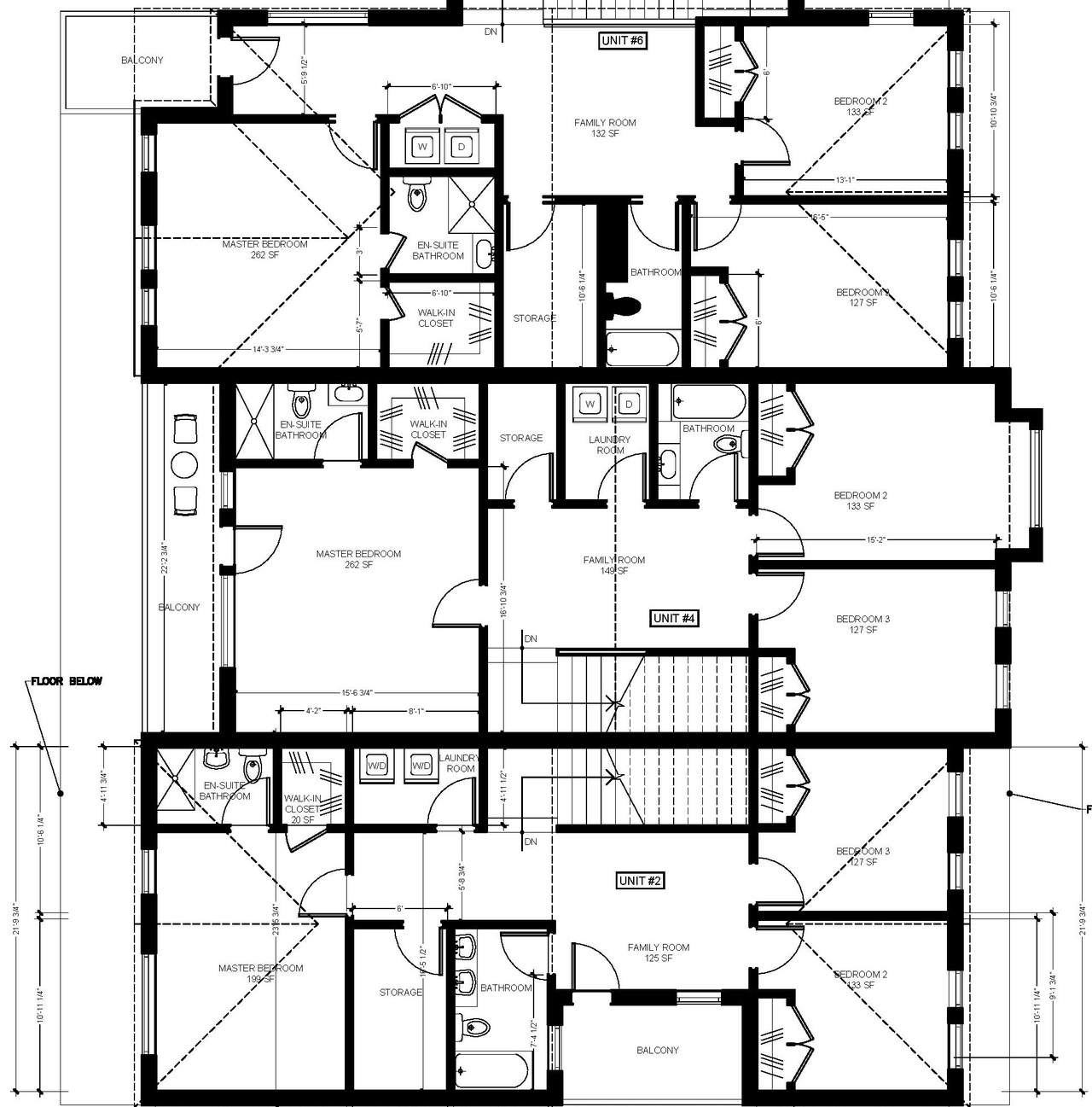
The City of Ottawa has received a Zoning By-law Amendment and Site Plan Control application to permit the development of four-storey apartment building along Old Richmond Road and six stacked townhouse dwelling units along Moodie Drive.
Status
File Pending (Application File Pending)
Building Scale (Max.)
Based on elevation drawings. Values may be approximate. See sources for exact figures.
Low-rise · 3 storeys
· 7 m
Data Quality Note
Height was partially estimated using visual scale. This may be approximate.
Location#
Select a marker to view the address.
Site Plans, Elevations and Floor Plans#
Additional Information#
| Date Initiated | 2021-12-24 |
| Ward | Ward 8 - Laine Johnson |








