Ottawa Development Projects

3277 St-Joseph#

Last updated: 2025-09-11 · ID: D07-12-21-0229

Summary#

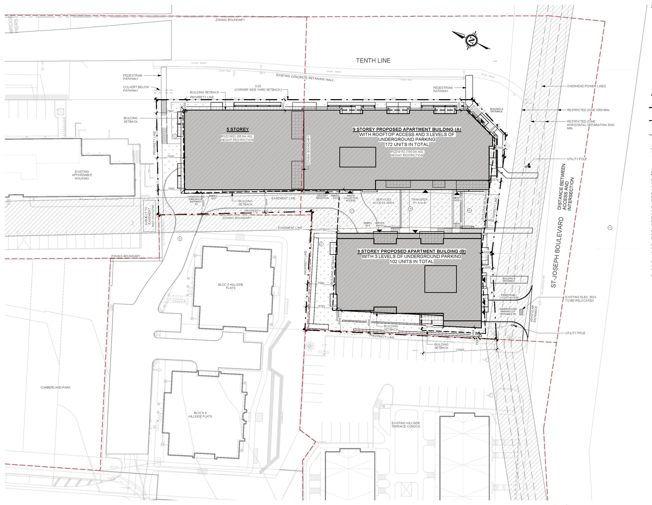
A Planned Unit Development consisting of two (2) mid-rise residential apartment buildings with a total of two hundred seventy-four (274) rental units at various sizes.

Status
Inactive (Application Approved)

Building Scale (Max.) Based on elevation drawings. Values may be approximate. See sources for exact figures.
Mid-rise · 9 storeys · 34.49 m

Renders#

Location#

Select a marker to view the address.

Site Plans, Elevations and Floor Plans#

  • Image from page 41 of the file '2022-05-17 - Architectural Design Brief - D07-12-21-0229'
  • Image from page 25 of the file '2021-12-29 - Architectural Design Brief - D07-12-21-0229'
  • Image from page 43 of the file '2022-05-17 - Architectural Design Brief - D07-12-21-0229'
  • Image from page 45 of the file '2021-12-29 - Architectural Design Brief - D07-12-21-0229'
  • Image from page 39 of the file '2022-05-17 - Architectural Design Brief - D07-12-21-0229'
  • Image from page 45 of the file '2022-05-17 - Architectural Design Brief - D07-12-21-0229'
  • Image from page 44 of the file '2022-05-17 - Architectural Design Brief - D07-12-21-0229'
  • Image from page 42 of the file '2021-12-29 - Architectural Design Brief - D07-12-21-0229'
  • Image from page 42 of the file '2022-05-17 - Architectural Design Brief - D07-12-21-0229'
  • Image from page 12 of the file '2022-05-17 - Architectural Design Brief - D07-12-21-0229'
  • Image from page 42 of the file '2022-05-17 - Architectural Design Brief - D07-12-21-0229'
  • Image from page 25 of the file '2022-05-17 - Architectural Design Brief - D07-12-21-0229'
  • Image from page 25 of the file '2021-12-29 - Architectural Design Brief - D07-12-21-0229'
  • Image from page 25 of the file '2022-05-17 - Architectural Design Brief - D07-12-21-0229'
  • Image from page 25 of the file '2021-12-29 - Architectural Design Brief - D07-12-21-0229'
  • Image from page 25 of the file '2021-12-29 - Architectural Design Brief - D07-12-21-0229'
  • Image from page 13 of the file '2022-05-17 - Architectural Design Brief - D07-12-21-0229'
  • Image from page 13 of the file '2022-05-17 - Architectural Design Brief - D07-12-21-0229'
  • Image from page 25 of the file '2022-05-17 - Architectural Design Brief - D07-12-21-0229'
  • Image from page 13 of the file '2022-05-17 - Architectural Design Brief - D07-12-21-0229'
  • Image from page 13 of the file '2022-05-17 - Architectural Design Brief - D07-12-21-0229'
  • Image from page 25 of the file '2021-12-29 - Architectural Design Brief - D07-12-21-0229'
  • Construction site plan for project from page 24 of the file '2022-05-17 - Architectural Design Brief - D07-12-21-0229'
  • Construction site plan for project from page 24 of the file '2021-12-29 - Architectural Design Brief - D07-12-21-0229'
  • Construction site plan for project from page 25 of the file '2022-05-17 - Architectural Design Brief - D07-12-21-0229'
  • Construction site plan for project from page 25 of the file '2021-12-29 - Architectural Design Brief - D07-12-21-0229'
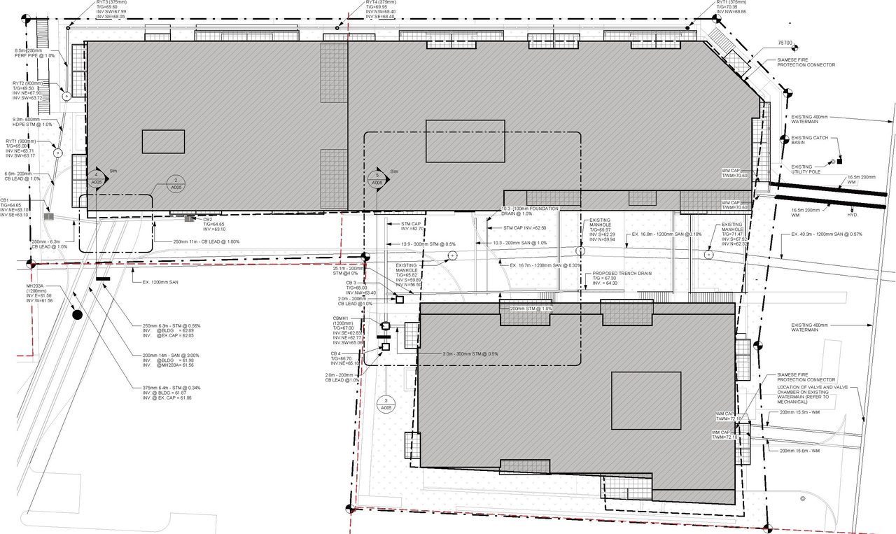
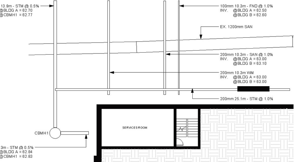
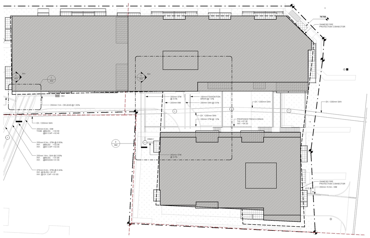
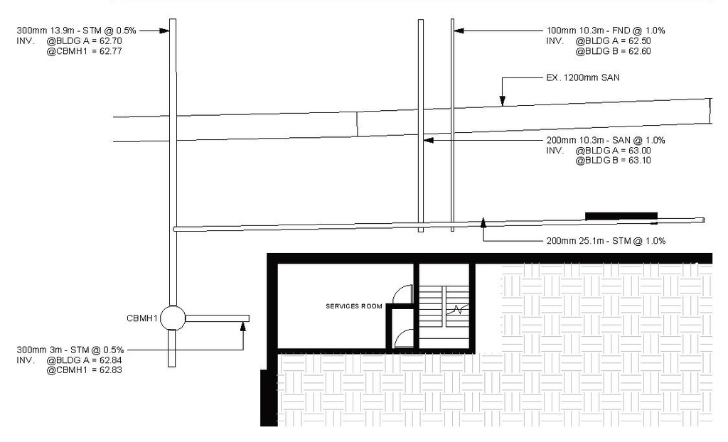
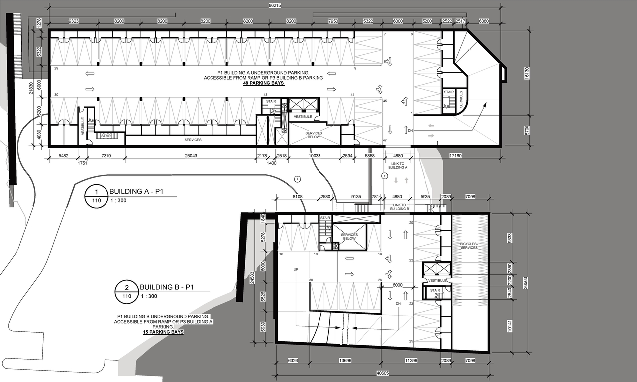
  • Construction site plan for project from page 10 of the file '2022-05-17 - Architectural Design Brief - D07-12-21-0229'
  • Construction site plan for project from page 8 of the file '2022-05-17 - Architectural Design Brief - D07-12-21-0229'
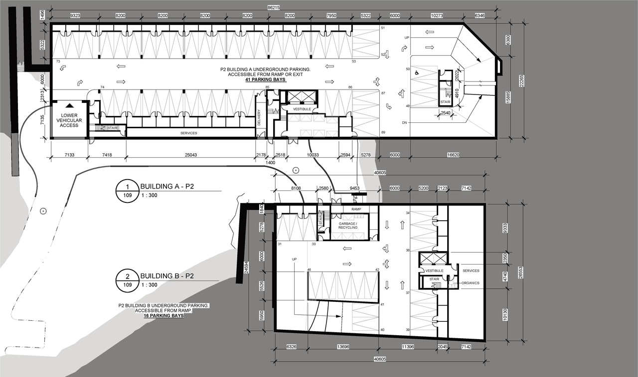
  • Construction site plan for project from page 26 of the file '2022-05-17 - Architectural Design Brief - D07-12-21-0229'
  • Construction site plan for project from page 22 of the file '2022-05-17 - Architectural Design Brief - D07-12-21-0229'
  • Construction site plan for project from page 22 of the file '2022-05-17 - Architectural Design Brief - D07-12-21-0229'
  • Construction site plan for project from page 22 of the file '2022-05-17 - Architectural Design Brief - D07-12-21-0229'
  • Construction site plan for project from page 22 of the file '2022-05-17 - Architectural Design Brief - D07-12-21-0229'
  • Construction site plan for project from page 28 of the file '2022-05-17 - Architectural Design Brief - D07-12-21-0229'
  • Construction site plan for project from page 14 of the file '2021-12-29 - Architectural Design Brief - D07-12-21-0229'
  • Construction site plan for project from page 29 of the file '2022-05-17 - Architectural Design Brief - D07-12-21-0229'
  • Construction site plan for project from page 46 of the file '2022-05-17 - Architectural Design Brief - D07-12-21-0229'
  • Construction site plan for project from page 36 of the file '2022-05-17 - Architectural Design Brief - D07-12-21-0229'
  • Construction site plan for project from page 22 of the file '2022-05-17 - Architectural Design Brief - D07-12-21-0229'
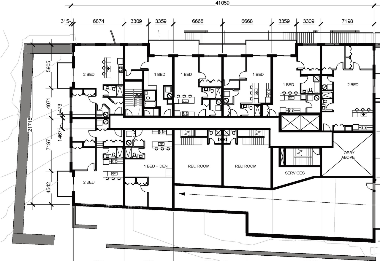
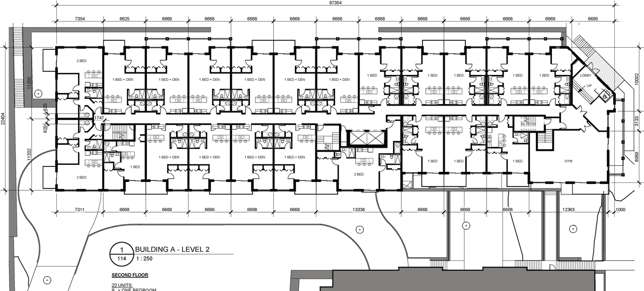
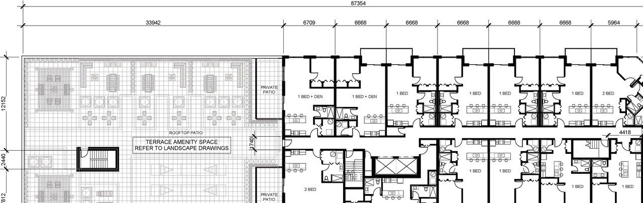
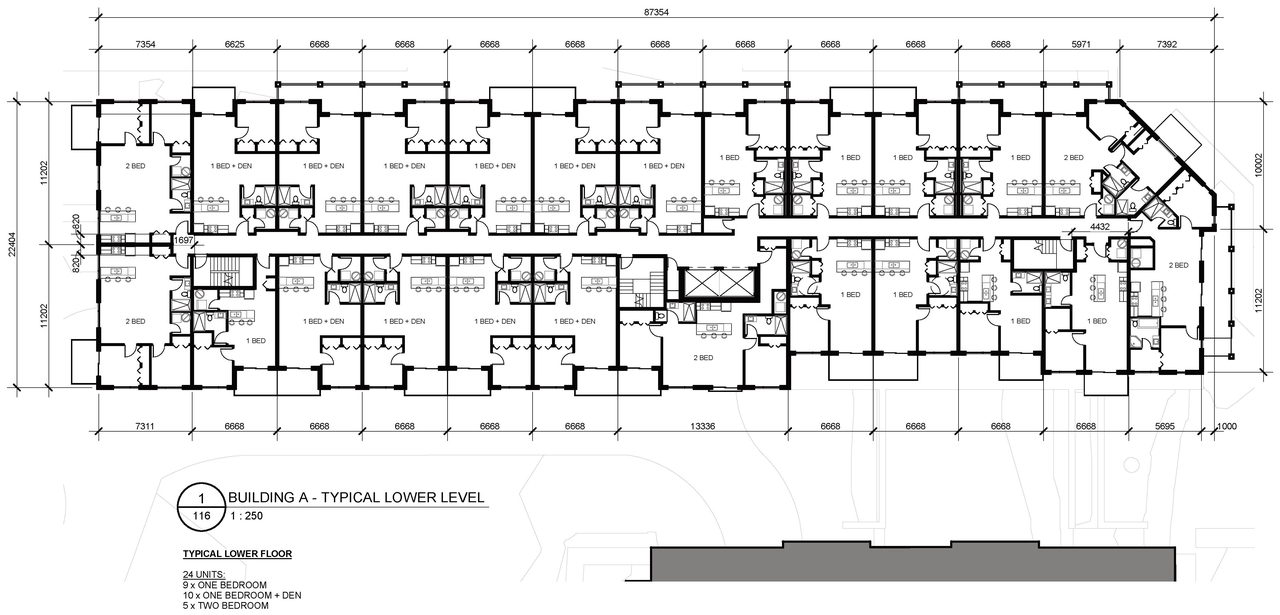
  • Floor plan for project from page 26 of the file '2022-05-17 - Architectural Design Brief - D07-12-21-0229'
  • Floor plan for project from page 27 of the file '2022-05-17 - Architectural Design Brief - D07-12-21-0229'
  • Floor plan for project from page 35 of the file '2022-05-17 - Architectural Design Brief - D07-12-21-0229'
  • Floor plan for project from page 31 of the file '2022-05-17 - Architectural Design Brief - D07-12-21-0229'
  • Floor plan for project from page 33 of the file '2022-05-17 - Architectural Design Brief - D07-12-21-0229'
  • Floor plan for project from page 32 of the file '2022-05-17 - Architectural Design Brief - D07-12-21-0229'
  • Floor plan for project from page 38 of the file '2022-05-17 - Architectural Design Brief - D07-12-21-0229'
  • Floor plan for project from page 37 of the file '2022-05-17 - Architectural Design Brief - D07-12-21-0229'
  • Floor plan for project from page 34 of the file '2022-05-17 - Architectural Design Brief - D07-12-21-0229'
  • Image from page 41 of the file '2022-05-17 - Architectural Design Brief - D07-12-21-0229'
  • Image from page 25 of the file '2021-12-29 - Architectural Design Brief - D07-12-21-0229'
  • Image from page 43 of the file '2022-05-17 - Architectural Design Brief - D07-12-21-0229'
  • Image from page 45 of the file '2021-12-29 - Architectural Design Brief - D07-12-21-0229'
  • Image from page 39 of the file '2022-05-17 - Architectural Design Brief - D07-12-21-0229'
  • Image from page 45 of the file '2022-05-17 - Architectural Design Brief - D07-12-21-0229'
  • Image from page 44 of the file '2022-05-17 - Architectural Design Brief - D07-12-21-0229'
  • Image from page 42 of the file '2021-12-29 - Architectural Design Brief - D07-12-21-0229'
  • Image from page 42 of the file '2022-05-17 - Architectural Design Brief - D07-12-21-0229'
  • Image from page 12 of the file '2022-05-17 - Architectural Design Brief - D07-12-21-0229'
  • Image from page 42 of the file '2022-05-17 - Architectural Design Brief - D07-12-21-0229'
  • Image from page 25 of the file '2022-05-17 - Architectural Design Brief - D07-12-21-0229'
  • Image from page 25 of the file '2021-12-29 - Architectural Design Brief - D07-12-21-0229'
  • Image from page 25 of the file '2022-05-17 - Architectural Design Brief - D07-12-21-0229'
  • Image from page 25 of the file '2021-12-29 - Architectural Design Brief - D07-12-21-0229'
  • Image from page 25 of the file '2021-12-29 - Architectural Design Brief - D07-12-21-0229'
  • Image from page 13 of the file '2022-05-17 - Architectural Design Brief - D07-12-21-0229'
  • Image from page 13 of the file '2022-05-17 - Architectural Design Brief - D07-12-21-0229'
  • Image from page 25 of the file '2022-05-17 - Architectural Design Brief - D07-12-21-0229'
  • Image from page 13 of the file '2022-05-17 - Architectural Design Brief - D07-12-21-0229'
  • Image from page 13 of the file '2022-05-17 - Architectural Design Brief - D07-12-21-0229'
  • Image from page 25 of the file '2021-12-29 - Architectural Design Brief - D07-12-21-0229'
  • Construction site plan for project from page 24 of the file '2022-05-17 - Architectural Design Brief - D07-12-21-0229'
  • Construction site plan for project from page 24 of the file '2021-12-29 - Architectural Design Brief - D07-12-21-0229'
  • Construction site plan for project from page 25 of the file '2022-05-17 - Architectural Design Brief - D07-12-21-0229'
  • Construction site plan for project from page 25 of the file '2021-12-29 - Architectural Design Brief - D07-12-21-0229'
  • Construction site plan for project from page 10 of the file '2022-05-17 - Architectural Design Brief - D07-12-21-0229'
  • Construction site plan for project from page 8 of the file '2022-05-17 - Architectural Design Brief - D07-12-21-0229'
  • Construction site plan for project from page 26 of the file '2022-05-17 - Architectural Design Brief - D07-12-21-0229'
  • Construction site plan for project from page 22 of the file '2022-05-17 - Architectural Design Brief - D07-12-21-0229'
  • Construction site plan for project from page 22 of the file '2022-05-17 - Architectural Design Brief - D07-12-21-0229'
  • Construction site plan for project from page 22 of the file '2022-05-17 - Architectural Design Brief - D07-12-21-0229'
  • Construction site plan for project from page 22 of the file '2022-05-17 - Architectural Design Brief - D07-12-21-0229'
  • Construction site plan for project from page 28 of the file '2022-05-17 - Architectural Design Brief - D07-12-21-0229'
  • Construction site plan for project from page 14 of the file '2021-12-29 - Architectural Design Brief - D07-12-21-0229'
  • Construction site plan for project from page 29 of the file '2022-05-17 - Architectural Design Brief - D07-12-21-0229'
  • Construction site plan for project from page 46 of the file '2022-05-17 - Architectural Design Brief - D07-12-21-0229'
  • Construction site plan for project from page 36 of the file '2022-05-17 - Architectural Design Brief - D07-12-21-0229'
  • Construction site plan for project from page 22 of the file '2022-05-17 - Architectural Design Brief - D07-12-21-0229'
  • Floor plan for project from page 26 of the file '2022-05-17 - Architectural Design Brief - D07-12-21-0229'
  • Floor plan for project from page 27 of the file '2022-05-17 - Architectural Design Brief - D07-12-21-0229'
  • Floor plan for project from page 35 of the file '2022-05-17 - Architectural Design Brief - D07-12-21-0229'
  • Floor plan for project from page 31 of the file '2022-05-17 - Architectural Design Brief - D07-12-21-0229'
  • Floor plan for project from page 33 of the file '2022-05-17 - Architectural Design Brief - D07-12-21-0229'
  • Floor plan for project from page 32 of the file '2022-05-17 - Architectural Design Brief - D07-12-21-0229'
  • Floor plan for project from page 38 of the file '2022-05-17 - Architectural Design Brief - D07-12-21-0229'
  • Floor plan for project from page 37 of the file '2022-05-17 - Architectural Design Brief - D07-12-21-0229'
  • Floor plan for project from page 34 of the file '2022-05-17 - Architectural Design Brief - D07-12-21-0229'

Additional Information#

Date Initiated2021-12-22
WardWard 1 - Matthew Luloff

Documents#

TypeDocument
Adequacy Of Public Services2023-08-11 - Serviceability Report - D07-12-21-0229
Adequacy Of Public Services2023-02-02 - Serviceability Report - D07-12-21-0229
Adequacy Of Public Services2021-12-29 - Serviceability Report - D07-12-21-0229
Application Summary2022-02-07 - Application Summary - D07-12-21-0229
Architectural Plans2023-12-06 - Approved Site Plans and Site Service Hookups - D07-12-21-0229
Architectural Plans2023-12-06 - Approved Sanitary Drainage Area Plan - D07-12-21-0229
Architectural Plans2023-12-06 - Approved General Plan of Services - D07-12-21-0229
Architectural Plans2023-12-06 - Approved Elevations - D07-12-21-0229
Architectural Plans2023-12-06 - Approved Building B - Parking, Floor, and Roof Plans - D07-12-21-0229
Architectural Plans2023-12-06 - Approved Building A - Parking, Floor, and Roof Plans - D07-12-21-0229
Architectural Plans2023-08-11 - Sanitary Drainage Area Plan - D07-12-21-0229
Architectural Plans2023-08-11 - General Plan of Services - D07-12-21-0229
Architectural Plans2023-02-02 - Rooftop Plan - D07-12-21-0229
Architectural Plans2022-05-17 - Vibration Monitoring Plan - D07-12-21-0229
Architectural Plans2022-05-17 - Site Plan Control - D07-12-21-0229
Architectural Plans2022-05-17 - Settlement Monitoring Plan - D07-12-21-0229
Architectural Plans2022-05-17 - Sanitary Drainage Area Plan - D07-12-21-0229
Architectural Plans2022-05-17 - Response to Site Plan Comments - D07-12-21-0229
Architectural Plans2022-05-17 - General Site Plan Control - D07-12-21-0229
Architectural Plans2022-05-17 - General Plan of Services - D07-12-21-0229
Architectural Plans2021-12-29 - Site Plan 2 - D07-12-21-0229
Architectural Plans2021-12-29 - Site Plan 1 - D07-12-21-0229
Architectural Plans2021-12-29 - Sanitary Drainage Area Plan - D07-12-21-0229
Architectural Plans2021-12-29 - Plan of Servicing - D07-12-21-0229
Architectural Plans2021-12-29 - Erosions and Sediment Control Plan - D07-12-21-0229
Civil Engineering Report2023-02-02 - Civil Plans - D07-12-21-0229
Design Brief2022-05-17 - Architectural Design Brief - D07-12-21-0229
Design Brief2021-12-29 - Architectural Design Brief - D07-12-21-0229
Environmental2021-12-29 - Environmental Site Assessment Phase 2 - D07-12-21-0229
Environmental2021-12-29 - Environmental Site Assessment Phase 1 - D07-12-21-0229
Erosion And Sediment Control Plan2023-12-06 - Approved Erosion & Sediment Control Plan - D07-12-21-0229
Erosion And Sediment Control Plan2023-08-11 - Erosion and Sediment Control Plan - D07-12-21-0229
Erosion And Sediment Control Plan2022-05-17 - Erosion & Sediment Control Plan - D07-12-21-0229
Geotechnical Report2023-12-06 - Approved Grading Plan - D07-12-21-0229
Geotechnical Report2023-08-11 - Grading Plan - D07-12-21-0229
Geotechnical Report2022-05-17 - Grading Plan - D07-12-21-0229
Geotechnical Report2022-05-17 - Geotechnical Responce to City Comments - D07-12-21-0229
Geotechnical Report2022-05-17 - Geotechnical Investigation - D07-12-21-0229
Geotechnical Report2021-12-29 - Grading Plan - D07-12-21-0229
Geotechnical Report2021-12-29 - Geotechnical Investigation - D07-12-21-0229
Landscape Plan2023-12-06 - Approved Landscape Plans and Details - D07-12-21-0229
Landscape Plan2023-02-02 - Landscape Plan - D07-12-21-0229
Landscape Plan2022-06-22 - Landscape Plan - D07-12-21-0229
Landscape Plan2022-05-17 - Landscape Plans - D07-12-21-0229
Landscape Plan2021-12-29 - Landscape Plans - D07-12-21-0229
Noise Study2021-12-29 - Roadway Traffic Noise Assessment - D07-12-21-0229
Planning2021-12-29 - Planning Rationale - D07-12-21-0229
Shadow Study2022-06-22 - Shadow Studies - D07-12-21-0229
Site Servicing2022-05-17 - Servicing and Stormwater Management Report - D07-12-21-0229
Stormwater Management2023-12-06 - Approved Stormwater Management Plan - D07-12-21-0229
Stormwater Management2023-08-11 - Stormwater Management Plan -D07-12-21-0229
Stormwater Management2022-05-17 - Stormwater Management Plan - D07-12-21-0229
Stormwater Management2021-12-29 - Stormwater Mangement Plan - D07-12-21-0229
Surveying2021-12-29 - Topographic Plan - D07-12-21-0229
Transportation Analysis2023-02-02 - Transportation Impact Assessment - D07-12-21-0229
Transportation Analysis2021-12-29 - Transportation Impact Assessment - D07-12-21-0229
Tree Information and Conservation2022-05-17 - Tree Conservation Report - D07-12-21-0229
Wind Study2021-12-29 - Wind Study - D07-12-21-0229
2023-12-06 - Signed Delegated Authority Report - D07-12-21-0229
2023-12-06 - Approved Notes, Legends, and Details - D07-12-21-0229
2023-12-06 - Approved Cross Sections - D07-12-21-0229
2023-08-11 - Notes Legends and Details - D07-12-21-0229
2023-02-02 - Notes, Legends and Details - D07-12-21-0229
2022-06-22 - Wind Studies - D07-12-21-0229
2022-05-17 - Site Service Hookups - D07-12-21-0229
2022-05-17 - Responses to 1st Review Comments - D07-12-21-0229
2022-05-17 - Notes Legends and Details - D07-12-21-0229
2022-05-17 - Cross Sections - D07-12-21-0229
2021-12-29 - Notes Legends and Details - D07-12-21-0229