Ottawa Development Projects

1546 Scott St.#

Last updated: 2022-10-05 ยท ID: D07-12-21-0216

Summary#

The City of Ottawa has received a Zoning By-law Amendment and Site Plan Control application to permit a 25-storey mixed-use apartment building containing 230 dwelling units and 222 square metre of ground floor commercial, with a total of 176 parking spaces.

Status
Active (On Circulation; Initial Submission Review)

Renders#

Location#

Select a marker to view the address.

Site Plans, Elevations and Floor Plans#

  • Image from page 22 of the file '2022-10-03 - Urban Design Brief - D07-12-21-0216'
  • Image from page 23 of the file '2022-10-03 - Urban Design Brief - D07-12-21-0216'
  • Image from page 25 of the file '2022-10-03 - Urban Design Brief - D07-12-21-0216'
  • Image from page 35 of the file '2022-10-03 - Urban Design Brief - D07-12-21-0216'
  • Image from page 38 of the file '2022-10-03 - Urban Design Brief - D07-12-21-0216'
  • Image from page 38 of the file '2022-10-03 - Urban Design Brief - D07-12-21-0216'
  • Image from page 39 of the file '2022-10-03 - Urban Design Brief - D07-12-21-0216'
  • Image from page 39 of the file '2022-10-03 - Urban Design Brief - D07-12-21-0216'
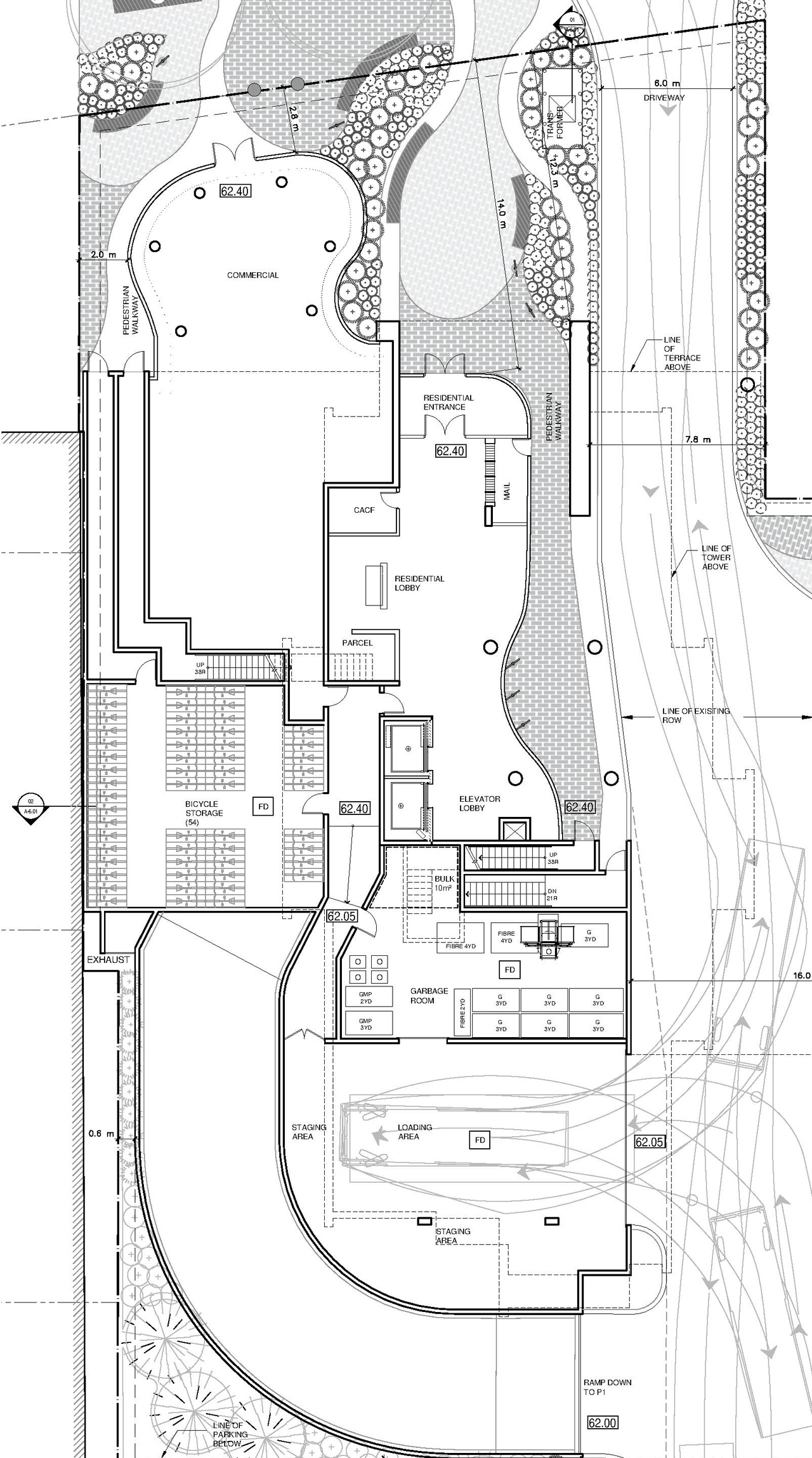
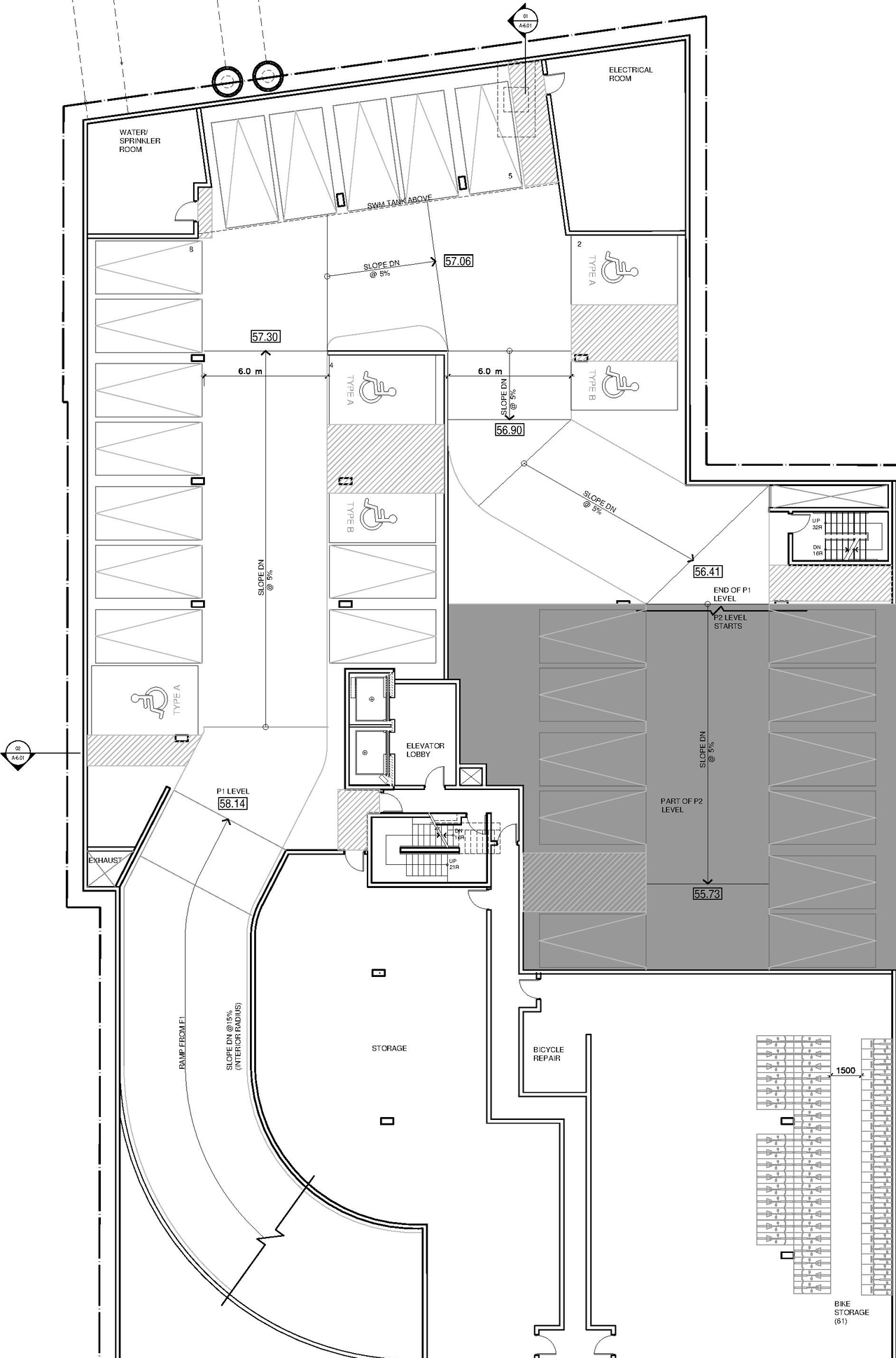
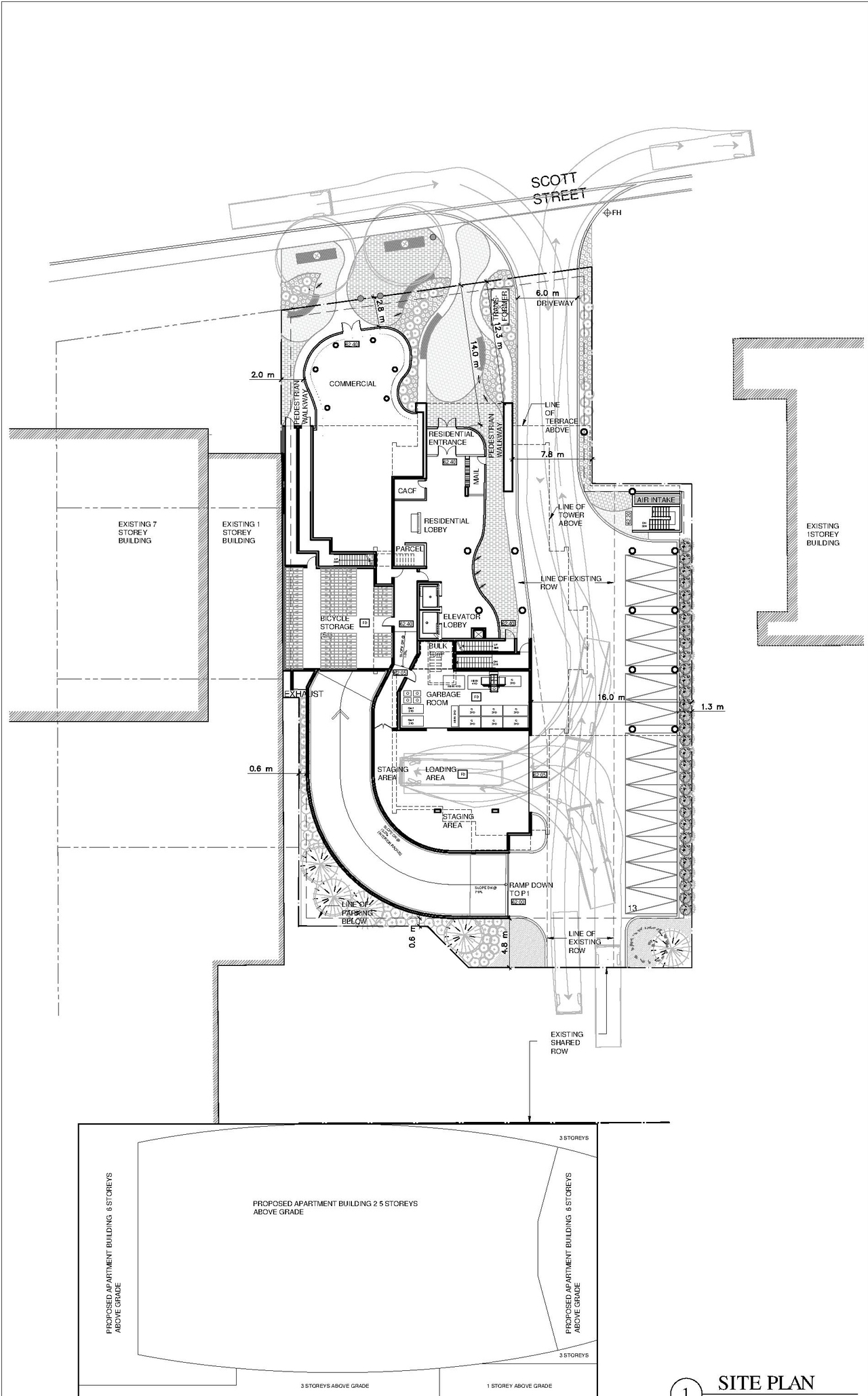
  • Construction site plan for project from page 37 of the file '2022-10-03 - Urban Design Brief - D07-12-21-0216'
  • Construction site plan for project from page 23 of the file '2022-10-03 - Urban Design Brief - D07-12-21-0216'
  • Construction site plan for project from page 9 of the file '2022-10-03 - Urban Design Brief - D07-12-21-0216'
  • Construction site plan for project from page 29 of the file '2022-10-03 - Urban Design Brief - D07-12-21-0216'
  • Construction site plan for project from page 29 of the file '2022-10-03 - Urban Design Brief - D07-12-21-0216'
  • Construction site plan for project from page 32 of the file '2022-10-03 - Urban Design Brief - D07-12-21-0216'
  • Construction site plan for project from page 54 of the file '2022-10-03 - Urban Design Brief - D07-12-21-0216'
  • Construction site plan for project from page 33 of the file '2022-10-03 - Urban Design Brief - D07-12-21-0216'
  • Construction site plan for project from page 81 of the file '2022-10-03 - Urban Design Brief - D07-12-21-0216'
  • Construction site plan for project from page 38 of the file '2022-10-03 - Urban Design Brief - D07-12-21-0216'
  • Construction site plan for project from page 44 of the file '2022-10-03 - Urban Design Brief - D07-12-21-0216'
  • Construction site plan for project from page 71 of the file '2022-10-03 - Urban Design Brief - D07-12-21-0216'
  • Construction site plan for project from page 73 of the file '2022-10-03 - Urban Design Brief - D07-12-21-0216'
  • Construction site plan for project from page 20 of the file '2022-10-03 - Urban Design Brief - D07-12-21-0216'
  • Construction site plan for project from page 40 of the file '2022-10-03 - Urban Design Brief - D07-12-21-0216'
  • Construction site plan for project from page 9 of the file '2022-10-03 - Urban Design Brief - D07-12-21-0216'
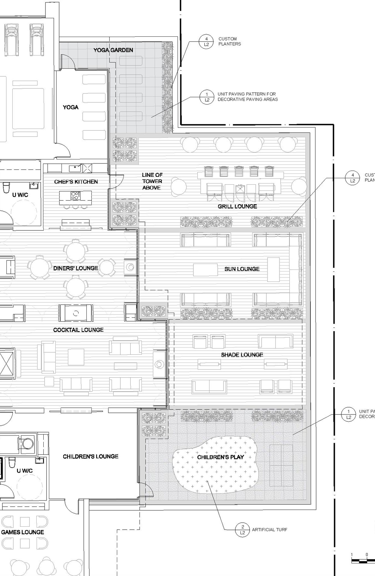
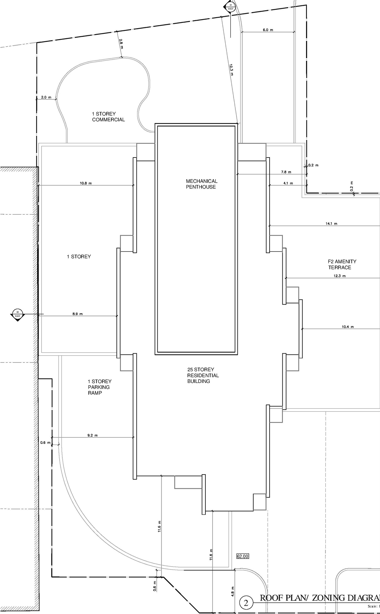
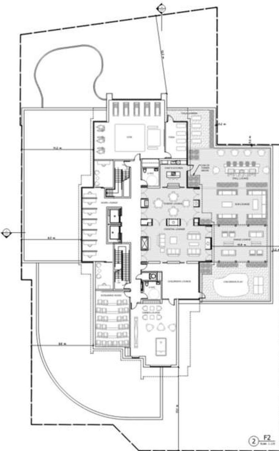
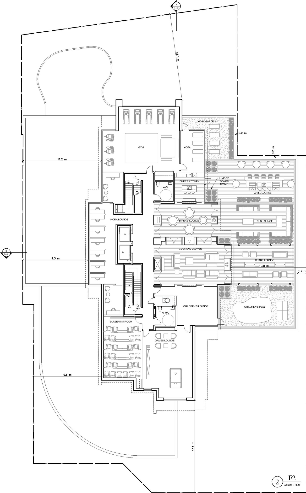
  • Floor plan for project from page 31 of the file '2022-10-03 - Urban Design Brief - D07-12-21-0216'
  • Floor plan for project from page 30 of the file '2022-10-03 - Urban Design Brief - D07-12-21-0216'
  • Floor plan for project from page 31 of the file '2022-10-03 - Urban Design Brief - D07-12-21-0216'
  • Floor plan for project from page 32 of the file '2022-10-03 - Urban Design Brief - D07-12-21-0216'
  • Floor plan for project from page 82 of the file '2022-10-03 - Urban Design Brief - D07-12-21-0216'
  • Image from page 22 of the file '2022-10-03 - Urban Design Brief - D07-12-21-0216'
  • Image from page 23 of the file '2022-10-03 - Urban Design Brief - D07-12-21-0216'
  • Image from page 25 of the file '2022-10-03 - Urban Design Brief - D07-12-21-0216'
  • Image from page 35 of the file '2022-10-03 - Urban Design Brief - D07-12-21-0216'
  • Image from page 38 of the file '2022-10-03 - Urban Design Brief - D07-12-21-0216'
  • Image from page 38 of the file '2022-10-03 - Urban Design Brief - D07-12-21-0216'
  • Image from page 39 of the file '2022-10-03 - Urban Design Brief - D07-12-21-0216'
  • Image from page 39 of the file '2022-10-03 - Urban Design Brief - D07-12-21-0216'
  • Construction site plan for project from page 37 of the file '2022-10-03 - Urban Design Brief - D07-12-21-0216'
  • Construction site plan for project from page 23 of the file '2022-10-03 - Urban Design Brief - D07-12-21-0216'
  • Construction site plan for project from page 9 of the file '2022-10-03 - Urban Design Brief - D07-12-21-0216'
  • Construction site plan for project from page 29 of the file '2022-10-03 - Urban Design Brief - D07-12-21-0216'
  • Construction site plan for project from page 29 of the file '2022-10-03 - Urban Design Brief - D07-12-21-0216'
  • Construction site plan for project from page 32 of the file '2022-10-03 - Urban Design Brief - D07-12-21-0216'
  • Construction site plan for project from page 54 of the file '2022-10-03 - Urban Design Brief - D07-12-21-0216'
  • Construction site plan for project from page 33 of the file '2022-10-03 - Urban Design Brief - D07-12-21-0216'
  • Construction site plan for project from page 81 of the file '2022-10-03 - Urban Design Brief - D07-12-21-0216'
  • Construction site plan for project from page 38 of the file '2022-10-03 - Urban Design Brief - D07-12-21-0216'
  • Construction site plan for project from page 44 of the file '2022-10-03 - Urban Design Brief - D07-12-21-0216'
  • Construction site plan for project from page 71 of the file '2022-10-03 - Urban Design Brief - D07-12-21-0216'
  • Construction site plan for project from page 73 of the file '2022-10-03 - Urban Design Brief - D07-12-21-0216'
  • Construction site plan for project from page 20 of the file '2022-10-03 - Urban Design Brief - D07-12-21-0216'
  • Construction site plan for project from page 40 of the file '2022-10-03 - Urban Design Brief - D07-12-21-0216'
  • Construction site plan for project from page 9 of the file '2022-10-03 - Urban Design Brief - D07-12-21-0216'
  • Floor plan for project from page 31 of the file '2022-10-03 - Urban Design Brief - D07-12-21-0216'
  • Floor plan for project from page 30 of the file '2022-10-03 - Urban Design Brief - D07-12-21-0216'
  • Floor plan for project from page 31 of the file '2022-10-03 - Urban Design Brief - D07-12-21-0216'
  • Floor plan for project from page 32 of the file '2022-10-03 - Urban Design Brief - D07-12-21-0216'
  • Floor plan for project from page 82 of the file '2022-10-03 - Urban Design Brief - D07-12-21-0216'

Additional Information#

Date Initiated2021-11-29
WardWard 15 - Jeff Leiper

Documents#

TypeDocument
Application Summary2022-10-03 - Application Summary - D07-12-21-0216
Architectural Plans2023-02-27 - Site Plan - D07-12-21-0216
Architectural Plans2022-10-03 - General Plan of Services - D07-12-21-0216
Architectural Plans2022-10-03 - Architectural Set - D07-12-21-0216
Architectural Plans2022-08-23 - Site Plan Agreement - D07-12-21-0216
Architectural Plans2022-08-23 - GENERAL PLAN OF SERVICES - D07-12-21-0216
Civil Engineering Report2023-05-08 - Civil Drawings - D07-12-21-0216
Design Brief2022-10-03 - Urban Design Brief - D07-12-21-0216
Design Brief2021-11-29 - Design Brief - D07-12-21-0216
Environmental2023-07-31 - Phase I Environmental Site Assessment - D07-12-21-0216
Environmental2022-10-03 - Phase II Environmental Site Assessment - D07-12-21-0216
Environmental2022-10-03 - Phase I Environmental Site Assessment - D07-12-21-0216
Environmental2022-08-23 - Phase 1 Environmental Site Assessment - D07-12-21-0216
Environmental2021-11-29 - Phase II Environmental Site Assessment Map - D07-12-21-0216
Environmental2021-11-29 - Phase II Environmental Site Assessment - D07-12-21-0216
Environmental2021-11-29 - Phase I Environmental Site Assessment - D07-12-21-0216
Erosion And Sediment Control Plan2022-10-03 - Erosion and Sediment Control Plan - D07-12-21-0216
Erosion And Sediment Control Plan2022-08-23 - EROSION AND SEDIMENT CONTROL PLAN - D07-12-21-0216
Geotechnical Report2022-10-03 - Soil Vapour Quality Assessment - D07-12-21-0216
Geotechnical Report2022-10-03 - Grading Plan - D07-12-21-0216
Geotechnical Report2022-10-03 - Geotechnical Subsurface Invesgitation Report - D07-12-21-0216
Geotechnical Report2022-10-03 - Geotechnical Report - D07-12-21-0216
Geotechnical Report2022-08-23 - GRADING PLAN - D07-12-21-0216
Geotechnical Report2022-08-23 - Geotechnical Report - D07-12-21-0216
Geotechnical Report2021-11-29 - Soil Vapour Quality Assessment - D07-12-21-0216
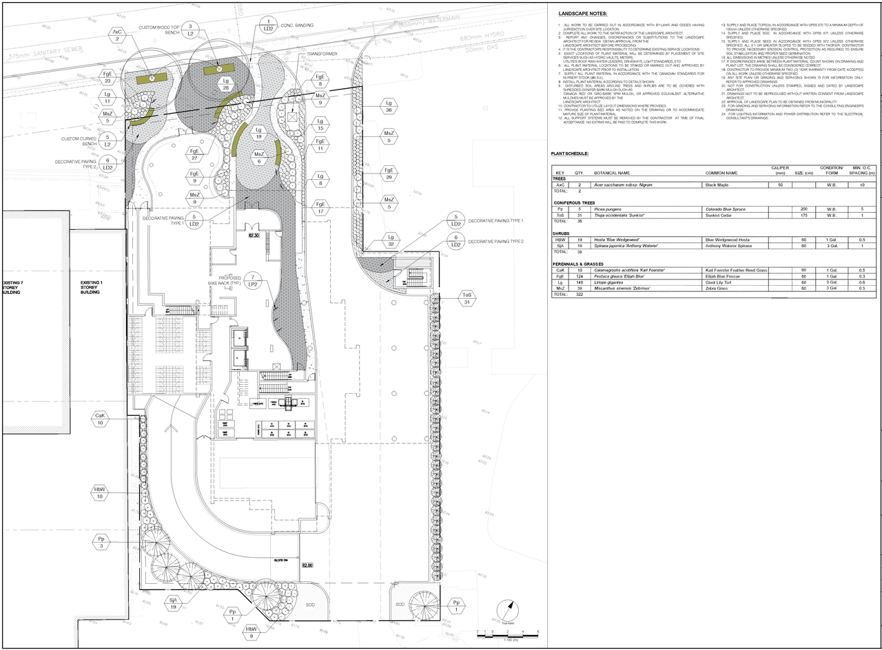
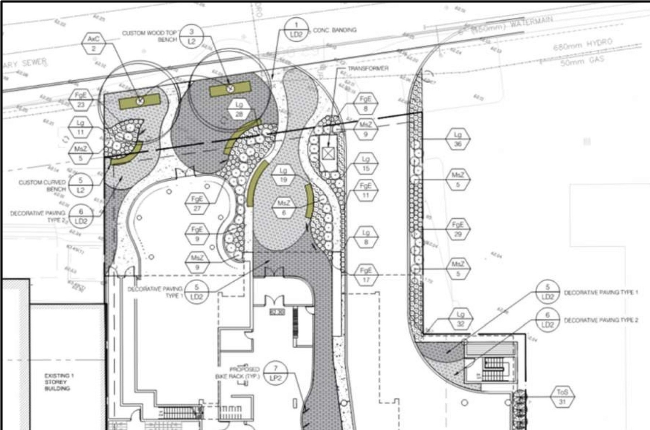
Landscape Plan2023-02-27 - Landscape Plan - D07-12-21-0216
Landscape Plan2022-10-03 - Landscape Plans - D07-12-21-0216
Landscape Plan2022-08-23 - Landscape Plan - D07-12-21-0216
Noise Study2021-11-29 - Noise Feasibility Study - D07-12-21-0216
Planning2023-02-27 - Zoning Matrix - D07-12-21-0216
Planning2022-10-03 - Planning Justification and Rational Report - D07-12-21-0216
Planning2021-11-29 - Planning Justification and Retional Report - D07-12-21-0216
Shadow Study2022-10-03 - Shadow Study - D07-12-21-0216
Shadow Study2021-11-29 - Shadow Study - D07-12-21-0216
Site Servicing2023-05-08 - Site Servicing Report - D07-12-21-0216
Site Servicing2023-02-27 - Site Servicing Report - D07-12-21-0216
Site Servicing2022-10-03 - Site Servicing Report - D07-12-21-0216
Site Servicing2022-08-23 - Site Servicing Report - D07-12-21-0216
Stormwater Management2022-10-03 - Storm Drainage Area Plan - D07-12-21-0216
Stormwater Management2022-08-23 - STORM DRAINAGE AREA PLAN - D07-12-21-0216
Surveying2022-10-03 - Topographic Survey - D07-12-21-0216
Surveying2021-11-29 - Topographic - D07-12-21-0216
Transportation Analysis2022-10-03 - Transportation Impact Assessment - D07-12-21-0216
Transportation Analysis2022-08-24 - Transportation Impact Assessment - D07-12-21-0216
Tree Information and Conservation2023-02-27 - Tree Preservation Plan - D07-12-21-0216
Tree Information and Conservation2022-10-03 - Tree Preservation Plan - D07-12-21-0216
Tree Information and Conservation2022-08-23 - TREE PRESERVATION PLAN - D07-12-21-0216
Tree Information and Conservation2021-11-29 - Tree Preservation Plan - D07-12-21-0216
Wind Study2021-11-29 - Pedestrian Wind Study - D07-12-21-0216
2023-02-27- Confederation Line Level 1 Proximity Study - D07-12-21-0216
2022-10-03 - Waste Disposable 2 - D07-12-21-0216
2022-10-03 - Waste Disposable 1 - D07-12-21-0216
2022-10-03 - Phase II Envirornmental Site Assessment Map - D07-12-21-0216
2022-10-03 - Engineering Set - D07-12-21-0216
2021-11-29 - Waste-Disposal 2 - D07-12-21-0216
2021-11-29 - Waste Disposal 1 - D07-12-21-0216