Ottawa Development Projects

1125-1149 Cyrville Rd.#

Last updated: 2025-06-26 · ID: D07-12-21-0214

Summary#

A multifamily development consisting of 2 buildings, to be built within two phases, with a total of 354 residential dwelling units. Phase one (Building A) is a 6-storey building containing 208 units. Phase two (Building B) is 6-12-storeys with 146 units. 354 Parking spaces are proposed underground.

Status
Post Approval (Receipt of Agreement from Owner Pending)

Building Scale (Max.) Based on elevation drawings. Values may be approximate. See sources for exact figures.
Mid-rise · 6 storeys

Renders#

  • Rendering of building from page 13 of the file '2022-07-12 - Design Brief - D07-12-21-0214'
  • Rendering of building from page 1 of the file '2022-12-05 - Aerial Views Sheet A55 - D07-12-21-0214'
  • Rendering of building from page 14 of the file '2023-09-28 - Design Brief - D07-12-21-0214'
  • Rendering of building from page 14 of the file '2023-03-23 - Design Brief - D07-12-21-0214'
  • Rendering of building from page 15 of the file '2023-09-28 - Floor, Elevation and View Plans - D07-12-21-0214'
  • Rendering of building from page 11 of the file '2021-11-26 - Design Brief - D07-12-21-0214'
  • Rendering of building from page 16 of the file '2023-03-23 - Design Brief - D07-12-21-0214'
  • Rendering of building from page 1 of the file '2022-12-05 - Aerial Views Sheet A54 - D07-12-21-0214'
  • Rendering of building from page 6 of the file '2022-07-12 - Design Brief - D07-12-21-0214'
  • Rendering of building from page 20 of the file '2023-09-28 - Floor, Elevation and View Plans - D07-12-21-0214'
  • Rendering of building from page 13 of the file '2023-03-23 - Design Brief - D07-12-21-0214'
  • Rendering of building from page 13 of the file '2023-09-28 - Design Brief - D07-12-21-0214'
  • Rendering of building from page 6 of the file '2023-09-28 - Design Brief - D07-12-21-0214'
  • Rendering of building from page 17 of the file '2023-09-28 - Floor, Elevation and View Plans - D07-12-21-0214'
  • Rendering of building from page 1 of the file '2022-12-05 -Aerial Views Sheet A53 - D07-12-21-0214'
  • Rendering of building from page 15 of the file '2022-07-12 - Design Brief - D07-12-21-0214'
  • Rendering of building from page 12 of the file '2021-11-26 - Design Brief - D07-12-21-0214'
  • Rendering of building from page 10 of the file '2021-11-26 - Design Brief - D07-12-21-0214'
  • Rendering of building from page 15 of the file '2023-09-28 - Design Brief - D07-12-21-0214'
  • Rendering of building from page 7 of the file '2023-09-28 - Design Brief - D07-12-21-0214'
  • Rendering of building from page 3 of the file '2022-07-12 - Design Brief - D07-12-21-0214'
  • Rendering of building from page 12 of the file '2023-09-28 - Design Brief - D07-12-21-0214'
  • Rendering of building from page 6 of the file '2021-11-26 - Design Brief - D07-12-21-0214'
  • Rendering of building from page 8 of the file '2023-03-23 - Design Brief - D07-12-21-0214'
  • Rendering of building from page 11 of the file '2023-09-28 - Design Brief - D07-12-21-0214'
  • Rendering of building from page 3 of the file '2021-11-26 - Design Brief - D07-12-21-0214'
  • Rendering of building from page 12 of the file '2022-07-12 - Design Brief - D07-12-21-0214'
  • Rendering of building from page 13 of the file '2022-07-12 - Design Brief - D07-12-21-0214'
  • Rendering of building from page 1 of the file '2022-12-05 - Aerial Views Sheet A55 - D07-12-21-0214'
  • Rendering of building from page 14 of the file '2023-09-28 - Design Brief - D07-12-21-0214'
  • Rendering of building from page 14 of the file '2023-03-23 - Design Brief - D07-12-21-0214'
  • Rendering of building from page 15 of the file '2023-09-28 - Floor, Elevation and View Plans - D07-12-21-0214'
  • Rendering of building from page 11 of the file '2021-11-26 - Design Brief - D07-12-21-0214'
  • Rendering of building from page 16 of the file '2023-03-23 - Design Brief - D07-12-21-0214'
  • Rendering of building from page 1 of the file '2022-12-05 - Aerial Views Sheet A54 - D07-12-21-0214'
  • Rendering of building from page 6 of the file '2022-07-12 - Design Brief - D07-12-21-0214'
  • Rendering of building from page 20 of the file '2023-09-28 - Floor, Elevation and View Plans - D07-12-21-0214'
  • Rendering of building from page 13 of the file '2023-03-23 - Design Brief - D07-12-21-0214'
  • Rendering of building from page 13 of the file '2023-09-28 - Design Brief - D07-12-21-0214'
  • Rendering of building from page 6 of the file '2023-09-28 - Design Brief - D07-12-21-0214'
  • Rendering of building from page 17 of the file '2023-09-28 - Floor, Elevation and View Plans - D07-12-21-0214'
  • Rendering of building from page 1 of the file '2022-12-05 -Aerial Views Sheet A53 - D07-12-21-0214'
  • Rendering of building from page 15 of the file '2022-07-12 - Design Brief - D07-12-21-0214'
  • Rendering of building from page 12 of the file '2021-11-26 - Design Brief - D07-12-21-0214'
  • Rendering of building from page 10 of the file '2021-11-26 - Design Brief - D07-12-21-0214'
  • Rendering of building from page 15 of the file '2023-09-28 - Design Brief - D07-12-21-0214'
  • Rendering of building from page 7 of the file '2023-09-28 - Design Brief - D07-12-21-0214'
  • Rendering of building from page 3 of the file '2022-07-12 - Design Brief - D07-12-21-0214'
  • Rendering of building from page 12 of the file '2023-09-28 - Design Brief - D07-12-21-0214'
  • Rendering of building from page 6 of the file '2021-11-26 - Design Brief - D07-12-21-0214'
  • Rendering of building from page 8 of the file '2023-03-23 - Design Brief - D07-12-21-0214'
  • Rendering of building from page 11 of the file '2023-09-28 - Design Brief - D07-12-21-0214'
  • Rendering of building from page 3 of the file '2021-11-26 - Design Brief - D07-12-21-0214'
  • Rendering of building from page 12 of the file '2022-07-12 - Design Brief - D07-12-21-0214'

Location#

Select a marker to view the address.

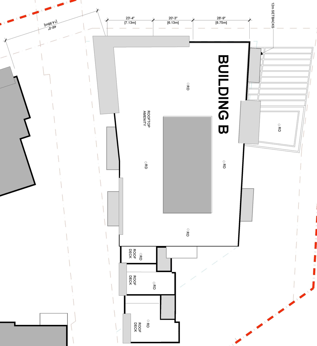
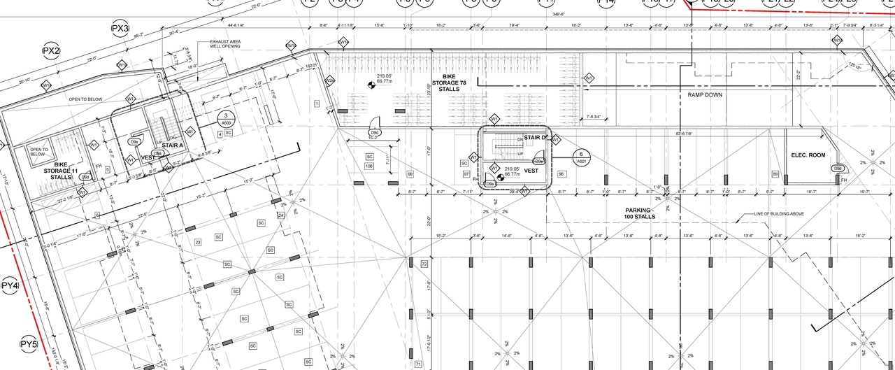
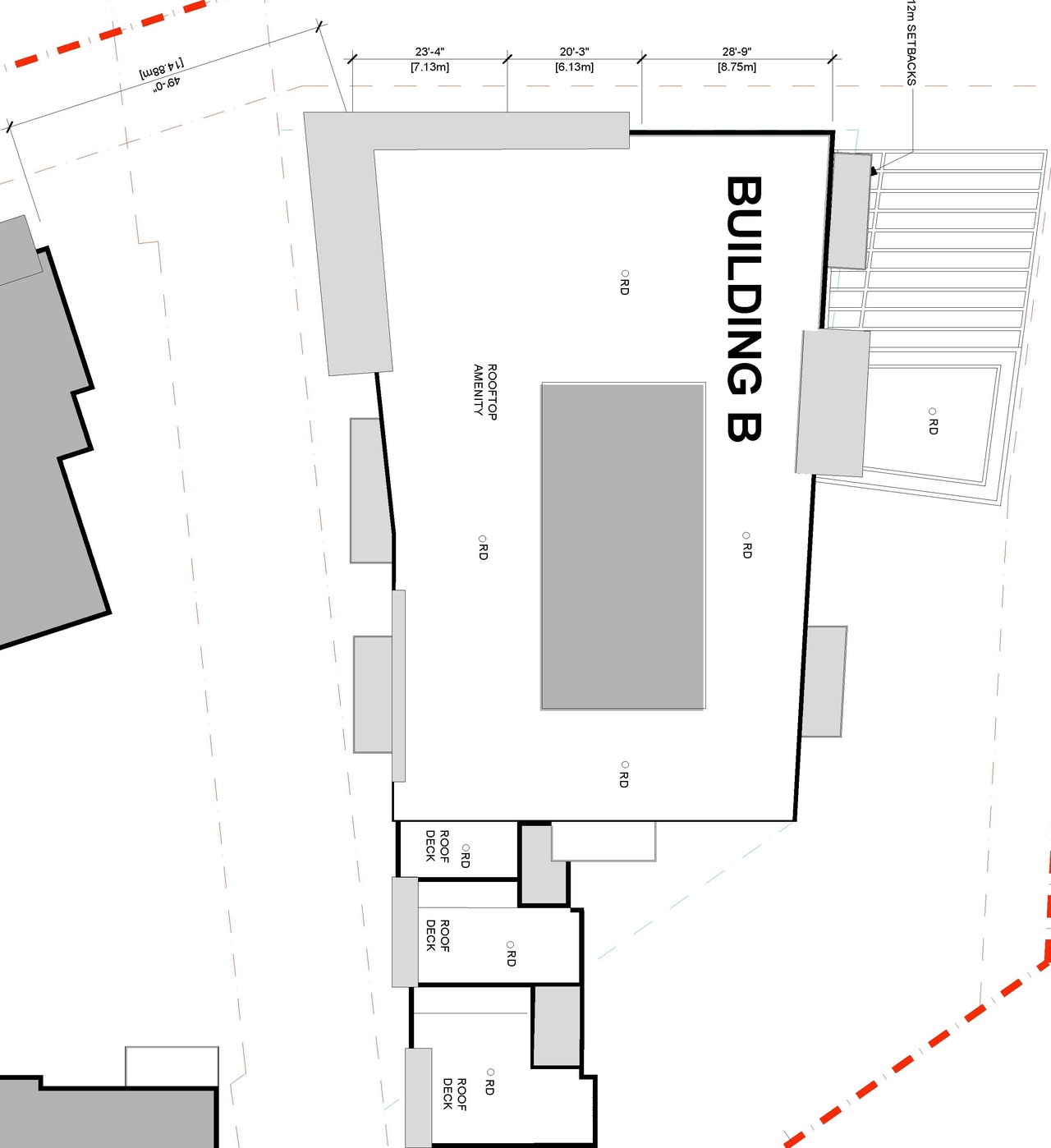
Site Plans, Elevations and Floor Plans#

  • Image from page 23 of the file '2021-11-26 - Design Brief - D07-12-21-0214'
  • Image from page 28 of the file '2023-03-23 - Design Brief - D07-12-21-0214'
  • Image from page 28 of the file '2023-09-28 - Design Brief - D07-12-21-0214'
  • Image from page 26 of the file '2023-03-23 - Design Brief - D07-12-21-0214'
  • Image from page 11 of the file '2023-09-28 - Floor, Elevation and View Plans - D07-12-21-0214'
  • Image from page 25 of the file '2023-05-15 - Design Brief -D07-12-21-0214'
  • Image from page 26 of the file '2023-09-28 - Design Brief - D07-12-21-0214'
  • Image from page 27 of the file '2023-05-15 - Design Brief -D07-12-21-0214'
  • Image from page 13 of the file '2023-09-28 - Floor, Elevation and View Plans - D07-12-21-0214'
  • Image from page 27 of the file '2022-07-12 - Design Brief - D07-12-21-0214'
  • Image from page 22 of the file '2021-11-26 - Design Brief - D07-12-21-0214'
  • Image from page 21 of the file '2021-11-26 - Design Brief - D07-12-21-0214'
  • Image from page 25 of the file '2023-09-28 - Design Brief - D07-12-21-0214'
  • Image from page 26 of the file '2022-07-12 - Design Brief - D07-12-21-0214'
  • Image from page 24 of the file '2022-07-12 - Design Brief - D07-12-21-0214'
  • Image from page 12 of the file '2023-09-28 - Floor, Elevation and View Plans - D07-12-21-0214'
  • Image from page 25 of the file '2022-07-12 - Design Brief - D07-12-21-0214'
  • Image from page 27 of the file '2023-09-28 - Design Brief - D07-12-21-0214'
  • Construction site plan for project from page 14 of the file '2021-11-26 - Design Brief - D07-12-21-0214'
  • Construction site plan for project from page 1 of the file '2023-09-28 - Floor, Elevation and View Plans - D07-12-21-0214'
  • Construction site plan for project from page 2 of the file '2021-11-26 - Floor Plans - D07-12-21-0214'
  • Construction site plan for project from page 10 of the file '2022-07-12 - Design Brief - D07-12-21-0214'
  • Construction site plan for project from page 16 of the file '2022-07-12 - Design Brief - D07-12-21-0214'
  • Construction site plan for project from page 8 of the file '2021-11-26 - Design Brief - D07-12-21-0214'
  • Construction site plan for project from page 7 of the file '2023-09-28 - Design Brief - D07-12-21-0214'
  • Construction site plan for project from page 3 of the file '2024-07-02 - Roof and Floor Plans - Phase 1 & 2 - D07-12-21-0214'
  • Construction site plan for project from page 9 of the file '2023-09-28 - Floor, Elevation and View Plans - D07-12-21-0214'
  • Construction site plan for project from page 3 of the file '2024-07-02 - Roof and Floor Plans - Phase 1 & 2 - D07-12-21-0214'
  • Construction site plan for project from page 2 of the file '2024-07-02 - Roof and Floor Plans - Building A Phase 1 - D07-12-21-0214'
  • Construction site plan for project from page 4 of the file '2021-11-26 - Floor Plans - D07-12-21-0214'
  • Construction site plan for project from page 1 of the file '2024-07-02 - Roof and Floor Plans - Building A Phase 1 - D07-12-21-0214'
  • Construction site plan for project from page 2 of the file '2023-09-28 - Design Brief - D07-12-21-0214'
  • Floor plan for project from page 3 of the file '2024-07-02 - Roof and Floor Plans - Building A Phase 1 - D07-12-21-0214'
  • Floor plan for project from page 22 of the file '2023-09-28 - Design Brief - D07-12-21-0214'
  • Floor plan for project from page 19 of the file '2021-11-26 - Design Brief - D07-12-21-0214'
  • Floor plan for project from page 17 of the file '2021-11-26 - Design Brief - D07-12-21-0214'
  • Floor plan for project from page 1 of the file '2021-11-26 - Floor Plans - D07-12-21-0214'
  • Image from page 23 of the file '2021-11-26 - Design Brief - D07-12-21-0214'
  • Image from page 28 of the file '2023-03-23 - Design Brief - D07-12-21-0214'
  • Image from page 28 of the file '2023-09-28 - Design Brief - D07-12-21-0214'
  • Image from page 26 of the file '2023-03-23 - Design Brief - D07-12-21-0214'
  • Image from page 11 of the file '2023-09-28 - Floor, Elevation and View Plans - D07-12-21-0214'
  • Image from page 25 of the file '2023-05-15 - Design Brief -D07-12-21-0214'
  • Image from page 26 of the file '2023-09-28 - Design Brief - D07-12-21-0214'
  • Image from page 27 of the file '2023-05-15 - Design Brief -D07-12-21-0214'
  • Image from page 13 of the file '2023-09-28 - Floor, Elevation and View Plans - D07-12-21-0214'
  • Image from page 27 of the file '2022-07-12 - Design Brief - D07-12-21-0214'
  • Image from page 22 of the file '2021-11-26 - Design Brief - D07-12-21-0214'
  • Image from page 21 of the file '2021-11-26 - Design Brief - D07-12-21-0214'
  • Image from page 25 of the file '2023-09-28 - Design Brief - D07-12-21-0214'
  • Image from page 26 of the file '2022-07-12 - Design Brief - D07-12-21-0214'
  • Image from page 24 of the file '2022-07-12 - Design Brief - D07-12-21-0214'
  • Image from page 12 of the file '2023-09-28 - Floor, Elevation and View Plans - D07-12-21-0214'
  • Image from page 25 of the file '2022-07-12 - Design Brief - D07-12-21-0214'
  • Image from page 27 of the file '2023-09-28 - Design Brief - D07-12-21-0214'
  • Construction site plan for project from page 14 of the file '2021-11-26 - Design Brief - D07-12-21-0214'
  • Construction site plan for project from page 1 of the file '2023-09-28 - Floor, Elevation and View Plans - D07-12-21-0214'
  • Construction site plan for project from page 2 of the file '2021-11-26 - Floor Plans - D07-12-21-0214'
  • Construction site plan for project from page 10 of the file '2022-07-12 - Design Brief - D07-12-21-0214'
  • Construction site plan for project from page 16 of the file '2022-07-12 - Design Brief - D07-12-21-0214'
  • Construction site plan for project from page 8 of the file '2021-11-26 - Design Brief - D07-12-21-0214'
  • Construction site plan for project from page 7 of the file '2023-09-28 - Design Brief - D07-12-21-0214'
  • Construction site plan for project from page 3 of the file '2024-07-02 - Roof and Floor Plans - Phase 1 & 2 - D07-12-21-0214'
  • Construction site plan for project from page 9 of the file '2023-09-28 - Floor, Elevation and View Plans - D07-12-21-0214'
  • Construction site plan for project from page 3 of the file '2024-07-02 - Roof and Floor Plans - Phase 1 & 2 - D07-12-21-0214'
  • Construction site plan for project from page 2 of the file '2024-07-02 - Roof and Floor Plans - Building A Phase 1 - D07-12-21-0214'
  • Construction site plan for project from page 4 of the file '2021-11-26 - Floor Plans - D07-12-21-0214'
  • Construction site plan for project from page 1 of the file '2024-07-02 - Roof and Floor Plans - Building A Phase 1 - D07-12-21-0214'
  • Construction site plan for project from page 2 of the file '2023-09-28 - Design Brief - D07-12-21-0214'
  • Floor plan for project from page 3 of the file '2024-07-02 - Roof and Floor Plans - Building A Phase 1 - D07-12-21-0214'
  • Floor plan for project from page 22 of the file '2023-09-28 - Design Brief - D07-12-21-0214'
  • Floor plan for project from page 19 of the file '2021-11-26 - Design Brief - D07-12-21-0214'
  • Floor plan for project from page 17 of the file '2021-11-26 - Design Brief - D07-12-21-0214'
  • Floor plan for project from page 1 of the file '2021-11-26 - Floor Plans - D07-12-21-0214'

Additional Information#

Date Initiated2021-11-26
WardWard 11 - Tim Tierney
All Addresses1125 Cyrville Rd.
1129 Cyrville Rd.
1149 Cyrville Rd.

Documents#

TypeDocument
Application Summary2021-12-13 - Application Summary - D07-12-21-0214
Architectural Plans2024-08-09 - Approved Site Plan - D07-12-21-0214
Architectural Plans2024-08-09 - Approved Sanitary Drainage Area Plan - D07-12-21-0214
Architectural Plans2024-08-09 - Approved Notes and Legends Plan - D07-12-21-0214
Architectural Plans2024-08-09 - Approved Elevations - D07-12-21-0214
Architectural Plans2024-07-17 - Cyrville Road building A site plan - D07-12-21-0214
Architectural Plans2024-07-02 - Site Plan - Phase 1 & 2 - D07-12-21-0214
Architectural Plans2024-07-02 - Site Plan - Building A Phase 1 - D07-12-21-0214
Architectural Plans2024-07-02 - Elevations - Phase 1 & 2 - D07-12-21-0214
Architectural Plans2024-07-02 - Elevations - Building A Phase 1 - D07-12-21-0214
Architectural Plans2024-06-20 - Site plan - D07-12-21-0214
Architectural Plans2024-06-20 - SANITARY DRAINAGE AREA PLAN - D07-12-21-0214
Architectural Plans2024-06-20 - Roof Plan - D07-12-21-0214
Architectural Plans2024-06-20 - Notes and Legends Plan - D07-12-21-0214
Architectural Plans2024-06-20 - North and South Elevations Plan - D07-12-21-0214
Architectural Plans2024-06-20 - East and West Elevations - D07-12-21-0214
Architectural Plans2024-06-20 - Courtyard Elevations - D07-12-21-0214
Architectural Plans2024-05-13 - Site Plan - D07-12-21-0214
Architectural Plans2024-05-01 - Site Plan - D07-12-21-0214
Architectural Plans2024-01-29 - Sanitary Drainage Area Plan - D07-12-21-0214
Architectural Plans2024-01-29 - Notes and Legends Plan - D07-12-21-0214
Architectural Plans2023-12-01 - Site Plans - D07-12-21-0214
Architectural Plans2023-12-01 - Sanitary Drainage Area Plan - D07-12-21-0214
Architectural Plans2023-12-01 - Notes and Legends Plan - D07-12-21-0214
Architectural Plans2023-09-28 - Sanitary Drainage Area Plan - D07-12-21-0214
Architectural Plans2023-09-28 - Notes and Legends Plan - D07-12-21-0214
Architectural Plans2023-05-15 - Site Plan - D07-12-21-0214
Architectural Plans2023-03-23 - Sanitary Drainage Area Plan - D07-12-21-0214
Architectural Plans2023-03-23 - Notes & Legends Plan -D07-12-21-0214
Architectural Plans2023-03-23 - Site Plan and Architectural Package - D07-12-21-0214
Architectural Plans2022-12-14 - Site Plan - D07-12-21-0214
Architectural Plans2022-12-14 - Elevations - D07-12-21-0214
Architectural Plans2022-12-05- Servicing Plan - D07-12-21-0214
Architectural Plans2022-12-05 - Site Plan Sheet A1 - D07-12-21-0214
Architectural Plans2022-12-05 - Plan Ground Floor - D07-12-21-0214
Architectural Plans2022-12-05 - PARKING PLAN - D07-12-21-0214 (2)
Architectural Plans2022-12-05 - PARKING PLAN - D07-12-21-0214
Architectural Plans2022-12-05 - Notes & Legends Plan - D07-12-21-0214
Architectural Plans2022-07-12 - Site Plan - D07-12-21-0214
Architectural Plans2022-05-30 - Sanitary Drainage Area Plan - D07-12-21-0214
Architectural Plans2022-05-30 - Notes & Legends Plan - D07-12-21-0214
Architectural Plans2022-05-30 - Key Plan - D07-12-21-0214
Architectural Plans2022–12-05 - Sanitary Drainage Plan - D07-12-21-0214
Architectural Plans2021-12-08 - Parking Plans - D07-12-21-0214
Architectural Plans2021-11-26 - Site Plan - D07-12-21-0214
Architectural Plans2021-11-26 - Sanitary Drainage Plan - D07-12-21-0214
Architectural Plans2021-11-26 - Remedial Action Plan - D07-12-21-0214
Architectural Plans2021-11-26 - Elevations IV - D07-12-21-0214
Architectural Plans2021-11-26 - Elevations III - D07-12-21-0214
Architectural Plans2021-11-26 - Elevations II - D07-12-21-0214
Architectural Plans2021-11-26 - Elevations I - D07-12-21-0214
Cover Letter2024-01-29 - Cover Sheet - D07-12-21-0214
Design Brief2023-09-28 - Design Brief - D07-12-21-0214
Design Brief2023-05-15 - Design Brief -D07-12-21-0214
Design Brief2023-03-23 - Design Brief - D07-12-21-0214
Design Brief2022-07-12 - Design Brief - D07-12-21-0214
Design Brief2021-11-26 - Design Brief - D07-12-21-0214
Environmental2021-11-26 - Phase II Environmental Site Assessment - D07-12-21-0214
Environmental2021-11-26 - Phase 1 Environmental Site Assessment - D07-12-21-0214
Erosion And Sediment Control Plan2024-08-09 - Approved Erosion Control Plan and Detail Sheet - D07-12-21-0214
Erosion And Sediment Control Plan2024-06-20 - Erosion Control Plan and Detail Sheet - D07-12-21-0214
Erosion And Sediment Control Plan2024-01-29 - Erosion Control Plan and Detail Sheet - D07-12-21-0214
Erosion And Sediment Control Plan2023-12-01 - Erosion Control Plan and Details Sheet - D07-12-21-0214
Erosion And Sediment Control Plan2023-09-28 - Erosion Control Plan - D07-12-21-0214
Erosion And Sediment Control Plan2023-03-23 - Erosion Control Plan & Detail Sheet - D07-12-21-0214
Erosion And Sediment Control Plan2022-12-05 - Erosion Control Plan - D07-12-21-0214
Erosion And Sediment Control Plan2022-05-30 - Erosion Control Plan & Detail Sheet - D07-12-21-0214
Erosion And Sediment Control Plan2021-11-26 - Erosion Control Plan - D07-12-21-0214
Existing Conditions2024-08-09 - Approved Existing Conditions and Removals Plan - D07-12-21-0214
Existing Conditions2024-06-20 - Existing Conditions and Removals Plan - D07-12-21-0214
Existing Conditions2024-01-29 - Existing Conditions and Removals Plan - D07-12-21-0214
Existing Conditions2023-12-01 - Existing Conditions and Removals Plan - D07-12-21-0214
Existing Conditions2023-09-28 - Existing Trunk Sewer Settlement Monitoring Program - D07-12-21-0214
Existing Conditions2023-09-28 - Existing Conditions and Removals Plan - D07-12-21-0214
Existing Conditions2023-03-23 - Existing Conditions & Removals Plan - D07-12-21-0214
Existing Conditions2022-12-05 - Existing Conditions & Removal Plan - D07-12-21-0214
Existing Conditions2022-05-30 - Existing Conditions & Removals Plan - D07-12-21-0214
Existing Conditions2021-11-26 - Existing Conditions and Removals - D07-12-21-0214
Floor Plan2024-07-02 - Roof and Floor Plans - Phase 1 & 2 - D07-12-21-0214
Floor Plan2024-07-02 - Roof and Floor Plans - Building A Phase 1 - D07-12-21-0214
Floor Plan2024-06-20 - Floor Plan - D07-12-21-0214 (2)
Floor Plan2024-06-20 - Floor Plan - D07-12-21-0214
Floor Plan2021-11-26 - Floor Plans - D07-12-21-0214
Geotechnical Report2024-08-09 - Approved Grading Plan - D07-12-21-0214
Geotechnical Report2024-06-20 - Grading Plan - D07-12-21-0214
Geotechnical Report2024-05-08 - Grading Plan - D07-12-21-0214
Geotechnical Report2024-01-29 - Grading Plan - D07-12-21-0214
Geotechnical Report2024-01-15 - Grading Plan - D07-12-21-0214 (2)
Geotechnical Report2024-01-15 - Grading Plan - D07-12-21-0214
Geotechnical Report2023-12-01 - Grading Plan - D07-12-21-0214
Geotechnical Report2023-09-28 - Grading Plan - D07-12-21-0214
Geotechnical Report2023-09-28 - Geotechnical Investigation - D07-12-21-0214
Geotechnical Report2023-03-23 - Grading Plan - D07-12-21-0214
Geotechnical Report2022-12-05 - Grading Plan - D07-12-21-0214
Geotechnical Report2022-05-30 - Grading Plan - D07-12-21-0214
Geotechnical Report2021-11-26 - Grading Plan - D07-12-21-0214
Geotechnical Report2021-11-26 - Geotechncial - D07-12-21-0214
Landscape Plan2024-07-02 - Landscape Plan & TCR Phase 1 & 2 - D07-12-21-0214
Landscape Plan2023-03-23 - Landscape Sections 3&4 - D07-12-21-0214
Landscape Plan2023-03-23 - Landscape Sections 1&2 - D07-12-21-0214
Landscape Plan2022-12-12 - Landscape Plan - D07-12-21-0214
Landscape Plan2021-11-26 - Landscape Plan - D07-12-21-0214
Noise Study2023-03-23 - Noise Attenuation Study - D07-12-21-0214
Noise Study2023-01-16 - Noise Attenuation Study - D02-02-21-0147
Noise Study2021-11-26 - Noise - D07-12-21-0214
Planning2023-03-23 - Planning Rationale - D07-12-21-0214
Planning2022-12-05 - Planning Revision - D07-12-21-0214
Planning2022-07-12 - Planning Rationale - D07-12-21-0214
Planning2021-12-08 - Planning Rationale - D07-12-21-0214
Rendering2023-09-28 - Floor, Elevation and View Plans - D07-12-21-0214
Rendering2022-12-05 -Aerial Views Sheet A53 - D07-12-21-0214
Rendering2022-12-05 - Aerial Views Sheet A55 - D07-12-21-0214
Rendering2022-12-05 - Aerial Views Sheet A54 - D07-12-21-0214
Rendering2022-12-05 - Aerial Views Sheet A5 - D07-12-21-0214
Rendering2022-12-05 - Aerial View A52 - D07-12-21-0214
Rendering2022-12-05 - Aerial Views Sheet A51 - D07-12-21-0214
Shadow Study2021-11-26 - Shadow Study - D07-12-21-0214
Site Servicing2024-08-09 - Approved Site Servicing Plan - D07-12-21-0214
Site Servicing2024-08-09 - Approved Servicing and SWM Report - D07-12-21-0214
Site Servicing2024-06-20 - Site Servicing Plan - D07-12-21-0214
Site Servicing2024-06-20 - Servicing and Stormwater Management Plan - D07-12-21-0214
Site Servicing2024-05-08 - Site Servicing Plan - D07-12-21-0214
Site Servicing2024-01-29 - Site Servicing Plan - D07-12-21-0214
Site Servicing2024-01-15 - Site Servicing Plan - D07-12-21-0214 (2)
Site Servicing2024-01-15 - Site Servicing Plan - D07-12-21-0214
Site Servicing2023-12-01 - Site Servicing Plan - D07-12-21-0214
Site Servicing2023-09-28 - Site Servicing Plan - D07-12-21-0214
Site Servicing2023-03-23 - Site Servicing Plan - D07-12-21-0214
Site Servicing2023-03-23 - Servicing & Stormwater Management Report - D07-12-21-0214
Site Servicing2022-12-05 - Servicing & Stormwater Management Report - D07-12-21-0214
Site Servicing2022-05-30 - Site Servicing Plan - D07-12-21-0214
Site Servicing2022-05-30 - Servicing & Stormwater Management Report - D07-12-21-0214
Site Servicing2021-11-26 - Site Servicing Plan - D07-12-21-0214
Site Servicing2021-11-26 - Servicing and Stormwater Report Appendices - D07-12-21-0214
Site Servicing2021-11-26 - Servicing and Stormwater Report - D07-12-21-0214
Stormwater Management2024-08-09 - Approved Storm Drainage Area Plan - D07-12-21-0214
Stormwater Management2024-06-20 - STORM DRAINAGE AREA PLAN - D07-12-21-0214
Stormwater Management2024-01-29 - Storm Drainage Area Plan - D07-12-21-0214
Stormwater Management2023-12-01 - Storm Drainage Area Plan - D07-12-21-0214
Stormwater Management2023-09-28 - Storm Drainage Area Plan - D07-12-21-0214
Stormwater Management2023-03-23 - Storm Drainage Area Plan -D07-12-21-0214
Stormwater Management2022-12-05 - Storm Drainage Plan - D07-12-21-0214
Stormwater Management2022-05-30 - Storm Drainage Area Plan - D07-12-21-0214
Stormwater Management2021-11-26 - Storm Drainage Plan - D07-12-21-0214
Surveying2021-11-26 - Topographic - D07-12-21-0214
Surveying2021-11-26 - Boundary Survey -D07-12-21-0214
Transportation Analysis2021-11-26 - Transportation Impact Assessment - D07-12-21-0214
Tree Information and Conservation2024-08-09 - Approved Tree Conservation Report & Landscape Plan - D07-12-21-0214
Tree Information and Conservation2024-07-02 - Landscape Plan & TCR - Building A Phase 1 - D07-12-21-0214
Tree Information and Conservation2023-09-28 - Tree Conservation Report and Landscape Plan - D07-12-21-0214
Tree Information and Conservation2023-03-23 - Tree Conservation Report - D07-12-21-0214
Tree Information and Conservation2022-07-12 - Tree Conservation & Landscape Plan - D07-12-21-0214
Wind Study2022-12-14 - Pedestrian Level Wind Study - D07-12-21-0214
Wind Study2022-12-05 - Pedestrian Wind Study - D07-12-21-0214
Wind Study2022-02-03 - Wind Study - D07-12-21-0214
2024-08-09 - Signed Delegated Authority Report - D07-12-21-0214
2024-07-18 - 4R36259 - D07-12-21-0214
2024-07-17 - Cyrville Stirling Group L1 - D07-12-21-0214
2024-07-02 - Code Analysis and Project Data - Building A Phase 1 - D07-12-21-0214
2024-06-20 - Cover Page - D07-12-21-0214
2024-06-20 - CODE ANALYSIS AND PROJECT DATA BUILDING A- PHASE 1 - D07-12-21-0214
2023-12-01 - Retaining Wall Options - D07-12-21-0214
2023-12-01 - Cover Page - D07-12-21-0214
2023-09-28 - Cover Page - D07-12-21-0214
2023-03-23 - Cover Page -D07-12-21-0214
2022-12-05- Tirle Page - D07-12-21-0214
2022-05-30 - Conceptual Design - D07-12-21-0214
2021-12-08 - Section 37 memo - D07-12-21-0214
2021-11-26 - Project Data Sheet - D07-12-21-0214
2021-11-26 - Notes - D07-12-21-0214