Ottawa Development Projects

3996 Innes Rd.#

Last updated: 2026-02-27 ยท ID: D07-12-21-0209

Summary#

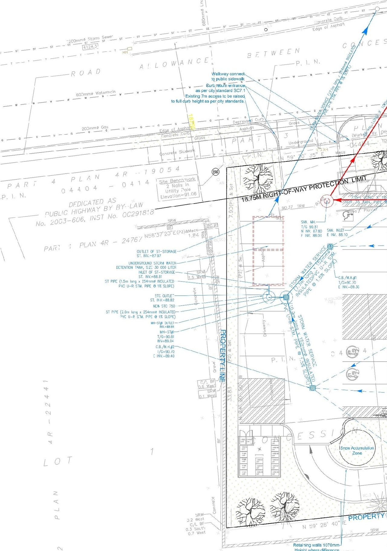
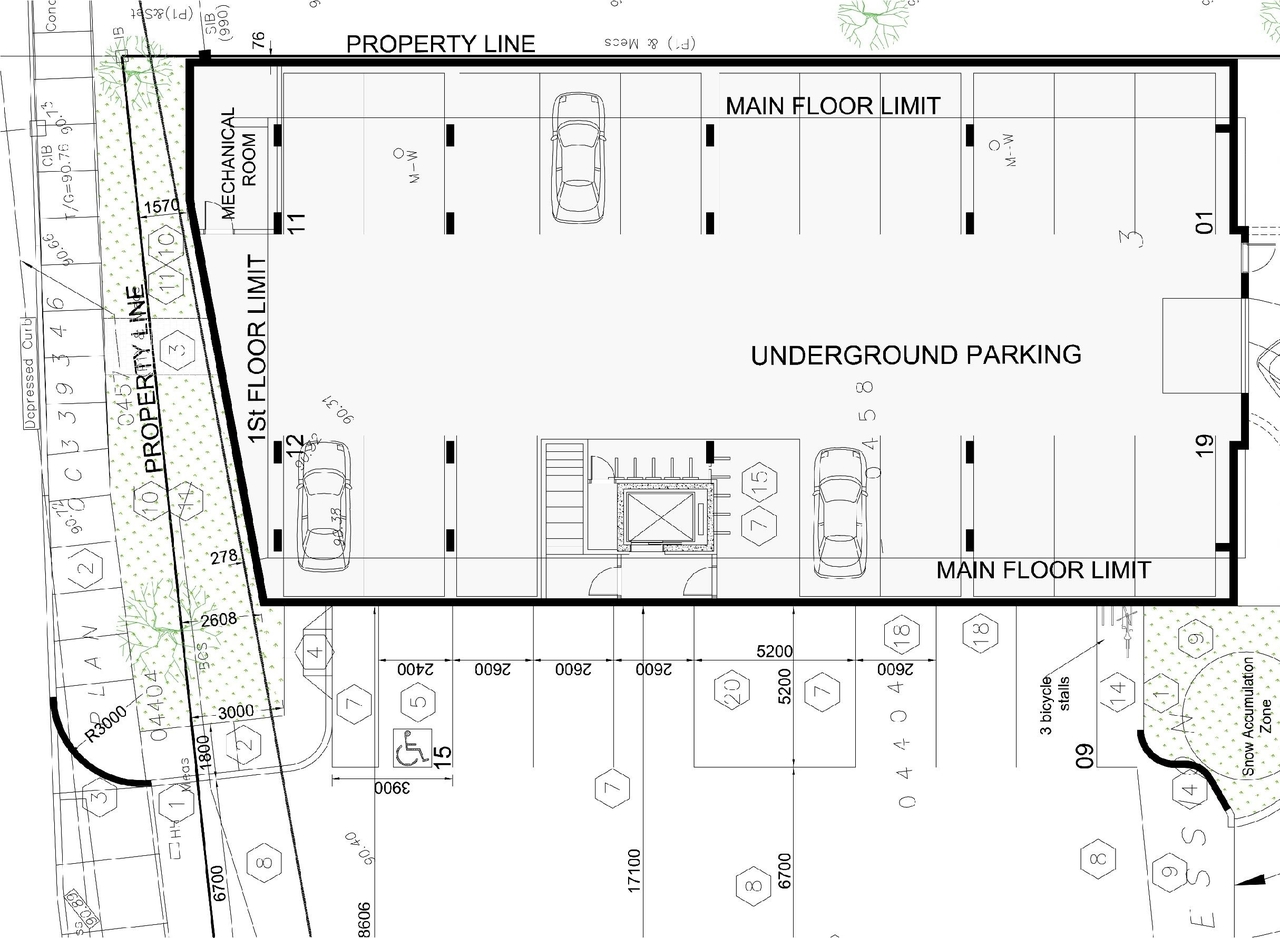
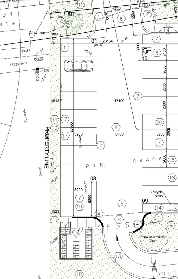
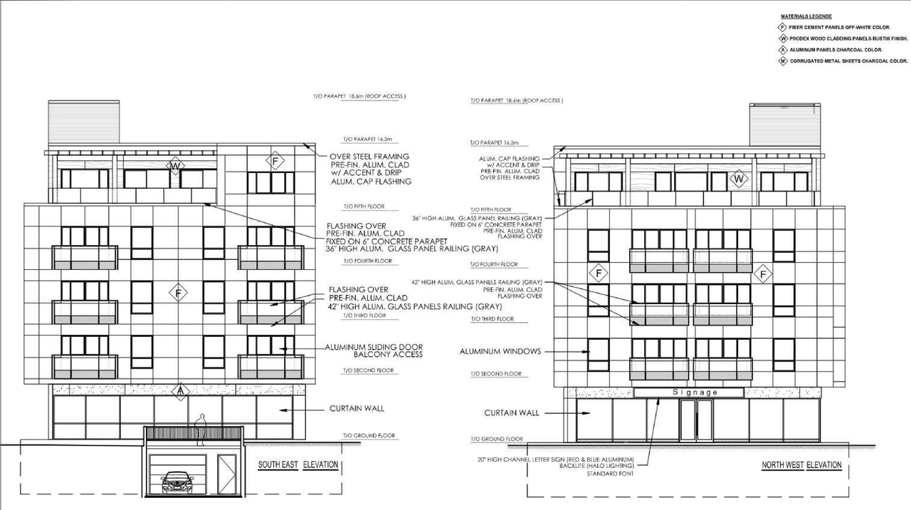
A Site Plan Control application to construct a 5-storey, mixed-use building comprising 369 m2 GFA of medical and pharmacy uses on the ground floor and 20 residential apartment units on the floors above. A total of 34 surface and underground parking spaces is provided.

Status
Post Approval (Receipt of Agreement from Owner Pending)

Renders#

Location#

Select a marker to view the address.

Site Plans, Elevations and Floor Plans#

  • Image from page 14 of the file '2022-01-27 - UDRP Submission-rev3 - D07-12-21-0209'
  • Image from page 13 of the file '2022-01-27 - UDRP Submission-rev3 - D07-12-21-0209'
  • Image from page 21 of the file '2022-01-27 - UDRP Submission-rev3 - D07-12-21-0209'
  • Image from page 13 of the file '2021-12-02 - Design Brief - D07-12-21-0209'
  • Image from page 12 of the file '2022-01-27 - UDRP Submission-rev3 - D07-12-21-0209'
  • Image from page 20 of the file '2022-01-27 - UDRP Submission-rev3 - D07-12-21-0209'
  • Image from page 2 of the file '2022-07-11 - Rendering - D07-12-21-0209'
  • Construction site plan for project from page 24 of the file '2022-01-27 - UDRP Submission-rev3 - D07-12-21-0209'
  • Construction site plan for project from page 28 of the file '2022-01-27 - UDRP Submission-rev3 - D07-12-21-0209'
  • Construction site plan for project from page 12 of the file '2023-01-10 - Urban Design Review Panel Comments (UDRP) - D07-12-21-0209'
  • Construction site plan for project from page 27 of the file '2022-01-27 - UDRP Submission-rev3 - D07-12-21-0209'
  • Construction site plan for project from page 3 of the file '2023-01-10 - Urban Design Review Panel Comments (UDRP) - D07-12-21-0209'
  • Construction site plan for project from page 19 of the file '2022-01-27 - UDRP Submission-rev3 - D07-12-21-0209'
  • Construction site plan for project from page 23 of the file '2022-01-27 - UDRP Submission-rev3 - D07-12-21-0209'
  • Construction site plan for project from page 14 of the file '2021-12-02 - Design Brief - D07-12-21-0209'
  • Construction site plan for project from page 22 of the file '2022-01-27 - UDRP Submission-rev3 - D07-12-21-0209'
  • Construction site plan for project from page 10 of the file '2022-01-27 - UDRP Submission-rev3 - D07-12-21-0209'
  • Construction site plan for project from page 8 of the file '2022-01-27 - UDRP Submission-rev3 - D07-12-21-0209'
  • Construction site plan for project from page 25 of the file '2022-01-27 - UDRP Submission-rev3 - D07-12-21-0209'
  • Construction site plan for project from page 4 of the file '2023-01-10 - Urban Design Review Panel Comments (UDRP) - D07-12-21-0209'
  • Construction site plan for project from page 1 of the file '2023-01-10 - Urban Design Review Panel Comments (UDRP) - D07-12-21-0209'
  • Construction site plan for project from page 5 of the file '2022-01-27 - UDRP Submission-rev3 - D07-12-21-0209'
  • Construction site plan for project from page 17 of the file '2021-12-02 - Design Brief - D07-12-21-0209'
  • Image from page 14 of the file '2022-01-27 - UDRP Submission-rev3 - D07-12-21-0209'
  • Image from page 13 of the file '2022-01-27 - UDRP Submission-rev3 - D07-12-21-0209'
  • Image from page 21 of the file '2022-01-27 - UDRP Submission-rev3 - D07-12-21-0209'
  • Image from page 13 of the file '2021-12-02 - Design Brief - D07-12-21-0209'
  • Image from page 12 of the file '2022-01-27 - UDRP Submission-rev3 - D07-12-21-0209'
  • Image from page 20 of the file '2022-01-27 - UDRP Submission-rev3 - D07-12-21-0209'
  • Image from page 2 of the file '2022-07-11 - Rendering - D07-12-21-0209'
  • Construction site plan for project from page 24 of the file '2022-01-27 - UDRP Submission-rev3 - D07-12-21-0209'
  • Construction site plan for project from page 28 of the file '2022-01-27 - UDRP Submission-rev3 - D07-12-21-0209'
  • Construction site plan for project from page 12 of the file '2023-01-10 - Urban Design Review Panel Comments (UDRP) - D07-12-21-0209'
  • Construction site plan for project from page 27 of the file '2022-01-27 - UDRP Submission-rev3 - D07-12-21-0209'
  • Construction site plan for project from page 3 of the file '2023-01-10 - Urban Design Review Panel Comments (UDRP) - D07-12-21-0209'
  • Construction site plan for project from page 19 of the file '2022-01-27 - UDRP Submission-rev3 - D07-12-21-0209'
  • Construction site plan for project from page 23 of the file '2022-01-27 - UDRP Submission-rev3 - D07-12-21-0209'
  • Construction site plan for project from page 14 of the file '2021-12-02 - Design Brief - D07-12-21-0209'
  • Construction site plan for project from page 22 of the file '2022-01-27 - UDRP Submission-rev3 - D07-12-21-0209'
  • Construction site plan for project from page 10 of the file '2022-01-27 - UDRP Submission-rev3 - D07-12-21-0209'
  • Construction site plan for project from page 8 of the file '2022-01-27 - UDRP Submission-rev3 - D07-12-21-0209'
  • Construction site plan for project from page 25 of the file '2022-01-27 - UDRP Submission-rev3 - D07-12-21-0209'
  • Construction site plan for project from page 4 of the file '2023-01-10 - Urban Design Review Panel Comments (UDRP) - D07-12-21-0209'
  • Construction site plan for project from page 1 of the file '2023-01-10 - Urban Design Review Panel Comments (UDRP) - D07-12-21-0209'
  • Construction site plan for project from page 5 of the file '2022-01-27 - UDRP Submission-rev3 - D07-12-21-0209'
  • Construction site plan for project from page 17 of the file '2021-12-02 - Design Brief - D07-12-21-0209'

Additional Information#

Date Initiated2021-11-24
WardWard 19 - Catherine Kitts

Documents#

TypeDocument
Adequacy Of Public Services2023-01-10 - Adequacy of Public Servicing Report - D07-12-21-0209
Application Summary2021-12-23 - Application Summary - D07-12-21-0209
Architectural Plans2023-04-25 - Underground Parking & Basement Plan - D07-12-21-0209
Architectural Plans2023-04-25 - Site Plan - D07-12-21-0209
Architectural Plans2023-01-10 - Underground Parking Basement Plans - D07-12-21-0209
Architectural Plans2023-01-10 - Site Plan - D07-12-21-0209
Architectural Plans2023-01-10 - Elevation - D07-12-21-0209
Architectural Plans2022-09-16 - Site Plan and Elevation - D07-12-21-0209
Architectural Plans2022-07-11 - Underground Parking Basement Plan - D07-12-21-0209
Architectural Plans2022-07-11 - Proposed Site Plan - D07-12-21-0209
Architectural Plans2022-07-11 - Elevations - D07-12-21-0209
Architectural Plans2021-12-02 - Watershed Plan - D07-12-21-0209
Architectural Plans2021-12-02 - Site Plan - D07-12-21-0209
Architectural Plans2021-12-02 - Removal Plan - D07-12-21-0209
Architectural Plans2021-12-02 - Elevations - D07-12-21-0209
Architectural Plans2021-12–02 - Basement Plan - D07-12-21-0209
Architectural Plans2024-07-31 - Key plan - D07-12-21-0209
Architectural Plans2024-07-31 - Elevations - D07-12-21-0209
Architectural Plans2024-11-06 - Engineering Plans - D07-12-21-0209
Architectural Plans2024-07-09 - Site Plan & Notes, Elevations - D07-12-21-0209
Architectural Plans2025-05-29 - Architectural Plans - D07-12-21-0209
Civil Engineering Report2025-05-29 - Civil Plans - D07-12-21-0209
Design Brief2023-01-10 - Urban Design Review Panel Comments (UDRP) - D07-12-21-0209
Design Brief2022-01-27 - UDRP Submission-rev3 - D07-12-21-0209
Design Brief2021-12-02 - Design Brief - D07-12-21-0209
Drainage Plan2023-04-25 - Drainage Plan - D07-12-21-0209
Environmental2023-01-10 - Environmental Noise Assessment - D07-12-21-0209
Environmental2022-07-11 - Phase I Environmental Site Assessment - D07-12-21-0209
Environmental2022-07-11 - Environmental Noise Assessment Clarifications - D07-12-21-0209
Environmental2021-12-02 - Phase II Environmental Site Assessment - D07-12-21-0209
Environmental2021-12-02 - Phase I Environmental Site Assessment - D07-12-21-0209
Erosion And Sediment Control Plan2023-04-25 - Erosion & Sediment Control Plan - D07-12-21-0209
Erosion And Sediment Control Plan2023-01-10 - Erosion & Sediment Control Plan - D07-12-21-0209
Erosion And Sediment Control Plan2022-09-20 - Erosion and Sediment Control Plan - D07-12-21-0209
Geotechnical Report2021-12-02 - Grading Plan - D07-12-21-0209
Geotechnical Report2021-12-02 - Geotechnical - D07-12-21-0209
Geotechnical Report2025-05-29 - Geotechnical Investigation - D07-12-21-0209
Landscape Plan2023-04-25 - Landscape & Detail Plans - D07-12-21-0209
Landscape Plan2023-01-10 - Landscape Plan and Details - D07-12-21-0209
Landscape Plan2022-07-11 - Landscape Plan - D07-12-21-0209
Landscape Plan2021-12-02 - Landscape and Detail Plans - D07-12-21-0209
Landscape Plan2024-07-31 - Landscape Plan - D07-12-21-0209
Landscape Plan2024-11-01 - Landscape Plan & Details - D07-12-21-0209
Landscape Plan2025-05-29 - Landscape Plan - D07-12-21-0209
Noise Study2021-12-02 - Noise Study - D07-12-21-0209
Planning2021-12-02 - Planning Rationale - D07-12-21-0209
Rendering2023-01-10 - 3D Rendering - D07-12-21-0209
Rendering2022-07-11 - Rendering - D07-12-21-0209
Site Servicing2025-04-25 - Site Servicing & Grading Plan - D07-12-21-0209
Site Servicing2025-04-25 - Servicing Report - D07-12-21-0209
Site Servicing2023-01-10 - Site Servicing and Grading Plan - D07-12-21-0209
Site Servicing2022-09-20 - Site Servicing and Grading Plan - D07-12-21-0209
Site Servicing2022-09-20 - Servicing Report - D07-12-21-0209
Site Servicing2021-12-02 - Site Servicing Plan - D07-12-21-0209
Site Servicing2021-12-02 - Site Servicing and Stormwater Management Report - D07-12-21-0209
Stormwater Management2024-04-25 - STORMWATER MANAGEMENT REPORT - D07-12-21-0209
Stormwater Management2023-01-10 - Stormwater Management Report - D07-12-21-0209
Stormwater Management2022-09-20 - Stormwater Management Report - D07-12-21-0209
Stormwater Management2024-07-31 - Storm water report Report - D07-12-21-0209
Stormwater Management2024-11-06 - Stormwater Management Report & Servicing Brief - D07-12-21-0209
Stormwater Management2025-05-29 - Stormwater Management Report and Servicing Brief - D07-12-21-0209
Surveying2021-12-02 - Topographic Plan - D07-12-21-0209
Transportation Analysis2021-12-02 - Transportation Impact Assessment - D07-12-21-0209
Tree Information and Conservation2023-04-25 - Tree Conservation Report - D07-12-21-0209
Tree Information and Conservation2023-01-10 - Tree Conservation Report - D07-12-21-0209
Tree Information and Conservation2022-07-11 - Tree Conservation Report - D07-12-21-0209
Tree Information and Conservation2021-12-02 - Tree Conservation Report - D07-12-21-0209
2021-12-02 - Details - D07-12-21-0209
2024-07-31 - Cross Section Guardrail - D07-12-21-0209
2025-05-29 - Retaining Wall & Notes - D07-12-21-0209
2025-05-29 - Delegated Authority Report - D07-12-21-0209