6150-6160 Thunder Rd./5368 Boundary Rd.#
Last updated: 2026-02-05 · ID: D07-12-21-0205
Summary#
Car storage and Auction site. One office and maintanance building
Status
Inactive (Agreement Registered - Final Legal Clearance Given)
Building Scale (Max.)
Based on elevation drawings. Values may be approximate. See sources for exact figures.
Mid-rise · 5 storeys
Data Quality Note
Text was extracted using optical character recognition. This may introduce artifacts or misreads.
· 10.4 m
Data Quality Note
Text was extracted using optical character recognition. This may introduce artifacts or misreads.
Location#
Select a marker to view the address.
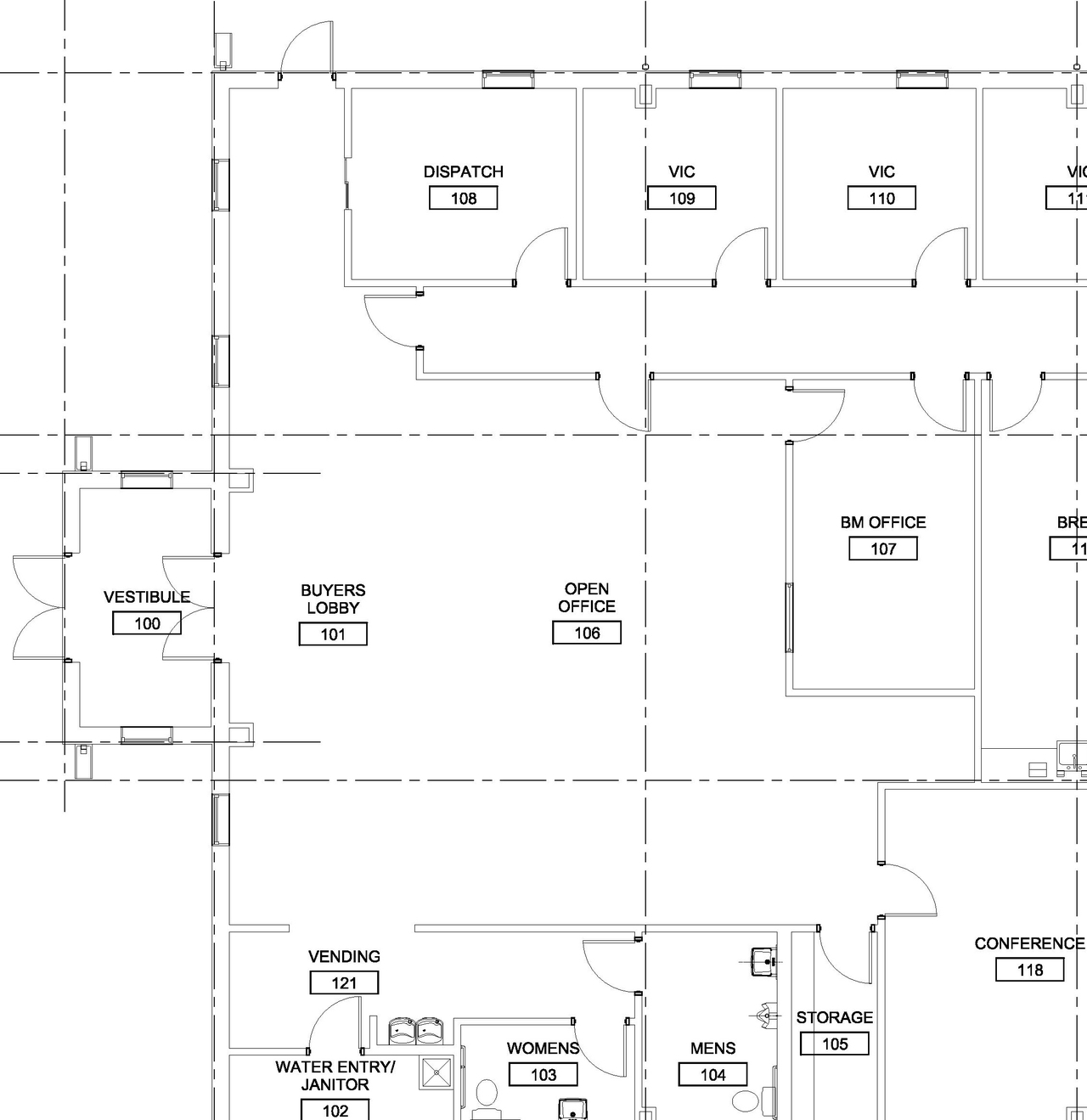
Site Plans, Elevations and Floor Plans#
Additional Information#
| Date Initiated | 2021-11-23 |
| Ward | Ward 20 - Isabelle Skalski |
| All Addresses | 6150 Thunder Rd. 6160 Thunder Rd. 5368 Boundary Rd. |
Documents#
Related Projects#
| Project | Last Updated | Date Initiated |
|---|---|---|
5368 Boundary Rd.6150 Thunder Rd.
D02-02-20-0130 | 2025-06-26 | 2020-12-17 |
5368 Boundary Rd.6150 Thunder Rd.
D01-01-20-0025 | 2023-09-10 | 2020-12-17 |


