Ottawa Development Projects

320 Lees Ave./2 Robinson Ave.#

Last updated: 2025-09-27 · ID: D07-12-21-0202

Summary#

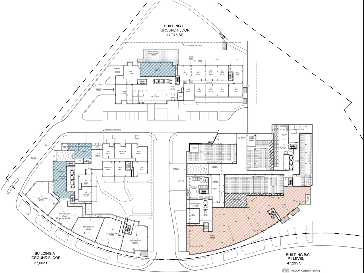
A Site Plan Control application to construct two 28-storey and two 32-storey residential towers atop one- and six-storey mixed-use podiums, containing a total of 1,440 residential units and 2,520 square metres at-grade commercial space, with 988 parking spaces.

Status
Post Approval (Receipt of Agreement from Owner Pending)

Building Scale (Max.) Based on elevation drawings. Values may be approximate. See sources for exact figures.
High-rise · 32 storeys Data Quality Note Text was extracted using optical character recognition. This may introduce artifacts or misreads. · 103 m Data Quality Note Height was partially estimated using visual scale. This may be approximate. Data Quality Note Text was extracted using optical character recognition. This may introduce artifacts or misreads.

Renders#

Location#

Select a marker to view the address.

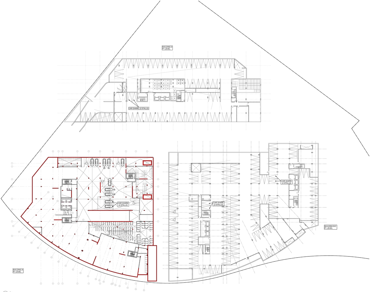
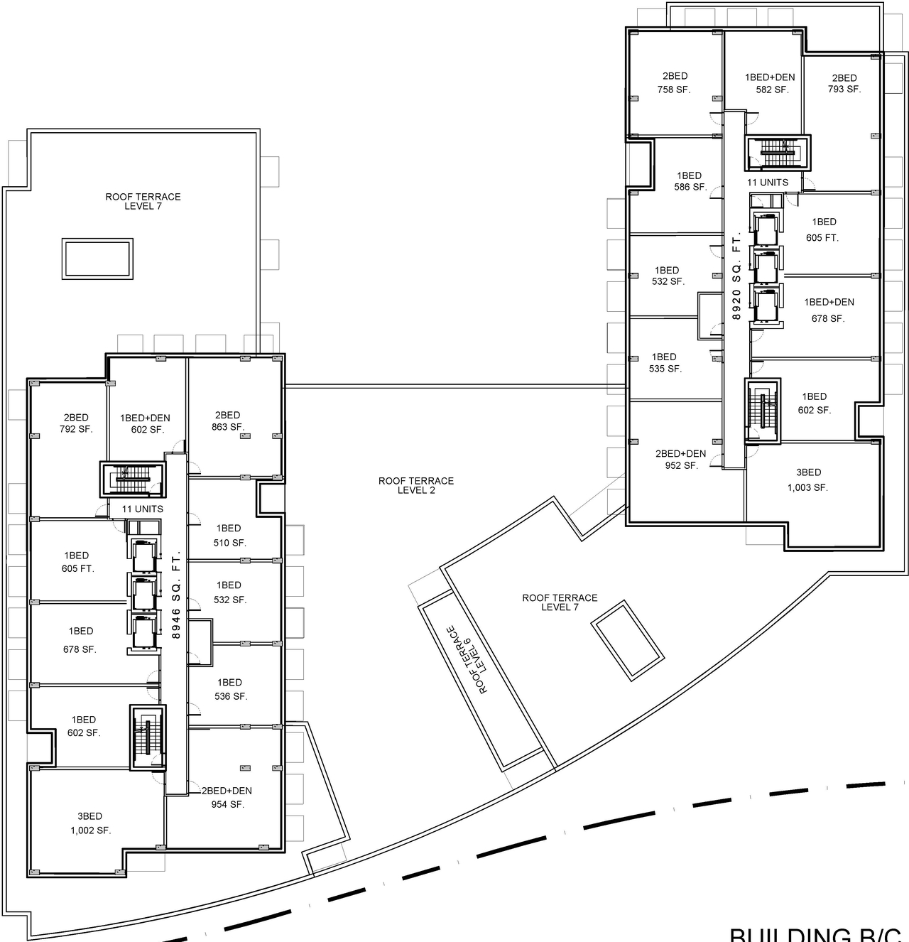
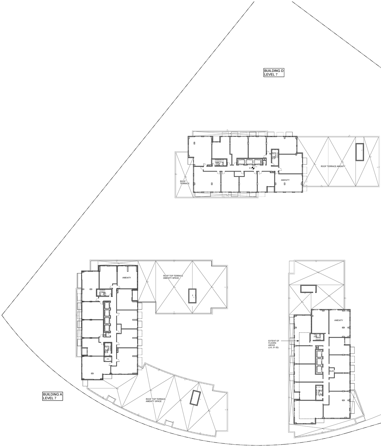
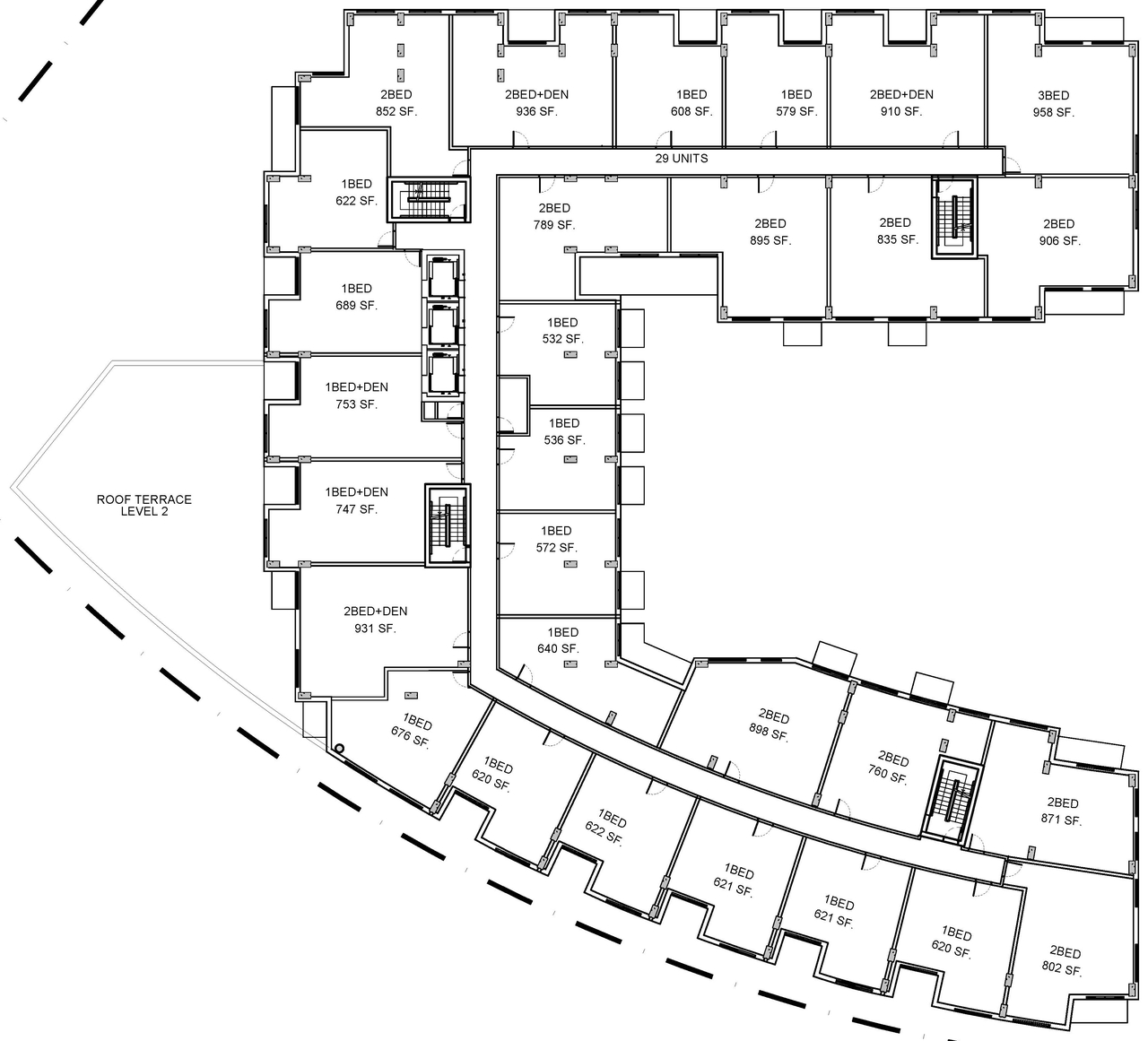
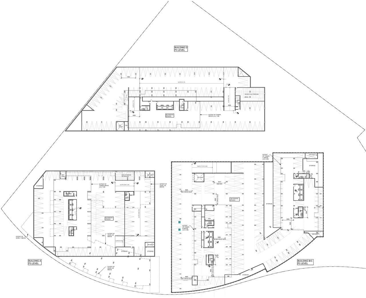
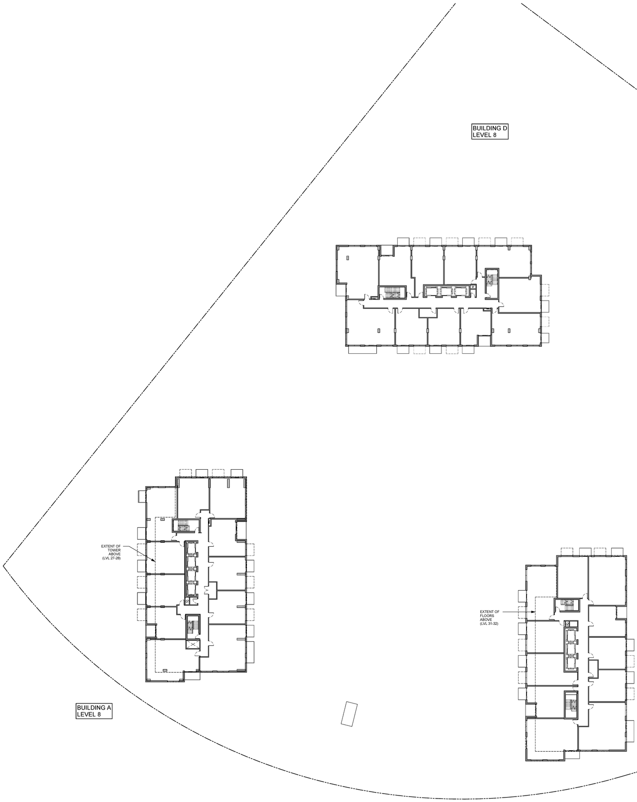
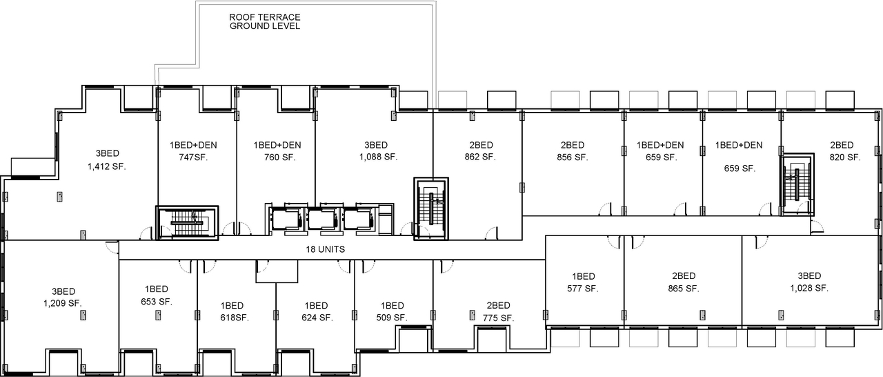
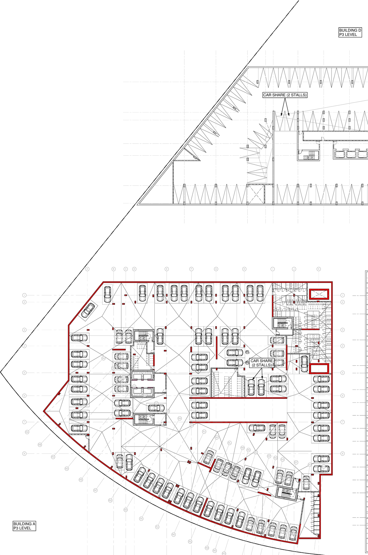
Site Plans, Elevations and Floor Plans#

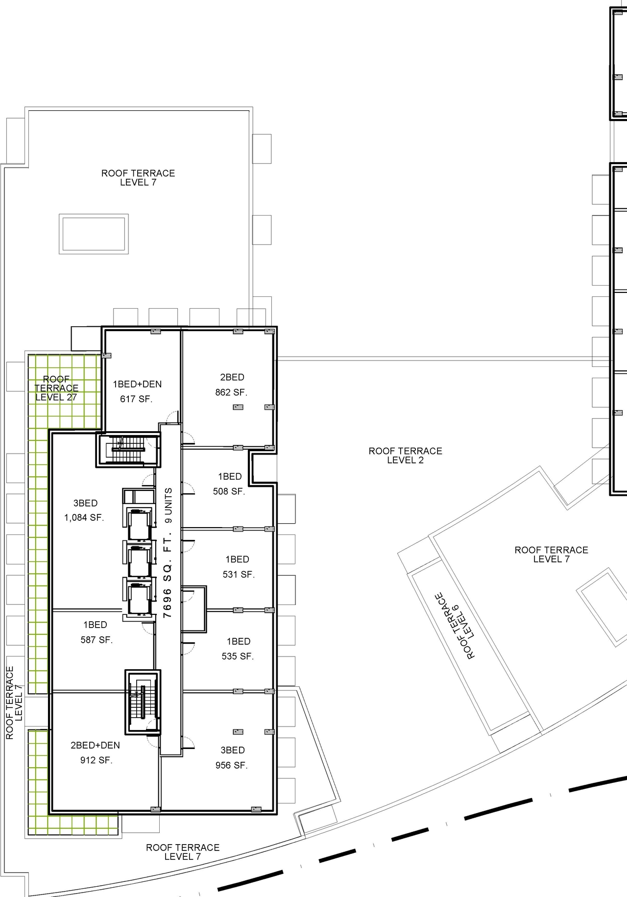
  • Image from page 12 of the file '2022-04-07 - Floor Plans - D07-12-21-0202'
  • Image from page 12 of the file '2022-04-07 - Floor Plans - D07-12-21-0202'
  • Image from page 12 of the file '2022-04-07 - Floor Plans - D07-12-21-0202'
  • Construction site plan for project from page 1 of the file '2021-11-18 - Perspective - D07-12-21-0202'
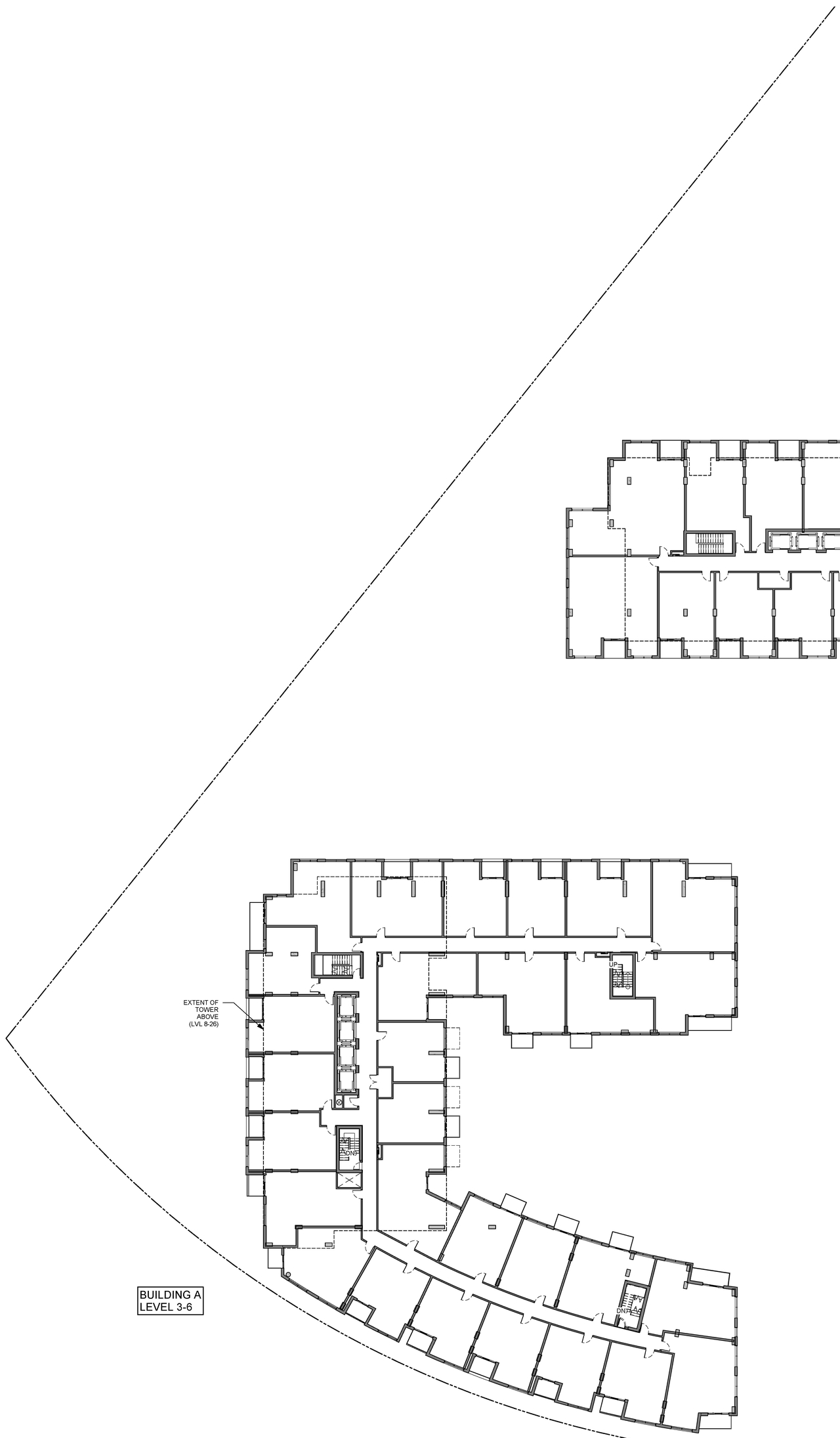
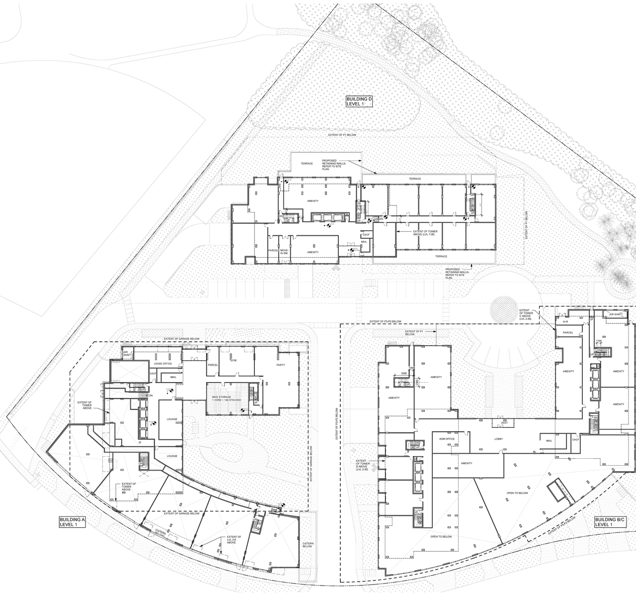
  • Construction site plan for project from page 4 of the file '2021-11-18 - Floor Plans - D07-12-21-0202'
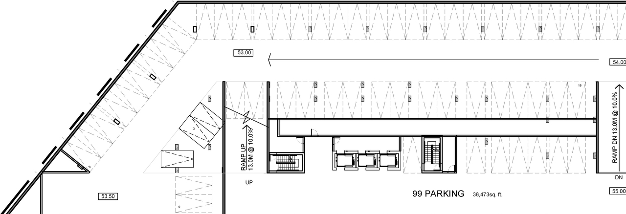
  • Construction site plan for project from page 1 of the file '2023-01-31 - FLOOR PLAN- P2 - D07-12-21-0202'
  • Construction site plan for project from page 6 of the file '2022-04-07 - Floor Plans - D07-12-21-0202'
  • Construction site plan for project from page 10 of the file '2021-11-18 - Floor Plans - D07-12-21-0202'
  • Construction site plan for project from page 7 of the file '2021-11-18 - Floor Plans - D07-12-21-0202'
  • Construction site plan for project from page 1 of the file '2023-01-31 - FLOOR PLAN- LEVEL 2-6 - D07-12-21-0202'
  • Construction site plan for project from page 1 of the file '2023-01-31 - FLOOR PLAN- P3 - D07-12-21-0202'
  • Construction site plan for project from page 9 of the file '2022-04-07 - Floor Plans - D07-12-21-0202'
  • Construction site plan for project from page 1 of the file '2023-01-31 - FLOOR PLAN- UPPER FLOOR PLANS - D07-12-21-0202'
  • Construction site plan for project from page 5 of the file '2022-04-07 - Floor Plans - D07-12-21-0202'
  • Construction site plan for project from page 9 of the file '2022-04-07 - Floor Plans - D07-12-21-0202'
  • Construction site plan for project from page 5 of the file '2022-04-07 - Floor Plans - D07-12-21-0202'
  • Construction site plan for project from page 10 of the file '2022-04-07 - Floor Plans - D07-12-21-0202'
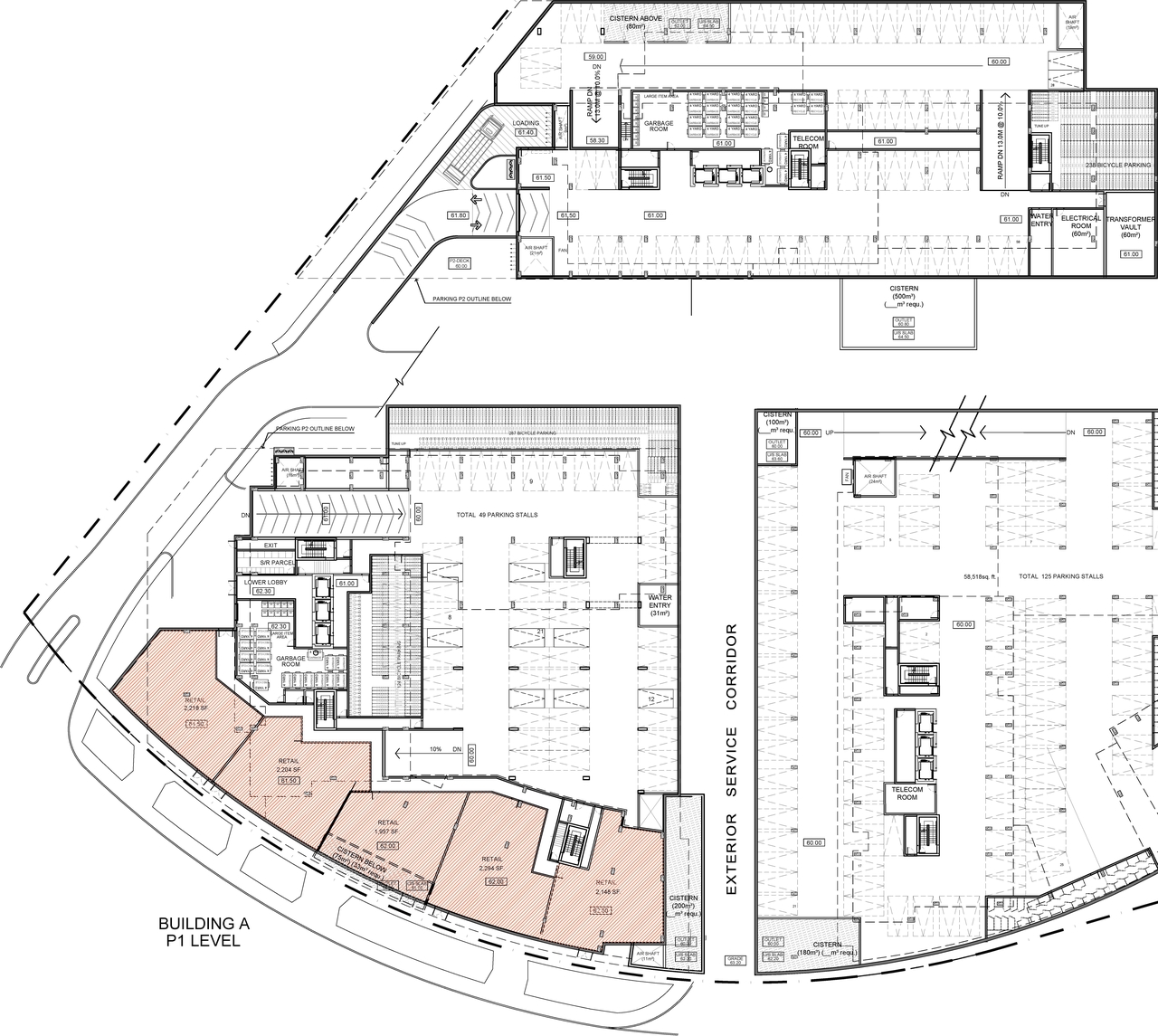
  • Construction site plan for project from page 1 of the file '2023-01-31 - FLOOR PLAN- P1 - D07-12-21-0202'
  • Floor plan for project from page 2 of the file '2022-04-07 - Floor Plans - D07-12-21-0202'
  • Floor plan for project from page 2 of the file '2021-11-18 - Floor Plans - D07-12-21-0202'
  • Floor plan for project from page 4 of the file '2022-04-07 - Floor Plans - D07-12-21-0202'
  • Floor plan for project from page 3 of the file '2021-11-18 - Floor Plans - D07-12-21-0202'
  • Floor plan for project from page 1 of the file '2021-11-18 - Floor Plans - D07-12-21-0202'
  • Floor plan for project from page 1 of the file '2021-11-18 - Floor Plans - D07-12-21-0202'
  • Floor plan for project from page 1 of the file '2022-04-07 - Floor Plans - D07-12-21-0202'
  • Floor plan for project from page 11 of the file '2021-11-18 - Floor Plans - D07-12-21-0202'
  • Floor plan for project from page 6 of the file '2021-11-18 - Floor Plans - D07-12-21-0202'
  • Floor plan for project from page 6 of the file '2022-04-07 - Floor Plans - D07-12-21-0202'
  • Floor plan for project from page 8 of the file '2022-04-07 - Floor Plans - D07-12-21-0202'
  • Floor plan for project from page 9 of the file '2022-04-07 - Floor Plans - D07-12-21-0202'
  • Floor plan for project from page 6 of the file '2021-11-18 - Floor Plans - D07-12-21-0202'
  • Floor plan for project from page 9 of the file '2021-11-18 - Floor Plans - D07-12-21-0202'
  • Floor plan for project from page 8 of the file '2022-04-07 - Floor Plans - D07-12-21-0202'
  • Floor plan for project from page 8 of the file '2022-04-07 - Floor Plans - D07-12-21-0202'
  • Floor plan for project from page 5 of the file '2022-04-07 - Floor Plans - D07-12-21-0202'
  • Floor plan for project from page 6 of the file '2022-04-07 - Floor Plans - D07-12-21-0202'
  • Image from page 12 of the file '2022-04-07 - Floor Plans - D07-12-21-0202'
  • Image from page 12 of the file '2022-04-07 - Floor Plans - D07-12-21-0202'
  • Image from page 12 of the file '2022-04-07 - Floor Plans - D07-12-21-0202'
  • Construction site plan for project from page 1 of the file '2021-11-18 - Perspective - D07-12-21-0202'
  • Construction site plan for project from page 4 of the file '2021-11-18 - Floor Plans - D07-12-21-0202'
  • Construction site plan for project from page 1 of the file '2023-01-31 - FLOOR PLAN- P2 - D07-12-21-0202'
  • Construction site plan for project from page 6 of the file '2022-04-07 - Floor Plans - D07-12-21-0202'
  • Construction site plan for project from page 10 of the file '2021-11-18 - Floor Plans - D07-12-21-0202'
  • Construction site plan for project from page 7 of the file '2021-11-18 - Floor Plans - D07-12-21-0202'
  • Construction site plan for project from page 1 of the file '2023-01-31 - FLOOR PLAN- LEVEL 2-6 - D07-12-21-0202'
  • Construction site plan for project from page 1 of the file '2023-01-31 - FLOOR PLAN- P3 - D07-12-21-0202'
  • Construction site plan for project from page 9 of the file '2022-04-07 - Floor Plans - D07-12-21-0202'
  • Construction site plan for project from page 1 of the file '2023-01-31 - FLOOR PLAN- UPPER FLOOR PLANS - D07-12-21-0202'
  • Construction site plan for project from page 5 of the file '2022-04-07 - Floor Plans - D07-12-21-0202'
  • Construction site plan for project from page 9 of the file '2022-04-07 - Floor Plans - D07-12-21-0202'
  • Construction site plan for project from page 5 of the file '2022-04-07 - Floor Plans - D07-12-21-0202'
  • Construction site plan for project from page 10 of the file '2022-04-07 - Floor Plans - D07-12-21-0202'
  • Construction site plan for project from page 1 of the file '2023-01-31 - FLOOR PLAN- P1 - D07-12-21-0202'
  • Floor plan for project from page 2 of the file '2022-04-07 - Floor Plans - D07-12-21-0202'
  • Floor plan for project from page 2 of the file '2021-11-18 - Floor Plans - D07-12-21-0202'
  • Floor plan for project from page 4 of the file '2022-04-07 - Floor Plans - D07-12-21-0202'
  • Floor plan for project from page 3 of the file '2021-11-18 - Floor Plans - D07-12-21-0202'
  • Floor plan for project from page 1 of the file '2021-11-18 - Floor Plans - D07-12-21-0202'
  • Floor plan for project from page 1 of the file '2021-11-18 - Floor Plans - D07-12-21-0202'
  • Floor plan for project from page 1 of the file '2022-04-07 - Floor Plans - D07-12-21-0202'
  • Floor plan for project from page 11 of the file '2021-11-18 - Floor Plans - D07-12-21-0202'
  • Floor plan for project from page 6 of the file '2021-11-18 - Floor Plans - D07-12-21-0202'
  • Floor plan for project from page 6 of the file '2022-04-07 - Floor Plans - D07-12-21-0202'
  • Floor plan for project from page 8 of the file '2022-04-07 - Floor Plans - D07-12-21-0202'
  • Floor plan for project from page 9 of the file '2022-04-07 - Floor Plans - D07-12-21-0202'
  • Floor plan for project from page 6 of the file '2021-11-18 - Floor Plans - D07-12-21-0202'
  • Floor plan for project from page 9 of the file '2021-11-18 - Floor Plans - D07-12-21-0202'
  • Floor plan for project from page 8 of the file '2022-04-07 - Floor Plans - D07-12-21-0202'
  • Floor plan for project from page 8 of the file '2022-04-07 - Floor Plans - D07-12-21-0202'
  • Floor plan for project from page 5 of the file '2022-04-07 - Floor Plans - D07-12-21-0202'
  • Floor plan for project from page 6 of the file '2022-04-07 - Floor Plans - D07-12-21-0202'

Additional Information#

Date Initiated2021-11-18
WardWard 12 - Stéphanie Plante

Documents#

TypeDocument
Application Summary2021-12-02 - Application Summary - D07-12-21-0202
Architectural Plans2024-07-15 - Site Plan and Elevations - D07-12-21-0202
Architectural Plans2024-07-15 - Site Plan - D07-12-21-0202
Architectural Plans2024-07-15 - Elevations - D07-12-21-0202 (2)
Architectural Plans2024-07-15 - Elevations - D07-12-21-0202
Architectural Plans2024-07-05 - Approved Site Plan - D07-12-21-0202
Architectural Plans2024-07-05 - Approved Plan and Profile 1 & 2 - D07-12-21-0202
Architectural Plans2024-07-05 - Approved General Plan of Services - D07-12-21-0202
Architectural Plans2024-07-05 - Approved Elevations - D07-12-21-0202
Architectural Plans2024-04-26 - Site Plan - D07-12-21-0202
Architectural Plans2024-03-25 - Site Plan - D07-12-21-0202
Architectural Plans2024-02-21 - Site Plan - D07-12-21-0202
Architectural Plans2024-02-21 - Plan and Profile - D07-12-21-0202 (2)
Architectural Plans2024-02-21 - Plan and Profile - D07-12-21-0202
Architectural Plans2024-02-21 - General Plan of Services - D07-12-21-0202
Architectural Plans2023-11-14 - Site Plan - D07-12-21-0202
Architectural Plans2023-11-14 - Plan and Profiles - D07-12-21-0202
Architectural Plans2023-04-26 - General Plan of Services - D07-12-21-0202
Architectural Plans2023-01-31 - Functional Design Plan - D07-12-21-0202
Architectural Plans2023-01-31 - BUILDING ELEVATIONS - D07-12-21-0202
Architectural Plans2023-01-31 - BUILDING D - SOUTH AND WEST ELEVATION plan - D07-12-21-0202
Architectural Plans2023-01-31 - Building D - North & East Elevation Plan - D07-12-21-0202
Architectural Plans2023-01-31 - BUILDING B+C - SOUTH AND WEST ELEVATION - D07-12-21-0202
Architectural Plans2023-01-31 - BUILDING A - SOUTH AND WEST ELEVATION - D07-12-21-0202
Architectural Plans2023-01-31 - BUILDING A - NORTH AND EAST ELEVATION - D07-12-21-0202
Architectural Plans2023-01-31 - BUILDING B+C - NORTH AND EAST ELEVATION - D07-12-21-0202
Architectural Plans2023-01-31 - ALL BUILDINGS - Site Plan - D07-12-21-0202
Architectural Plans2022-10-11 - Site Plan - D07-12-21-0202
Architectural Plans2022-10-11 - Plan Stopping Sight Distance - D07-12-21-0202
Architectural Plans2022-10-11 - Plan & Profile - D07-12-21-0202 (2)
Architectural Plans2022-10-11 - Plan & Profile - D07-12-21-0202
Architectural Plans2022-10-11 - GENERAL PLAN OF SERVICES - D07-12-21-0202
Architectural Plans2022-04-07 - Site Plan - D07-12-21-0202
Architectural Plans2021-11-18 - Site Plan - D07-12-21-0202
Architectural Plans2021-11-18 - Plan and Profile - D07-12-21-0202
Architectural Plans2021-11-18 - Notes and Details - D07-12-21-0202
Architectural Plans2021-11-18 - General Plan of Services - D07-12-21-0202
Architectural Plans2021-11-18 - Elevations - D07-12-21-0202
Civil Engineering Report2024-07-05 - Approved Civil Notes Details and Tables - D07-12-21-0202
Civil Engineering Report2024-02-21 - Civil Notes Details and Tables - D07-12-21-0202
Civil Engineering Report2023-11-14 - Civil Plans - D07-12-21-0202
Civil Engineering Report2023-04-26 - Civil Notes Details & Tables - D07-12-21-0202
Civil Engineering Report2023-01-31 - Civil Notes, Details & Tables - D07-12-21-0202
Civil Engineering Report2023-01-16 - Civil Notes, Details and Tables - D07-12-21-0202
Civil Engineering Report2022-10-11 - CIVIL NOTES, DETAILS & TABLES - D07-12-21-0202
Civil Engineering Report2022-04-07 - Civil Plan and Profile 2 - D07-12-21-0202
Civil Engineering Report2022-04-07 - Civil Plan and Profile 1 - D07-12-21-0202
Civil Engineering Report2022-04-07 - Civil Notes - D07-12-21-0202
Civil Engineering Report2021-11-18 - Civil and Profile - D07-12-21-0202
Electrical Plan2023-01-31 - Electrical Site Plan - D07-12-21-0202
Electrical Plan2023-01-16 - Electrical Site Plan - D07-12-21-0202
Electrical Plan2022-10-11 - Electrical Site Plan - D07-12-21-0202
Electrical Plan2022-04-07 - Electrical Site Plan Photometrics - D07-12-21-0202
Electrical Plan2021-11-18 - Lighting Compliance Letter - D07-12-21-0202
Electrical Plan2021-11-18 - Electrical Site Plan Photometrics - D07-12-21-0202
Environmental2021-11-18 - Phase II Environmental Site Assessment - D07-12-21-0202
Environmental2021-11-18 - Phase 1 Environmental Site Assessment - D07-12-21-0202
Erosion And Sediment Control Plan2022-10-11 - EROSION AND SEDIMENT Control Plan - D07-12-21-0202
Erosion And Sediment Control Plan2022-04-07 - Erosion and Sediment Control Plan - D07-12-21-0202
Erosion And Sediment Control Plan2021-11-18 - Erosion and Sediment - D07-12-21-0202
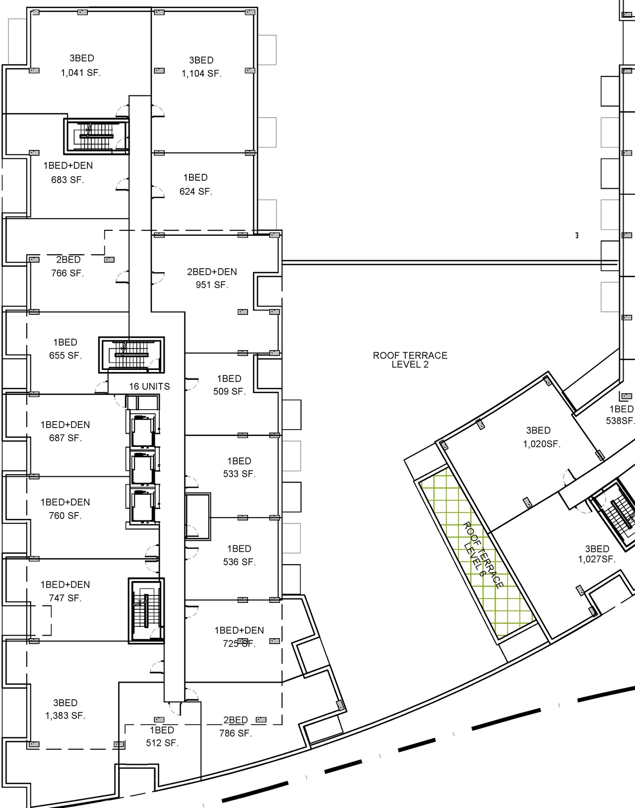
Floor Plan2023-01-31- FLOOR PLAN- LEVEL 7 (TERRACES) - D07-12-21-0202
Floor Plan2023-01-31 - TOWER A GROUND FLOOR PLAN - D07-12-21-0202
Floor Plan2023-01-31 - FLOOR PLAN- UPPER FLOOR PLANS - D07-12-21-0202
Floor Plan2023-01-31 - FLOOR PLAN- TYPICAL TOWER PLAN - D07-12-21-0202
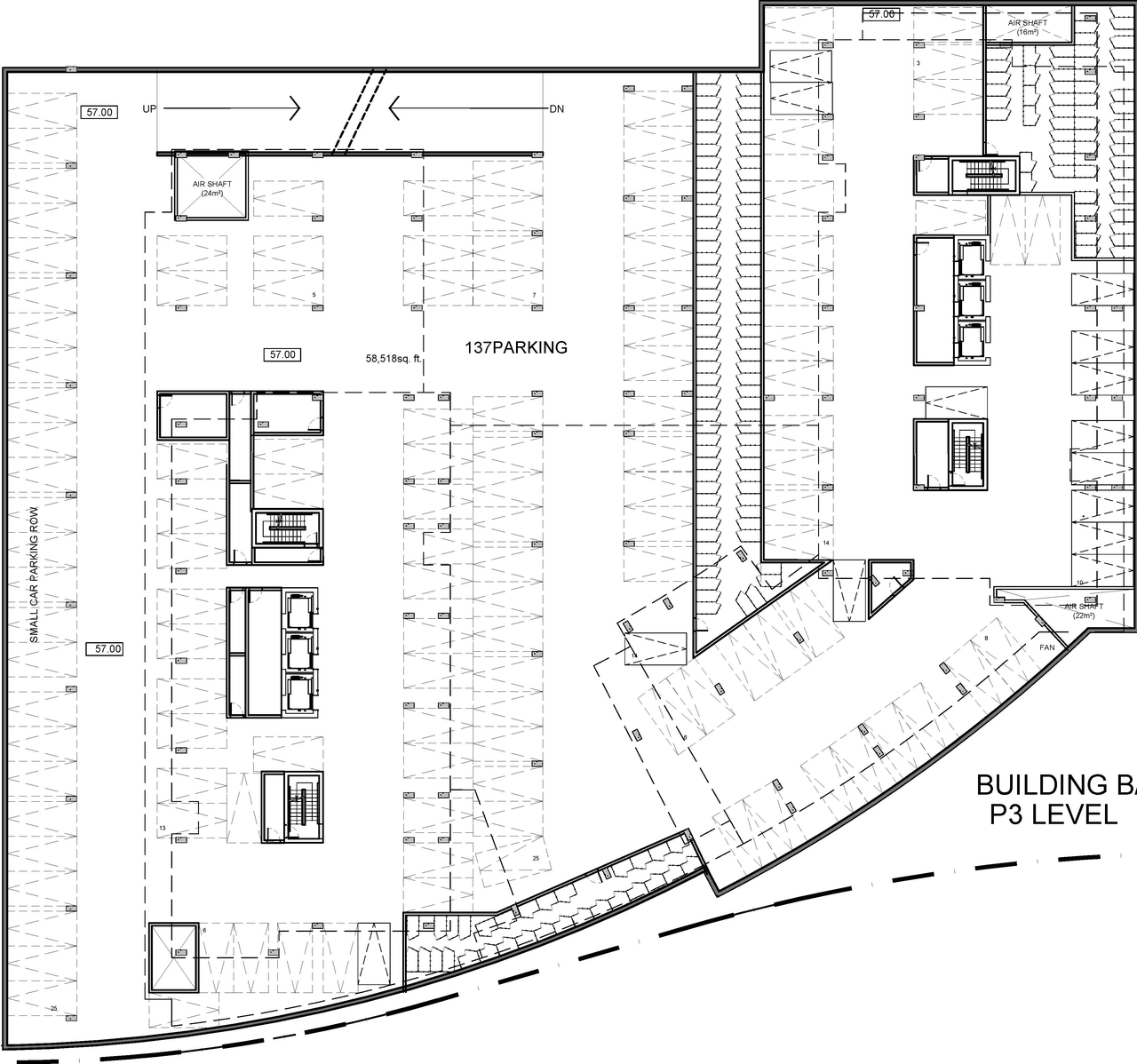
Floor Plan2023-01-31 - FLOOR PLAN- P3 - D07-12-21-0202
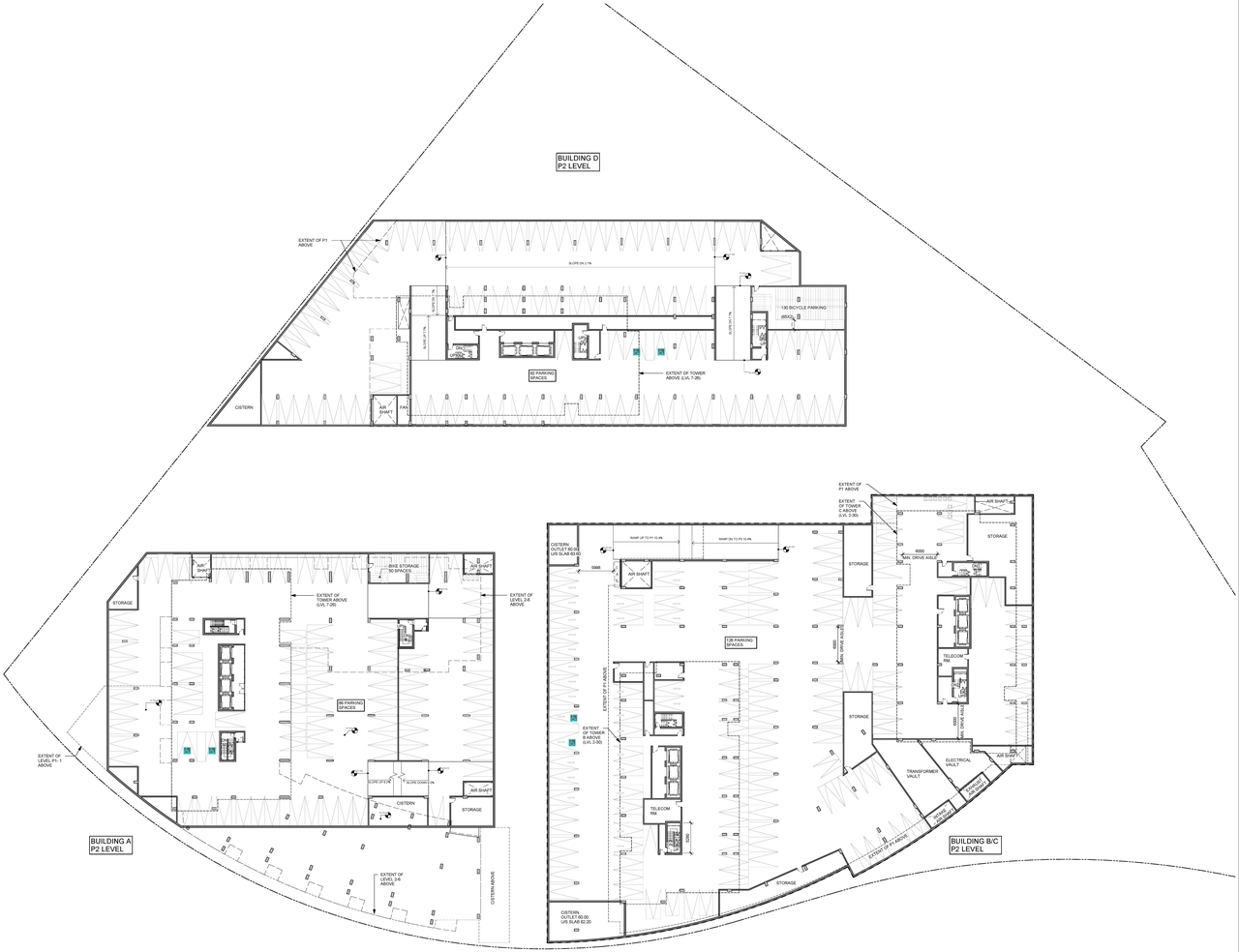
Floor Plan2023-01-31 - FLOOR PLAN- P2 - D07-12-21-0202
Floor Plan2023-01-31 - FLOOR PLAN- P1 - D07-12-21-0202
Floor Plan2023-01-31 - FLOOR PLAN- MECH- PENTHOUSE - D07-12-21-0202
Floor Plan2023-01-31 - FLOOR PLAN- LEVEL 2-6 - D07-12-21-0202
Floor Plan2023-01-31 - FLOOR PLAN- GROUND FLOOR - D07-12-21-0202
Floor Plan2023-01-31 - FLOOR PLAN & ROOF PLAN - D07-12-21-0202
Floor Plan2022-04-07 - Floor Plans - D07-12-21-0202
Floor Plan2021-11-18 - Floor Plans - D07-12-21-0202
Geotechnical Report2024-07-05 - Approved Grading Plan - D07-12-21-0202
Geotechnical Report2024-02-21 - Grading Plan - D07-12-21-0202
Geotechnical Report2023-04-26 - Grading Plan - D07-12-21-0202
Geotechnical Report2023-01-31 - Grading Plan - D07-12-21-0202 (2)
Geotechnical Report2023-01-31 - Grading Plan - D07-12-21-0202
Geotechnical Report2023-01-31 - Geotechnical Investigation - D07-12-21-0202
Geotechnical Report2023-01-31 - Geotechnical Investigation - D07-12-21-0202
Geotechnical Report2023-01-16 - Grading Plan - D07-12-21-0202
Geotechnical Report2023-01-16 - Geotechnical Investigation Rev 4 - D07-12-21-0202
Geotechnical Report2022-10-11 - Grading Plan - D07-12-21-0202
Geotechnical Report2022-10-11 - Geotechnical Investigation - D07-12-21-0202
Geotechnical Report2022-04-07 - Grading Plan - D07-12-21-0202
Geotechnical Report2021-11-18 - Grading Plan - D07-12-21-0202
Geotechnical Report2021-11-18 - Geotechnical Investigation - D07-12-21-0202
Landscape Plan2024-07-05 - Approved Landscape Plan and Details - D07-12-21-0202
Landscape Plan2024-02-21 - Landscape Plan - D07-12-21-0202
Landscape Plan2023-11-14 - Landscape Plans and Details - D07-12-21-0202
Landscape Plan2023-01-31 - Landscape Plan - D07-12-21-0202
Landscape Plan2023-01-16 - Landscape plan - D07-12-21-0202
Landscape Plan2022-10-11 - Landscape Plan - D07-12-21-0202
Landscape Plan2022-04-07 - Landscape Plans - D07-12-21-0202
Landscape Plan2021-11-18 - Landscape - D07-12-21-0202
Noise Study2021-11-18 - Noise - D07-12-21-0202
Planning2021-11-18 - Planning Rationale & Design Brief - D07-12-21-0202
Rendering2023-01-31 - PERSPECTIVE OVERALL - D07-12-21-0202
Rendering2022-11-14 - Perspectives - D07-12-21-0202
Rendering2021-11-18 - Perspective - D07-12-21-0202
Shadow Study2021-11-18 - Shadow Study - D07-12-20-0202
Site Servicing2023-01-16 - Site Servicing Plan - D07-12-21-0202
Site Servicing2022-04-07 - Site Servicing Plan - D07-12-21-0202
Site Servicing2022-04-07 - Servicing Study and Stormwater Management Report - D07-12-21-0202
Stormwater Management2024-07-05 - Approved Stormwater Management Plan - D07-12-21-0202
Stormwater Management2024-02-21 - Stormwater Management Plan - D07-12-21-0202
Stormwater Management2023-04-26 - Stormwater Mangement Plan - D07-12-21-0202
Stormwater Management2022-10-11 - STORMWATER Management Plan - D07-12-21-0202
Stormwater Management2022-10-11 - Development Servicing Study & Stormwater Management Report - D07-12-21-0202
Stormwater Management2022-04-07 - Stormwater Management Plan - D07-12-21-0202
Stormwater Management2021-11-18 - Development Service Study & Stormwater Managment Report - D07-12-21-0202
Surveying2024-07-15 - Survey - D07-12-21-0202
Surveying2021-11-18 - Topographic Survey - D07-12-21-0202
Transportation Analysis2024-02-21 - Transportation Impact Assessment - D07-12-21-0202
Transportation Analysis2023-11-14 - Transportation Impact Assessment - D07-12-21-0202
Transportation Analysis2023-01-16 - TIA Functional Design Plan - D07-12-21-0202
Transportation Analysis2022-10-11 - Transportation Impact Assessment - D07-12-21-0202
Transportation Analysis2022-04-07 - Transportation Impact Assessment - D07-12-21-0202
Transportation Analysis2021-11-18 - Transportation Impact Assessment - D07-12-21-0202
Tree Information and Conservation2024-07-05 - Approved Tree Conservation Plan 1 & 2 - D07-12-21-0202
Tree Information and Conservation2024-03-25 - Tree Conservation Plan - D07-12-21-0202
Tree Information and Conservation2024-02-26 - Tree Conservation Plan - D07-12-21-0202
Tree Information and Conservation2022-04-07 - Tree Conservation Report - D07-12-21-0202
Tree Information and Conservation2022-04-07 - Tree Conservation and Removals Plan and Inventory Table - D07-12-21-0202
Tree Information and Conservation2021-11-18 - Tree Conservation Report - D07-12-21-0202
Tree Information and Conservation2021-11-18 - Tree Conservation and Removals Plan - D07-12-21-0202
Wind Study2021-11-18 - Wind - D07-12-21-0202
2024-07-05 - SIGNED Delegated Authority Report - D07-12-21-0202
2024-07-05 - Road Modification Approval - D07-12-21-0202
2024-02-21 - Letter - Transportation Impact Assessment - D07-12-21-0202
2023-11-14 - Roadway Modifications - D07-12-21-0202
2023-05-03 - Project Package - D07-12-21-0202
2023-01-31 - Project Drawings - D07-12-21-0202
2023-01-31 - Project Drawings - D07-12-21-0202
2023-01-16 - Roadway Modifications Application - D07-12-21-0202
2023-01-16 - Memo Geotechnical Response to City Comments - D07-12-21-0202
2022-04-07 - Proposed Roadway Modification - D07-12-21-0202
2022-04-07 - Function Design - D07-12-21-0202