Ottawa Development Projects

630 Montreal/609 Borthwick Ave.#

Last updated: 2025-07-19 · ID: D07-12-21-0189

Summary#

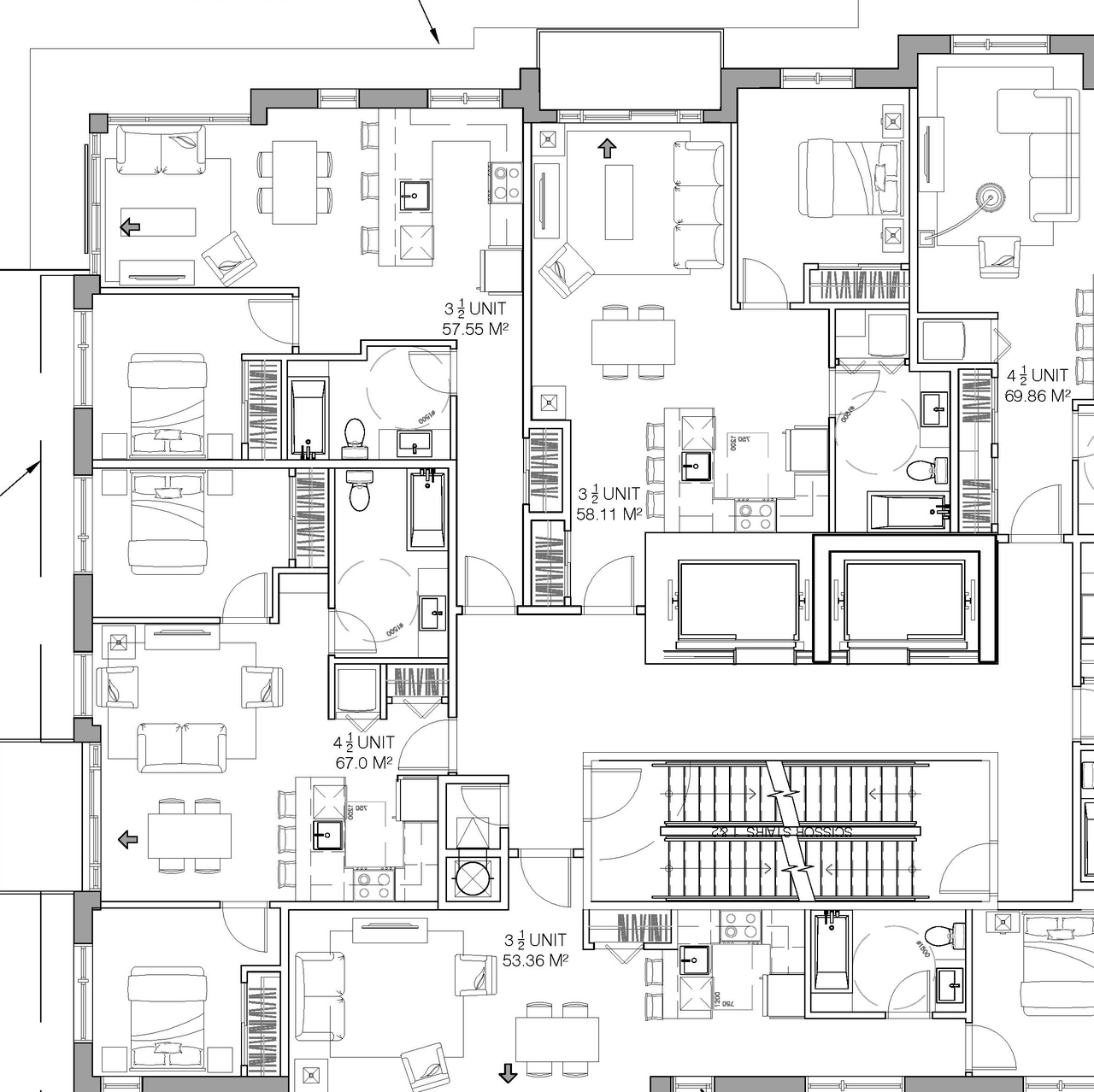
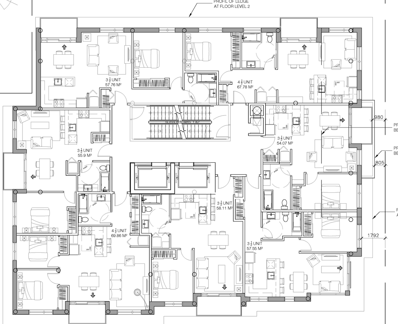
New residential building of 9 storeys with 57 resdential units ranging between 3 1/2 (1 Bed) and 4 1/2 {2 beds). Twenty percent (20%) of the residentail units will be affordable according to CMHC affordable housing policy. There will be two levels of parking underground.

Status
Active (Resubmission Review Completed)

Building Scale (Max.) Based on elevation drawings. Values may be approximate. See sources for exact figures.
Mid-rise · 6 storeys Data Quality Note Text was extracted using optical character recognition. This may introduce artifacts or misreads.

Renders#

  • Rendering of building from page 5 of the file '2024-02-14 - Perspectives - D07-12-21-01891'
  • Rendering of building from page 4 of the file '2024-02-14 - Perspectives - D07-12-21-01891'
  • Rendering of building from page 4 of the file '2023-04-20 - Renderings - D07-12-21-0189'
  • Rendering of building from page 5 of the file '2024-02-14 - Perspectives - D07-12-21-01891'
  • Rendering of building from page 3 of the file '2024-02-14 - Perspectives - D07-12-21-01891'
  • Rendering of building from page 11 of the file '2023-05-11 - Design Brief - D07-12-21-0189'
  • Rendering of building from page 4 of the file '2024-02-14 - Perspectives - D07-12-21-01891'
  • Rendering of building from page 2 of the file '2023-04-20 - Renderings - D07-12-21-0189'
  • Rendering of building from page 5 of the file '2024-02-14 - Perspectives - D07-12-21-01891'
  • Rendering of building from page 5 of the file '2023-04-20 - Renderings - D07-12-21-0189'
  • Rendering of building from page 14 of the file '2023-05-11 - Design Brief - D07-12-21-0189'
  • Rendering of building from page 2 of the file '2024-02-14 - Perspectives - D07-12-21-01891'
  • Rendering of building from page 1 of the file '2024-02-14 - Perspectives - D07-12-21-01891'
  • Rendering of building from page 16 of the file '2023-05-11 - Design Brief - D07-12-21-0189'
  • Rendering of building from page 3 of the file '2024-02-14 - Perspectives - D07-12-21-01891'
  • Rendering of building from page 5 of the file '2023-04-20 - Renderings - D07-12-21-0189'
  • Rendering of building from page 2 of the file '2024-02-14 - Perspectives - D07-12-21-01891'
  • Rendering of building from page 2 of the file '2024-02-14 - Perspectives - D07-12-21-01891'
  • Rendering of building from page 3 of the file '2023-05-11 - Design Brief - D07-12-21-0189'
  • Rendering of building from page 3 of the file '2023-04-20 - Renderings - D07-12-21-0189'
  • Rendering of building from page 3 of the file '2024-02-14 - Perspectives - D07-12-21-01891'
  • Rendering of building from page 2 of the file '2023-04-20 - Renderings - D07-12-21-0189'
  • Rendering of building from page 5 of the file '2023-04-20 - Renderings - D07-12-21-0189'
  • Rendering of building from page 4 of the file '2024-02-14 - Perspectives - D07-12-21-01891'
  • Rendering of building from page 1 of the file '2024-02-14 - Perspectives - D07-12-21-01891'
  • Rendering of building from page 3 of the file '2023-04-20 - Renderings - D07-12-21-0189'
  • Rendering of building from page 1 of the file '2024-02-14 - Perspectives - D07-12-21-01891'
  • Rendering of building from page 1 of the file '2023-04-20 - Renderings - D07-12-21-0189'
  • Rendering of building from page 6 of the file '2023-05-11 - Design Brief - D07-12-21-0189'
  • Rendering of building from page 1 of the file '2024-02-14 - Perspectives - D07-12-21-01891'
  • Rendering of building from page 2 of the file '2023-04-20 - Renderings - D07-12-21-0189'
  • Rendering of building from page 3 of the file '2024-02-14 - Perspectives - D07-12-21-01891'
  • Rendering of building from page 1 of the file '2023-04-20 - Renderings - D07-12-21-0189'
  • Rendering of building from page 3 of the file '2023-04-20 - Renderings - D07-12-21-0189'
  • Rendering of building from page 1 of the file '2023-04-20 - Renderings - D07-12-21-0189'
  • Rendering of building from page 2 of the file '2024-02-14 - Perspectives - D07-12-21-01891'
  • Rendering of building from page 15 of the file '2023-05-11 - Design Brief - D07-12-21-0189'
  • Rendering of building from page 2 of the file '2023-04-20 - Renderings - D07-12-21-0189'
  • Rendering of building from page 15 of the file '2023-05-11 - Design Brief - D07-12-21-0189'
  • Rendering of building from page 3 of the file '2023-04-20 - Renderings - D07-12-21-0189'
  • Rendering of building from page 2 of the file '2023-05-11 - Design Brief - D07-12-21-0189'
  • Rendering of building from page 4 of the file '2024-02-14 - Perspectives - D07-12-21-01891'
  • Rendering of building from page 5 of the file '2024-02-14 - Perspectives - D07-12-21-01891'
  • Rendering of building from page 4 of the file '2024-02-14 - Perspectives - D07-12-21-01891'
  • Rendering of building from page 4 of the file '2023-04-20 - Renderings - D07-12-21-0189'
  • Rendering of building from page 5 of the file '2024-02-14 - Perspectives - D07-12-21-01891'
  • Rendering of building from page 3 of the file '2024-02-14 - Perspectives - D07-12-21-01891'
  • Rendering of building from page 11 of the file '2023-05-11 - Design Brief - D07-12-21-0189'
  • Rendering of building from page 4 of the file '2024-02-14 - Perspectives - D07-12-21-01891'
  • Rendering of building from page 2 of the file '2023-04-20 - Renderings - D07-12-21-0189'
  • Rendering of building from page 5 of the file '2024-02-14 - Perspectives - D07-12-21-01891'
  • Rendering of building from page 5 of the file '2023-04-20 - Renderings - D07-12-21-0189'
  • Rendering of building from page 14 of the file '2023-05-11 - Design Brief - D07-12-21-0189'
  • Rendering of building from page 2 of the file '2024-02-14 - Perspectives - D07-12-21-01891'
  • Rendering of building from page 1 of the file '2024-02-14 - Perspectives - D07-12-21-01891'
  • Rendering of building from page 16 of the file '2023-05-11 - Design Brief - D07-12-21-0189'
  • Rendering of building from page 3 of the file '2024-02-14 - Perspectives - D07-12-21-01891'
  • Rendering of building from page 5 of the file '2023-04-20 - Renderings - D07-12-21-0189'
  • Rendering of building from page 2 of the file '2024-02-14 - Perspectives - D07-12-21-01891'
  • Rendering of building from page 2 of the file '2024-02-14 - Perspectives - D07-12-21-01891'
  • Rendering of building from page 3 of the file '2023-05-11 - Design Brief - D07-12-21-0189'
  • Rendering of building from page 3 of the file '2023-04-20 - Renderings - D07-12-21-0189'
  • Rendering of building from page 3 of the file '2024-02-14 - Perspectives - D07-12-21-01891'
  • Rendering of building from page 2 of the file '2023-04-20 - Renderings - D07-12-21-0189'
  • Rendering of building from page 5 of the file '2023-04-20 - Renderings - D07-12-21-0189'
  • Rendering of building from page 4 of the file '2024-02-14 - Perspectives - D07-12-21-01891'
  • Rendering of building from page 1 of the file '2024-02-14 - Perspectives - D07-12-21-01891'
  • Rendering of building from page 3 of the file '2023-04-20 - Renderings - D07-12-21-0189'
  • Rendering of building from page 1 of the file '2024-02-14 - Perspectives - D07-12-21-01891'
  • Rendering of building from page 1 of the file '2023-04-20 - Renderings - D07-12-21-0189'
  • Rendering of building from page 6 of the file '2023-05-11 - Design Brief - D07-12-21-0189'
  • Rendering of building from page 1 of the file '2024-02-14 - Perspectives - D07-12-21-01891'
  • Rendering of building from page 2 of the file '2023-04-20 - Renderings - D07-12-21-0189'
  • Rendering of building from page 3 of the file '2024-02-14 - Perspectives - D07-12-21-01891'
  • Rendering of building from page 1 of the file '2023-04-20 - Renderings - D07-12-21-0189'
  • Rendering of building from page 3 of the file '2023-04-20 - Renderings - D07-12-21-0189'
  • Rendering of building from page 1 of the file '2023-04-20 - Renderings - D07-12-21-0189'
  • Rendering of building from page 2 of the file '2024-02-14 - Perspectives - D07-12-21-01891'
  • Rendering of building from page 15 of the file '2023-05-11 - Design Brief - D07-12-21-0189'
  • Rendering of building from page 2 of the file '2023-04-20 - Renderings - D07-12-21-0189'
  • Rendering of building from page 15 of the file '2023-05-11 - Design Brief - D07-12-21-0189'
  • Rendering of building from page 3 of the file '2023-04-20 - Renderings - D07-12-21-0189'
  • Rendering of building from page 2 of the file '2023-05-11 - Design Brief - D07-12-21-0189'
  • Rendering of building from page 4 of the file '2024-02-14 - Perspectives - D07-12-21-01891'

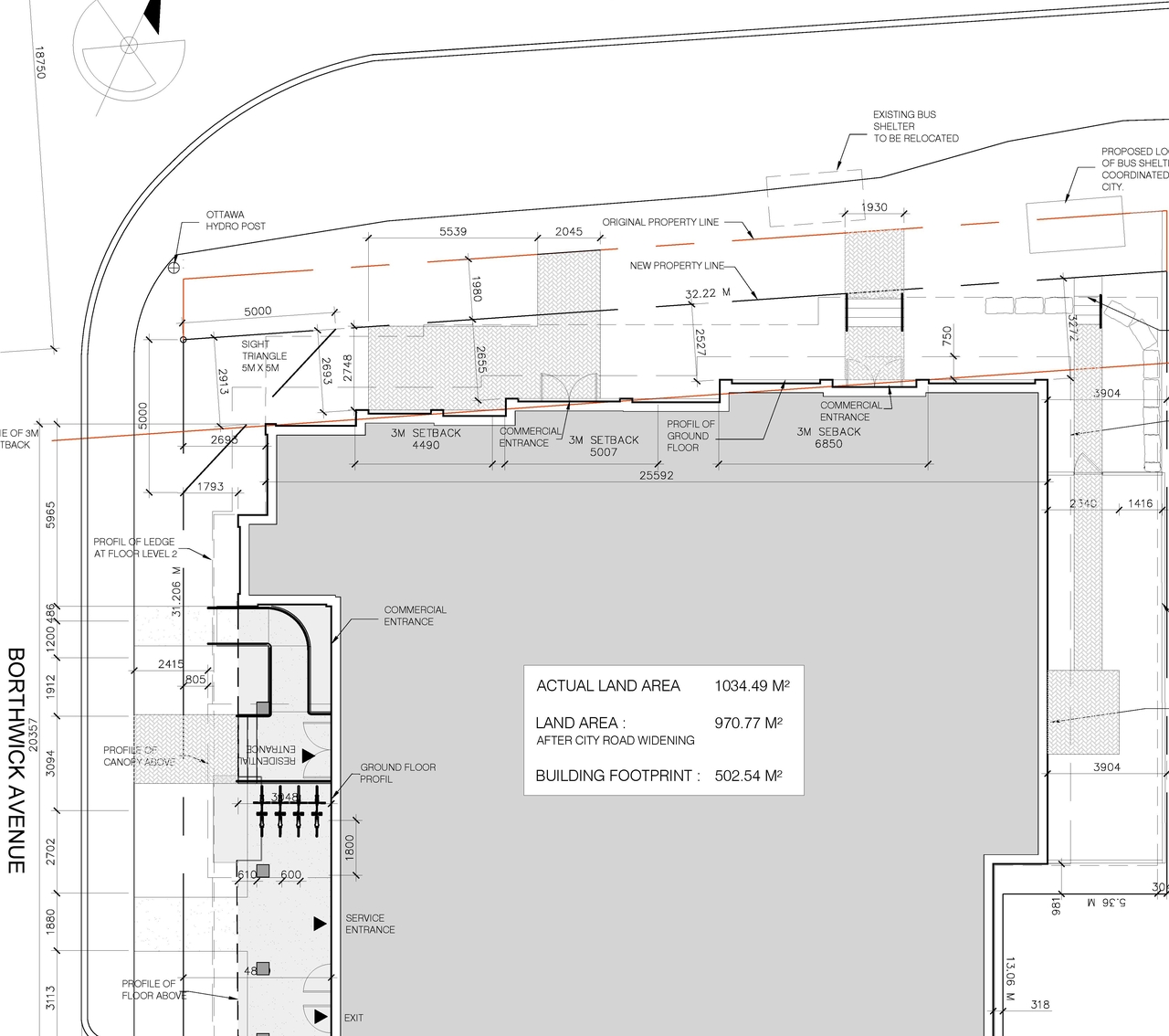
Location#

Select a marker to view the address.

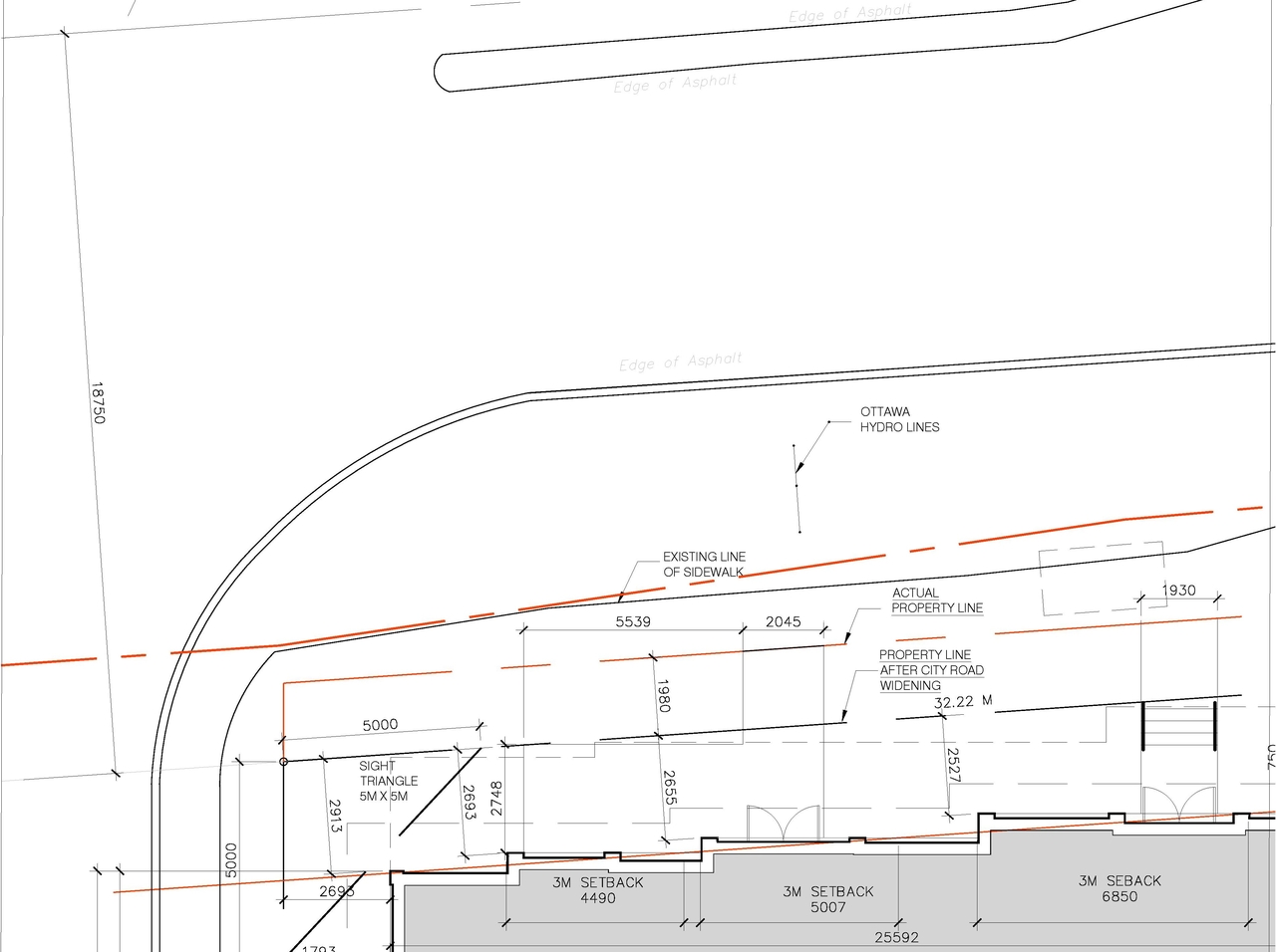
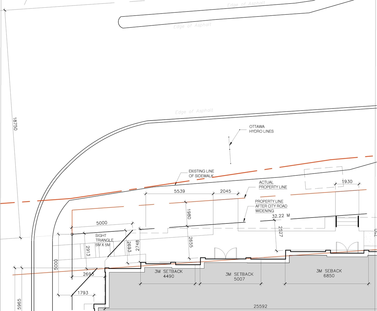
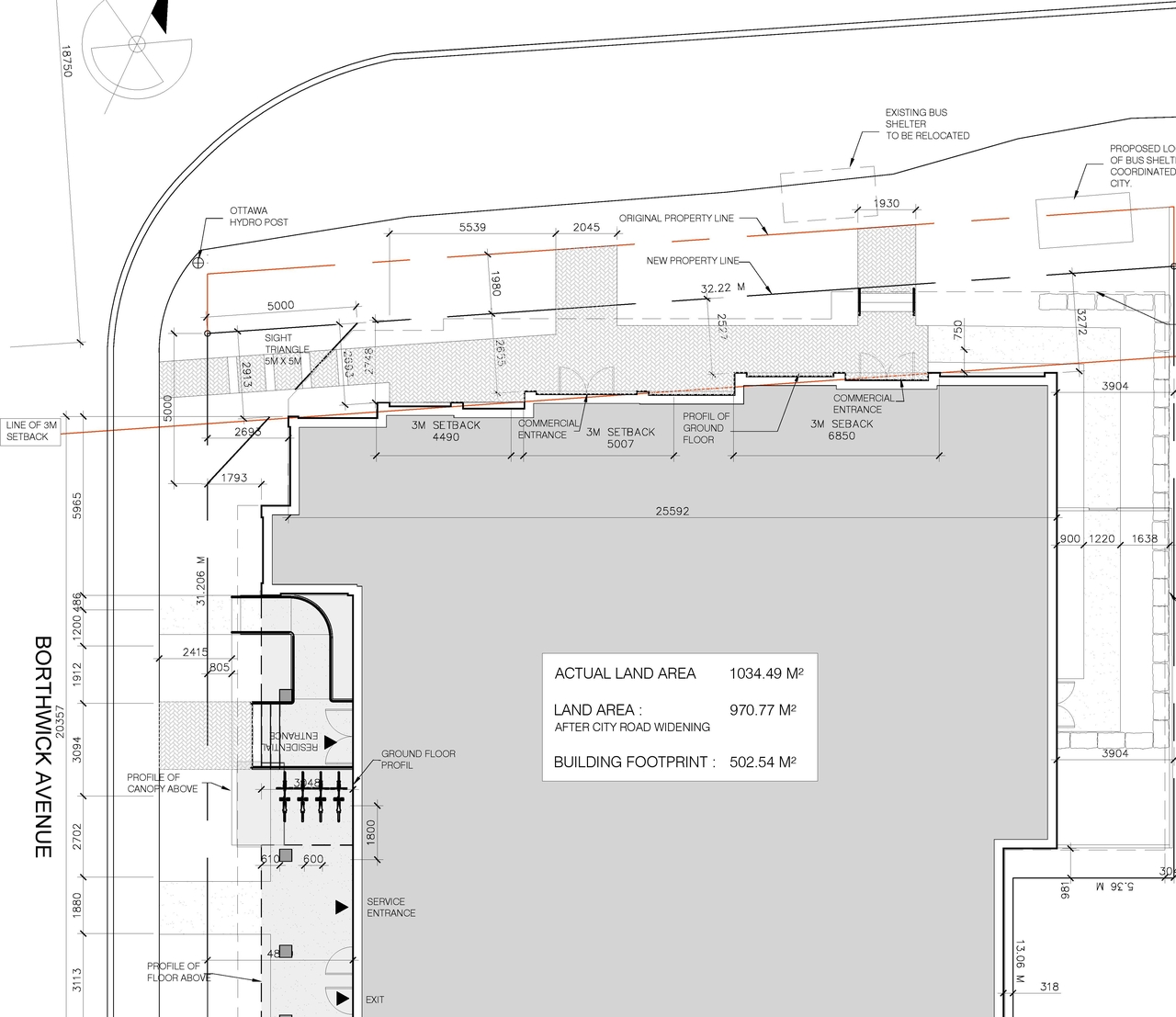
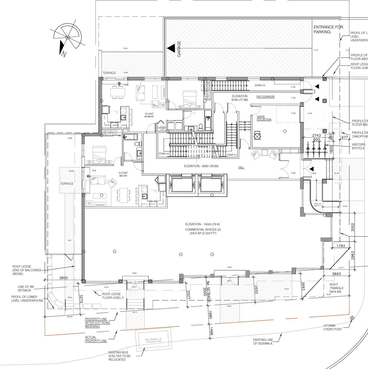
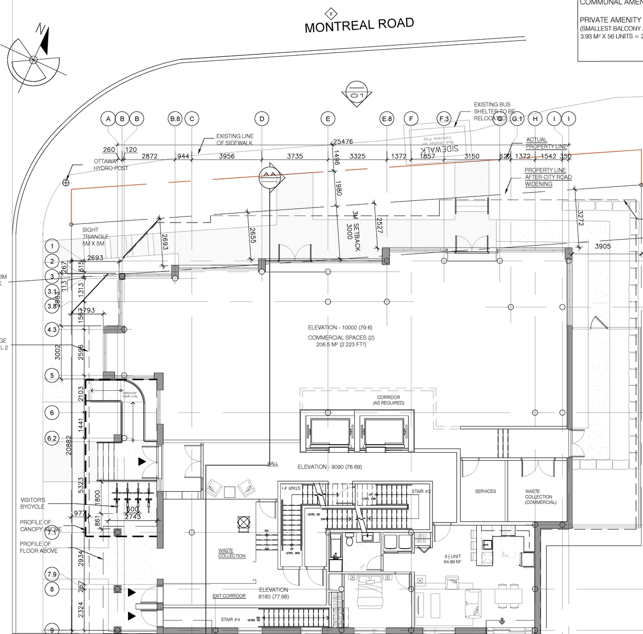
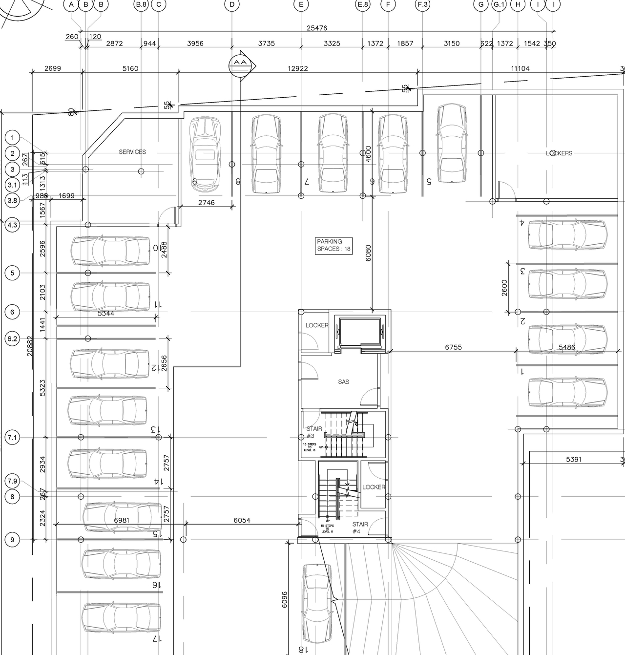
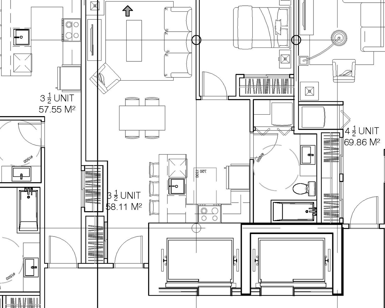
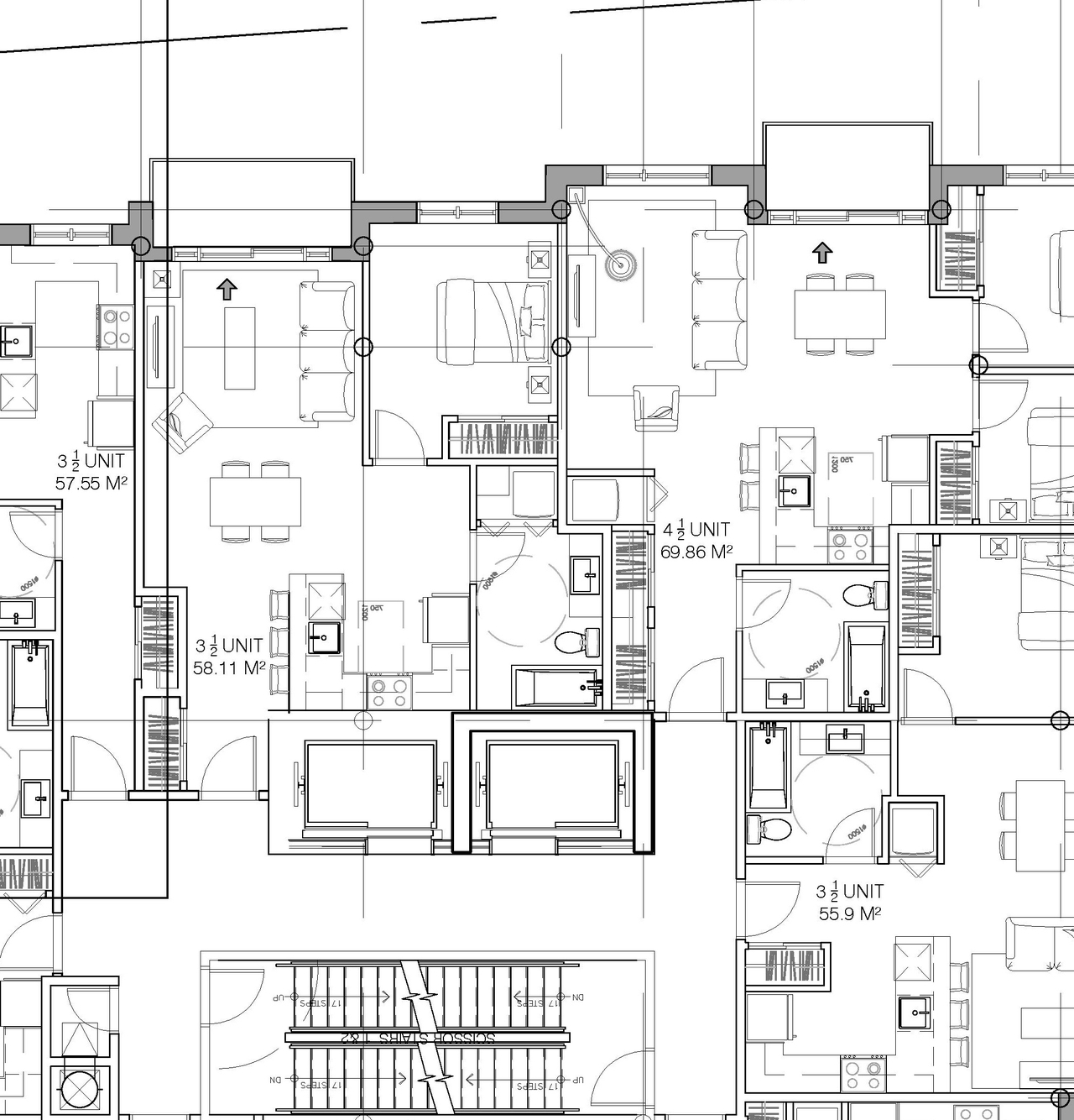
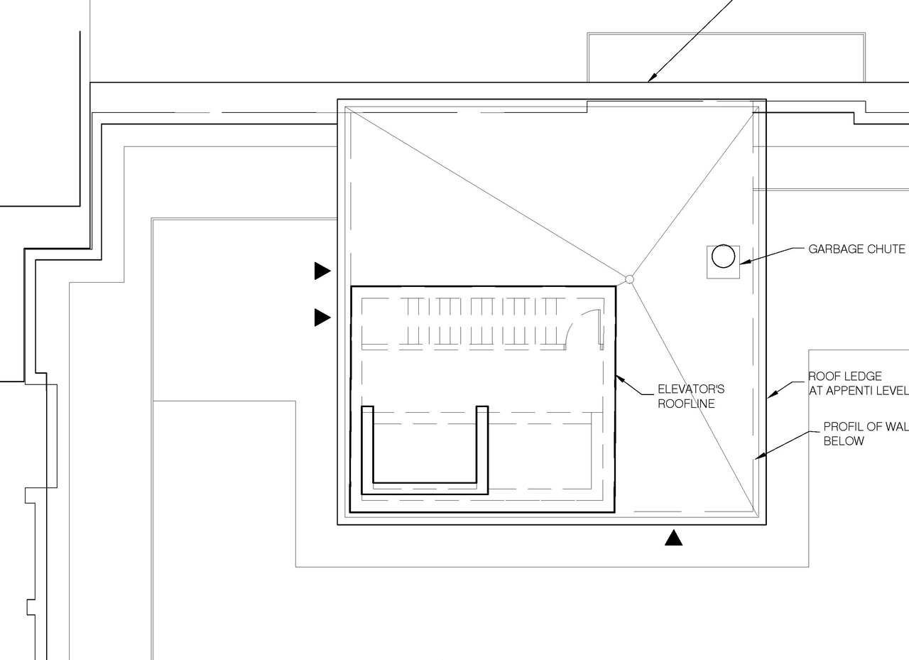
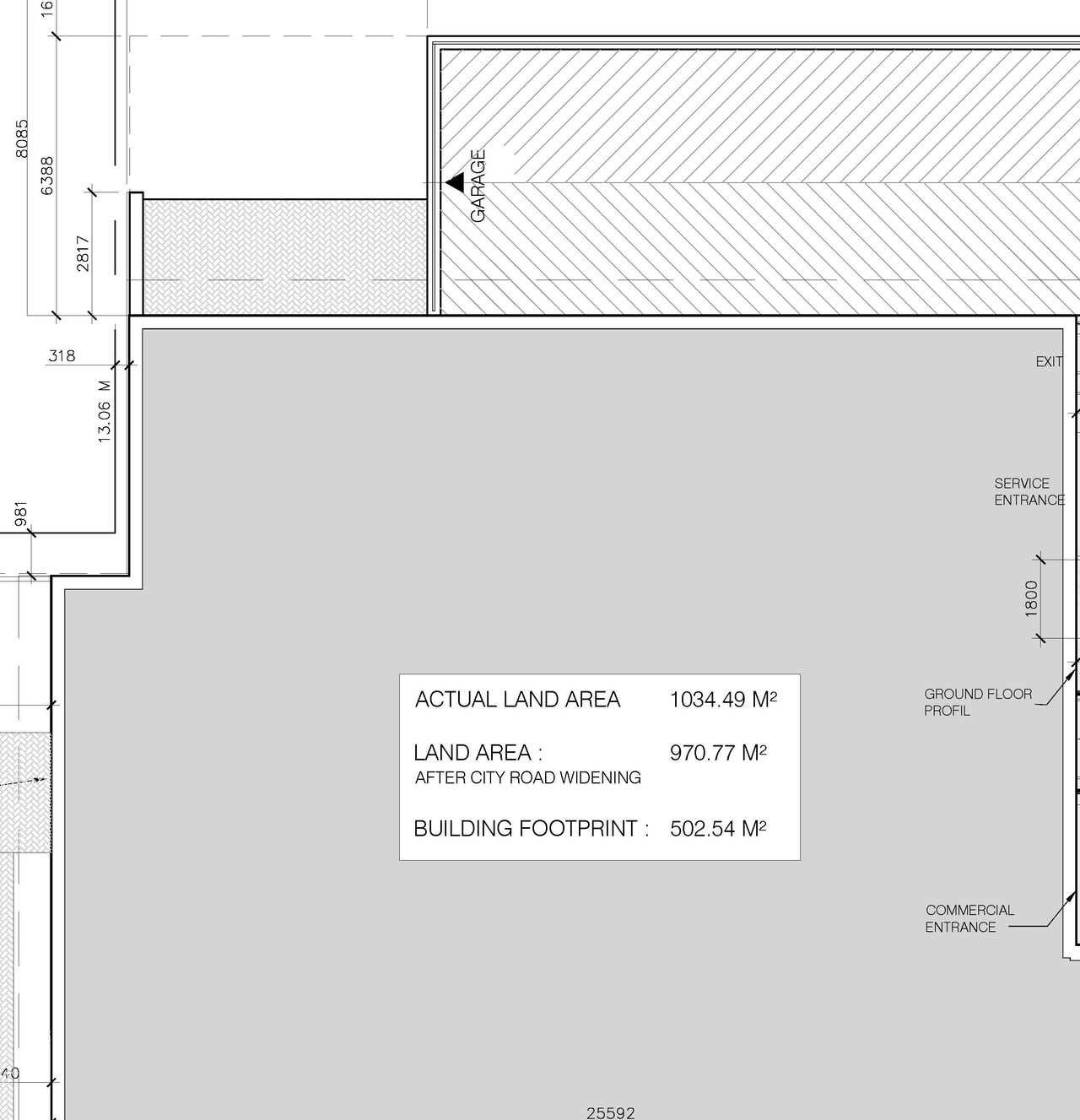
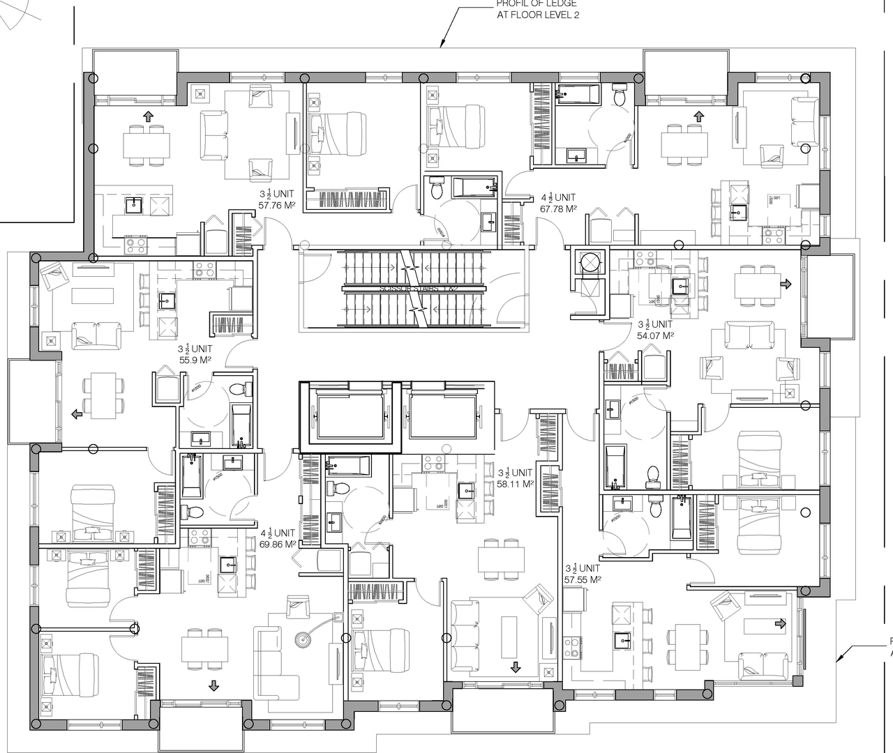
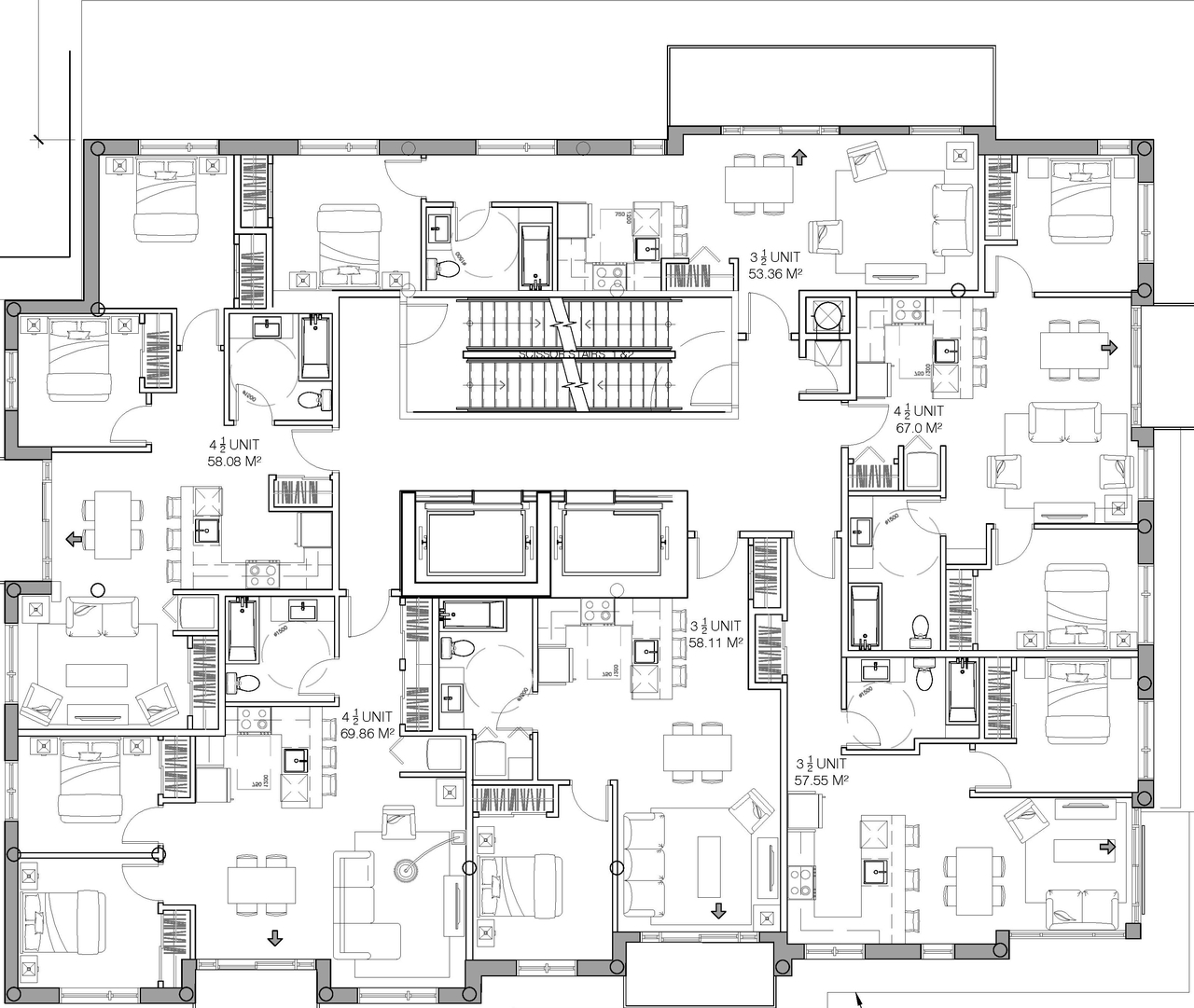
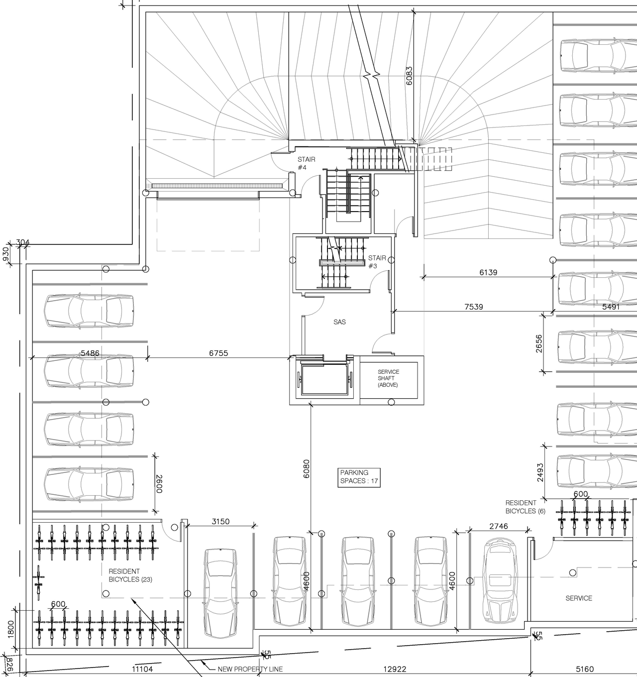
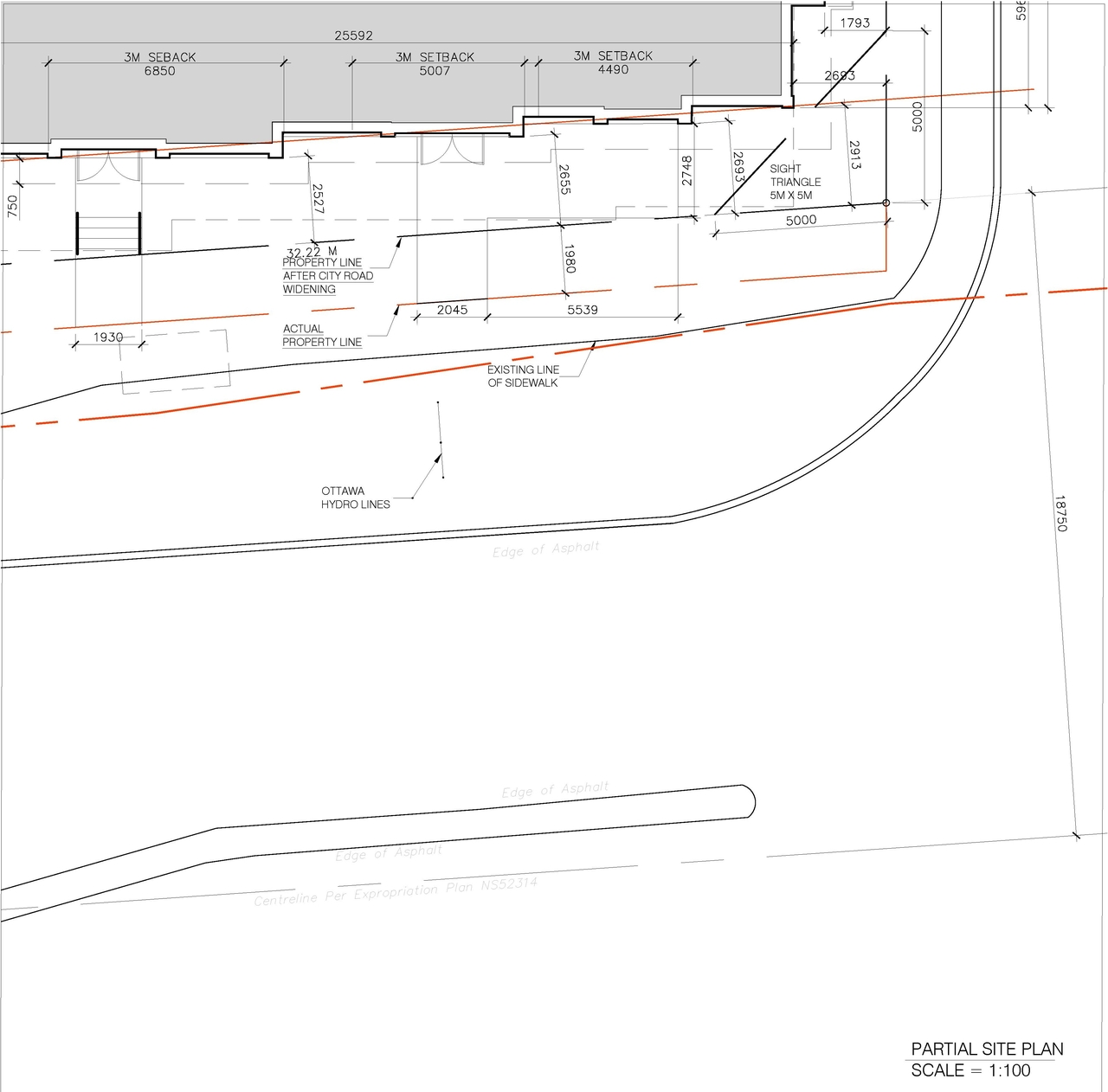
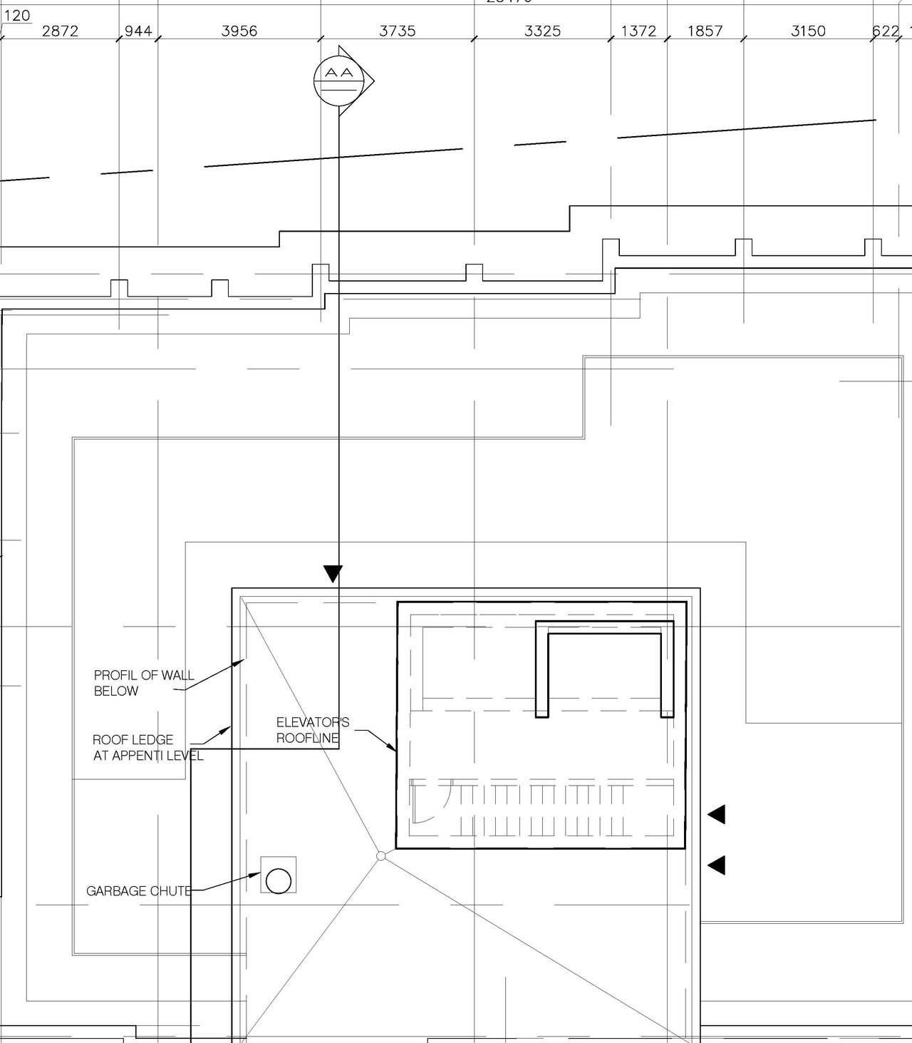
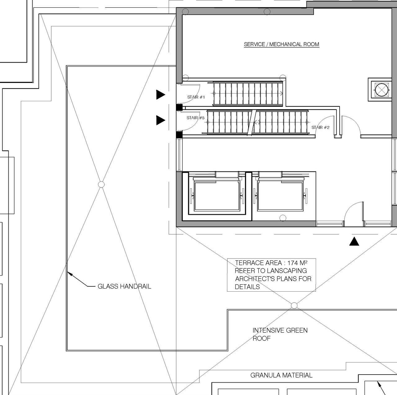
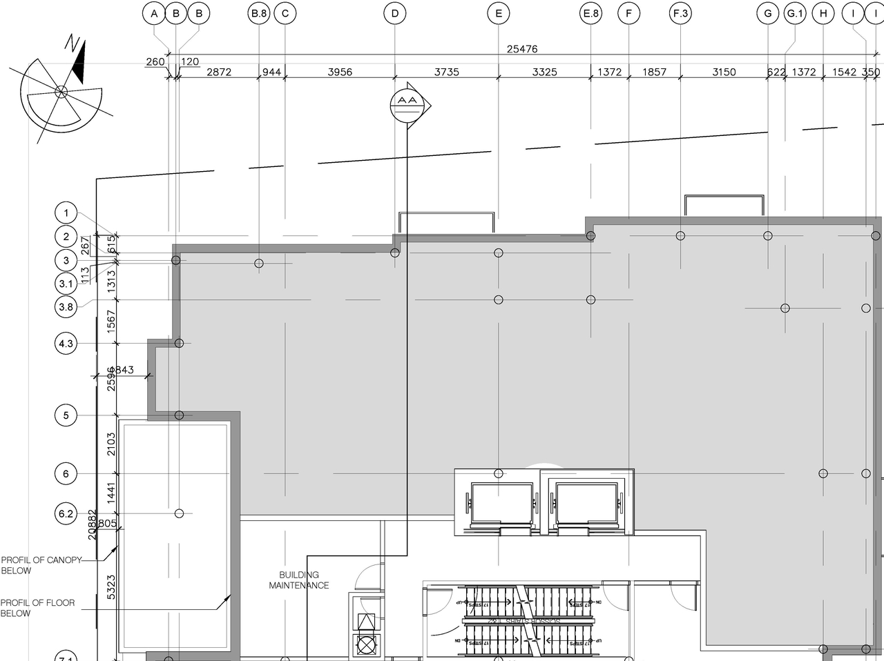
Site Plans, Elevations and Floor Plans#

  • Image from page 7 of the file '2023-05-11 - Design Brief - D07-12-21-0189'
  • Image from page 5 of the file '2023-05-11 - Design Brief - D07-12-21-0189'
  • Image from page 7 of the file '2023-05-11 - Design Brief - D07-12-21-0189'
  • Image from page 6 of the file '2023-04-20 - Site Plan & Floor Plans - D07-12-21-0189'
  • Image from page 7 of the file '2024-02-14 - Site Plan and Floor Plans - D07-12-21-0189'
  • Image from page 2 of the file '2023-04-20 - Site Plan & Floor Plans - D07-12-21-0189'
  • Image from page 7 of the file '2023-05-11 - Design Brief - D07-12-21-0189'
  • Image from page 2 of the file '2024-02-14 - Site Plan and Floor Plans - D07-12-21-0189'
  • Image from page 3 of the file '2024-02-14 - Site Plan and Floor Plans - D07-12-21-0189'
  • Image from page 7 of the file '2023-04-20 - Site Plan & Floor Plans - D07-12-21-0189'
  • Image from page 4 of the file '2023-04-20 - Site Plan & Floor Plans - D07-12-21-0189'
  • Image from page 3 of the file '2024-02-14 - Site Plan and Floor Plans - D07-12-21-0189'
  • Image from page 2 of the file '2024-02-14 - Site Plan and Floor Plans - D07-12-21-0189'
  • Image from page 5 of the file '2023-05-11 - Design Brief - D07-12-21-0189'
  • Image from page 3 of the file '2023-04-20 - Site Plan & Floor Plans - D07-12-21-0189'
  • Construction site plan for project from page 1 of the file '2023-05-11 - Site Plan & Floor Plans - D07-12-21-0189'
  • Construction site plan for project from page 1 of the file '2024-02-14 - Site Plan and Floor Plans - D07-12-21-0189'
  • Construction site plan for project from page 1 of the file '2023-05-11 - Site Plan & Floor Plans - D07-12-21-0189'
  • Construction site plan for project from page 1 of the file '2024-02-14 - Site Plan and Floor Plans - D07-12-21-0189'
  • Construction site plan for project from page 1 of the file '2023-04-20 - Site Plan & Floor Plans - D07-12-21-0189'
  • Construction site plan for project from page 1 of the file '2023-04-20 - Site Plan & Floor Plans - D07-12-21-0189'
  • Construction site plan for project from page 9 of the file '2023-04-20 - Design Brief - D07-12-21-0189'
  • Construction site plan for project from page 2 of the file '2023-04-20 - Site Plan & Floor Plans - D07-12-21-0189'
  • Construction site plan for project from page 6 of the file '2023-04-20 - Site Plan & Floor Plans - D07-12-21-0189'
  • Construction site plan for project from page 7 of the file '2023-05-11 - Site Plan & Floor Plans - D07-12-21-0189'
  • Construction site plan for project from page 6 of the file '2024-02-14 - Site Plan and Floor Plans - D07-12-21-0189'
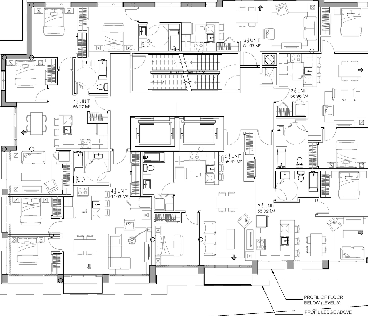
  • Floor plan for project from page 2 of the file '2024-02-14 - Site Plan and Floor Plans - D07-12-21-0189'
  • Floor plan for project from page 2 of the file '2023-04-20 - Site Plan & Floor Plans - D07-12-21-0189'
  • Floor plan for project from page 5 of the file '2024-02-14 - Site Plan and Floor Plans - D07-12-21-0189'
  • Floor plan for project from page 6 of the file '2023-05-11 - Site Plan & Floor Plans - D07-12-21-0189'
  • Floor plan for project from page 4 of the file '2024-02-14 - Site Plan and Floor Plans - D07-12-21-0189'
  • Floor plan for project from page 6 of the file '2023-04-20 - Site Plan & Floor Plans - D07-12-21-0189'
  • Floor plan for project from page 5 of the file '2024-02-14 - Site Plan and Floor Plans - D07-12-21-0189'
  • Floor plan for project from page 4 of the file '2023-04-20 - Site Plan & Floor Plans - D07-12-21-0189'
  • Floor plan for project from page 5 of the file '2023-05-11 - Site Plan & Floor Plans - D07-12-21-0189'
  • Floor plan for project from page 5 of the file '2023-04-20 - Site Plan & Floor Plans - D07-12-21-0189'
  • Floor plan for project from page 4 of the file '2023-04-20 - Site Plan & Floor Plans - D07-12-21-0189'
  • Image from page 7 of the file '2023-05-11 - Design Brief - D07-12-21-0189'
  • Image from page 5 of the file '2023-05-11 - Design Brief - D07-12-21-0189'
  • Image from page 7 of the file '2023-05-11 - Design Brief - D07-12-21-0189'
  • Image from page 6 of the file '2023-04-20 - Site Plan & Floor Plans - D07-12-21-0189'
  • Image from page 7 of the file '2024-02-14 - Site Plan and Floor Plans - D07-12-21-0189'
  • Image from page 2 of the file '2023-04-20 - Site Plan & Floor Plans - D07-12-21-0189'
  • Image from page 7 of the file '2023-05-11 - Design Brief - D07-12-21-0189'
  • Image from page 2 of the file '2024-02-14 - Site Plan and Floor Plans - D07-12-21-0189'
  • Image from page 3 of the file '2024-02-14 - Site Plan and Floor Plans - D07-12-21-0189'
  • Image from page 7 of the file '2023-04-20 - Site Plan & Floor Plans - D07-12-21-0189'
  • Image from page 4 of the file '2023-04-20 - Site Plan & Floor Plans - D07-12-21-0189'
  • Image from page 3 of the file '2024-02-14 - Site Plan and Floor Plans - D07-12-21-0189'
  • Image from page 2 of the file '2024-02-14 - Site Plan and Floor Plans - D07-12-21-0189'
  • Image from page 5 of the file '2023-05-11 - Design Brief - D07-12-21-0189'
  • Image from page 3 of the file '2023-04-20 - Site Plan & Floor Plans - D07-12-21-0189'
  • Construction site plan for project from page 1 of the file '2023-05-11 - Site Plan & Floor Plans - D07-12-21-0189'
  • Construction site plan for project from page 1 of the file '2024-02-14 - Site Plan and Floor Plans - D07-12-21-0189'
  • Construction site plan for project from page 1 of the file '2023-05-11 - Site Plan & Floor Plans - D07-12-21-0189'
  • Construction site plan for project from page 1 of the file '2024-02-14 - Site Plan and Floor Plans - D07-12-21-0189'
  • Construction site plan for project from page 1 of the file '2023-04-20 - Site Plan & Floor Plans - D07-12-21-0189'
  • Construction site plan for project from page 1 of the file '2023-04-20 - Site Plan & Floor Plans - D07-12-21-0189'
  • Construction site plan for project from page 9 of the file '2023-04-20 - Design Brief - D07-12-21-0189'
  • Construction site plan for project from page 2 of the file '2023-04-20 - Site Plan & Floor Plans - D07-12-21-0189'
  • Construction site plan for project from page 6 of the file '2023-04-20 - Site Plan & Floor Plans - D07-12-21-0189'
  • Construction site plan for project from page 7 of the file '2023-05-11 - Site Plan & Floor Plans - D07-12-21-0189'
  • Construction site plan for project from page 6 of the file '2024-02-14 - Site Plan and Floor Plans - D07-12-21-0189'
  • Floor plan for project from page 2 of the file '2024-02-14 - Site Plan and Floor Plans - D07-12-21-0189'
  • Floor plan for project from page 2 of the file '2023-04-20 - Site Plan & Floor Plans - D07-12-21-0189'
  • Floor plan for project from page 5 of the file '2024-02-14 - Site Plan and Floor Plans - D07-12-21-0189'
  • Floor plan for project from page 6 of the file '2023-05-11 - Site Plan & Floor Plans - D07-12-21-0189'
  • Floor plan for project from page 4 of the file '2024-02-14 - Site Plan and Floor Plans - D07-12-21-0189'
  • Floor plan for project from page 6 of the file '2023-04-20 - Site Plan & Floor Plans - D07-12-21-0189'
  • Floor plan for project from page 5 of the file '2024-02-14 - Site Plan and Floor Plans - D07-12-21-0189'
  • Floor plan for project from page 4 of the file '2023-04-20 - Site Plan & Floor Plans - D07-12-21-0189'
  • Floor plan for project from page 5 of the file '2023-05-11 - Site Plan & Floor Plans - D07-12-21-0189'
  • Floor plan for project from page 5 of the file '2023-04-20 - Site Plan & Floor Plans - D07-12-21-0189'
  • Floor plan for project from page 4 of the file '2023-04-20 - Site Plan & Floor Plans - D07-12-21-0189'

Additional Information#

Date Initiated2021-11-05
WardWard 13 - Rawlson King

Documents#

TypeDocument
Architectural Plans2024-02-14 - Site Plan Control Designs - D07-12-21-0189
Architectural Plans2024-02-14 - Site Plan Control Designs - D07-12-21-0189
Architectural Plans2024-02-14 - Planting Plan and Landscape Details - D07-12-21-0189
Architectural Plans2024-02-14 - Elevations - D07-12-21-01891
Architectural Plans2024-02-14 - Elevations - D07-12-21-0189
Architectural Plans2023-05-11 - Elevations - D07-12-21-0189
Architectural Plans2023-04-20 - Site Plan Control Designs - D07-12-21-0189
Architectural Plans2023-04-20 - Green Roof Plan & Details - D07-12-21-0189
Architectural Plans2023-04-20 - Elevations - D07-12-21-0189
Architectural Plans2023-04-20 - Draft 4R-Plan for Road Widening -D07-12-21-0189
Architectural Plans2025-07-09 - Revised Site Plan Control Designs - D07-12-21-0189
Architectural Plans2025-07-09 - Elevations - D07-12-21-0189
Architectural Plans2025-07-09 - Architecture Plans & Drawings - D07-12-21-0189
Design Brief2023-05-11 - Design Brief - D07-12-21-0189
Design Brief2023-04-20 - Design Brief - D07-12-21-0189
Environmental2024-03-05 - ENVIRONMENTAL SITE ASSESSMENT PHASE II - D07-12-21-0189
Environmental2023-04-20 - Phase II Environmental Site Assessment - D07-12-21-0189
Environmental2023-04-20 - Phase I Environmental Site Assessment - D07-12-21-0189
Environmental2025-07-09 - Phase Two Environmental Site Assessment - D07-12-21-0189
Floor Plan2024-02-14 - Site Plan and Floor Plans - D07-12-21-0189
Floor Plan2023-05-11 - Site Plan & Floor Plans - D07-12-21-0189
Floor Plan2023-04-20 - Site Plan & Floor Plans - D07-12-21-0189
Geotechnical Report2024-02-22 - Geotechnical Report - D07-12-21-0189
Geotechnical Report2023-05-11 - Geotechnical Report (English) - D07-12-21-0189
Geotechnical Report2023-04-20 - Geotechnical Report - D07-12-21-0189
Landscape Plan2023-05-11 - Landscape Plan & Green Roof Plan - D07-12-21-0189
Landscape Plan2023-04-20 - Landscape Plan -D07-12-21-0189
Noise Study2023-04-20 - Noise Impact Assessment - D07-12-21-0189
Noise Study2025-07-09 - Noise Impact Assessment Memo - D07-12-21-0189
Planning2023-05-11 - Planning Rationale - D07-12-21-0189
Planning2023-04-21 - Planning Rationale - D07-12-21-0189
Planning2023-04-20 - Planning Rationale - D07-12-21-0189
Rendering2024-02-14 - Perspectives - D07-12-21-01891
Rendering2024-02-14 - Perspectives - D07-12-21-0189
Rendering2023-04-20 - Renderings - D07-12-21-0189
Shadow Study2023-04-20 - Shadow Analyses - D07-12-21-0189
Stormwater Management2024-02-14 - Stormwater Management Report and Servicing Brief - D07-12-21-0189
Stormwater Management2024-02-14 - Stormwater Management Report and Servicing Brief - D07-12-21-0189
Stormwater Management2023-04-20 - Storm Water Management Report - D07-12-21-0189
Surveying2023-04-20 - Topographic Plan -D07-12-21-0189
Transportation Analysis2023-04-20 - Traffic Impact Assessment Screening and Scoping Report - D07-12-21-0189
Tree Information and Conservation2024-02-14 - Tree Conservation Report Planting Plan and Landscape Details - D07-12-21-0189
Tree Information and Conservation2024-02-14 - Tree Conservation Report - D07-12-21-0189
Tree Information and Conservation2024-02-14 - Tree Conservation Report - D07-12-21-0189
Tree Information and Conservation2023-04-20 - Tree Conservation Report - D07-12-21-0189
Tree Information and Conservation2025-07-09 - Tree Conservation Report - D07-12-21-0189
2023-04-20 - Pedestrian Wind Assessment - D07-12-21-0189
2025-07-09 - Preliminary Geotechnical Investigation - D07-12-21-0189