Ottawa Development Projects

1104 Halton Ter.#

Last updated: 2026-03-27 · ID: D07-12-21-0186

Summary#

The proposed development consists of a five storey apartment building, with underground and surface parking.

Status
File Pending (Application File Pending)

Building Scale (Max.) Based on elevation drawings. Values may be approximate. See sources for exact figures.
Mid-rise · 5 storeys Data Quality Note Text was extracted using optical character recognition. This may introduce artifacts or misreads. · 18.48 m Data Quality Note Text was extracted using optical character recognition. This may introduce artifacts or misreads.

Renders#

Location#

Select a marker to view the address.

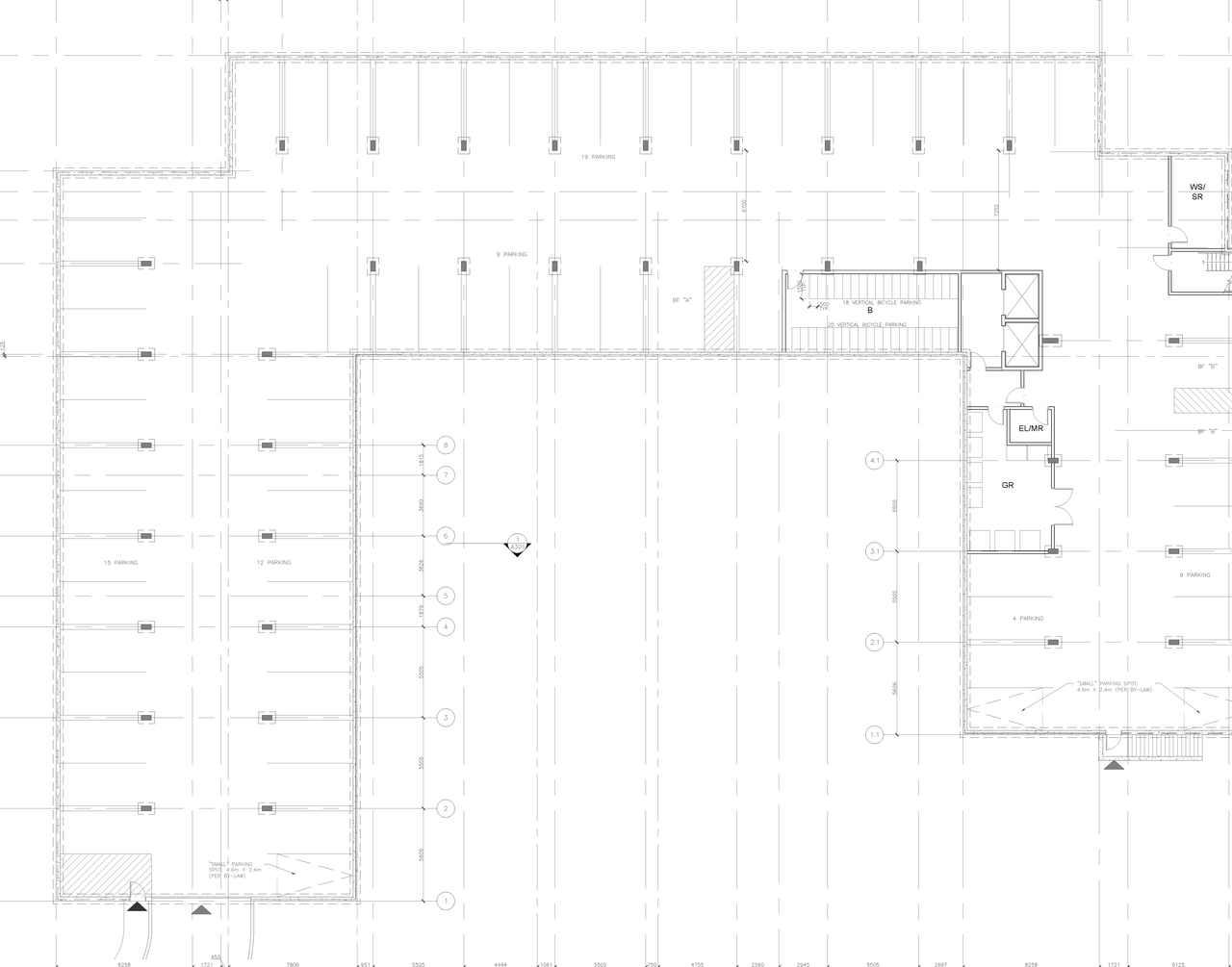
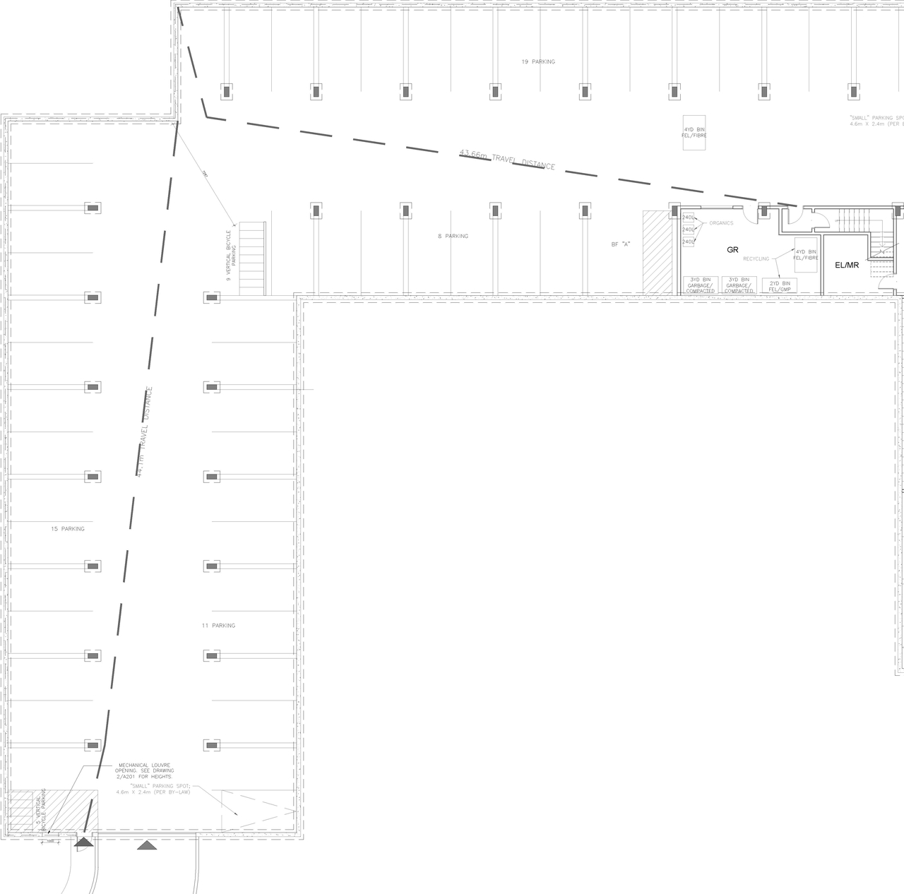
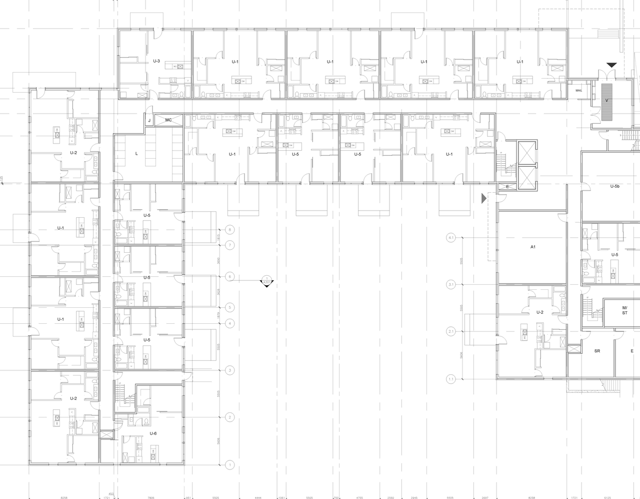
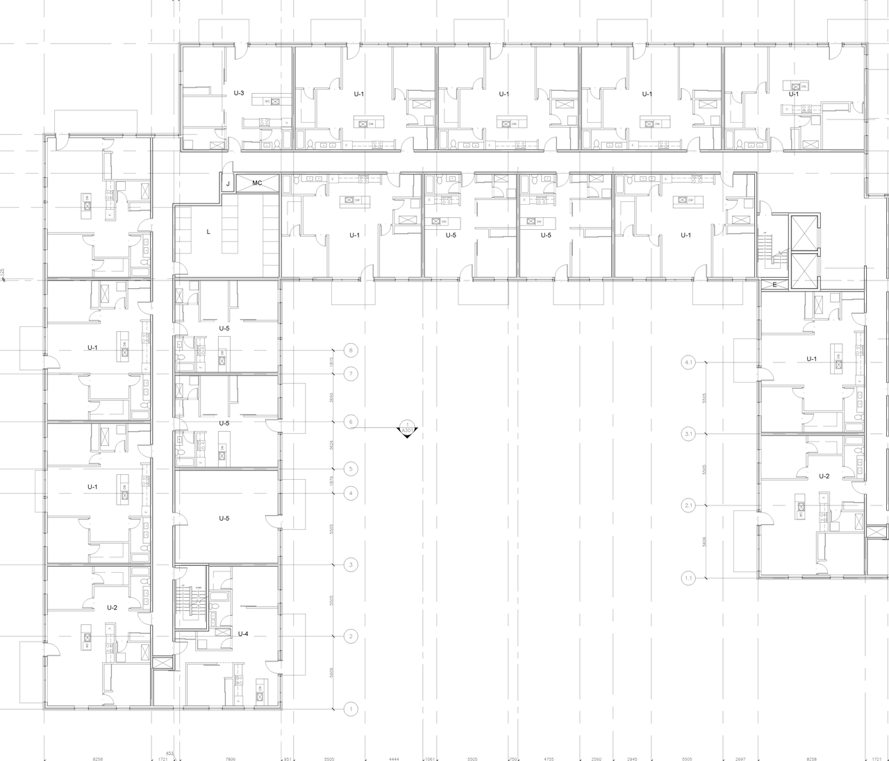
Site Plans, Elevations and Floor Plans#

Additional Information#

Date Initiated2021-11-03
WardWard 4 - Cathy Curry

Documents#

TypeDocument
Application Summary2021-11-22 - Application Summary - D07-12-21-0186
Architectural Plans2023-11-14 - Storm Drainge Area Plan - D07-12-21-0186
Architectural Plans2023-11-14 - SITE REMOVALS, EROSION AND SEDIMENT CONTROL PLAN - D07-12-21-0186
Architectural Plans2023-11-14 - SITE PLAN - D07-12-21-0186
Architectural Plans2023-11-14 - General Plan of Services - D07-12-21-0186
Architectural Plans2023-11-14 - ELEVATIONS - D07-12-21-0186
Architectural Plans2023-11-14 - BASEMENT PLAN - D07-12-21-0186
Architectural Plans2021-11-03 - Site Plan - D07-12-21-0186
Architectural Plans2021-11-03 - Reference Plan 2 - D07-12-21-0186
Architectural Plans2021-11-03 - Elevations - D07-12-21-0186
Architectural Plans2025-05-15 - Site Removals Erosion and Sedimen Control Plan - D07-12-21-0186
Architectural Plans2025-05-15 - Location Plan - D07-12-21-0186
Architectural Plans2025-05-15 - General Plan of Services - D07-12-21-0186
Architectural Plans2025-05-15 - Site Plan - D07-12-21-0186
Architectural Plans2025-07-14 - Site Removals, Erosion and Sediment Control Plan - D07-12-21-0186
Architectural Plans2025-07-14 - General Plan of Services - D07-12-21-0186
Electrical Plan2021-11-03 - Lighting Plan - D07-12-21-0186
Environmental2021-11-03 - Phase 1 Environmental Site Assessment - D07-12-21-0186
Floor Plan2021-11-03 - Floor Plans - D07-12-21-0186
Floor Plan2025-05-15 - Basement Floor Plan Option 2 - D07-12-21-0186
Geotechnical Report2023-11-14 - Grading Plan - D07-12-21-0186
Geotechnical Report2023-11-14 - Geotechnical Investigation - D07-12-21-0186
Geotechnical Report2021-11-03 - Grading Plan - D07-12-21-0186
Geotechnical Report2025-05-15 - Grading Plan - D07-12-21-0186
Geotechnical Report2025-05-15 - Geotechnical Investigation - D07-12-21-0186
Geotechnical Report2025-07-14 - Grading Plan - D07-12-21-0186
Landscape Plan2023-11-14 - Landscape Plan - D07-12-21-0186
Landscape Plan2021-11-03 - Landscape Plan - D07-12-21-0186
Landscape Plan2025-05-15 - Landscape Plan - D07-12-21-0186
Landscape Plan2025-07-21 - Landscape Plan - D07-12-21-0186
Landscape Plan2025-09-08 - Landscape Plan - D07-12-21-0186
Noise Study2021-11-03 - Noise Impact Assessment - D07-12-21-0186
Planning2023-11-14 - Planning Rationale and Design Brief - D07-12-21-0186
Planning2021-11-03 - Planning Rationale - D07-12-21-0186
Rendering2021-11-03 - Renders - D07-12-21-0186
Shadow Study2023-11-14 - SHADOW STUDIES -D07-12-21-0186
Site Servicing2023-11-14 - Site Servicing and Stormwater Management Report - D07-12-21-0016
Site Servicing2021-11-03 - Servicing Plan - D07-12-21-0186
Site Servicing2021-11-03 - Servicing and Stormwater Management Report - D07-12-21-0186
Site Servicing2025-05-15 - Site Servicing and Stormwater Management Report - D07-12-21-0186
Site Servicing2025-07-14 - Site Servicing and Stormwater Management Report - D07-12-21-0186
Stormwater Management2023-11-14 - Pre-Development Storm Drainage Area Plan - D07-12-21-0186
Stormwater Management2021-11-03 - Storm Drainage Plan - D07-12-21-0186
Stormwater Management2025-05-15 - Storm Drainage Area Plan - D07-12-21-0186
Stormwater Management2025-05-15 - Pre Development Storm Drainage Area Plan - D07-12-21-0186
Stormwater Management2025-07-14 - Storm Drainage Area Plan - D07-12-21-0186
Stormwater Management2025-07-14 - Pre Development Storm Drainage Area Plan - D07-12-21-0186
Surveying2021-11-03 - Survey - D07-12-21-0186
Transportation Analysis2023-11-14 - Transportation Impact Assessment - D07-12-21-0186
Transportation Analysis2021-11-03 - Transportation Impact Assessment - D07-12-21-0186
Tree Information and Conservation2023-11-14 - Tree Conservation Report - D07-12-21-0186
Tree Information and Conservation2021-11-03 - Tree Conservation Report - D07-12-21-0186
Tree Information and Conservation2025-07-21 - Tree Conservation Report - D07-12-21-0186
Tree Information and Conservation2025-09-08 - Tree Conservation Report - D07-12-21-0186
2023-11-14 - RENDERED IMAGES - D07-12-21-0186
2021-11-03 - Site Removals Erosion and Sediment - D07-12-21-0186
2021-11-03 - Sections - D07-12-21-0186
2021-11-03 - Geotech - D07-12-21-0186